Фана
- Кількість поверхів
- 1
- Площа
- 76.4
- Ширина
- 8.5
- Довжина
- 9
- Комерційні будівлі
- Банкетний комплекс
Ресторани - Садові та господарські споруди
- Кухні
Павільйони - Храми і каплиці
- Трапезні
(Що входить в ціну)
- комплект стін;
- комплект крокв;
- комплект балок перекриття;
- утеплювач міжвінцевий;
- антисептик (антисептування всього матеріалу);
- дубові нагеля;
- кріпильні материали (саморізи, усадкові болти, анкера, кріпильні пластини);
- гідроізоляція;
- вогнебіозахист (обробка деревини засобом І групи вогнезахисної ефективності)
Проект банкетного залу зі зрубу «Фана»
Дерев’яний банкетний зал «Фана» був виготовлений за індивідуальним проектом, як місткий павільйон для будівництва в ресторанно-готельному комплексі. Господар комплексу побажав скомбінувати в проекті відкриту і закриту зону. Таким чином, вийшов класичний варіант банкетного залу, в якому досить місця, щоб сховатися всередині від негоди, або розташуватися на просторій терасі під навісом і насолоджуватися свіжим повітрям в погожий день. Гарний зовнішній дизайн проекту «Фана» створений, щоб залучати якомога більше клієнтів. У той же час лаконічний екстер’єр павільйону не містить надмірностей: проста, двосхила покрівля, прямокутні вікна, відсутність внутрішніх перегородок.
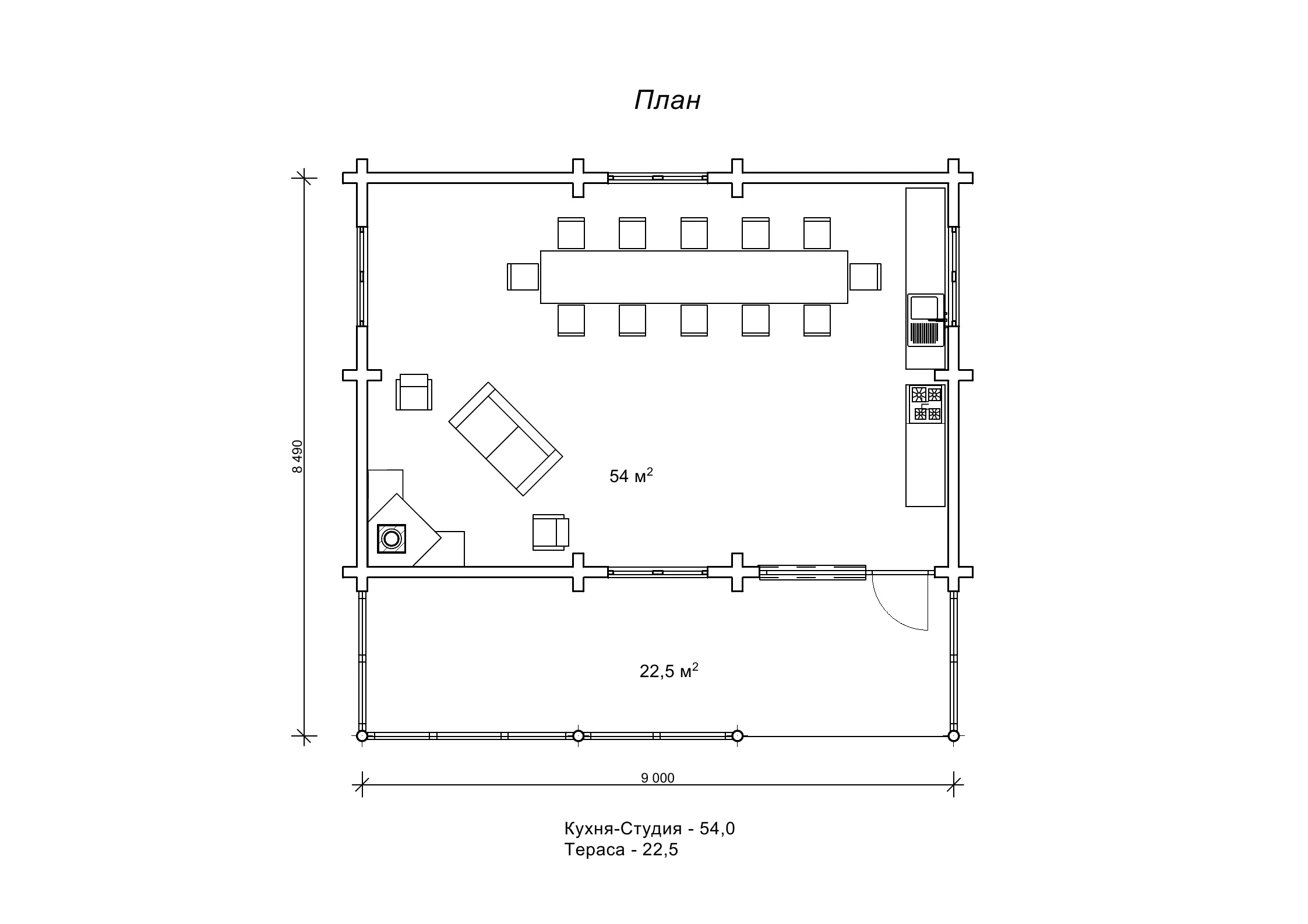
Планування банкетного залу «Фана», площа 76,4 м2
Площа банкетного залу «Фана» 76,4 м2. Це досить велика площа споруди, яку можна порівняти з повноцінним, житловим котеджем з дерева. Тому, якщо ви приглядаєте садовий будиночок на свою присадибну територію, то такий проект як «Фана» буде гармонійно виглядати поряд з маштабною садибою, за типом проектів «Лодміра» або «Крампет». Місткі габарити будівлі 8,5 на 9 м дозволяють розміщувати в ній багато гостей. Тому все ж «Фана» більше підходить під бізнес спрямування. Тут зручно буде проводити великі урочистості, крім того, павільйон може вміщати й кілька окремих компаній. Адже столики можна поставити як всередині споруди (площа закритого приміщення 54 м2), так і на просторій терасі площею 22,5 м2. Тому, якщо ви бажаєте розширити можливості своєї бази відпочинку або додати популярності ресторанному комплексу за рахунок оригінального залу з бруса, проект «Фана» - це саме те, що ви шукали.
Будівництво банкетного залу «Фана» в ресторанному комплексі
Будівництво банкетного залу за проектом «Фана» допоможе вам розкрити весь потенціал ресторанно-готельного комплексу і виведе ваш бізнес на новий рівень. Тут створюються ідеальні умови для прийому гостей. Дерев’яний павільйон не потребує масштабного оздоблення, а тому швидко зводиться і починає працювати. Через це у нього мінімальні терміни окупності, що оцінить будь-який власник ресторану, що добре розуміється на бізнесі. Споруду бюджетного, гарного і довговічного зрубу банкетного залу «Фана» можна замовити, звернувшись в наш офіс по роботі з клієнтами.
- Кількість поверхів
- 1
- Площа
- 76.4
- Ширина
- 8.5
- Довжина
- 9
- Комерційні будівлі
- Банкетний комплекс
Ресторани - Садові та господарські споруди
- Кухні
Павільйони - Храми і каплиці
- Трапезні
Базова комплектація:
(Що входить в ціну)
- комплект стін;
- комплект крокв;
- комплект балок перекриття;
- утеплювач міжвінцевий;
- антисептик (антисептування всього матеріалу);
- дубові нагеля;
- кріпильні материали (саморізи, усадкові болти, анкера, кріпильні пластини);
- гідроізоляція;
- вогнебіозахист (обробка деревини засобом І групи вогнезахисної ефективності)
257580 грн.
Дах (комплектність):
- Рейка 100*25мм (cосна)
- Контрейка 50*25мм (сосна)
- Металочерепиця МОНТЕРРЕЙ (Польща) 0,45мм
- Коник прямий
- Планка примикання
- Лобова (декоративна) планка
- Вітровая планка
- Яндола
- Капельник (Карнизна планка)
- Ущільнювач універсальный
- Саморізи ОС 4.8х35
- Фарба-спрей
- Гідробар'єр
- Монтаж
140320 грн.
Вікна (комплектність):
- Вікно VEKA 58, колір білий 10
- Імпости вертикальні: 1 x 102103
- Скління: СПО, 24мм, (Rсп=0.36)*
- Тип фурнітури: Activpilot поворотно-відкидна, колір білий
- Підбір спеціальний: Activ микровентиляція; Activ 2-функц. механ.
- Моск.сітка: МС 3
- Підвіконня: ВМ 110мм, колір білий
- Підвіконня: ПВ ПВХ 150, заглушки: 600мм, колір білий
- Монтаж
104500 грн.
Двері (комплектність):
- Полотно
- Коробка
- Лиштва
- Карниз
- Фарбування
- Скло
- Фурнітура
- Врізка фурнітуры
- Монтаж
97216 грн.
Фарбування (комплектність):
- Шліфування торців
- Тришарове покриття ефективним деревозахисним засобом на базі низькомолекулярної алкідної смоли методом розпилення.
Оциліндрований брус
Оциліндрований брус є найбільш оптимальним і поширеним матеріалом для будівництва дерев`яних будинків і бань, бесідок, альтанок, різноманітних садових меблів, дерев`яних конструкцій будь-яких видів. Дерев`яні будинки з оциліндрованого брусу відрізняються красою, всередині такого будинку завжди відчувається особлива затишна атмосфера.
Профільований брус
Найсучаснішим і високотехнологічним будівельним матеріалом в дерев`яному будівництві на сьогоднішній день є профільований брус. Для виробництва профільованого брусу, звичайному дерев`яному брусу на спеціальному деревообробному обладнанні надається певний профіль.
Подвійний брус з утепленням
Головна ідея застосування подвійного бруса полягала в досягненні енергоефективності житла. Над проектуванням енергозберігаючих будинків працюють провідні інженери та архітектори в різних країнах світу, запропонована фінами технологія подвійного бруса дає можливість звести до мінімуму тепловтрати будинку, а також об`єднує переваги будівництва дерев`яного будинку з економічністю споруди.
Клеєний брус
Клеєний брус принципово відрізняється від інших типів колод багатошаровістю. Така структура робить цей дерев’яний матеріал надміцним і витривалим.
Каркасні конструкції
Каркасні конструкції виготовляються на власних виробничих потужностях компанії «Домінант», з використанням сучасних деревообробних станків. Імпортне, високоточне обладнання дозволяє нам високоякісно виконувати свою роботу. Каркаси складаються зі струганих, ретельно висушених балок 150х50 мм (сосна першого сорту). Ці балки застосовуються для зовнішніх каркасів.










