Лодміра
- Кількість поверхів
- 2
- Площа
- 391.7
- Ширина
- 15.2
- Довжина
- 28.2
- Будинки і житлові будови
- Вілли
Маєтки
Садиби - Кількість кімнат
- П’ятикімнатні будинки
- Особливості будинків
- Будинки з балконом
Будинки з терасою
Будинки зі сходами
Будинки з ґанком - Кількість поверхів споруди
- Двоповерхові будинки
- Будинки з брусу
- Будинки з оциліндрованого брусу
(Що входить в ціну)
- комплект стін;
- комплект крокв;
- комплект балок перекриття;
- утеплювач міжвінцевий;
- антисептик (антисептування всього матеріалу);
- дубові нагеля;
- кріпильні материали (саморізи, усадкові болти, анкера, кріпильні пластини);
- гідроізоляція;
- вогнебіозахист (обробка деревини засобом І групи вогнезахисної ефективності)
Проект двоповерхової садиби 15,2 на 28,2 м з другим світлом
Дерев’яна вілла «Лодміра» є неймовірно ефектною будовою, що вражає своїми масштабами і різноманітністю архітектурних рішень. Даний проект можна охарактеризувати як втілення багатої фантазії. Цікаві дизайнерські прийоми спостерігаються як у загальній стилістиці екстер’єру, так і у внутрішній організації простору. Абсолютно незвична форма споруди говорить про неординарність господаря цієї розкішної садиби. Така будова створена для незвичайної, харизматичної, забезпеченої людини з витонченим смаком.
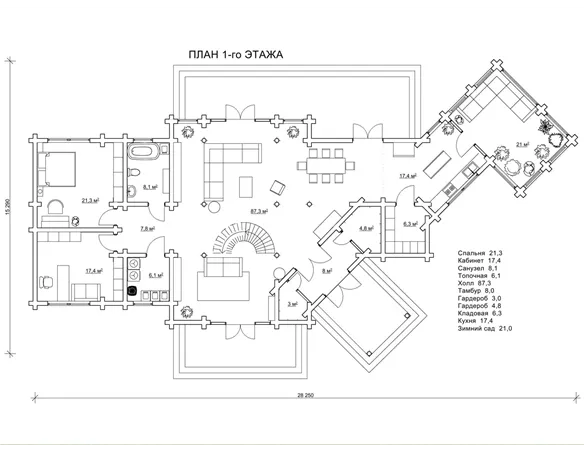
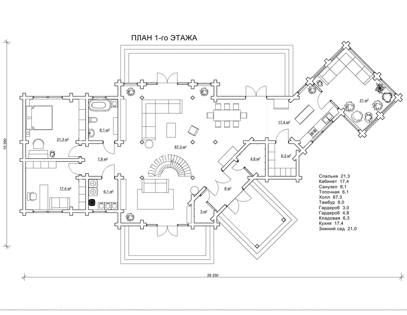
Планування приміщень садиби на 391,7 м²
Внутрішнє наповнення садиби відрізняється функціональністю і грамотним розподілом простору, якого на двох повноцінних поверхах предостатньо для виключно комфортного проживання. Планування першого поверху передбачає кімнати для прийому гостей і приміщення господарського призначення: топкова, гардеробні, комора. Зручним рішенням в проекті виступає наявність гостьової спальні на першому поверсі і робочого кабінету. Просторий зал площею 87,3 м² з величезними вікнами і високими стелями другого світла і зимовий сад, безперечно, виступають головними родзинками інтер’єру вілли «Лодміра». Крім закритої веранди із зимовим садом, будинок обрамляють дуже просторі відкриті тераси, де можна облаштувати затишні зони для відпочинку на свіжому повітрі біля будинку. На другому поверсі знаходяться дві спальні, кожна з прилеглим санвузлом, а також хол, гардеробні та спортзал. Все внутрішнє наповнення садиби «Лодміра» яскраво відображає ексклюзивний стиль і спосіб життя господарів. Видно, що проект створювався з душею, у всьому відчувається індивідуальний підхід і прагнення уникнути загальноприйнятих стандартів.
Будівництво дерев’яного маєтку з брусу
Добротний дерев’яний маєток з брусу створюється і будується для того, щоб стати візитною карткою і справжньою гордістю господаря. Будівництво такого будинку, безсумнівно, стане одним з найважливіших подій у вашому житті. Втілення таких грандіозних планів слід довіряти тільки перевіреним фахівцям, справжнім професіоналам з величезним практичним досвідом. Довірте зведення вашого сімейного маєтку виробничо-будівельної компанії «Домінант» з багаторічним досвідом в сфері дерев’яного домобудівництва - і ваша виключно дорога вілла з дерева на кілька рівнів з другим світлом, безліччю терас, балконів і величезними панорамними вікнами зимового саду нікого не залишить байдужим.
- Кількість поверхів
- 2
- Площа
- 391.7
- Ширина
- 15.2
- Довжина
- 28.2
- Будинки і житлові будови
- Вілли
Маєтки
Садиби - Кількість кімнат
- П’ятикімнатні будинки
- Особливості будинків
- Будинки з балконом
Будинки з терасою
Будинки зі сходами
Будинки з ґанком - Кількість поверхів споруди
- Двоповерхові будинки
- Будинки з брусу
- Будинки з оциліндрованого брусу
Базова комплектація:
(Що входить в ціну)
- комплект стін;
- комплект крокв;
- комплект балок перекриття;
- утеплювач міжвінцевий;
- антисептик (антисептування всього матеріалу);
- дубові нагеля;
- кріпильні материали (саморізи, усадкові болти, анкера, кріпильні пластини);
- гідроізоляція;
- вогнебіозахист (обробка деревини засобом І групи вогнезахисної ефективності)
855360 грн.
Дах (комплектність):
- Рейка 100*25мм (cосна)
- Контрейка 50*25мм (сосна)
- Металочерепиця МОНТЕРРЕЙ (Польща) 0,45мм
- Коник прямий
- Планка примикання
- Лобова (декоративна) планка
- Вітровая планка
- Яндола
- Капельник (Карнизна планка)
- Ущільнювач універсальный
- Саморізи ОС 4.8х35
- Фарба-спрей
- Гідробар'єр
- Монтаж
1806620 грн.
Вікна (комплектність):
- Вікно VEKA 58, колір білий 10
- Імпости вертикальні: 1 x 102103
- Скління: СПО, 24мм, (Rсп=0.36)*
- Тип фурнітури: Activpilot поворотно-відкидна, колір білий
- Підбір спеціальний: Activ микровентиляція; Activ 2-функц. механ.
- Моск.сітка: МС 3
- Підвіконня: ВМ 110мм, колір білий
- Підвіконня: ПВ ПВХ 150, заглушки: 600мм, колір білий
- Монтаж
0 грн.
Двері (комплектність):
- Полотно
- Коробка
- Лиштва
- Карниз
- Фарбування
- Скло
- Фурнітура
- Врізка фурнітуры
- Монтаж
348068 грн.
Фарбування (комплектність):
- Шліфування торців
- Тришарове покриття ефективним деревозахисним засобом на базі низькомолекулярної алкідної смоли методом розпилення.
Параметри забудови
- Кількість поверхів: 2
- Площа: 391.7
Розмір забудови
- Ширина: 15.2
- Довжина: 28.2
Перший поверх
| спальня (м²) | 21,3 |
| кабінет (м²) | 17,4 |
| санвузол (м²) | 8,1 |
| топкова (м²) | 6,1 |
| хол(м²) | 87,3 |
| тамбур (м²) | 8,0 |
| гардероб (м²) | 3,0 |
| гардероб (м²) | 4,8 |
| кладова (м²) | 6,3 |
| кухня (м²) | 17,4 |
| зимовий сад (м²) | 21,0 |
Другий поверх
| балкон (м²) | 8,5 |
| спальня (м²) | 21,3 |
| тренаженра зала (м²) | 17,4 |
| санвузол (м²) | 8,1 |
| коридор (м²) | 7,8 |
| гардероб (м²) | 6,1 |
| хол (м²) | 49,1 |
| друге світло (м²) | 26,6 |
| балкон (м²) | 7,2 |
| спальня (м²) | 30,2 |
| гардероб (м²) | 14,4 |
| санвузол (м²) | 6,3 |
Оциліндрований брус
Оциліндрований брус є найбільш оптимальним і поширеним матеріалом для будівництва дерев`яних будинків і бань, бесідок, альтанок, різноманітних садових меблів, дерев`яних конструкцій будь-яких видів. Дерев`яні будинки з оциліндрованого брусу відрізняються красою, всередині такого будинку завжди відчувається особлива затишна атмосфера.
Профільований брус
Найсучаснішим і високотехнологічним будівельним матеріалом в дерев`яному будівництві на сьогоднішній день є профільований брус. Для виробництва профільованого брусу, звичайному дерев`яному брусу на спеціальному деревообробному обладнанні надається певний профіль.
Подвійний брус з утепленням
Головна ідея застосування подвійного бруса полягала в досягненні енергоефективності житла. Над проектуванням енергозберігаючих будинків працюють провідні інженери та архітектори в різних країнах світу, запропонована фінами технологія подвійного бруса дає можливість звести до мінімуму тепловтрати будинку, а також об`єднує переваги будівництва дерев`яного будинку з економічністю споруди.
Клеєний брус
Клеєний брус принципово відрізняється від інших типів колод багатошаровістю. Така структура робить цей дерев’яний матеріал надміцним і витривалим.
Каркасні конструкції
Каркасні конструкції виготовляються на власних виробничих потужностях компанії «Домінант», з використанням сучасних деревообробних станків. Імпортне, високоточне обладнання дозволяє нам високоякісно виконувати свою роботу. Каркаси складаються зі струганих, ретельно висушених балок 150х50 мм (сосна першого сорту). Ці балки застосовуються для зовнішніх каркасів.













