Крампет
- Кількість поверхів
- 2
- Площа
- 151.4
- Ширина
- 13
- Довжина
- 11.3
- Будинки і житлові будови
- Вілли
Маєтки
Садиби - Кількість кімнат
- Трикімнатні будинки
- Особливості будинків
- Будинки з другим світлом
Будинки з мансардою - Кількість поверхів споруди
- Двоповерхові будинки
- Будинки з брусу
- Будинки з оциліндрованого брусу
(Що входить в ціну)
- комплект стін;
- комплект крокв;
- комплект балок перекриття;
- утеплювач міжвінцевий;
- антисептик (антисептування всього матеріалу);
- дубові нагеля;
- кріпильні материали (саморізи, усадкові болти, анкера, кріпильні пластини);
- гідроізоляція;
- вогнебіозахист (обробка деревини засобом І групи вогнезахисної ефективності)
Проект заміської вілли «Крампет»
Розкішний дерев’яний маєток з величезними панорамними вікнами «Крампет» підходить для того, хто мріє про свій заміський будинок, про власну віллу далеко від міської метушні. Гарний, наповнений світлом будинок притягує погляди своєю неймовірною атмосферою дерев’яного будинку зі зрубу. І жити, і відпочивати в такому будинку - суцільне задоволення. Стильна заміська вілла дозволить вам сховатися від міської метушні і відчути справжній прилив сил для нових досягнень. Цьому в повній мірі також буде сприяти зручне планування внутрішніх приміщень. Проект «Крампет», як і більшість наших виробів, розроблявся повністю виходячи з побажань замовників. Тому можна сказати, що його краса виступає відображенням краси внутрішнього світу і стилю життя своїх господарів.
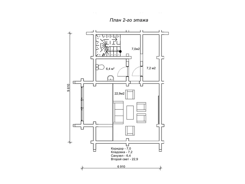
Планування вілли з оциліндрованого зрубу 13 на 11,3 м
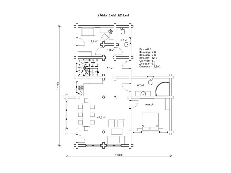
Простора площа вілли «Крампет» 151,4 м2 створює всі умови для зручного розташування приміщень і щасливого проживання в них всіх мешканців. Параметри забудови складають 13 на 11,3 м. На першому поверсі тут сплановані величезний зал на 47,6 м2, розділений на різні функціональні зони: кухню, їдальню і м’який куточок для відпочинку. Ми підготували корисні поради про те, як правильно і красиво зонувати кімнати, які можна прочитати в статтях нашого сайту . Також на першому поверсі є спальня і велика ванна. Окремо прибудованим до вілли приміщенням виступає робочий кабінет, де є свій санвузол. До кабінету можна ввійти не тільки зсередини будинку, але і зовні передбачений окремий вхід. Це дуже зручно для господаря, якщо він вирішить попрацювати вдома і буде призначати ділові зустрічі. Робота не завадить домашній атмосфері на віллі. Другий поверх проекту «Крампет» спланований у вигляді мансарди, тут все розташовує до насолоди навколишніми пейзажами і почуттям польоту, яке створюється завдяки «другому світлу» над вітальнею. Розробляти дизайн для облаштування вілли з оциліндрованого зрубу - справжнє задоволення. Тут відчувається особлива аура розміреного дозвілля і близькості з природою.
Будівництво заміської вілли зі зрубу по проекту «Крампет»
Заміська вілла зі зрубу «Крампет» виступає одним з найбільш гідних варіантів для придбання в якості сезонного або постійного житла. Комфортабельний дерев’яний будинок стане ідеальним місцем для всієї родини на вихідні чи свята. Провівши кілька днів на чудовій віллі зі зрубу, її точно не захочеться залишати. Тому рекомендуємо будувати її з колод діаметром 200-220 мм, тоді і взимку тут буде тепло і комфортно. Розкішна будова, професійно виконана нашими будівельниками за проектом «Крампет», стане гордістю своїх господарів і довгі роки буде радувати своєю красою, якістю і затишком.
- Кількість поверхів
- 2
- Площа
- 151.4
- Ширина
- 13
- Довжина
- 11.3
- Будинки і житлові будови
- Вілли
Маєтки
Садиби - Кількість кімнат
- Трикімнатні будинки
- Особливості будинків
- Будинки з другим світлом
Будинки з мансардою - Кількість поверхів споруди
- Двоповерхові будинки
- Будинки з брусу
- Будинки з оциліндрованого брусу
Базова комплектація:
(Що входить в ціну)
- комплект стін;
- комплект крокв;
- комплект балок перекриття;
- утеплювач міжвінцевий;
- антисептик (антисептування всього матеріалу);
- дубові нагеля;
- кріпильні материали (саморізи, усадкові болти, анкера, кріпильні пластини);
- гідроізоляція;
- вогнебіозахист (обробка деревини засобом І групи вогнезахисної ефективності)
451980 грн.
Дах (комплектність):
- Рейка 100*25мм (cосна)
- Контрейка 50*25мм (сосна)
- Металочерепиця МОНТЕРРЕЙ (Польща) 0,45мм
- Коник прямий
- Планка примикання
- Лобова (декоративна) планка
- Вітровая планка
- Яндола
- Капельник (Карнизна планка)
- Ущільнювач універсальный
- Саморізи ОС 4.8х35
- Фарба-спрей
- Гідробар'єр
- Монтаж
403420 грн.
Вікна (комплектність):
- Вікно VEKA 58, колір білий 10
- Імпости вертикальні: 1 x 102103
- Скління: СПО, 24мм, (Rсп=0.36)*
- Тип фурнітури: Activpilot поворотно-відкидна, колір білий
- Підбір спеціальний: Activ микровентиляція; Activ 2-функц. механ.
- Моск.сітка: МС 3
- Підвіконня: ВМ 110мм, колір білий
- Підвіконня: ПВ ПВХ 150, заглушки: 600мм, колір білий
- Монтаж
146300 грн.
Двері (комплектність):
- Полотно
- Коробка
- Лиштва
- Карниз
- Фарбування
- Скло
- Фурнітура
- Врізка фурнітуры
- Монтаж
217000 грн.
Фарбування (комплектність):
- Шліфування торців
- Тришарове покриття ефективним деревозахисним засобом на базі низькомолекулярної алкідної смоли методом розпилення.
Оциліндрований брус
Оциліндрований брус є найбільш оптимальним і поширеним матеріалом для будівництва дерев`яних будинків і бань, бесідок, альтанок, різноманітних садових меблів, дерев`яних конструкцій будь-яких видів. Дерев`яні будинки з оциліндрованого брусу відрізняються красою, всередині такого будинку завжди відчувається особлива затишна атмосфера.
Профільований брус
Найсучаснішим і високотехнологічним будівельним матеріалом в дерев`яному будівництві на сьогоднішній день є профільований брус. Для виробництва профільованого брусу, звичайному дерев`яному брусу на спеціальному деревообробному обладнанні надається певний профіль.
Подвійний брус з утепленням
Головна ідея застосування подвійного бруса полягала в досягненні енергоефективності житла. Над проектуванням енергозберігаючих будинків працюють провідні інженери та архітектори в різних країнах світу, запропонована фінами технологія подвійного бруса дає можливість звести до мінімуму тепловтрати будинку, а також об`єднує переваги будівництва дерев`яного будинку з економічністю споруди.
Клеєний брус
Клеєний брус принципово відрізняється від інших типів колод багатошаровістю. Така структура робить цей дерев’яний матеріал надміцним і витривалим.
Каркасні конструкції
Каркасні конструкції виготовляються на власних виробничих потужностях компанії «Домінант», з використанням сучасних деревообробних станків. Імпортне, високоточне обладнання дозволяє нам високоякісно виконувати свою роботу. Каркаси складаються зі струганих, ретельно висушених балок 150х50 мм (сосна першого сорту). Ці балки застосовуються для зовнішніх каркасів.












