Церква Святого Архистратига Михаїла-2
- Кількість поверхів
- 1
- Площа
- 134.6
- Ширина
- 9.8
- Довжина
- 16.9
- Храми і каплиці
- Церкви
(Що входить в ціну)
- комплект стін;
- комплект крокв;
- комплект балок перекриття;
- утеплювач міжвінцевий;
- антисептик (антисептування всього матеріалу);
- дубові нагеля;
- кріпильні материали (саморізи, усадкові болти, анкера, кріпильні пластини);
- гідроізоляція;
- вогнебіозахист (обробка деревини засобом І групи вогнезахисної ефективності)
Проект зрубу церкви 9,8 на 16,9 м
Нова модель храму створювалася повністю на основі вихідного проекту «Церква Святого Архистратига Михаїла». Винятком є лише одна єдина деталь - конструкція купола, яка в новому виконанні абсолютно змінює вигляд нової церкви. Високий і гострий шпиль з хрестом виконується по готичним мотивами середньовічних церков і навіть здалеку дуже привертає увагу. Храм просто неможливо не помітити - високий звід в честь безумовної перемоги головного ангела над темними силами кличе парафіян зануритися в духовну атмосферу церковного обряду. Церковна енергетика сприятливо впливає на кожну людину, яка приходить в храм. Кажуть, якщо не знаєш як помолитися, потрібно просто зайти і постояти в храмі, щоб наповнитися силою і енергією.
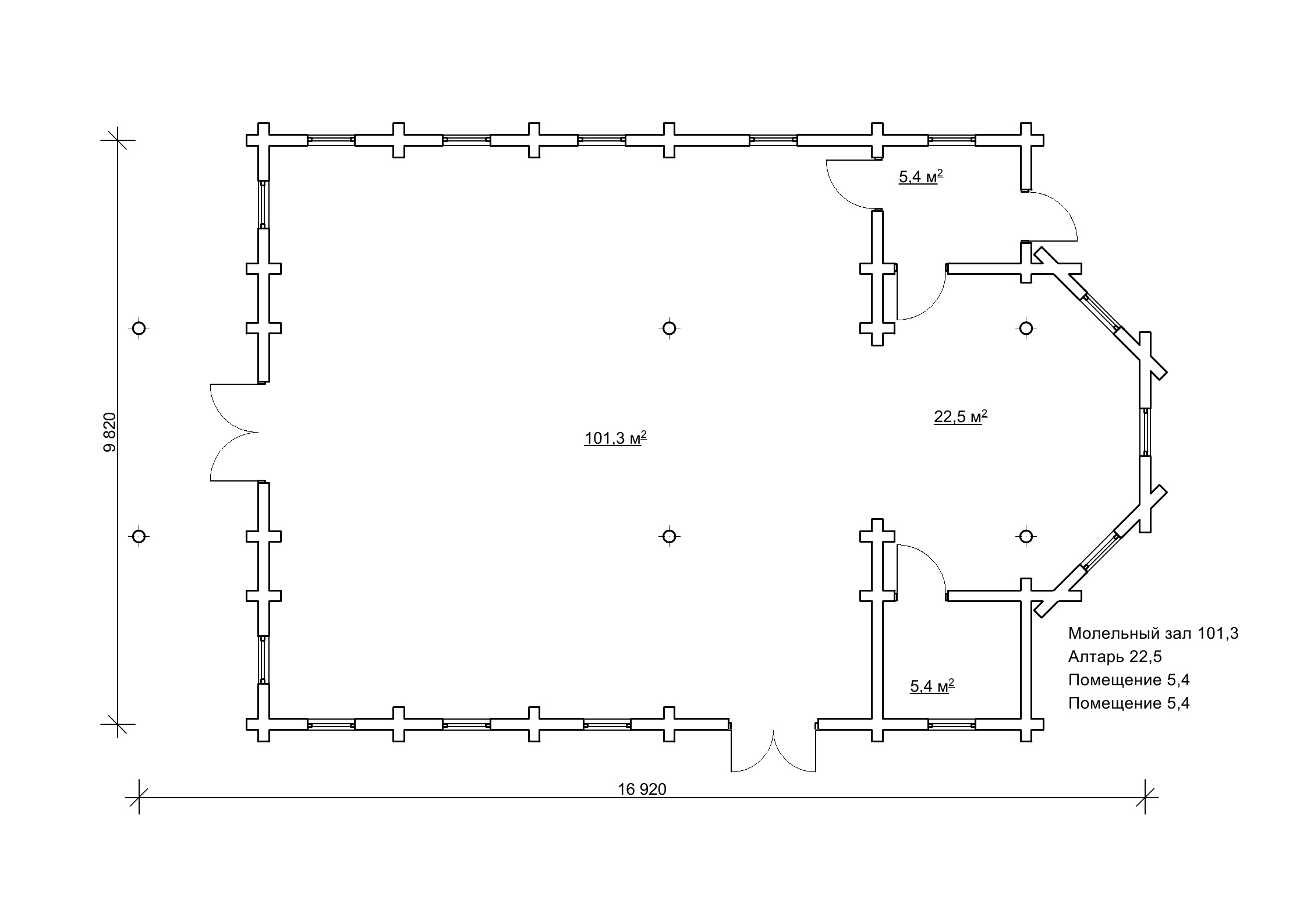
План дерев’яного храму площею 134,6 м2
Плануванням «Церкви Святого Архистратига Михаїла» - 2 дотримуються точно такі ж параметри забудови, як у вихідному проекті: ширина 9,8 м, довжина споруди 16,9 м. У молитовному залі храму, який розрахований на 101,3 м2, можна зібрати одночасно велику кількість прихожан. Крім молитовного залу, в храмі є вівтар 22,5 м2 і два приміщення для господарських потреб служителів церкви, кожне приміщення по 5,4 м2. Два входи з різних фасадів церкви дозволяють регулювати великий потік людей. Таким чином, натовп і метушня нікого не буде відволікати від бесіди з Богом в «Церкві Святого Архистратига Михаїла» - 2. У тандемі з нашими замовниками ми постаралися створити максимальний комфорт для відвідувачів церкви. Кожен, хто увійшов в храм повною мірою відчує красу і велич цієї світлої будівлі.
Дерев’яний храм на замовлення
Церква завжди об’єднує віруючих, несе добро і допомагає зберігати спокій в повсякденних, мирських справах. Великий досвід в церковному будівництві дозволяє нам пропонувати безліч готових проектів храмів і каплиць, які створювалися нашими архітекторами в кращих православних традиціях. Ми вже безліч разів зводили церкви як за готовими проектами, так і розробляли індивідуальні проектні рішення для храмових комплексів і монастирів, як, наприклад, Церква з бруса на 348 м2 - «Церква Іоанно-Предтеченського чоловічого монастиря» Якщо вас цікавить споруда храму під замовлення, набирайте нас за телефонами +38 097 012-38-52; +38 063 499-91-00, звертайтеся до онлайн консультанта, і ми втілимо в життя споруду сакральної будівлі. Це може бути і церква , і каплиця, і трапезна і будь-яка інша споруда храму зі зрубу.
- Кількість поверхів
- 1
- Площа
- 134.6
- Ширина
- 9.8
- Довжина
- 16.9
- Храми і каплиці
- Церкви
Базова комплектація:
(Що входить в ціну)
- комплект стін;
- комплект крокв;
- комплект балок перекриття;
- утеплювач міжвінцевий;
- антисептик (антисептування всього матеріалу);
- дубові нагеля;
- кріпильні материали (саморізи, усадкові болти, анкера, кріпильні пластини);
- гідроізоляція;
- вогнебіозахист (обробка деревини засобом І групи вогнезахисної ефективності)
622080 грн.
Дах (комплектність):
- Рейка 100*25мм (cосна)
- Контрейка 50*25мм (сосна)
- Металочерепиця МОНТЕРРЕЙ (Польща) 0,45мм
- Коник прямий
- Планка примикання
- Лобова (декоративна) планка
- Вітровая планка
- Яндола
- Капельник (Карнизна планка)
- Ущільнювач універсальный
- Саморізи ОС 4.8х35
- Фарба-спрей
- Гідробар'єр
- Монтаж
350800 грн.
Вікна (комплектність):
- Вікно VEKA 58, колір білий 10
- Імпости вертикальні: 1 x 102103
- Скління: СПО, 24мм, (Rсп=0.36)*
- Тип фурнітури: Activpilot поворотно-відкидна, колір білий
- Підбір спеціальний: Activ микровентиляція; Activ 2-функц. механ.
- Моск.сітка: МС 3
- Підвіконня: ВМ 110мм, колір білий
- Підвіконня: ПВ ПВХ 150, заглушки: 600мм, колір білий
- Монтаж
0 грн.
Двері (комплектність):
- Полотно
- Коробка
- Лиштва
- Карниз
- Фарбування
- Скло
- Фурнітура
- Врізка фурнітуры
- Монтаж
206584 грн.
Фарбування (комплектність):
- Шліфування торців
- Тришарове покриття ефективним деревозахисним засобом на базі низькомолекулярної алкідної смоли методом розпилення.
Оциліндрований брус
Оциліндрований брус є найбільш оптимальним і поширеним матеріалом для будівництва дерев`яних будинків і бань, бесідок, альтанок, різноманітних садових меблів, дерев`яних конструкцій будь-яких видів. Дерев`яні будинки з оциліндрованого брусу відрізняються красою, всередині такого будинку завжди відчувається особлива затишна атмосфера.
Профільований брус
Найсучаснішим і високотехнологічним будівельним матеріалом в дерев`яному будівництві на сьогоднішній день є профільований брус. Для виробництва профільованого брусу, звичайному дерев`яному брусу на спеціальному деревообробному обладнанні надається певний профіль.
Подвійний брус з утепленням
Головна ідея застосування подвійного бруса полягала в досягненні енергоефективності житла. Над проектуванням енергозберігаючих будинків працюють провідні інженери та архітектори в різних країнах світу, запропонована фінами технологія подвійного бруса дає можливість звести до мінімуму тепловтрати будинку, а також об`єднує переваги будівництва дерев`яного будинку з економічністю споруди.
Клеєний брус
Клеєний брус принципово відрізняється від інших типів колод багатошаровістю. Така структура робить цей дерев’яний матеріал надміцним і витривалим.
Каркасні конструкції
Каркасні конструкції виготовляються на власних виробничих потужностях компанії «Домінант», з використанням сучасних деревообробних станків. Імпортне, високоточне обладнання дозволяє нам високоякісно виконувати свою роботу. Каркаси складаються зі струганих, ретельно висушених балок 150х50 мм (сосна першого сорту). Ці балки застосовуються для зовнішніх каркасів.










