Пані
Баня з альтанкою зі зрубу, площа 42,8 м2 - «Пані»
- Кількість поверхів
- 1
- Площа
- 42.8
- Ширина
- 8.7
- Довжина
- 6
- Садові та господарські споруди
- Бані
Бані з оциліндрованого брусу
(Що входить в ціну)
- комплект стін;
- комплект крокв;
- комплект балок перекриття;
- утеплювач міжвінцевий;
- антисептик (антисептування всього матеріалу);
- дубові нагеля;
- кріпильні материали (саморізи, усадкові болти, анкера, кріпильні пластини);
- гідроізоляція;
- вогнебіозахист (обробка деревини засобом І групи вогнезахисної ефективності)
Проект лазні з альтанкою зі зрубу «Пані»
Вишуканий проект лазні «Пані» ушляхетнить будь-яку заміську ділянку. Округлості оциліндрованих стін разом з фігурними торцями завоюють серце справжнього естета і прихильника класичного стилю дерев’яної споруди. Адже перше, що привертає погляд - це незвичайний арковий тип торців зрубу з переходом довгого бруса в більш короткий від даху до фундаменту. Таке цікаве дизайнерське рішення робить дерев’яну лазню ошатною і візуально розширює параметри забудови. Це підкреслює і форма самого даху, різні рівні стін. Плавні контури проекту «Пані» можна порівняти з творіннями Гауді. Це вибір оригіналу, який хоче отримати для себе неповторну будову, якої більше немає ніде.
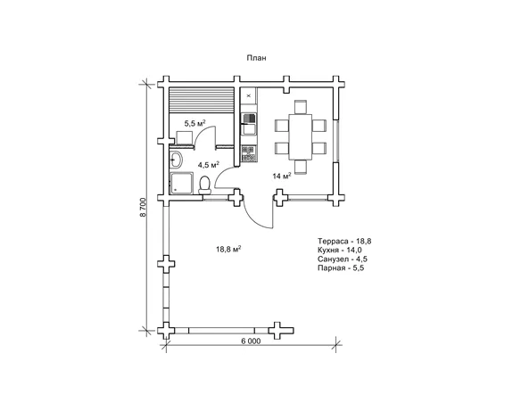
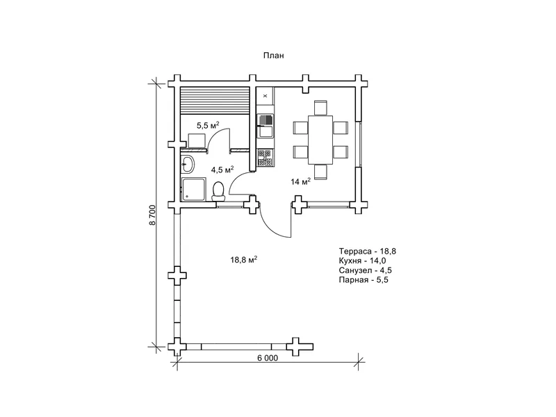
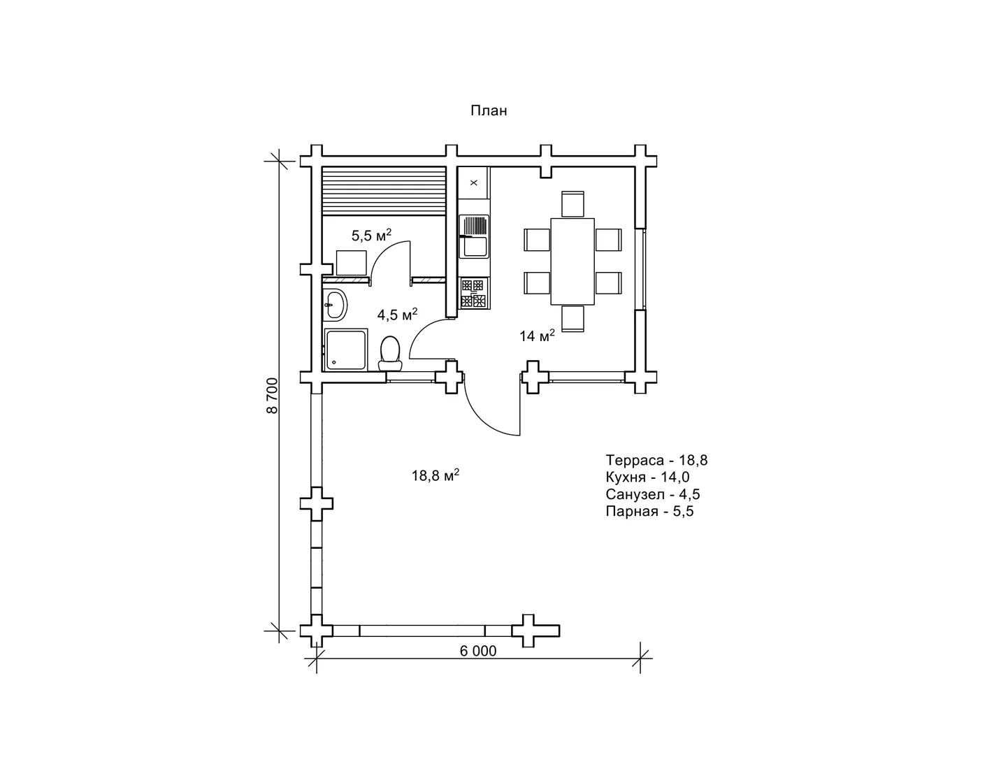
Планування лазні зі зрубу з альтанкою 8,7 на 6 м
Баня «Пані» займає площу 42,8 м2. Значну частину споруди, а саме 18,8 м2, становить альтанка, розташована під навісом лазні. Тут так чудово буде освіжитися і посидіти в приємній компанії після спекотних банних процедур. На терасі місця вистачить і для стола, і лавок навколо нього. Терасу біля лазні «Пані» можна зручно використовувати в якості самостійної альтанки. Якщо, наприклад, вам захочеться поснідати літнім ранком на свіжому повітрі. Усередині лазні розташована кухня і парилка з санвузлом і душем. 5,5 м2 парного приміщення цілком вистачить для того, щоб попаритися по-сімейному в невеликій компанії близьких людей. Можна зробити висновок, що проект лазні «Пані» - це скоріше сімейна лазня, ніж комерційний проект і рекомендується для приватного використання на прибудинковій території в тандемі з проектом маєтку з брусу 13,7х8,8 м «Скринька». Ці два чарівних зруби зроблять вашу ділянку стильною та унікальною!
Виготовлення та складання зрубу лазні з альтанкою за проектом «Пані»
Будівельники «Домінант» виготовлять і зберуть зруб лазні з альтанкою «Пані» під замовлення з гарантією якості. Ми завжди надаємо клієнтам будівельні послуги високого рівня, індивідуальний підхід (ви завжди зможете змінити і доповнити споруду на свій розсуд) і оригінальні архітектурні рішення - від класичної дерев’яної споруди до проектів в стилі хай-тек. Для замовлення зателефонуйте нам: +38 063 499-91-00; +38 097 012-38-52 (Viber; WhatsApp). Баня «Пані» пожвавить нудний ландшафт і зробить ваш дворик стильним і впізнаваним! Ми вкладаємо душу в створення і будівництво кожного проекту, тому наші будинки з брусу так люблять і замовляють в нашій країні і в різних куточках планети.
- Кількість поверхів
- 1
- Площа
- 42.8
- Ширина
- 8.7
- Довжина
- 6
- Садові та господарські споруди
- Бані
Бані з оциліндрованого брусу
Базова комплектація:
(Що входить в ціну)
- комплект стін;
- комплект крокв;
- комплект балок перекриття;
- утеплювач міжвінцевий;
- антисептик (антисептування всього матеріалу);
- дубові нагеля;
- кріпильні материали (саморізи, усадкові болти, анкера, кріпильні пластини);
- гідроізоляція;
- вогнебіозахист (обробка деревини засобом І групи вогнезахисної ефективності)
187110 грн.
Дах (комплектність):
- Рейка 100*25мм (cосна)
- Контрейка 50*25мм (сосна)
- Металочерепиця МОНТЕРРЕЙ (Польща) 0,45мм
- Коник прямий
- Планка примикання
- Лобова (декоративна) планка
- Вітровая планка
- Яндола
- Капельник (Карнизна планка)
- Ущільнювач універсальный
- Саморізи ОС 4.8х35
- Фарба-спрей
- Гідробар'єр
- Монтаж
105240 грн.
Вікна (комплектність):
- Вікно VEKA 58, колір білий 10
- Імпости вертикальні: 1 x 102103
- Скління: СПО, 24мм, (Rсп=0.36)*
- Тип фурнітури: Activpilot поворотно-відкидна, колір білий
- Підбір спеціальний: Activ микровентиляція; Activ 2-функц. механ.
- Моск.сітка: МС 3
- Підвіконня: ВМ 110мм, колір білий
- Підвіконня: ПВ ПВХ 150, заглушки: 600мм, колір білий
- Монтаж
41800 грн.
Двері (комплектність):
- Полотно
- Коробка
- Лиштва
- Карниз
- Фарбування
- Скло
- Фурнітура
- Врізка фурнітуры
- Монтаж
99820 грн.
Фарбування (комплектність):
- Шліфування торців
- Тришарове покриття ефективним деревозахисним засобом на базі низькомолекулярної алкідної смоли методом розпилення.
Оциліндрований брус
Оциліндрований брус є найбільш оптимальним і поширеним матеріалом для будівництва дерев`яних будинків і бань, бесідок, альтанок, різноманітних садових меблів, дерев`яних конструкцій будь-яких видів. Дерев`яні будинки з оциліндрованого брусу відрізняються красою, всередині такого будинку завжди відчувається особлива затишна атмосфера.
Профільований брус
Найсучаснішим і високотехнологічним будівельним матеріалом в дерев`яному будівництві на сьогоднішній день є профільований брус. Для виробництва профільованого брусу, звичайному дерев`яному брусу на спеціальному деревообробному обладнанні надається певний профіль.
Подвійний брус з утепленням
Головна ідея застосування подвійного бруса полягала в досягненні енергоефективності житла. Над проектуванням енергозберігаючих будинків працюють провідні інженери та архітектори в різних країнах світу, запропонована фінами технологія подвійного бруса дає можливість звести до мінімуму тепловтрати будинку, а також об`єднує переваги будівництва дерев`яного будинку з економічністю споруди.
Клеєний брус
Клеєний брус принципово відрізняється від інших типів колод багатошаровістю. Така структура робить цей дерев’яний матеріал надміцним і витривалим.
Каркасні конструкції
Каркасні конструкції виготовляються на власних виробничих потужностях компанії «Домінант», з використанням сучасних деревообробних станків. Імпортне, високоточне обладнання дозволяє нам високоякісно виконувати свою роботу. Каркаси складаються зі струганих, ретельно висушених балок 150х50 мм (сосна першого сорту). Ці балки застосовуються для зовнішніх каркасів.










