Майліс
- Кількість поверхів
- 1
- Площа
- 70
- Ширина
- 7
- Довжина
- 10
- Садові та господарські споруди
- Бані
Бані з оциліндрованого брусу
(Що входить в ціну)
- комплект стін;
- комплект крокв;
- комплект балок перекриття;
- утеплювач міжвінцевий;
- антисептик (антисептування всього матеріалу);
- дубові нагеля;
- кріпильні материали (саморізи, усадкові болти, анкера, кріпильні пластини);
- гідроізоляція;
- вогнебіозахист (обробка деревини засобом І групи вогнезахисної ефективності)
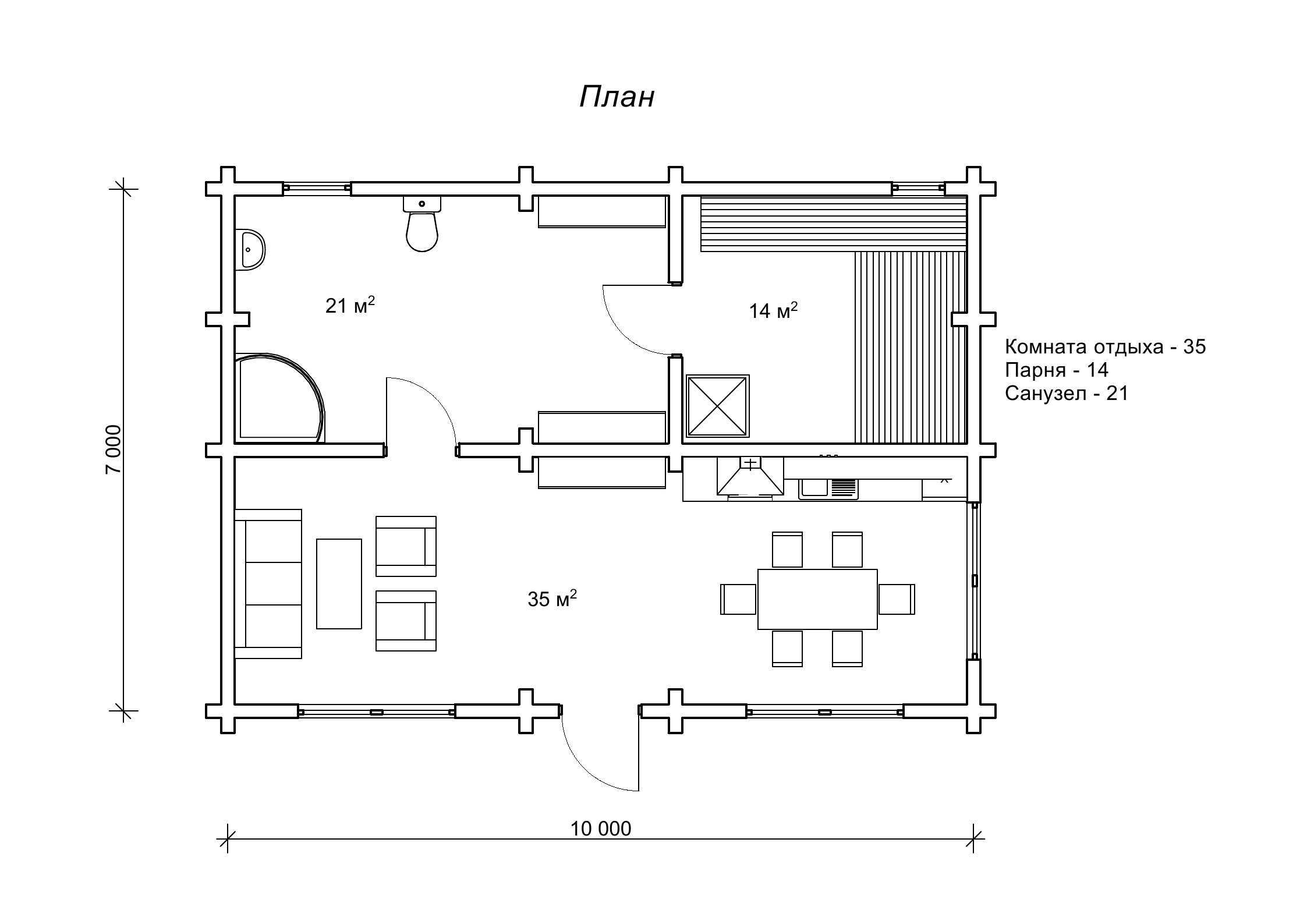
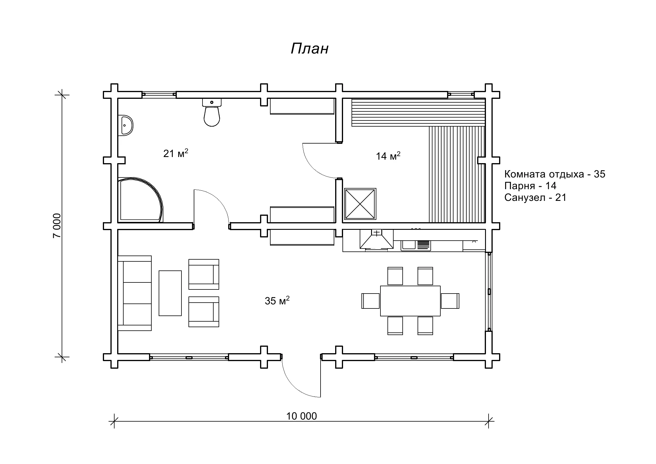
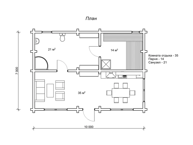
Проект дерев’яного зрубу лазні з кімнатою «Майліс»
У наш час жоден поважаючий себе заміський комплекс відпочинку або база відпочинку не обходиться без дерев’яної лазні. Проект дерев’яного зрубу лазні з кімнатою відпочинку «Майліс» спеціально створений для використання в комерційних цілях. Якщо ж ви хотіли б придбати дерев’яну лазню для своєї особистої заміської ділянки, то проект «Майліс» може послужити в якості повноцінного дачного будиночка. Класичний оциліндрований зруб «Майліс» з панорамними вікнами наповнить вашу ділянку особливою чарівністю і подарує масу приємних емоцій за рахунок можливості вдосталь попаритися в лазні.
Планування дерев’яного зрубу лазні з кімнатою, проект «Майліс»
Дерев’яний зруб лазні «Майліс» спроектований в зручних параметрах 7х10 м, в будівлі передбачено чотирьохсхилий дах. Простий, лаконічний дизайн дерев’яної лазні виділяється, мабуть, лише за рахунок великих панорамних вікон від підлоги до стелі. Завдяки великим, красивим вікнам в просторій кімнаті відпочинку площею 35 м2 буде приємно проводити час, спостерігаючи красу навколишніх краєвидів. Крім просторої кімнати відпочинку в лазні «Майліс» передбачена велика парилка площею 14 м2, де можна буде паритися одночасно в компанії з друзями. У приміщенні поряд з лазнею можна буде розташувати не тільки санвузол, а й купіль, наприклад, або мініатюрний басейн з холодною водою для любителів контрастних процедур. Таким чином, планування дерев’яного зрубу «Майліс» з кімнатою і великою парилкою робить цей проект дуже вигідним в якості лазні для бізнесу.
Виробництво і будівництво дерев’яного зрубу лазні 7х10 м
Проект лазні з дерева «Майліс» - це один з найбільш економічних і популярних варіантів комерційної лазні з бруса. Симпатична, компактна банька з оциліндрованих колод швидко виправдовує вкладені у будівництво кошти і приносить гарний прибуток. Замовити виробництво і будівництво дерев’яного зрубу лазні 7х10 м за готовим проектом «Майліс» можна звернувшись в офіс компанії «Домінант» за контактними даними, зазначеним на сайті. Тут вам гарантуються високоякісні будівельні послуги, індивідуальний підхід до кожного замовлення і дизайн проектів на будь який смак - ми завжди пропонуємо нашим замовникам тільки найкраще! За вашим бажанням ми залюбки додамо ще приміщень у планування, змонтуємо перегородки або запропонуємо свайний фундамент, щоб будівля була ідеально підготовлена саме для вас. Український виробник «Домінант» вкладає душу в будівництво кожного проекту, ми пишаємося тим фактом, що наші проекти дерев’яних будинків постійно реалізуються не тільки в Україні, але й в інших країнах.
- Кількість поверхів
- 1
- Площа
- 70
- Ширина
- 7
- Довжина
- 10
- Садові та господарські споруди
- Бані
Бані з оциліндрованого брусу
Базова комплектація:
(Що входить в ціну)
- комплект стін;
- комплект крокв;
- комплект балок перекриття;
- утеплювач міжвінцевий;
- антисептик (антисептування всього матеріалу);
- дубові нагеля;
- кріпильні материали (саморізи, усадкові болти, анкера, кріпильні пластини);
- гідроізоляція;
- вогнебіозахист (обробка деревини засобом І групи вогнезахисної ефективності)
243000 грн.
Дах (комплектність):
- Рейка 100*25мм (cосна)
- Контрейка 50*25мм (сосна)
- Металочерепиця МОНТЕРРЕЙ (Польща) 0,45мм
- Коник прямий
- Планка примикання
- Лобова (декоративна) планка
- Вітровая планка
- Яндола
- Капельник (Карнизна планка)
- Ущільнювач універсальный
- Саморізи ОС 4.8х35
- Фарба-спрей
- Гідробар'єр
- Монтаж
263100 грн.
Вікна (комплектність):
- Вікно VEKA 58, колір білий 10
- Імпости вертикальні: 1 x 102103
- Скління: СПО, 24мм, (Rсп=0.36)*
- Тип фурнітури: Activpilot поворотно-відкидна, колір білий
- Підбір спеціальний: Activ микровентиляція; Activ 2-функц. механ.
- Моск.сітка: МС 3
- Підвіконня: ВМ 110мм, колір білий
- Підвіконня: ПВ ПВХ 150, заглушки: 600мм, колір білий
- Монтаж
62700 грн.
Двері (комплектність):
- Полотно
- Коробка
- Лиштва
- Карниз
- Фарбування
- Скло
- Фурнітура
- Врізка фурнітуры
- Монтаж
95480 грн.
Фарбування (комплектність):
- Шліфування торців
- Тришарове покриття ефективним деревозахисним засобом на базі низькомолекулярної алкідної смоли методом розпилення.
Оциліндрований брус
Оциліндрований брус є найбільш оптимальним і поширеним матеріалом для будівництва дерев`яних будинків і бань, бесідок, альтанок, різноманітних садових меблів, дерев`яних конструкцій будь-яких видів. Дерев`яні будинки з оциліндрованого брусу відрізняються красою, всередині такого будинку завжди відчувається особлива затишна атмосфера.
Профільований брус
Найсучаснішим і високотехнологічним будівельним матеріалом в дерев`яному будівництві на сьогоднішній день є профільований брус. Для виробництва профільованого брусу, звичайному дерев`яному брусу на спеціальному деревообробному обладнанні надається певний профіль.
Подвійний брус з утепленням
Головна ідея застосування подвійного бруса полягала в досягненні енергоефективності житла. Над проектуванням енергозберігаючих будинків працюють провідні інженери та архітектори в різних країнах світу, запропонована фінами технологія подвійного бруса дає можливість звести до мінімуму тепловтрати будинку, а також об`єднує переваги будівництва дерев`яного будинку з економічністю споруди.
Клеєний брус
Клеєний брус принципово відрізняється від інших типів колод багатошаровістю. Така структура робить цей дерев’яний матеріал надміцним і витривалим.
Каркасні конструкції
Каркасні конструкції виготовляються на власних виробничих потужностях компанії «Домінант», з використанням сучасних деревообробних станків. Імпортне, високоточне обладнання дозволяє нам високоякісно виконувати свою роботу. Каркаси складаються зі струганих, ретельно висушених балок 150х50 мм (сосна першого сорту). Ці балки застосовуються для зовнішніх каркасів.











