Голубонька
- Кількість поверхів
- 1
- Площа
- 63.9
- Ширина
- 7
- Довжина
- 12
- Садові та господарські споруди
- Бані
Бані з профільованого брусу
(Що входить в ціну)
- комплект стін;
- комплект крокв;
- комплект балок перекриття;
- утеплювач міжвінцевий;
- антисептик (антисептування всього матеріалу);
- дубові нагеля;
- кріпильні материали (саморізи, усадкові болти, анкера, кріпильні пластини);
- гідроізоляція;
- вогнебіозахист (обробка деревини засобом І групи вогнезахисної ефективності)
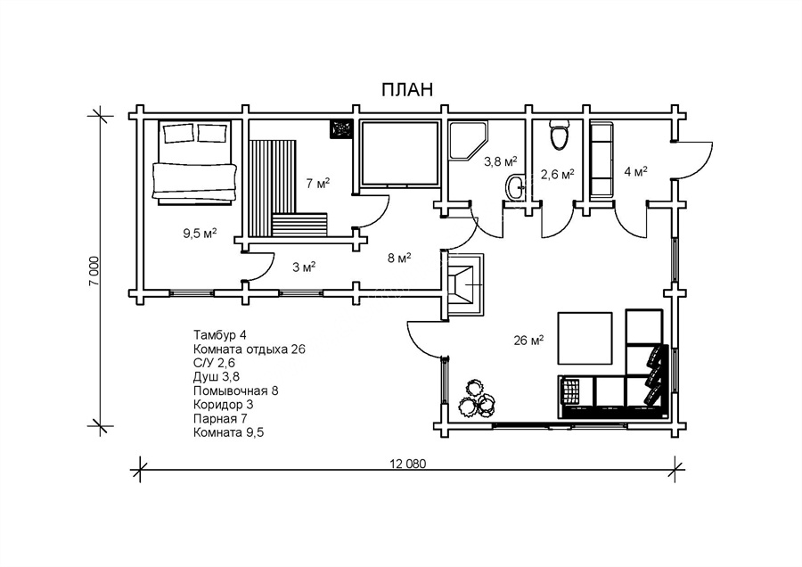
Сучасні стрімкі темпи життя зумовлюють необхідність хорошого розслаблення і оздоровлення, а також зміцнення нервової системи. З цим відмінно допоможе впоратися наша затишна банька Голубонька. Дана лазня виконана з цільного профільованого бруса вакуумної сушки, що значно підвищує експлуатаційні властивості будівлі. Внутрішнє планування містить тамбур, простору кімнату для відпочинку з м’яким куточком, душ, санвузол, помивочну, парилку і спальню. У проекті оптимально продумані і розміщені всі приміщення для прийняття банних процедур, комфортного відпочинку і оздоровлення.
Баня Голубонька вдало поєднує зовнішню привабливість і внутрішню затишну обстановку. Одна назва вже вселяє прихильність до цього проекту. Одного погляду на нього достатньо, щоб зрозуміти, що це багатофункціональна прикраса вашої ділянки. І неважливо чим ви володієте: дачною ділянкою невеликих розмірів або акрами землі. У першому варіанті ця банька замінить вам житловий дачний будиночок, так як має все необхідне для незалежного і зручного проживання за містом. У другому, ця банька може нести набагато більше функцій: тут можна розмістити гостей, просто попаритися або провести невелике рандеву з друзями.
Симпатичною Голубоньку dominant-wood.com.ua/uk/proekty/864-golubonka робить огороджена невисоким бортом тераса, що тягнеться уздовж всього будинку. Вона налаштовує на те, щоб зупинитися і відпочити тут, сидячи в кріслі-гойдалці і сигарою в руках. Але не тільки це.
Також всередині цієї будівлі є багато переваг і плюсів, які вас порадують. Наприклад, басейн або містка парилка, простора кімната відпочинку та інше. При необхідності компанія «Домінант» dominant-wood.com.ua/uk може переобладнати приміщення під кухню або додати-прибрати секції на ваш розсуд.
- Кількість поверхів
- 1
- Площа
- 63.9
- Ширина
- 7
- Довжина
- 12
- Садові та господарські споруди
- Бані
Бані з профільованого брусу
Базова комплектація:
(Що входить в ціну)
- комплект стін;
- комплект крокв;
- комплект балок перекриття;
- утеплювач міжвінцевий;
- антисептик (антисептування всього матеріалу);
- дубові нагеля;
- кріпильні материали (саморізи, усадкові болти, анкера, кріпильні пластини);
- гідроізоляція;
- вогнебіозахист (обробка деревини засобом І групи вогнезахисної ефективності)
267300 грн.
Дах (комплектність):
- Рейка 100*25мм (cосна)
- Контрейка 50*25мм (сосна)
- Металочерепиця МОНТЕРРЕЙ (Польща) 0,45мм
- Коник прямий
- Планка примикання
- Лобова (декоративна) планка
- Вітровая планка
- Яндола
- Капельник (Карнизна планка)
- Ущільнювач універсальный
- Саморізи ОС 4.8х35
- Фарба-спрей
- Гідробар'єр
- Монтаж
192940 грн.
Вікна (комплектність):
- Вікно VEKA 58, колір білий 10
- Імпости вертикальні: 1 x 102103
- Скління: СПО, 24мм, (Rсп=0.36)*
- Тип фурнітури: Activpilot поворотно-відкидна, колір білий
- Підбір спеціальний: Activ микровентиляція; Activ 2-функц. механ.
- Моск.сітка: МС 3
- Підвіконня: ВМ 110мм, колір білий
- Підвіконня: ПВ ПВХ 150, заглушки: 600мм, колір білий
- Монтаж
0 грн.
Двері (комплектність):
- Полотно
- Коробка
- Лиштва
- Карниз
- Фарбування
- Скло
- Фурнітура
- Врізка фурнітуры
- Монтаж
91140 грн.
Фарбування (комплектність):
- Шліфування торців
- Тришарове покриття ефективним деревозахисним засобом на базі низькомолекулярної алкідної смоли методом розпилення.
Оциліндрований брус
Оциліндрований брус є найбільш оптимальним і поширеним матеріалом для будівництва дерев`яних будинків і бань, бесідок, альтанок, різноманітних садових меблів, дерев`яних конструкцій будь-яких видів. Дерев`яні будинки з оциліндрованого брусу відрізняються красою, всередині такого будинку завжди відчувається особлива затишна атмосфера.
Профільований брус
Найсучаснішим і високотехнологічним будівельним матеріалом в дерев`яному будівництві на сьогоднішній день є профільований брус. Для виробництва профільованого брусу, звичайному дерев`яному брусу на спеціальному деревообробному обладнанні надається певний профіль.
Подвійний брус з утепленням
Головна ідея застосування подвійного бруса полягала в досягненні енергоефективності житла. Над проектуванням енергозберігаючих будинків працюють провідні інженери та архітектори в різних країнах світу, запропонована фінами технологія подвійного бруса дає можливість звести до мінімуму тепловтрати будинку, а також об`єднує переваги будівництва дерев`яного будинку з економічністю споруди.
Клеєний брус
Клеєний брус принципово відрізняється від інших типів колод багатошаровістю. Така структура робить цей дерев’яний матеріал надміцним і витривалим.
Каркасні конструкції
Каркасні конструкції виготовляються на власних виробничих потужностях компанії «Домінант», з використанням сучасних деревообробних станків. Імпортне, високоточне обладнання дозволяє нам високоякісно виконувати свою роботу. Каркаси складаються зі струганих, ретельно висушених балок 150х50 мм (сосна першого сорту). Ці балки застосовуються для зовнішніх каркасів.










