Сольвай
- Кількість поверхів
- 1
- Площа
- 30.3
- Ширина
- 4
- Довжина
- 7.9
- Будинки з брусу
- Будинки з клеєного брусу
Будинки з профільованого брусу - Комерційні будівлі
- Офіси
(Що входить в ціну)
- комплект стін;
- комплект крокв;
- комплект балок перекриття;
- утеплювач міжвінцевий;
- антисептик (антисептування всього матеріалу);
- дубові нагеля;
- кріпильні материали (саморізи, усадкові болти, анкера, кріпильні пластини);
- гідроізоляція;
- вогнебіозахист (обробка деревини засобом І групи вогнезахисної ефективності)
Проект одноповерхового офісу з бруса «Сольвай»
Проект «Сольвай» є стильним, невеличким офісом з бруса з великими вікнами і дверима накшталт вікон. За рахунок такої значної площі скління будівля виглядає легкою, повітряною і наповненою світлом. В такому офісному приміщенні цікаво і приємно знаходитися, навколишня атмосфера сприяє гарному настрою і робочому натхненню співробітників. А зручне внутрішнє планування, робить дерев’яний офіс «Сольвай» ще більш привабливим.
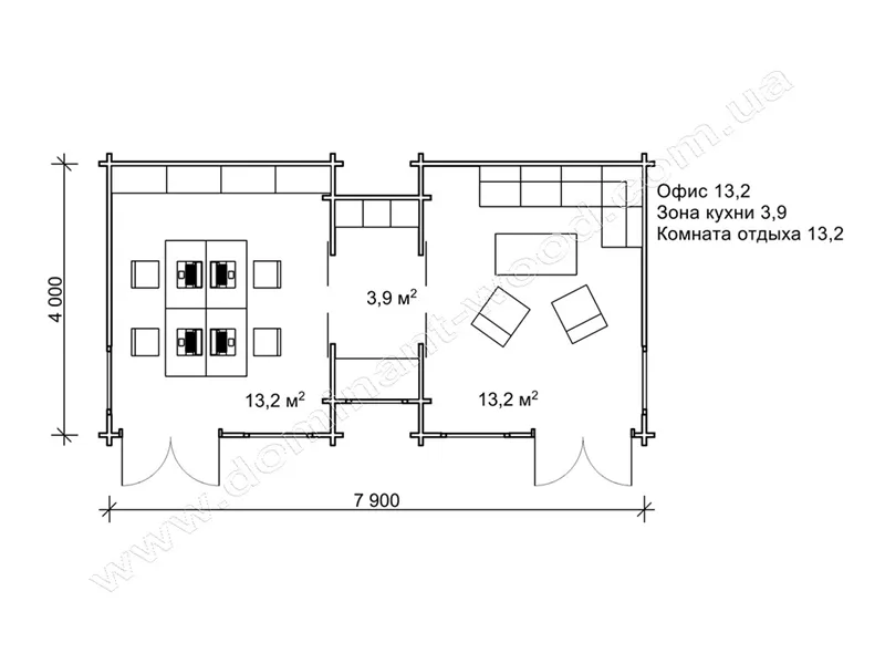
Планування кімнат в офісі 4х7,9 м
Внутрішнє наповнення офісу «Сольвай» включає одну кімнату на чотири робочих місця, кухонну зону, яка займає 3,9 м2, а також другу кімнату, спеціально сплановану для відпочинку співробітників, яка за площею однакова з офісним приміщенням і містить 13,2 м2. Кімнату відпочинку можна також використовувати як конференц-зал або як офіс для презентацій, переговорів і зустрічей з клієнтами. У будівлі відсутній санвузол, це говорить про те, що споруда спроектована як частина офісно-торгівельного комплексу або є адміністративним приміщенням на підприємстві з великою промисловою територією.
Будівництво одноповерхового офісу з бруса, 30,3 м2
Хто повірить, що щоденні походи на роботу можуть стати радістю в реальному житті? Насправді можуть! Запитайте у наших шановних клієнтів, які вже замовили будівництво офісу з бруса в «Домінант». Ми пропонуємо тільки кращі проекти - будівництво дерев’яного офісу стане кращим вибором для створення приємної робочої атмосфери в колективі і теплого домашнього затишку. Крім того, рішення придбати брусових офіс позитивно позначиться на іміджі підприємства і додасть престижу керівництву!
- Кількість поверхів
- 1
- Площа
- 30.3
- Ширина
- 4
- Довжина
- 7.9
- Будинки з брусу
- Будинки з клеєного брусу
Будинки з профільованого брусу - Комерційні будівлі
- Офіси
Базова комплектація:
(Що входить в ціну)
- комплект стін;
- комплект крокв;
- комплект балок перекриття;
- утеплювач міжвінцевий;
- антисептик (антисептування всього матеріалу);
- дубові нагеля;
- кріпильні материали (саморізи, усадкові болти, анкера, кріпильні пластини);
- гідроізоляція;
- вогнебіозахист (обробка деревини засобом І групи вогнезахисної ефективності)
114210 грн.
Дах (комплектність):
- Рейка 100*25мм (cосна)
- Контрейка 50*25мм (сосна)
- Металочерепиця МОНТЕРРЕЙ (Польща) 0,45мм
- Коник прямий
- Планка примикання
- Лобова (декоративна) планка
- Вітровая планка
- Яндола
- Капельник (Карнизна планка)
- Ущільнювач універсальный
- Саморізи ОС 4.8х35
- Фарба-спрей
- Гідробар'єр
- Монтаж
122780 грн.
Вікна (комплектність):
- Вікно VEKA 58, колір білий 10
- Імпости вертикальні: 1 x 102103
- Скління: СПО, 24мм, (Rсп=0.36)*
- Тип фурнітури: Activpilot поворотно-відкидна, колір білий
- Підбір спеціальний: Activ микровентиляція; Activ 2-функц. механ.
- Моск.сітка: МС 3
- Підвіконня: ВМ 110мм, колір білий
- Підвіконня: ПВ ПВХ 150, заглушки: 600мм, колір білий
- Монтаж
146300 грн.
Двері (комплектність):
- Полотно
- Коробка
- Лиштва
- Карниз
- Фарбування
- Скло
- Фурнітура
- Врізка фурнітуры
- Монтаж
132804 грн.
Фарбування (комплектність):
- Шліфування торців
- Тришарове покриття ефективним деревозахисним засобом на базі низькомолекулярної алкідної смоли методом розпилення.
Оциліндрований брус
Оциліндрований брус є найбільш оптимальним і поширеним матеріалом для будівництва дерев`яних будинків і бань, бесідок, альтанок, різноманітних садових меблів, дерев`яних конструкцій будь-яких видів. Дерев`яні будинки з оциліндрованого брусу відрізняються красою, всередині такого будинку завжди відчувається особлива затишна атмосфера.
Профільований брус
Найсучаснішим і високотехнологічним будівельним матеріалом в дерев`яному будівництві на сьогоднішній день є профільований брус. Для виробництва профільованого брусу, звичайному дерев`яному брусу на спеціальному деревообробному обладнанні надається певний профіль.
Подвійний брус з утепленням
Головна ідея застосування подвійного бруса полягала в досягненні енергоефективності житла. Над проектуванням енергозберігаючих будинків працюють провідні інженери та архітектори в різних країнах світу, запропонована фінами технологія подвійного бруса дає можливість звести до мінімуму тепловтрати будинку, а також об`єднує переваги будівництва дерев`яного будинку з економічністю споруди.
Клеєний брус
Клеєний брус принципово відрізняється від інших типів колод багатошаровістю. Така структура робить цей дерев’яний матеріал надміцним і витривалим.
Каркасні конструкції
Каркасні конструкції виготовляються на власних виробничих потужностях компанії «Домінант», з використанням сучасних деревообробних станків. Імпортне, високоточне обладнання дозволяє нам високоякісно виконувати свою роботу. Каркаси складаються зі струганих, ретельно висушених балок 150х50 мм (сосна першого сорту). Ці балки застосовуються для зовнішніх каркасів.










