Зателефонуйте мені
Сапфір №1
Сапфір №2
Сапфір №3
Сапфір №4
Сапфір №5
Сапфір №6
Сапфір №7
Сапфір №1
Сапфір №2
Сапфір №3
Сапфір №4
Сапфір №5
Сапфір №6
Сапфір №7
Сапфір №1
Сапфір №1 Сапфір №2 Сапфір №3 Сапфір №4 Сапфір №5 Сапфір №6 Сапфір №7

Сапфір

1 756 003,00 ₴
Красивий особняк 11,5 на 16 м - «Сапфір»
Розмір брусу
  • Оциліндрований 160
  • Оциліндрований 180
  • Оциліндрований 200
  • Оциліндрований 220
  • Профільований 60
  • Профільований 150
  • Профільований 200
  • Подвійний 300
  • Клеєний 120
  • Клеєний 180
Кількість поверхів
2
Площа
289.81
Ширина
11.5
Довжина
16
Будинки і житлові будови
Маєтки
Садиби
Кількість кімнат
Чотирикімнатні будинки
Особливості будинків
Будинки з балконом
Будинки з котельнею
Будинки з мансардою
Будинки з терасою
Будинки зі сходами
Кількість поверхів споруди
Двоповерхові будинки
Будинки з брусу
Будинки з оциліндрованого брусу
 

(Що входить в ціну)

Що входить в базову комплектацію

  • комплект стін;
  • комплект крокв;
  • комплект балок перекриття;
  • утеплювач міжвінцевий;
  • антисептик (антисептування всього матеріалу);
  • дубові нагеля;
  • кріпильні материали (саморізи, усадкові болти, анкера, кріпильні пластини);
  • гідроізоляція;
  • вогнебіозахист (обробка деревини засобом І групи вогнезахисної ефективності)

Оригінальний проект двоповерхового будинку з другим світлом. З особливостей проекту варто відзначити цікаві фасадні рішення. У плануванні будинку звертає на себе увагу просторий зал, в якому кухня поєднується з вітальнею. Проектом передбачено наявність житлової кімнати на першому поверсі. В цілому Сапфір dominant-wood.com.ua/uk/proekty/68-sapfir - великий, дуже світлий, будинок для проживання, а також сезонного відпочинку в колі сім’ї або компанії друзів. Одна назва цього будинку говорить сама за себе. Як дорогоцінний камінь, цей будинок став прикладом для всіх, хто хоче придбати солідний особняк. Він красивий, модний, сучасний, дуже просторий і витончений. Дерево - такий матеріал, який завжди надає масивності. Тому дуже складно зробити виріб з бруса елегантним і витонченим, але, все ж, майстрам компанії «Домінант» dominant-wood.com.ua/uk/ це вдалося з успіхом.

Чого тільки варте друге світло. Адже такий дизайнерський хід дозволяє господарям особняка отримати величезний зал заввишки в два поверхи, що дозволяє грати з текстурою стін у внутрішній обробці, отримати об’ємне світло і створити неповторну акустику. Так само це дозволяє грати рівнями приміщень і, при грамотній дизайнерській роботі з інтер’єром, ваш особняк стане прикладом для наслідування і іконою стилю.

Що ж стосується матеріалів будинку, то ніщо не заважає використовувати у внутрішній обробці кам’яні текстури (якщо ви любитель каменю) або конструкції з пластика і металу (якщо ви любитель хай-тека). Яку техніку виконання ви б не вибрали, з деревом поєднується все. Образ, який навіває цей будинок, відразу зачаровує. Той, хто побуває в ньому, захоче залишитися тут назавжди і бути господарем цього шедевра.

Кількість поверхів
2
Площа
289.81
Ширина
11.5
Довжина
16
Будинки і житлові будови
Маєтки
Садиби
Кількість кімнат
Чотирикімнатні будинки
Особливості будинків
Будинки з балконом
Будинки з котельнею
Будинки з мансардою
Будинки з терасою
Будинки зі сходами
Кількість поверхів споруди
Двоповерхові будинки
Будинки з брусу
Будинки з оциліндрованого брусу

Базова комплектація:
(Що входить в ціну)

Що входить в базову комплектацію

  • комплект стін;
  • комплект крокв;
  • комплект балок перекриття;
  • утеплювач міжвінцевий;
  • антисептик (антисептування всього матеріалу);
  • дубові нагеля;
  • кріпильні материали (саморізи, усадкові болти, анкера, кріпильні пластини);
  • гідроізоляція;
  • вогнебіозахист (обробка деревини засобом І групи вогнезахисної ефективності)

673110 грн.

Дах (комплектність):

  • Рейка 100*25мм (cосна)
  • Контрейка 50*25мм (сосна)
  • Металочерепиця МОНТЕРРЕЙ (Польща) 0,45мм
  • Коник прямий
  • Планка примикання
  • Лобова (декоративна) планка
  • Вітровая планка
  • Яндола
  • Капельник (Карнизна планка)
  • Ущільнювач універсальный
  • Саморізи ОС 4.8х35
  • Фарба-спрей
  • Гідробар'єр
  • Монтаж

999780 грн.

Вікна (комплектність):

  • Вікно VEKA 58, колір білий 10
  • Імпости вертикальні: 1 x 102103
  • Скління: СПО, 24мм, (Rсп=0.36)*
  • Тип фурнітури: Activpilot поворотно-відкидна, колір білий
  • Підбір спеціальний: Activ микровентиляція; Activ 2-функц. механ.
  • Моск.сітка: МС 3
  • Підвіконня: ВМ 110мм, колір білий
  • Підвіконня: ПВ ПВХ 150, заглушки: 600мм, колір білий
  • Монтаж

0 грн.

Двері (комплектність):

  • Полотно
  • Коробка
  • Лиштва
  • Карниз
  • Фарбування
  • Скло
  • Фурнітура
  • Врізка фурнітуры
  • Монтаж

201376 грн.

Фарбування (комплектність):

  • Шліфування торців
  • Тришарове покриття ефективним деревозахисним засобом на базі низькомолекулярної алкідної смоли методом розпилення.

Параметри забудови

  • Кількість поверхів: 2
  • Площа: 289.81

Розмір забудови

  • Ширина: 11.5
  • Довжина: 16

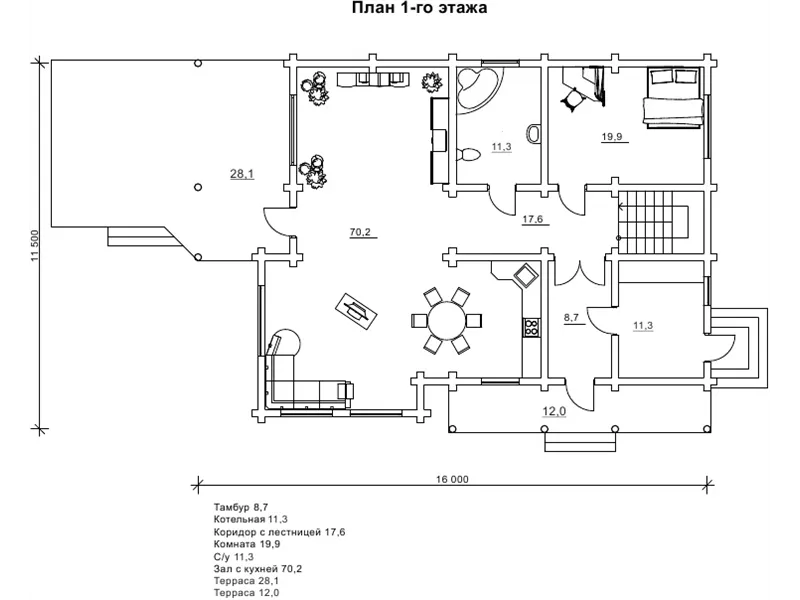
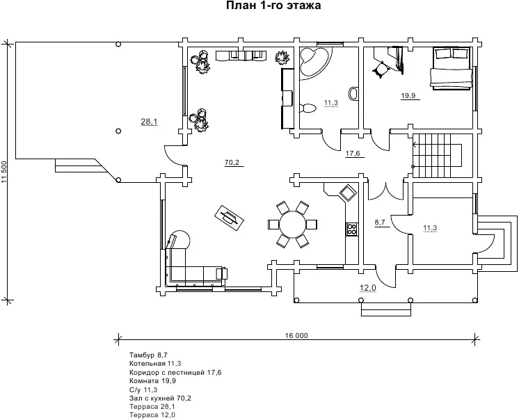
Перший поверх

зал (м²)70,2
кімната (м²)19,9
сходова зона (м²)17,6
с/в (м²)11,3
тамбур (м²)8,7
тераса (м²)28,1
тераса (м²)12
топкова (м²)11,3

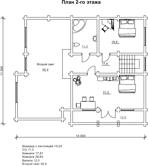
Другий поверх

балкон (м²)12
друге світло (м²)58,9
кімната (м²)17,91
кімната (м²)28,63
сходова зона (м²)15,24
с/в (м²)11,3

Оциліндрований брус

Оциліндрований брус є найбільш оптимальним і поширеним матеріалом для будівництва дерев`яних будинків і бань, бесідок, альтанок, різноманітних садових меблів, дерев`яних конструкцій будь-яких видів. Дерев`яні будинки з оциліндрованого брусу відрізняються красою, всередині такого будинку завжди відчувається особлива затишна атмосфера.

Читати далі...

Профільований брус

Найсучаснішим і високотехнологічним будівельним матеріалом в дерев`яному будівництві на сьогоднішній день є профільований брус. Для виробництва профільованого брусу, звичайному дерев`яному брусу на спеціальному деревообробному обладнанні надається певний профіль.

Читати далі...

Подвійний брус з утепленням

Головна ідея застосування подвійного бруса полягала в досягненні енергоефективності житла. Над проектуванням енергозберігаючих будинків працюють провідні інженери та архітектори в різних країнах світу, запропонована фінами технологія подвійного бруса дає можливість звести до мінімуму тепловтрати будинку, а також об`єднує переваги будівництва дерев`яного будинку з економічністю споруди.

Читати далі...

Клеєний брус

Клеєний брус принципово відрізняється від інших типів колод багатошаровістю. Така структура робить цей дерев’яний матеріал надміцним і витривалим.

Читати далі...

Каркасні конструкції

Каркасні конструкції виготовляються на власних виробничих потужностях компанії «Домінант», з використанням сучасних деревообробних станків. Імпортне, високоточне обладнання дозволяє нам високоякісно виконувати свою роботу. Каркаси складаються зі струганих, ретельно висушених балок 150х50 мм (сосна першого сорту). Ці балки застосовуються для зовнішніх каркасів.

Читати далі...

Немає відгуків

Переглянуті товари

16 інших товарів в цій категорії:

Товар додано для порівняння.