Естром
- Кількість поверхів
- 1
- Площа
- 239.6
- Ширина
- 12
- Довжина
- 23
- Будинки і житлові будови
- Вілли
Котеджі
Садиби - Кількість кімнат
- Трикімнатні будинки
- Особливості будинків
- Будинки з навісом
Будинки з терасою - Будинки з брусу
- Будинки з клеєного брусу
Будинки з профільованого брусу
(Що входить в ціну)
- комплект стін;
- комплект крокв;
- комплект балок перекриття;
- утеплювач міжвінцевий;
- антисептик (антисептування всього матеріалу);
- дубові нагеля;
- кріпильні материали (саморізи, усадкові болти, анкера, кріпильні пластини);
- гідроізоляція;
- вогнебіозахист (обробка деревини засобом І групи вогнезахисної ефективності)
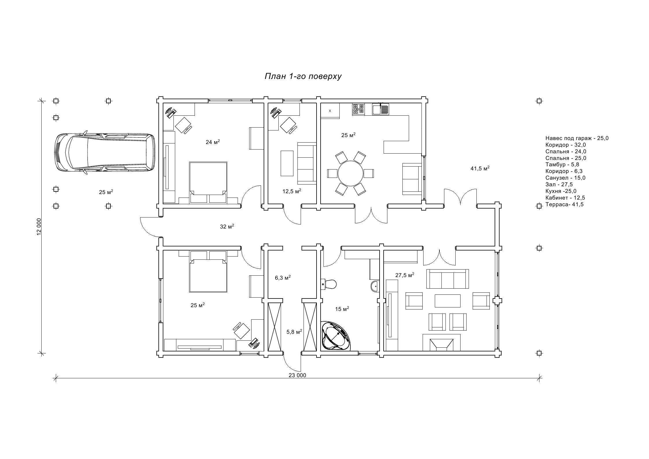
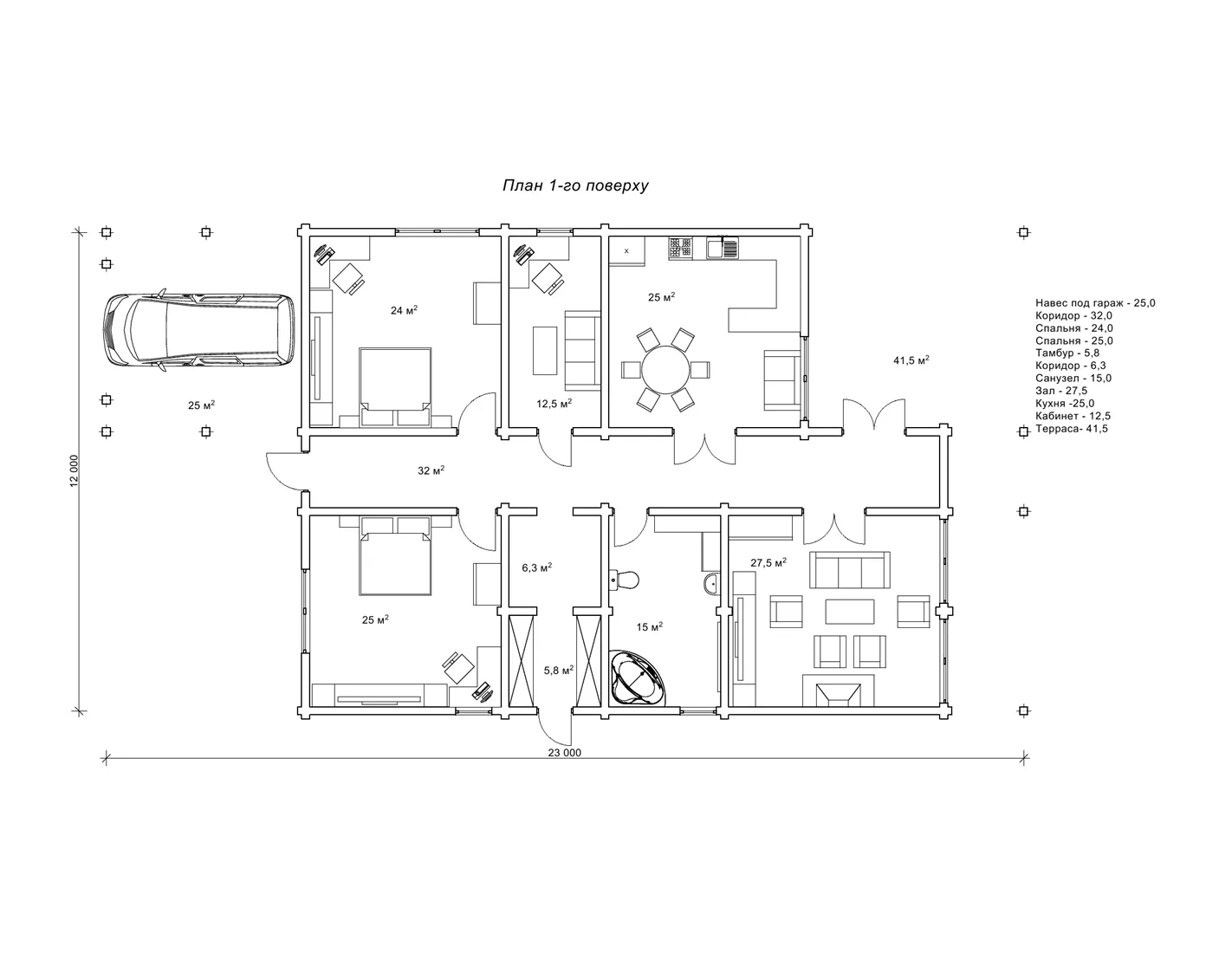
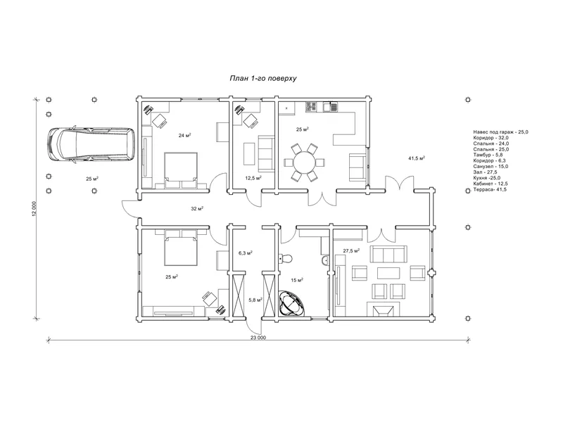
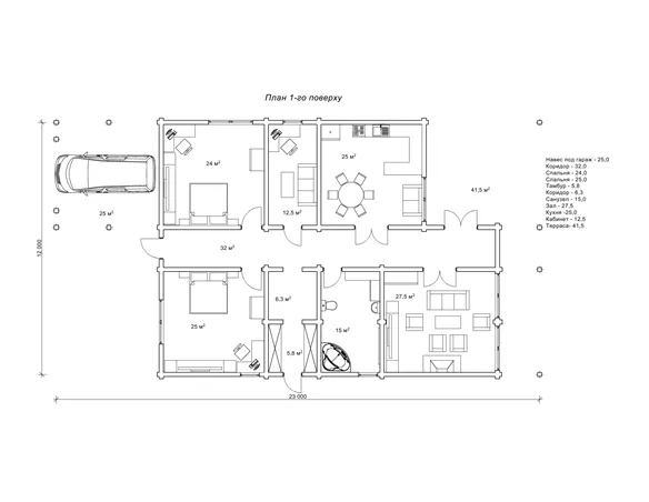
Проект будинку з навісом для автомобіля «Естром»
Під масивним дахом одноповерхового дерев’яного будинку «Естром» є не тільки житлові кімнати, але і величезна тераса, а також навіс для автомобіля. Проект «Естром» виконується з сухого соснового брусу. Тераса в обрамленні потужних дерев’яних колон викликає відчуття надійності і фундаментальності споруди. Громіздкість даху і навісів розбавлена легкістю, створюваної завдяки великим, панорамним вікнам. Істотна площа скління робить будинок витонченим і наповненим світлом. Якщо ви придивитеся до внутрішнього планування проекту, вона вам точно сподобається не менше, ніж ефектний екстер’єр дерев’яного зрубу.
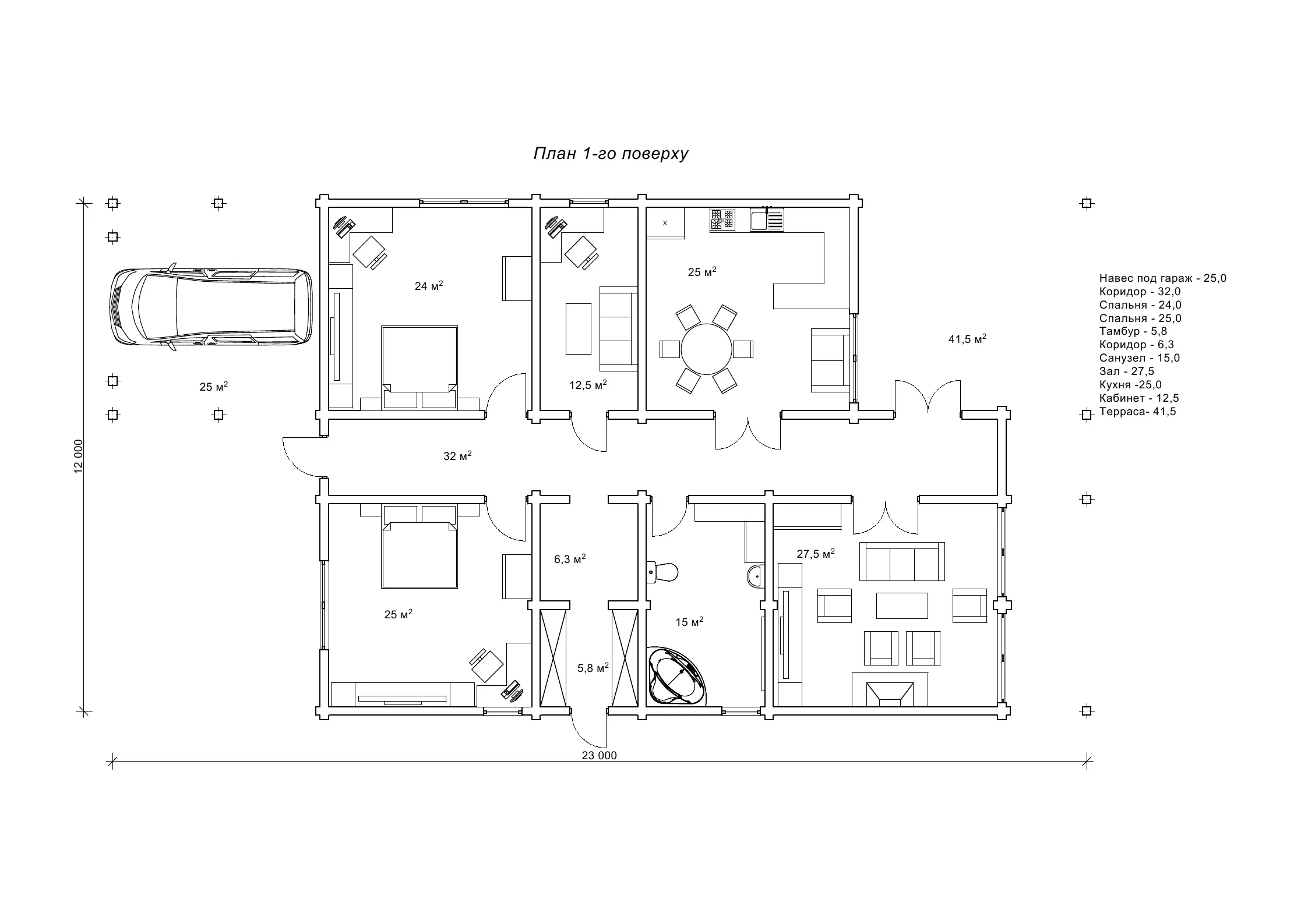
Планування будинку з навісом для автомобіля 239,6м2
Проект «Естром» спланований в параметрах 12 на 23 м і має площу 239,6 м2. Для побудови такого просторого будинку вам знадобиться велика територія на земельній ділянці. Багато площі біля одноповерхового котеджу займає тераса на 41,5 м2 і навіс для автомобіля на 25 м2 з протилежного боку будівлі. Внутрішні апартаменти складаються з двох спалень, робочого кабінету, кухні, залу і санвузла. Через всю будівлю простягається коридор площею 32 м2. Для зручності домочадців в будинку сплановано три виходи: на терасу, до автомобільного навісу і головний вихід з тепловим тамбуром. Проект «Естром» створений для поціновувачів просторих приміщень, для тих, хто любить просто і зручно планувати свій побут. Адже, погодьтеся, можна було розподілити житловий простір проекту «Естром» і на двох рівнях. Але для тих, кому не подобається підніматися по сходах кожен день, або для тих, у кого велика земельна ділянка і вистачає місця для такої великої споруди, проект «Естром» - найвідповідніший вибір.
Споруда будинку з сухого брусу з навісом
Щоб зробити замовлення будівництва будинку з навісом «Естром» із сухого брусу звертайтеся, будь ласка, по контактними даними, вказаними на нашому сайті в розділі «Контакти». Цей будинок з терасою і навісом для авто прикрасить ваше життя чарівністю природи і комфортом пропонованого планування. А перед вибором будівництва дерев’яного будинку, пропонуємо обов’язково ознайомитися з цікавими публікаціями з розділів нашого сайту «Новини» та «Статті», де можна знайти масу корисної інформації по дерев’яному житловому будівництві!
- Кількість поверхів
- 1
- Площа
- 239.6
- Ширина
- 12
- Довжина
- 23
- Будинки і житлові будови
- Вілли
Котеджі
Садиби - Кількість кімнат
- Трикімнатні будинки
- Особливості будинків
- Будинки з навісом
Будинки з терасою - Будинки з брусу
- Будинки з клеєного брусу
Будинки з профільованого брусу
Базова комплектація:
(Що входить в ціну)
- комплект стін;
- комплект крокв;
- комплект балок перекриття;
- утеплювач міжвінцевий;
- антисептик (антисептування всього матеріалу);
- дубові нагеля;
- кріпильні материали (саморізи, усадкові болти, анкера, кріпильні пластини);
- гідроізоляція;
- вогнебіозахист (обробка деревини засобом І групи вогнезахисної ефективності)
763020 грн.
Дах (комплектність):
- Рейка 100*25мм (cосна)
- Контрейка 50*25мм (сосна)
- Металочерепиця МОНТЕРРЕЙ (Польща) 0,45мм
- Коник прямий
- Планка примикання
- Лобова (декоративна) планка
- Вітровая планка
- Яндола
- Капельник (Карнизна планка)
- Ущільнювач універсальный
- Саморізи ОС 4.8х35
- Фарба-спрей
- Гідробар'єр
- Монтаж
403420 грн.
Вікна (комплектність):
- Вікно VEKA 58, колір білий 10
- Імпости вертикальні: 1 x 102103
- Скління: СПО, 24мм, (Rсп=0.36)*
- Тип фурнітури: Activpilot поворотно-відкидна, колір білий
- Підбір спеціальний: Activ микровентиляція; Activ 2-функц. механ.
- Моск.сітка: МС 3
- Підвіконня: ВМ 110мм, колір білий
- Підвіконня: ПВ ПВХ 150, заглушки: 600мм, колір білий
- Монтаж
167200 грн.
Двері (комплектність):
- Полотно
- Коробка
- Лиштва
- Карниз
- Фарбування
- Скло
- Фурнітура
- Врізка фурнітуры
- Монтаж
164920 грн.
Фарбування (комплектність):
- Шліфування торців
- Тришарове покриття ефективним деревозахисним засобом на базі низькомолекулярної алкідної смоли методом розпилення.
Оциліндрований брус
Оциліндрований брус є найбільш оптимальним і поширеним матеріалом для будівництва дерев`яних будинків і бань, бесідок, альтанок, різноманітних садових меблів, дерев`яних конструкцій будь-яких видів. Дерев`яні будинки з оциліндрованого брусу відрізняються красою, всередині такого будинку завжди відчувається особлива затишна атмосфера.
Профільований брус
Найсучаснішим і високотехнологічним будівельним матеріалом в дерев`яному будівництві на сьогоднішній день є профільований брус. Для виробництва профільованого брусу, звичайному дерев`яному брусу на спеціальному деревообробному обладнанні надається певний профіль.
Подвійний брус з утепленням
Головна ідея застосування подвійного бруса полягала в досягненні енергоефективності житла. Над проектуванням енергозберігаючих будинків працюють провідні інженери та архітектори в різних країнах світу, запропонована фінами технологія подвійного бруса дає можливість звести до мінімуму тепловтрати будинку, а також об`єднує переваги будівництва дерев`яного будинку з економічністю споруди.
Клеєний брус
Клеєний брус принципово відрізняється від інших типів колод багатошаровістю. Така структура робить цей дерев’яний матеріал надміцним і витривалим.
Каркасні конструкції
Каркасні конструкції виготовляються на власних виробничих потужностях компанії «Домінант», з використанням сучасних деревообробних станків. Імпортне, високоточне обладнання дозволяє нам високоякісно виконувати свою роботу. Каркаси складаються зі струганих, ретельно висушених балок 150х50 мм (сосна першого сорту). Ці балки застосовуються для зовнішніх каркасів.










