Ейміл
- Кількість поверхів
- 1
- Площа
- 88.1
- Ширина
- 9
- Довжина
- 12
- Будинки і житлові будови
- Будиночки
Дачі
Котеджі - Кількість кімнат
- Чотирикімнатні будинки
- Особливості будинків
- Будинки з ґанком
- Кількість поверхів споруди
- Одноповерхові будинки
- Будинки з брусу
- Будинки з клеєного брусу
Будинки з профільованого брусу
(Що входить в ціну)
- комплект стін;
- комплект крокв;
- комплект балок перекриття;
- утеплювач міжвінцевий;
- антисептик (антисептування всього матеріалу);
- дубові нагеля;
- кріпильні материали (саморізи, усадкові болти, анкера, кріпильні пластини);
- гідроізоляція;
- вогнебіозахист (обробка деревини засобом І групи вогнезахисної ефективності)
Проект котеджу на три спальні по проекту «Ейміл»
По простому дизайну і наявності декорів коттедж «Ейміл» цілком можна віднести до економічних проектних рішень. Строги, мінімалістичні очертання, великі квадратні вікна, добротна чотирьохилий дах – основні характеристики проекту «Ейміл». В будинку немає навеса або веранди, тому біля нього можна облаштувати відкриту площадку в якості літньої тераси або лаунж-зони. На такій терасі добре поставити шезлонги або чайний столик зі зручними меблями і насолодитися сонячними ваннами.
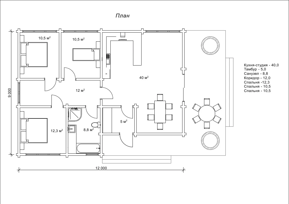
Планування котеджу з трьома спальнями, площа 88,1 м2
Параметри будівлі становлять 9 на 12 м, а загальна площаь 88,1 м2. Це компактні параметри, зручні для побудови практично на будь-якій ділянці. А класичний дизайн котеджу «Ейміл» впишеться у будь-який природний та міський ландшафт. Проект цілком можна рекомендувати під будівництво офісу! Але і як житловий котедж «Ейміл» дуже комфортабельний, адже в ньому передбачено три великі житлові кімнати і одна простора вітальня з кухонним куточком. Це чудовий вибір для сімейної пари з двома дітьми чи літніми батьками. Крім того, у житлових кімнатах можна зробити не лише спальні. В одній із кімнат можна облаштувати робочий кабінет або спортзал. Які бувають кімнати в дерев'яному будинку, можна прочитати в статті на нашому сайті.
Будівництво котеджу «Ейміл» в базовій комплектації
Замовлення будівництва котеджу за проектом «Ейміл» легко зробити прямо на сторінці з проектом, звернувшись до онлайн-консультанта. Ми виготовимо та встановимо дерев'яний корпус котеджу з каркасом даху на заздалегідь підготовлений господарем фундамент. Що включає така базова комплектація будівлі добре показано відео комплектації прямо на цій сторінці. За вказану вартість будівництва ви отримуєте якісний дерев'яний зруб із просушеного, профільованого брусу, який зможете доповнити іншими деталями (покрівлею, вікнами, дверима і т.д.) на власний розсуд.
- Кількість поверхів
- 1
- Площа
- 88.1
- Ширина
- 9
- Довжина
- 12
- Будинки і житлові будови
- Будиночки
Дачі
Котеджі - Кількість кімнат
- Чотирикімнатні будинки
- Особливості будинків
- Будинки з ґанком
- Кількість поверхів споруди
- Одноповерхові будинки
- Будинки з брусу
- Будинки з клеєного брусу
Будинки з профільованого брусу
Базова комплектація:
(Що входить в ціну)
- комплект стін;
- комплект крокв;
- комплект балок перекриття;
- утеплювач міжвінцевий;
- антисептик (антисептування всього матеріалу);
- дубові нагеля;
- кріпильні материали (саморізи, усадкові болти, анкера, кріпильні пластини);
- гідроізоляція;
- вогнебіозахист (обробка деревини засобом І групи вогнезахисної ефективності)
340200 грн.
Дах (комплектність):
- Рейка 100*25мм (cосна)
- Контрейка 50*25мм (сосна)
- Металочерепиця МОНТЕРРЕЙ (Польща) 0,45мм
- Коник прямий
- Планка примикання
- Лобова (декоративна) планка
- Вітровая планка
- Яндола
- Капельник (Карнизна планка)
- Ущільнювач універсальный
- Саморізи ОС 4.8х35
- Фарба-спрей
- Гідробар'єр
- Монтаж
350800 грн.
Вікна (комплектність):
- Вікно VEKA 58, колір білий 10
- Імпости вертикальні: 1 x 102103
- Скління: СПО, 24мм, (Rсп=0.36)*
- Тип фурнітури: Activpilot поворотно-відкидна, колір білий
- Підбір спеціальний: Activ микровентиляція; Activ 2-функц. механ.
- Моск.сітка: МС 3
- Підвіконня: ВМ 110мм, колір білий
- Підвіконня: ПВ ПВХ 150, заглушки: 600мм, колір білий
- Монтаж
125400 грн.
Двері (комплектність):
- Полотно
- Коробка
- Лиштва
- Карниз
- Фарбування
- Скло
- Фурнітура
- Врізка фурнітуры
- Монтаж
138880 грн.
Фарбування (комплектність):
- Шліфування торців
- Тришарове покриття ефективним деревозахисним засобом на базі низькомолекулярної алкідної смоли методом розпилення.
Оциліндрований брус
Оциліндрований брус є найбільш оптимальним і поширеним матеріалом для будівництва дерев`яних будинків і бань, бесідок, альтанок, різноманітних садових меблів, дерев`яних конструкцій будь-яких видів. Дерев`яні будинки з оциліндрованого брусу відрізняються красою, всередині такого будинку завжди відчувається особлива затишна атмосфера.
Профільований брус
Найсучаснішим і високотехнологічним будівельним матеріалом в дерев`яному будівництві на сьогоднішній день є профільований брус. Для виробництва профільованого брусу, звичайному дерев`яному брусу на спеціальному деревообробному обладнанні надається певний профіль.
Подвійний брус з утепленням
Головна ідея застосування подвійного бруса полягала в досягненні енергоефективності житла. Над проектуванням енергозберігаючих будинків працюють провідні інженери та архітектори в різних країнах світу, запропонована фінами технологія подвійного бруса дає можливість звести до мінімуму тепловтрати будинку, а також об`єднує переваги будівництва дерев`яного будинку з економічністю споруди.
Клеєний брус
Клеєний брус принципово відрізняється від інших типів колод багатошаровістю. Така структура робить цей дерев’яний матеріал надміцним і витривалим.
Каркасні конструкції
Каркасні конструкції виготовляються на власних виробничих потужностях компанії «Домінант», з використанням сучасних деревообробних станків. Імпортне, високоточне обладнання дозволяє нам високоякісно виконувати свою роботу. Каркаси складаються зі струганих, ретельно висушених балок 150х50 мм (сосна першого сорту). Ці балки застосовуються для зовнішніх каркасів.













