Ідейна
- Кількість поверхів
- 2
- Площа
- 204.9
- Ширина
- 8.8
- Довжина
- 15.2
- Будинки і житлові будови
- Маєтки
- Кількість кімнат
- Семикімнатні будинки
- Особливості будинків
- Будинки з мансардою
Будинки з навісом
Будинки з терасою
Будинки зі сходами - Кількість поверхів споруди
- Двоповерхові будинки
- Будинки з брусу
- Будинки з клеєного брусу
Будинки з профільованого брусу
(Що входить в ціну)
- комплект стін;
- комплект крокв;
- комплект балок перекриття;
- утеплювач міжвінцевий;
- антисептик (антисептування всього матеріалу);
- дубові нагеля;
- кріпильні материали (саморізи, усадкові болти, анкера, кріпильні пластини);
- гідроізоляція;
- вогнебіозахист (обробка деревини засобом І групи вогнезахисної ефективності)
Двоповерховий особняк з сухого профільованого бруса
Гарний будинок з цікавим навісом над ґанком створений для постійного проживання великої родини з дітьми, так як включає чотири спальні і два кабінети. Надійна і добротна будова з монолітними стінами з сухого профільованого бруса 150х150 мм створює враження затишного сімейного гніздечка, про яке зазвичай говорять - мій будинок - моя фортеця!
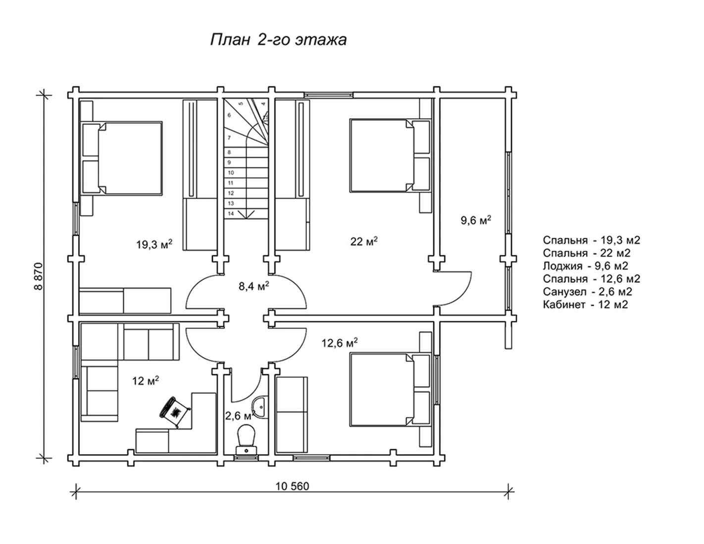
Планування кімнат заміського будинку «Ідейна»
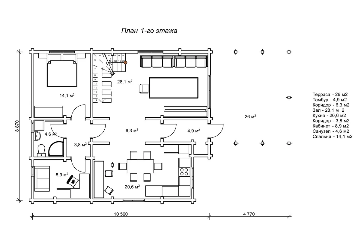
На двох поверхах заміського особняка «Ідейна» розташовується сім просторих кімнат, що дає можливість комфортного розміщення великої кількості домочадців. У такому будинку у кожного буде своя кімната і особистий простір, а зібратися всім разом можна буде в залі за великим обіднім столом. Вхід до будівлі оформлений великим навісом площею 26 м2. Це дуже цікаве рішення, що дозволяє проводити більше часу на свіжому повітрі в теплі літні дні всім мешканцям особняка «Ідейна». Якщо оформити стовпи рослинами, що плетуться, а всередині поставити зручні плетені меблі, така тераса стане улюбленим місцем відпочинку всієї родини. Увійшовши всередину самого будинку, ми спочатку опинимося в тепловому тамбурі, де можна зняти взуття і залишити теплий одяг. Далі нас чекає коридор, звідки можна пройти в зал, або на кухню. Також на першому поверсі є кабінет, спальня і санвузол. Дані приміщення завбачливо відокремлені від інших невеликим коридорчиком, щоб тим домочадцям, хто знаходиться в спальні або вирішив плідно попрацювати, не заважав шум із залу або кухні. Планування другого поверху вміщує три спальні і кабінет. До однієї зі спалень примикає лоджія, яка немов тепла, закрита веранда служить буфером між вулицею і спальним приміщенням. В даному проекті лоджію можна заповзято зробити абсолютно автономною і несподіваною нотою в інтер’єрі будинку. Наприклад пристосувати приміщення під бібліотеку або зимовий сад, як Вам така ідея?
Будівництво заміського житла
Споруда заміського житла з сухого профільованого бруса за готовим проектом особняка «Ідейна» - це одне з найкращих рішень на сьогоднішній день. Сухий брус - це стабілізований матеріал, який не містить клею та інших шкідливих хімічних добавок, висушений в прес-вакуумній сушці під впливом екстремально високої температури, невибагливий в експлуатації. Сухий профільований брус нашого виробництва дає можливість за помірну ціну побудувати екологічно чисте, здорове житло високого рівня якості, естетики і комфорту. Вибирайте тільки найкраще для себе, звертайтеся до нас: +38 097 012-38-52; +38 063 499-91-00 (Viber; WhatsApp)
- Кількість поверхів
- 2
- Площа
- 204.9
- Ширина
- 8.8
- Довжина
- 15.2
- Будинки і житлові будови
- Маєтки
- Кількість кімнат
- Семикімнатні будинки
- Особливості будинків
- Будинки з мансардою
Будинки з навісом
Будинки з терасою
Будинки зі сходами - Кількість поверхів споруди
- Двоповерхові будинки
- Будинки з брусу
- Будинки з клеєного брусу
Будинки з профільованого брусу
Базова комплектація:
(Що входить в ціну)
- комплект стін;
- комплект крокв;
- комплект балок перекриття;
- утеплювач міжвінцевий;
- антисептик (антисептування всього матеріалу);
- дубові нагеля;
- кріпильні материали (саморізи, усадкові болти, анкера, кріпильні пластини);
- гідроізоляція;
- вогнебіозахист (обробка деревини засобом І групи вогнезахисної ефективності)
422820 грн.
Дах (комплектність):
- Рейка 100*25мм (cосна)
- Контрейка 50*25мм (сосна)
- Металочерепиця МОНТЕРРЕЙ (Польща) 0,45мм
- Коник прямий
- Планка примикання
- Лобова (декоративна) планка
- Вітровая планка
- Яндола
- Капельник (Карнизна планка)
- Ущільнювач універсальный
- Саморізи ОС 4.8х35
- Фарба-спрей
- Гідробар'єр
- Монтаж
403420 грн.
Вікна (комплектність):
- Вікно VEKA 58, колір білий 10
- Імпости вертикальні: 1 x 102103
- Скління: СПО, 24мм, (Rсп=0.36)*
- Тип фурнітури: Activpilot поворотно-відкидна, колір білий
- Підбір спеціальний: Activ микровентиляція; Activ 2-функц. механ.
- Моск.сітка: МС 3
- Підвіконня: ВМ 110мм, колір білий
- Підвіконня: ПВ ПВХ 150, заглушки: 600мм, колір білий
- Монтаж
0 грн.
Двері (комплектність):
- Полотно
- Коробка
- Лиштва
- Карниз
- Фарбування
- Скло
- Фурнітура
- Врізка фурнітуры
- Монтаж
202244 грн.
Фарбування (комплектність):
- Шліфування торців
- Тришарове покриття ефективним деревозахисним засобом на базі низькомолекулярної алкідної смоли методом розпилення.
Параметри забудови
- Кількість поверхів: 2
- Площа: 204.9
Розмір забудови
- Ширина: 8.8
- Довжина: 15.2
Перший поверх
| тераса (м²) | 26 |
| тамбур (м²) | 4,9 |
| коридор (м²) | 6,3 |
| зала (м²) | 28,1 |
| кухня (м²) | 20,6 |
| коридор (м²) | 3,8 |
| кабінет (м²) | 8,9 |
| санвузол (м²) | 4,6 |
| спальня (м²) | 14,1 |
Другий поверх
| спальня (м²) | 19,3 |
| спальня (м²) | 22 |
| лоджія (м²) | 9,6 |
| спальня (м²) | 12,6 |
| санвузол (м²) | 2,6 |
| кабінет (м²) | 12 |
Оциліндрований брус
Оциліндрований брус є найбільш оптимальним і поширеним матеріалом для будівництва дерев`яних будинків і бань, бесідок, альтанок, різноманітних садових меблів, дерев`яних конструкцій будь-яких видів. Дерев`яні будинки з оциліндрованого брусу відрізняються красою, всередині такого будинку завжди відчувається особлива затишна атмосфера.
Профільований брус
Найсучаснішим і високотехнологічним будівельним матеріалом в дерев`яному будівництві на сьогоднішній день є профільований брус. Для виробництва профільованого брусу, звичайному дерев`яному брусу на спеціальному деревообробному обладнанні надається певний профіль.
Подвійний брус з утепленням
Головна ідея застосування подвійного бруса полягала в досягненні енергоефективності житла. Над проектуванням енергозберігаючих будинків працюють провідні інженери та архітектори в різних країнах світу, запропонована фінами технологія подвійного бруса дає можливість звести до мінімуму тепловтрати будинку, а також об`єднує переваги будівництва дерев`яного будинку з економічністю споруди.
Клеєний брус
Клеєний брус принципово відрізняється від інших типів колод багатошаровістю. Така структура робить цей дерев’яний матеріал надміцним і витривалим.
Каркасні конструкції
Каркасні конструкції виготовляються на власних виробничих потужностях компанії «Домінант», з використанням сучасних деревообробних станків. Імпортне, високоточне обладнання дозволяє нам високоякісно виконувати свою роботу. Каркаси складаються зі струганих, ретельно висушених балок 150х50 мм (сосна першого сорту). Ці балки застосовуються для зовнішніх каркасів.












