Даррі
- Кількість поверхів
- 1
- Площа
- 81.9
- Ширина
- 9.2
- Довжина
- 8.9
- Будинки і житлові будови
- Будиночки
Дачі
Котеджі - Кількість кімнат
- Трикімнатні будинки
- Особливості будинків
- Будинки з котельнею
Будинки з терасою - Кількість поверхів споруди
- Одноповерхові будинки
- Будинки з брусу
- Будинки з оциліндрованого брусу
(Що входить в ціну)
- комплект стін;
- комплект крокв;
- комплект балок перекриття;
- утеплювач міжвінцевий;
- антисептик (антисептування всього матеріалу);
- дубові нагеля;
- кріпильні материали (саморізи, усадкові болти, анкера, кріпильні пластини);
- гідроізоляція;
- вогнебіозахист (обробка деревини засобом І групи вогнезахисної ефективності)
Проект дерев’яного котеджу «Даррі»
Дерев’яний котедж «Даррі» виглядає просто чарівно. Вишуканості будиночку додає затишна тераса біля входу і оригінальні козирки дахів над терасою та над кімнатою, що знаходиться поруч з терасою. Великі вікна від підлоги і до стелі наповнюють котедж з колод сонцем і світлом. У будиночку завжди буде затишно і тепло. Це чудовий проект для проживання, особливо якщо вибирати для складання стін колоду быльшого розміру, наприклад, 200-220 мм в діаметрі. Функціональне планування котеджу «Даррі» стане ще одним аргументом на користь його вибору для своєї ділянки.
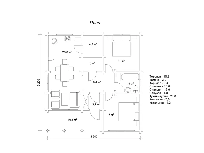
Планування дерев’яного котеджу 9,2 на 8,9 м на дві кімнати
Котедж «Даррі» спланований в габаритах 9,2 на 8,9 м, його площа складає 81,9 м2. Будинок дуже зручно розпланований і включає не тільки житлові кімнати, а й господарські приміщення (котельня та комора), що істотно полегшує побут. Зручно, що в котеджі є дві спальні по 13 м2, і вони розташовані так, щоб не мати суміжних перегородок. Це робить проживання всіх домочадців тільки комфортнішим, адже вони не стануть заважати один одному, усамітнившись у себе в кімнатах. Ще одним плюсом планування дерев’яного котеджу «Даррі» назвемо наявність теплового тамбура, який затримає тепло всередині будинку і стане захисним бар’єром від попадання бруду в житло. Площа кухні-студії становить 23,8 м2. Тільки подивіться, як зручно вона спланована. Кухня відділяється від м’якого куточка зоною їдальні. Тут всі функціональні зони розподіляються буквально до дрібниць.
Будівництво двокімнатного котеджу за проектом «Даррі»
Споруда двокімнатного котеджу за проектом «Даррі» рекомендується для тих, хто бажає отримати комфортне, надійне житло з максимально здоровою обстановкою в стінах із соснових колод. Крім зовнішньої краси, будиночок також подарує винятковий комфорт своїм домочадцям завдяки грамотно продуманому плануванню і наявності двох спалень. Це дуже зручний котедж для проживання сімейної пари з дітьми. Впевнені, що після докладного вивчення всіх переваг проекту «Даррі», ви обов’язково замовите його будівництво в компанії «Домінант», для чого необхідно звернутися за контактами нашого сайту.
- Кількість поверхів
- 1
- Площа
- 81.9
- Ширина
- 9.2
- Довжина
- 8.9
- Будинки і житлові будови
- Будиночки
Дачі
Котеджі - Кількість кімнат
- Трикімнатні будинки
- Особливості будинків
- Будинки з котельнею
Будинки з терасою - Кількість поверхів споруди
- Одноповерхові будинки
- Будинки з брусу
- Будинки з оциліндрованого брусу
Базова комплектація:
(Що входить в ціну)
- комплект стін;
- комплект крокв;
- комплект балок перекриття;
- утеплювач міжвінцевий;
- антисептик (антисептування всього матеріалу);
- дубові нагеля;
- кріпильні материали (саморізи, усадкові болти, анкера, кріпильні пластини);
- гідроізоляція;
- вогнебіозахист (обробка деревини засобом І групи вогнезахисної ефективності)
284310 грн.
Дах (комплектність):
- Рейка 100*25мм (cосна)
- Контрейка 50*25мм (сосна)
- Металочерепиця МОНТЕРРЕЙ (Польща) 0,45мм
- Коник прямий
- Планка примикання
- Лобова (декоративна) планка
- Вітровая планка
- Яндола
- Капельник (Карнизна планка)
- Ущільнювач універсальный
- Саморізи ОС 4.8х35
- Фарба-спрей
- Гідробар'єр
- Монтаж
280640 грн.
Вікна (комплектність):
- Вікно VEKA 58, колір білий 10
- Імпости вертикальні: 1 x 102103
- Скління: СПО, 24мм, (Rсп=0.36)*
- Тип фурнітури: Activpilot поворотно-відкидна, колір білий
- Підбір спеціальний: Activ микровентиляція; Activ 2-функц. механ.
- Моск.сітка: МС 3
- Підвіконня: ВМ 110мм, колір білий
- Підвіконня: ПВ ПВХ 150, заглушки: 600мм, колір білий
- Монтаж
41800 грн.
Двері (комплектність):
- Полотно
- Коробка
- Лиштва
- Карниз
- Фарбування
- Скло
- Фурнітура
- Врізка фурнітуры
- Монтаж
163184 грн.
Фарбування (комплектність):
- Шліфування торців
- Тришарове покриття ефективним деревозахисним засобом на базі низькомолекулярної алкідної смоли методом розпилення.
Оциліндрований брус
Оциліндрований брус є найбільш оптимальним і поширеним матеріалом для будівництва дерев`яних будинків і бань, бесідок, альтанок, різноманітних садових меблів, дерев`яних конструкцій будь-яких видів. Дерев`яні будинки з оциліндрованого брусу відрізняються красою, всередині такого будинку завжди відчувається особлива затишна атмосфера.
Профільований брус
Найсучаснішим і високотехнологічним будівельним матеріалом в дерев`яному будівництві на сьогоднішній день є профільований брус. Для виробництва профільованого брусу, звичайному дерев`яному брусу на спеціальному деревообробному обладнанні надається певний профіль.
Подвійний брус з утепленням
Головна ідея застосування подвійного бруса полягала в досягненні енергоефективності житла. Над проектуванням енергозберігаючих будинків працюють провідні інженери та архітектори в різних країнах світу, запропонована фінами технологія подвійного бруса дає можливість звести до мінімуму тепловтрати будинку, а також об`єднує переваги будівництва дерев`яного будинку з економічністю споруди.
Клеєний брус
Клеєний брус принципово відрізняється від інших типів колод багатошаровістю. Така структура робить цей дерев’яний матеріал надміцним і витривалим.
Каркасні конструкції
Каркасні конструкції виготовляються на власних виробничих потужностях компанії «Домінант», з використанням сучасних деревообробних станків. Імпортне, високоточне обладнання дозволяє нам високоякісно виконувати свою роботу. Каркаси складаються зі струганих, ретельно висушених балок 150х50 мм (сосна першого сорту). Ці балки застосовуються для зовнішніх каркасів.















