Ізабелла2
- Кількість поверхів
- 1
- Площа
- 119
- Ширина
- 7
- Довжина
- 17
- Будинки і житлові будови
- Дачі
Котеджі
Маєтки
Садиби - Кількість кімнат
- Двокімнатні будинки
- Особливості будинків
- Будинки з терасою
- Кількість поверхів споруди
- Одноповерхові будинки
- Будинки з брусу
- Будинки з оциліндрованого брусу
(Що входить в ціну)
- комплект стін;
- комплект крокв;
- комплект балок перекриття;
- утеплювач міжвінцевий;
- антисептик (антисептування всього матеріалу);
- дубові нагеля;
- кріпильні материали (саморізи, усадкові болти, анкера, кріпильні пластини);
- гідроізоляція;
- вогнебіозахист (обробка деревини засобом І групи вогнезахисної ефективності)
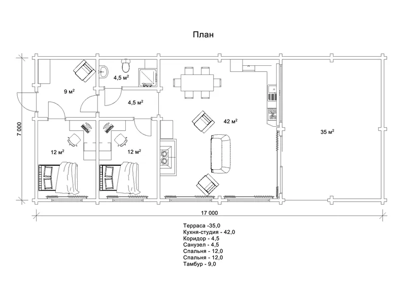
План будинку із сухого бруса 7х17 м «Ізабелла2»
Проект «Ізабелла2» виступає версією початкового проекту «Ізабелла», реалізованого з оциліндрованих колод. Оскільки цей проект є дуже ходовим серед замовників, ми вирішили презентувати аналогічну модель за технологією сухого, профільованого бруса «Ізабелла2». Нова варіація є чудовим вибором для придбання власного житла. Презентабельний, просторий, дуже гарний котедж під оригінальним дахом з великою терасою та великими вікнами просто не може не привернути пильної уваги тих, хто зайнятий підбором власної споруди. Унікальна естетика і натуральна краса дерев’яного масиву повною мірою розкривається в добротних стінах котеджу з сухого, профільованого бруса. А розкішну терасу, як у попередній, оциліндрованій версії проекту, також можна назвати візитною карткою цього дерев’яного будинку.
Профільований будинок із бруса «Ізабелла2», площа 119 м²
Вдале планування двокімнатного проекту з великою кухнею-студією, каміном і величезною терасою припала до смаку більшості наших замовників, тому ми її його не змінювали. Таке планування підійде всім, хто хоче звести літній будинок для тривалого перебування. Крім того, проектне рішення зручне для тих, хто хоче організувати життєвий простір на одному рівні, і не хоче пересування сходами, які крадуть метри корисної, житлової площі. Також параметри забудови проекту «Ізабелла2» залишилися колишніми і склали 7 м на 17 м. Ці розміри будуть зручні для вузьких, подовжених ділянок. Сам котедж має форму витягнутого прямокутника та містить все необхідне для комфортного проживання і гарного відпочинку. Тому рекомендуємо розглядати проект «Ізабелла2» не лише з метою приватної забудови, а й під комерцію. Тільки уявіть, як приємно буде відпочивати на такій розкішній віллі з натурального дерева. Кожен із проектів «Домінант» створено на основі всіх прагнень та запитів сучасної людини.
- Кількість поверхів
- 1
- Площа
- 119
- Ширина
- 7
- Довжина
- 17
- Будинки і житлові будови
- Дачі
Котеджі
Маєтки
Садиби - Кількість кімнат
- Двокімнатні будинки
- Особливості будинків
- Будинки з терасою
- Кількість поверхів споруди
- Одноповерхові будинки
- Будинки з брусу
- Будинки з оциліндрованого брусу
Базова комплектація:
(Що входить в ціну)
- комплект стін;
- комплект крокв;
- комплект балок перекриття;
- утеплювач міжвінцевий;
- антисептик (антисептування всього матеріалу);
- дубові нагеля;
- кріпильні материали (саморізи, усадкові болти, анкера, кріпильні пластини);
- гідроізоляція;
- вогнебіозахист (обробка деревини засобом І групи вогнезахисної ефективності)
398520 грн.
Дах (комплектність):
- Рейка 100*25мм (cосна)
- Контрейка 50*25мм (сосна)
- Металочерепиця МОНТЕРРЕЙ (Польща) 0,45мм
- Коник прямий
- Планка примикання
- Лобова (декоративна) планка
- Вітровая планка
- Яндола
- Капельник (Карнизна планка)
- Ущільнювач універсальный
- Саморізи ОС 4.8х35
- Фарба-спрей
- Гідробар'єр
- Монтаж
263100 грн.
Вікна (комплектність):
- Вікно VEKA 58, колір білий 10
- Імпости вертикальні: 1 x 102103
- Скління: СПО, 24мм, (Rсп=0.36)*
- Тип фурнітури: Activpilot поворотно-відкидна, колір білий
- Підбір спеціальний: Activ микровентиляція; Activ 2-функц. механ.
- Моск.сітка: МС 3
- Підвіконня: ВМ 110мм, колір білий
- Підвіконня: ПВ ПВХ 150, заглушки: 600мм, колір білий
- Монтаж
167200 грн.
Двері (комплектність):
- Полотно
- Коробка
- Лиштва
- Карниз
- Фарбування
- Скло
- Фурнітура
- Врізка фурнітуры
- Монтаж
205716 грн.
Фарбування (комплектність):
- Шліфування торців
- Тришарове покриття ефективним деревозахисним засобом на базі низькомолекулярної алкідної смоли методом розпилення.
Оциліндрований брус
Оциліндрований брус є найбільш оптимальним і поширеним матеріалом для будівництва дерев`яних будинків і бань, бесідок, альтанок, різноманітних садових меблів, дерев`яних конструкцій будь-яких видів. Дерев`яні будинки з оциліндрованого брусу відрізняються красою, всередині такого будинку завжди відчувається особлива затишна атмосфера.
Профільований брус
Найсучаснішим і високотехнологічним будівельним матеріалом в дерев`яному будівництві на сьогоднішній день є профільований брус. Для виробництва профільованого брусу, звичайному дерев`яному брусу на спеціальному деревообробному обладнанні надається певний профіль.
Подвійний брус з утепленням
Головна ідея застосування подвійного бруса полягала в досягненні енергоефективності житла. Над проектуванням енергозберігаючих будинків працюють провідні інженери та архітектори в різних країнах світу, запропонована фінами технологія подвійного бруса дає можливість звести до мінімуму тепловтрати будинку, а також об`єднує переваги будівництва дерев`яного будинку з економічністю споруди.
Клеєний брус
Клеєний брус принципово відрізняється від інших типів колод багатошаровістю. Така структура робить цей дерев’яний матеріал надміцним і витривалим.
Каркасні конструкції
Каркасні конструкції виготовляються на власних виробничих потужностях компанії «Домінант», з використанням сучасних деревообробних станків. Імпортне, високоточне обладнання дозволяє нам високоякісно виконувати свою роботу. Каркаси складаються зі струганих, ретельно висушених балок 150х50 мм (сосна першого сорту). Ці балки застосовуються для зовнішніх каркасів.


















