Ізабелла
- Кількість поверхів
- 1
- Площа
- 119
- Ширина
- 7
- Довжина
- 17
- Будинки і житлові будови
- Дачі
- Кількість кімнат
- Трикімнатні будинки
- Особливості будинків
- Будинки з терасою
- Кількість поверхів споруди
- Одноповерхові будинки
- Комерційні будівлі
- Бази відпочинку
(Що входить в ціну)
- комплект стін;
- комплект крокв;
- комплект балок перекриття;
- утеплювач міжвінцевий;
- антисептик (антисептування всього матеріалу);
- дубові нагеля;
- кріпильні материали (саморізи, усадкові болти, анкера, кріпильні пластини);
- гідроізоляція;
- вогнебіозахист (обробка деревини засобом І групи вогнезахисної ефективності)
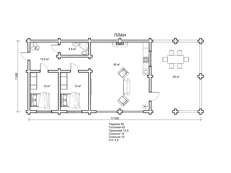
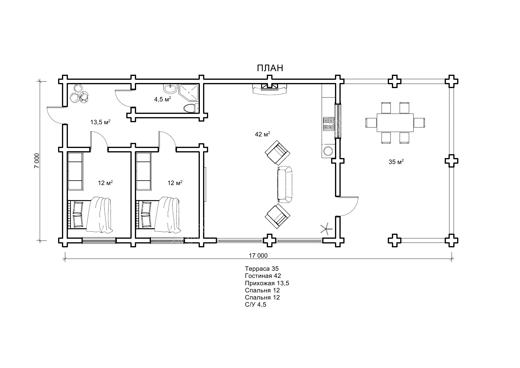
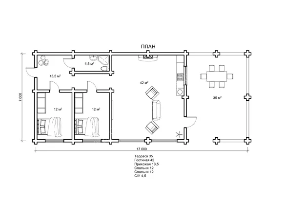
На сьогоднішній день дуже популярним є заміське будівництво. Будинок з бруса - відмінний варіант для придбання власного житла. Пропонуємо вашій увазі красивий, затишний, недорогий проект гостьового будинку Ізабелла dominant-wood.com.ua/uk/proekty/671-izabella. Ізабелла - це просторий і красивий проект. Він легкий і приємний в сприйнятті. Його особливістю є освітлення. Дуже велика кількість і великий розмір вікон дають особливе освітлення. Людям волелюбним і стильним це припаде до душі.
Дуже цікавим є планування інтер’єру будинку. Радує око екстер’єр. Все в цьому проекті приносить естетичне задоволення. Цей будинок яскравий представник естетики та краси. Тераса - це і візитна картка будинку, і місце відпочинку. Зроблена в стандартній техніці компанії «Домінант» і відрізняється великою місткістю. Цей будинок готовий приймати гостей. Також він може розмістити тут більше однієї сім’ї. В наявності дві двомісні спальні і великий зал. Відмінний будинок для відпочинку. Прекрасне місце для проведення літа на природі. Тут є все для комфортного проживання і гарного відпочинку. Доступний для комерційного використання, а також розглядається в якості індивідуального дачного проекту.
Компанія «Домінант» не перестає радувати нас такими чудовими проектами, як Ізабелла. Досвідчені фахівці підприємства завжди тримають руку на пульсі сучасної архітектури і новинок дизайну. Ось, наприклад, список виставок по дерев’яному будівництву, де можна вживу бачити продукцію для сфери житлового будівництва, новинки технологій і деревообробки «Виставки 2016: деревообробка, будівництво і виробництво меблів» dominant-wood.com.ua/uk/blog/news/vistavki-2016-derevoobrobka-budivnitstvo-i-virobnitstvo-mebliv . Ми робимо все для того, щоб створювати для наших клієнтів унікальні проекти, що відповідають їх мрії і прагненням.
- Кількість поверхів
- 1
- Площа
- 119
- Ширина
- 7
- Довжина
- 17
- Будинки і житлові будови
- Дачі
- Кількість кімнат
- Трикімнатні будинки
- Особливості будинків
- Будинки з терасою
- Кількість поверхів споруди
- Одноповерхові будинки
- Комерційні будівлі
- Бази відпочинку
Базова комплектація:
(Що входить в ціну)
- комплект стін;
- комплект крокв;
- комплект балок перекриття;
- утеплювач міжвінцевий;
- антисептик (антисептування всього матеріалу);
- дубові нагеля;
- кріпильні материали (саморізи, усадкові болти, анкера, кріпильні пластини);
- гідроізоляція;
- вогнебіозахист (обробка деревини засобом І групи вогнезахисної ефективності)
415530 грн.
Дах (комплектність):
- Рейка 100*25мм (cосна)
- Контрейка 50*25мм (сосна)
- Металочерепиця МОНТЕРРЕЙ (Польща) 0,45мм
- Коник прямий
- Планка примикання
- Лобова (декоративна) планка
- Вітровая планка
- Яндола
- Капельник (Карнизна планка)
- Ущільнювач універсальный
- Саморізи ОС 4.8х35
- Фарба-спрей
- Гідробар'єр
- Монтаж
333260 грн.
Вікна (комплектність):
- Вікно VEKA 58, колір білий 10
- Імпости вертикальні: 1 x 102103
- Скління: СПО, 24мм, (Rсп=0.36)*
- Тип фурнітури: Activpilot поворотно-відкидна, колір білий
- Підбір спеціальний: Activ микровентиляція; Activ 2-функц. механ.
- Моск.сітка: МС 3
- Підвіконня: ВМ 110мм, колір білий
- Підвіконня: ПВ ПВХ 150, заглушки: 600мм, колір білий
- Монтаж
0 грн.
Двері (комплектність):
- Полотно
- Коробка
- Лиштва
- Карниз
- Фарбування
- Скло
- Фурнітура
- Врізка фурнітуры
- Монтаж
134540 грн.
Фарбування (комплектність):
- Шліфування торців
- Тришарове покриття ефективним деревозахисним засобом на базі низькомолекулярної алкідної смоли методом розпилення.
Оциліндрований брус
Оциліндрований брус є найбільш оптимальним і поширеним матеріалом для будівництва дерев`яних будинків і бань, бесідок, альтанок, різноманітних садових меблів, дерев`яних конструкцій будь-яких видів. Дерев`яні будинки з оциліндрованого брусу відрізняються красою, всередині такого будинку завжди відчувається особлива затишна атмосфера.
Профільований брус
Найсучаснішим і високотехнологічним будівельним матеріалом в дерев`яному будівництві на сьогоднішній день є профільований брус. Для виробництва профільованого брусу, звичайному дерев`яному брусу на спеціальному деревообробному обладнанні надається певний профіль.
Подвійний брус з утепленням
Головна ідея застосування подвійного бруса полягала в досягненні енергоефективності житла. Над проектуванням енергозберігаючих будинків працюють провідні інженери та архітектори в різних країнах світу, запропонована фінами технологія подвійного бруса дає можливість звести до мінімуму тепловтрати будинку, а також об`єднує переваги будівництва дерев`яного будинку з економічністю споруди.
Клеєний брус
Клеєний брус принципово відрізняється від інших типів колод багатошаровістю. Така структура робить цей дерев’яний матеріал надміцним і витривалим.
Каркасні конструкції
Каркасні конструкції виготовляються на власних виробничих потужностях компанії «Домінант», з використанням сучасних деревообробних станків. Імпортне, високоточне обладнання дозволяє нам високоякісно виконувати свою роботу. Каркаси складаються зі струганих, ретельно висушених балок 150х50 мм (сосна першого сорту). Ці балки застосовуються для зовнішніх каркасів.










