Зателефонуйте мені
Корсика №1
Корсика №2
Корсика №3
Корсика №4
Корсика №5
Корсика №6
Корсика №7
Корсика №1
Корсика №2
Корсика №3
Корсика №4
Корсика №5
Корсика №6
Корсика №7
Корсика №1
Корсика №1 Корсика №2 Корсика №3 Корсика №4 Корсика №5 Корсика №6 Корсика №7

Корсика

1 431 966,00 ₴
Ціна будинку під ключ 7,6х18,5м - «Корсика»
Розмір брусу
  • Оциліндрований 160
  • Оциліндрований 180
  • Оциліндрований 200
  • Оциліндрований 220
  • Профільований 60
  • Профільований 150
  • Профільований 200
  • Подвійний 300
  • Клеєний 120
  • Клеєний 180
Кількість поверхів
2
Площа
198.36
Ширина
7.6
Довжина
18.5
Будинки і житлові будови
Котеджі
Кількість кімнат
Чотирикімнатні будинки
Особливості будинків
Будинки з балконом
Будинки з мансардою
Будинки з терасою
Будинки зі сходами
Кількість поверхів споруди
Двоповерхові будинки
Будинки з брусу
Будинки з оциліндрованого брусу
 

(Що входить в ціну)

Що входить в базову комплектацію

  • комплект стін;
  • комплект крокв;
  • комплект балок перекриття;
  • утеплювач міжвінцевий;
  • антисептик (антисептування всього матеріалу);
  • дубові нагеля;
  • кріпильні материали (саморізи, усадкові болти, анкера, кріпильні пластини);
  • гідроізоляція;
  • вогнебіозахист (обробка деревини засобом І групи вогнезахисної ефективності)

Проект Корсика dominant-wood.com.ua/uk/proekty/300-korsika виконаний з бруса. Він оригінальний і вигідний з кількох причин. По-перше, включаючи в себе ряд корисних приміщень, він дає вам можливість з максимальною користю використовувати простір на ділянці. По-друге, зовнішній дизайн будівлі дуже привабливий. Дерев’яний будинок Корсика відрізняється великою місткістю і просто унікальним плануванням, де все продумано до дрібниць. Все включено, навіть парилка. Якщо ви веберете цей універсальний проект і побудуєте такий будинок на своїй заміській ділянці, вам більше не доведеться замислюватися про будівництво окремого приміщення для лазні або про спорудження альтанки для організації пікніків на свіжому повітрі.

Проект заміського будинку Корсика унікальний і включає повний благоустрій життя за містом, будучи справжнім уособленням всіх його переваг. Цей будинок виготовляється під ключ, що також є додатковою перевагою для кожного замовника. Екстер’єр будинку виглядає презентабельно і прикрасить будь-яку ділянку. Будинок як би розділений на дві частини: зона входу і загального відпочинку і спальна зона. Перший поверх починається з альтанки і при вході в будинок відразу розташована парилка. Це вельми незвичайний підхід, що зустрічається дуже рідко. При цьому ви можете бути впевнені, що без особливої потреби ніхто не зайде далі цих приміщень і не потривожить ваше усамітнення. Далі перший поверх включає вітальню з кухнею і закінчується іншим виходом на терасу. Другий поверх обладнаний як спальна зона.

Такий цікавий зовні і внутрішньо котедж від компанії «Домінант» dominant-wood.com.ua/ прекрасно буде виглядати як за містом, так і в межах міста, адже він справді гарний і надійний, гідний передаватися у спадок як фамільний маєток.

Кількість поверхів
2
Площа
198.36
Ширина
7.6
Довжина
18.5
Будинки і житлові будови
Котеджі
Кількість кімнат
Чотирикімнатні будинки
Особливості будинків
Будинки з балконом
Будинки з мансардою
Будинки з терасою
Будинки зі сходами
Кількість поверхів споруди
Двоповерхові будинки
Будинки з брусу
Будинки з оциліндрованого брусу

Базова комплектація:
(Що входить в ціну)

Що входить в базову комплектацію

  • комплект стін;
  • комплект крокв;
  • комплект балок перекриття;
  • утеплювач міжвінцевий;
  • антисептик (антисептування всього матеріалу);
  • дубові нагеля;
  • кріпильні материали (саморізи, усадкові болти, анкера, кріпильні пластини);
  • гідроізоляція;
  • вогнебіозахист (обробка деревини засобом І групи вогнезахисної ефективності)

972000 грн.

Дах (комплектність):

  • Рейка 100*25мм (cосна)
  • Контрейка 50*25мм (сосна)
  • Металочерепиця МОНТЕРРЕЙ (Польща) 0,45мм
  • Коник прямий
  • Планка примикання
  • Лобова (декоративна) планка
  • Вітровая планка
  • Яндола
  • Капельник (Карнизна планка)
  • Ущільнювач універсальный
  • Саморізи ОС 4.8х35
  • Фарба-спрей
  • Гідробар'єр
  • Монтаж

438500 грн.

Вікна (комплектність):

  • Вікно VEKA 58, колір білий 10
  • Імпости вертикальні: 1 x 102103
  • Скління: СПО, 24мм, (Rсп=0.36)*
  • Тип фурнітури: Activpilot поворотно-відкидна, колір білий
  • Підбір спеціальний: Activ микровентиляція; Activ 2-функц. механ.
  • Моск.сітка: МС 3
  • Підвіконня: ВМ 110мм, колір білий
  • Підвіконня: ПВ ПВХ 150, заглушки: 600мм, колір білий
  • Монтаж

0 грн.

Двері (комплектність):

  • Полотно
  • Коробка
  • Лиштва
  • Карниз
  • Фарбування
  • Скло
  • Фурнітура
  • Врізка фурнітуры
  • Монтаж

127596 грн.

Фарбування (комплектність):

  • Шліфування торців
  • Тришарове покриття ефективним деревозахисним засобом на базі низькомолекулярної алкідної смоли методом розпилення.

Параметри забудови

  • Кількість поверхів: 2
  • Площа: 198.36

Розмір забудови

  • Ширина: 7.6
  • Довжина: 18.5

Перший поверх

альтанка (м²)27
ванна (м²)6
вітальня (м²)27,3
дровник (м²)5,5
коридор (м²)7
с/в (м²)4,2
тамбур (м²)4
тераса (м²)5,9
тераса (м²)5,9
хол (м²)21,8

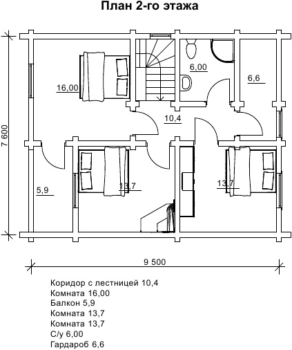
Другий поверх

балкон (м²)5,9
гардеробна (м²)6,6
кімната (м²)16
кімната (м²)13,7
кімната (м²)13,7
сходова зона (м²)10,4
с/в (м²)6

Оциліндрований брус

Оциліндрований брус є найбільш оптимальним і поширеним матеріалом для будівництва дерев`яних будинків і бань, бесідок, альтанок, різноманітних садових меблів, дерев`яних конструкцій будь-яких видів. Дерев`яні будинки з оциліндрованого брусу відрізняються красою, всередині такого будинку завжди відчувається особлива затишна атмосфера.

Читати далі...

Профільований брус

Найсучаснішим і високотехнологічним будівельним матеріалом в дерев`яному будівництві на сьогоднішній день є профільований брус. Для виробництва профільованого брусу, звичайному дерев`яному брусу на спеціальному деревообробному обладнанні надається певний профіль.

Читати далі...

Подвійний брус з утепленням

Головна ідея застосування подвійного бруса полягала в досягненні енергоефективності житла. Над проектуванням енергозберігаючих будинків працюють провідні інженери та архітектори в різних країнах світу, запропонована фінами технологія подвійного бруса дає можливість звести до мінімуму тепловтрати будинку, а також об`єднує переваги будівництва дерев`яного будинку з економічністю споруди.

Читати далі...

Клеєний брус

Клеєний брус принципово відрізняється від інших типів колод багатошаровістю. Така структура робить цей дерев’яний матеріал надміцним і витривалим.

Читати далі...

Каркасні конструкції

Каркасні конструкції виготовляються на власних виробничих потужностях компанії «Домінант», з використанням сучасних деревообробних станків. Імпортне, високоточне обладнання дозволяє нам високоякісно виконувати свою роботу. Каркаси складаються зі струганих, ретельно висушених балок 150х50 мм (сосна першого сорту). Ці балки застосовуються для зовнішніх каркасів.

Читати далі...

Немає відгуків

16 інших товарів в цій категорії:

Товар додано для порівняння.