Габрі
- Кількість поверхів
- 1
- Площа
- 108.3
- Ширина
- 9
- Довжина
- 14
- Будинки і житлові будови
- Вілли
Дачі
Котеджі - Кількість кімнат
- Двокімнатні будинки
- Особливості будинків
- Будинки з каміном
Будинки з навісом
Будинки з терасою - Кількість поверхів споруди
- Одноповерхові будинки
- Будинки з брусу
- Будинки з клеєного брусу
Будинки з профільованого брусу
(Що входить в ціну)
- комплект стін;
- комплект крокв;
- комплект балок перекриття;
- утеплювач міжвінцевий;
- антисептик (антисептування всього матеріалу);
- дубові нагеля;
- кріпильні материали (саморізи, усадкові болти, анкера, кріпильні пластини);
- гідроізоляція;
- вогнебіозахист (обробка деревини засобом І групи вогнезахисної ефективності)
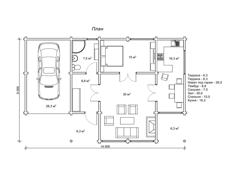
Проект котеджу з сухого брусу «Габрі» 9х14 м
Одноповерховий котедж «Габрі» з великими панорамними вікнами, терасами і навісом під гараж - прекрасний вибір для заміської резиденції. Це надійне, добротне житло з якісного, натурального матеріалу з комфортними умовами. Проект виконується з сухого профільованого бруса власного виробництва «Домінант». Сухий сосновий брус представляє собою теплий, екологічний матеріал для будівництва житла, який не дає усадку завдяки особливому способу висушування деревини. Суворі, прямокутні форми, властиві випиляному брусу, надають стильного вигляду котеджу. Такий лаконічний, вишуканий дизайн оцінить найвимогливіший замовник.
План котеджу «Габрі» з навісом під гараж
Перше, на що хочеться звернути увагу при розгляді проекту «Габрі», це навіс під гараж, який передбачений в загальній конструкції будинку. Правда, прибудова приміщення під гараж не має на увазі окремого входу зсередини будинку, сюди передбачений лише в’їзд для автомобіля зовні. Погодьтеся, спеціально відведене місце для автомобіля - дуже велика перевага для власника машини. Всьому сімейства буде зручно приїжджати на свою літню віллу з брусу, щоб провести пару чудових літніх місяців далеко від галасливого міста в оазисі природи і комфорту. Загальна площа проекту «Габрі» 108,3 м2 розподіляється на приміщення залу, спальні, кухні, санвузла та передпокою. У залі з великими, красивими вікнами досить місця, щоб обладнати камін. Дерев’яний будинок з сухого профільованого брусу складно уявити без справжнього домашнього вогнища, навколо якого зможе зібратися вся родина на Різдво.
Будівництво котеджу з сухого брусу 108,3 м2
У котеджі з сухого брусу з каміном і навісом під гараж враховуються всі вимоги сучасного замовника, який планує купити дерев’яний будинок з навісом для сезонного відпочинку або цілорічного проживання. Вишуканий зовнішній дизайн котеджу «Габрі» плавно проектується і на створене всередині планування, де все компактно і раціонально продумано нашими фахівцями. А наявність навісу для машини роблять даний проект дерев’яного будинку дуже привабливим для того, щоб замовити його будівництво у лідера дерев’яного домобудівництва «Домінант».
- Кількість поверхів
- 1
- Площа
- 108.3
- Ширина
- 9
- Довжина
- 14
- Будинки і житлові будови
- Вілли
Дачі
Котеджі - Кількість кімнат
- Двокімнатні будинки
- Особливості будинків
- Будинки з каміном
Будинки з навісом
Будинки з терасою - Кількість поверхів споруди
- Одноповерхові будинки
- Будинки з брусу
- Будинки з клеєного брусу
Будинки з профільованого брусу
Базова комплектація:
(Що входить в ціну)
- комплект стін;
- комплект крокв;
- комплект балок перекриття;
- утеплювач міжвінцевий;
- антисептик (антисептування всього матеріалу);
- дубові нагеля;
- кріпильні материали (саморізи, усадкові болти, анкера, кріпильні пластини);
- гідроізоляція;
- вогнебіозахист (обробка деревини засобом І групи вогнезахисної ефективності)
388800 грн.
Дах (комплектність):
- Рейка 100*25мм (cосна)
- Контрейка 50*25мм (сосна)
- Металочерепиця МОНТЕРРЕЙ (Польща) 0,45мм
- Коник прямий
- Планка примикання
- Лобова (декоративна) планка
- Вітровая планка
- Яндола
- Капельник (Карнизна планка)
- Ущільнювач універсальный
- Саморізи ОС 4.8х35
- Фарба-спрей
- Гідробар'єр
- Монтаж
368340 грн.
Вікна (комплектність):
- Вікно VEKA 58, колір білий 10
- Імпости вертикальні: 1 x 102103
- Скління: СПО, 24мм, (Rсп=0.36)*
- Тип фурнітури: Activpilot поворотно-відкидна, колір білий
- Підбір спеціальний: Activ микровентиляція; Activ 2-функц. механ.
- Моск.сітка: МС 3
- Підвіконня: ВМ 110мм, колір білий
- Підвіконня: ПВ ПВХ 150, заглушки: 600мм, колір білий
- Монтаж
41800 грн.
Двері (комплектність):
- Полотно
- Коробка
- Лиштва
- Карниз
- Фарбування
- Скло
- Фурнітура
- Врізка фурнітуры
- Монтаж
118916 грн.
Фарбування (комплектність):
- Шліфування торців
- Тришарове покриття ефективним деревозахисним засобом на базі низькомолекулярної алкідної смоли методом розпилення.
Оциліндрований брус
Оциліндрований брус є найбільш оптимальним і поширеним матеріалом для будівництва дерев`яних будинків і бань, бесідок, альтанок, різноманітних садових меблів, дерев`яних конструкцій будь-яких видів. Дерев`яні будинки з оциліндрованого брусу відрізняються красою, всередині такого будинку завжди відчувається особлива затишна атмосфера.
Профільований брус
Найсучаснішим і високотехнологічним будівельним матеріалом в дерев`яному будівництві на сьогоднішній день є профільований брус. Для виробництва профільованого брусу, звичайному дерев`яному брусу на спеціальному деревообробному обладнанні надається певний профіль.
Подвійний брус з утепленням
Головна ідея застосування подвійного бруса полягала в досягненні енергоефективності житла. Над проектуванням енергозберігаючих будинків працюють провідні інженери та архітектори в різних країнах світу, запропонована фінами технологія подвійного бруса дає можливість звести до мінімуму тепловтрати будинку, а також об`єднує переваги будівництва дерев`яного будинку з економічністю споруди.
Клеєний брус
Клеєний брус принципово відрізняється від інших типів колод багатошаровістю. Така структура робить цей дерев’яний матеріал надміцним і витривалим.
Каркасні конструкції
Каркасні конструкції виготовляються на власних виробничих потужностях компанії «Домінант», з використанням сучасних деревообробних станків. Імпортне, високоточне обладнання дозволяє нам високоякісно виконувати свою роботу. Каркаси складаються зі струганих, ретельно висушених балок 150х50 мм (сосна першого сорту). Ці балки застосовуються для зовнішніх каркасів.










