Табея
- Кількість поверхів
- 2
- Площа
- 144.2
- Ширина
- 11.8
- Довжина
- 11.8
- Будинки і житлові будови
- Вілли
Котеджі
Маєтки
Садиби - Кількість кімнат
- Двокімнатні будинки
- Особливості будинків
- Будинки з котельнею
Будинки з мансардою
Будинки з терасою
Будинки зі сходами - Кількість поверхів споруди
- Двоповерхові будинки
(Що входить в ціну)
- комплект стін;
- комплект крокв;
- комплект балок перекриття;
- утеплювач міжвінцевий;
- антисептик (антисептування всього матеріалу);
- дубові нагеля;
- кріпильні материали (саморізи, усадкові болти, анкера, кріпильні пластини);
- гідроізоляція;
- вогнебіозахист (обробка деревини засобом І групи вогнезахисної ефективності)
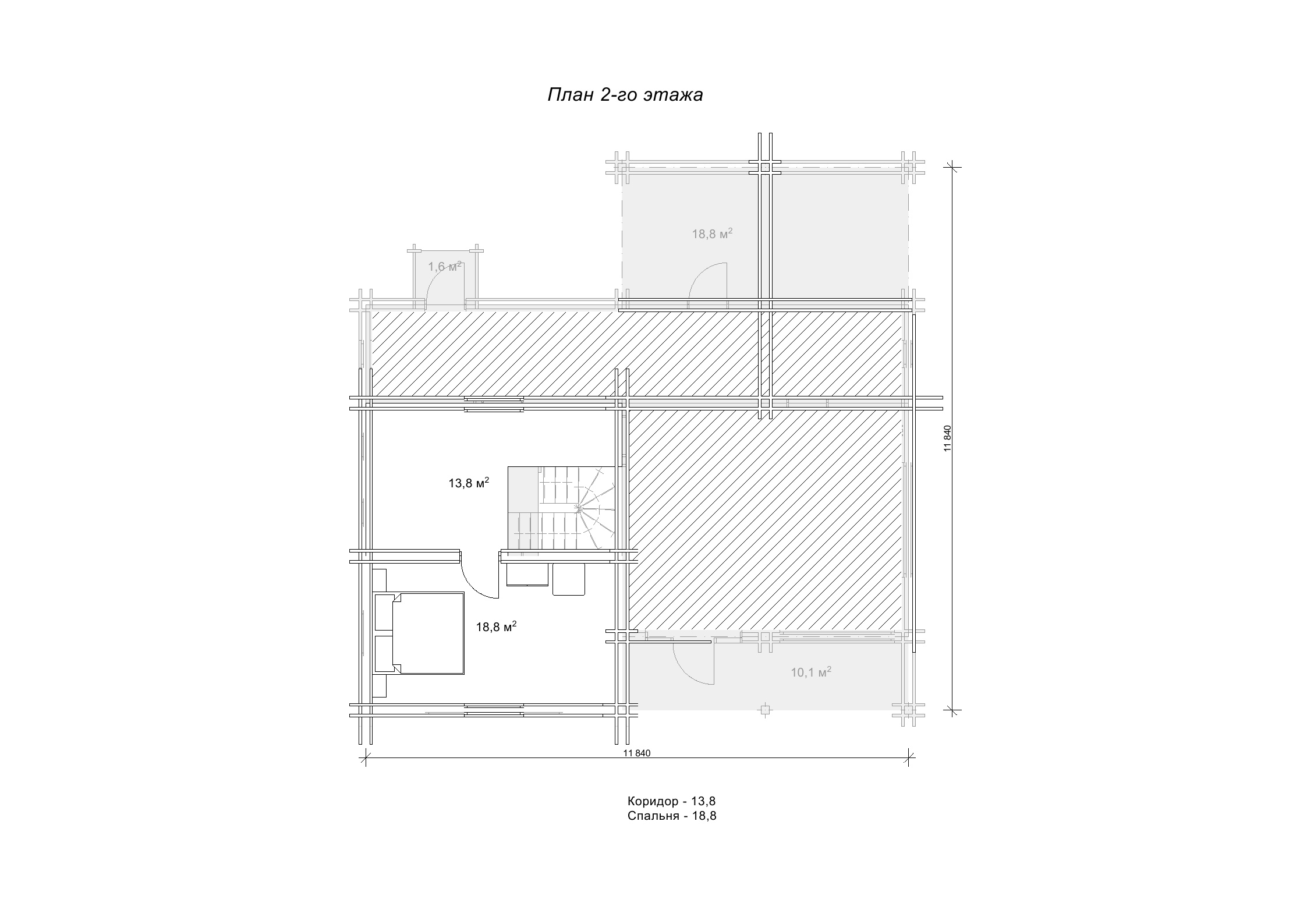
Проект будинку з дерева 11,8 х11, 8 м з утепленими стінами
Проект «Табея», створений за технологією подвійного брусу з утепленням є одним з найкращих варіантів для проживання. Утеплені арболітом стіни з натуральної сосни дозволяють суттєво економити на опаленні, і в той же час залишатись у максимально здорових та екологічно чистих умовах. Такий будинок набагато довше зберігатиме тепло взимку і залишатиметься прохолодним у літню спеку. Зовні цей комфортабельний будинок відрізняється цікавою архітектурою і виглядає немов двоповерховий котедж із прибудовою. Незвичайна будова викликає непідробний інтерес і бажання познайомитися з внутрішнім плануванням, яке має бути не менш цікавим, ніж зовнішній дизайн дерев'яного маєтку.
Будинок із дерева «Табея» з утепленими стінами, площа 144,2 м²
Проект «Табея» спланований у параметрах 11,8 на 11,8 м на двох поверхах, кожен із яких має свої особливості. На першому поверсі окрім студійного приміщення зали з кухнею є житлова кімната та комора, яку можна відвести під приміщення котельні. Також на першому поверсі є санвузол та тераса з навісом біля протилежних фасадів будиночка. Зручно, що тераса є і біля головного входу, і заднього дворика. На другому поверсі будівлі розташована лише спальня. Наявність лише однієї кімнати на другому поверсі зумовлює конструктивні особливості проекту «Табея», дозволяє заощадити на матеріалах та бюджеті споруди. Загальна площа будови становить 144,2 м2. Цей презентабельний, затишний та дуже теплий дерев'яний котедж створений, щоб стати надійним осередком вашої родини та місцем домашнього тепла та затишку.
- Кількість поверхів
- 2
- Площа
- 144.2
- Ширина
- 11.8
- Довжина
- 11.8
- Будинки і житлові будови
- Вілли
Котеджі
Маєтки
Садиби - Кількість кімнат
- Двокімнатні будинки
- Особливості будинків
- Будинки з котельнею
Будинки з мансардою
Будинки з терасою
Будинки зі сходами - Кількість поверхів споруди
- Двоповерхові будинки
Базова комплектація:
(Що входить в ціну)
- комплект стін;
- комплект крокв;
- комплект балок перекриття;
- утеплювач міжвінцевий;
- антисептик (антисептування всього матеріалу);
- дубові нагеля;
- кріпильні материали (саморізи, усадкові болти, анкера, кріпильні пластини);
- гідроізоляція;
- вогнебіозахист (обробка деревини засобом І групи вогнезахисної ефективності)
464130 грн.
Дах (комплектність):
- Рейка 100*25мм (cосна)
- Контрейка 50*25мм (сосна)
- Металочерепиця МОНТЕРРЕЙ (Польща) 0,45мм
- Коник прямий
- Планка примикання
- Лобова (декоративна) планка
- Вітровая планка
- Яндола
- Капельник (Карнизна планка)
- Ущільнювач універсальный
- Саморізи ОС 4.8х35
- Фарба-спрей
- Гідробар'єр
- Монтаж
596360 грн.
Вікна (комплектність):
- Вікно VEKA 58, колір білий 10
- Імпости вертикальні: 1 x 102103
- Скління: СПО, 24мм, (Rсп=0.36)*
- Тип фурнітури: Activpilot поворотно-відкидна, колір білий
- Підбір спеціальний: Activ микровентиляція; Activ 2-функц. механ.
- Моск.сітка: МС 3
- Підвіконня: ВМ 110мм, колір білий
- Підвіконня: ПВ ПВХ 150, заглушки: 600мм, колір білий
- Монтаж
146300 грн.
Двері (комплектність):
- Полотно
- Коробка
- Лиштва
- Карниз
- Фарбування
- Скло
- Фурнітура
- Врізка фурнітуры
- Монтаж
234360 грн.
Фарбування (комплектність):
- Шліфування торців
- Тришарове покриття ефективним деревозахисним засобом на базі низькомолекулярної алкідної смоли методом розпилення.
Оциліндрований брус
Оциліндрований брус є найбільш оптимальним і поширеним матеріалом для будівництва дерев`яних будинків і бань, бесідок, альтанок, різноманітних садових меблів, дерев`яних конструкцій будь-яких видів. Дерев`яні будинки з оциліндрованого брусу відрізняються красою, всередині такого будинку завжди відчувається особлива затишна атмосфера.
Профільований брус
Найсучаснішим і високотехнологічним будівельним матеріалом в дерев`яному будівництві на сьогоднішній день є профільований брус. Для виробництва профільованого брусу, звичайному дерев`яному брусу на спеціальному деревообробному обладнанні надається певний профіль.
Подвійний брус з утепленням
Головна ідея застосування подвійного бруса полягала в досягненні енергоефективності житла. Над проектуванням енергозберігаючих будинків працюють провідні інженери та архітектори в різних країнах світу, запропонована фінами технологія подвійного бруса дає можливість звести до мінімуму тепловтрати будинку, а також об`єднує переваги будівництва дерев`яного будинку з економічністю споруди.
Клеєний брус
Клеєний брус принципово відрізняється від інших типів колод багатошаровістю. Така структура робить цей дерев’яний матеріал надміцним і витривалим.
Каркасні конструкції
Каркасні конструкції виготовляються на власних виробничих потужностях компанії «Домінант», з використанням сучасних деревообробних станків. Імпортне, високоточне обладнання дозволяє нам високоякісно виконувати свою роботу. Каркаси складаються зі струганих, ретельно висушених балок 150х50 мм (сосна першого сорту). Ці балки застосовуються для зовнішніх каркасів.




















