Ковіра
- Кількість поверхів
- 1
- Площа
- 46.5
- Ширина
- 8.4
- Довжина
- 5.5
- Будинки і житлові будови
- Будиночки
Дачі
Котеджі - Кількість кімнат
- Однокімнатні будинки
- Особливості будинків
- Будинки з терасою
- Кількість поверхів споруди
- Одноповерхові будинки
- Будинки з брусу
- Будинки з клеєного брусу
Будинки з профільованого брусу - Комерційні будівлі
- Бази відпочинку
(Що входить в ціну)
- комплект стін;
- комплект крокв;
- комплект балок перекриття;
- утеплювач міжвінцевий;
- антисептик (антисептування всього матеріалу);
- дубові нагеля;
- кріпильні материали (саморізи, усадкові болти, анкера, кріпильні пластини);
- гідроізоляція;
- вогнебіозахист (обробка деревини засобом І групи вогнезахисної ефективності)
Будівництво літнього котеджу з сухого бруса 8 на 5 м
Котедж «Ковіра» виконується з висушеного, соснового бруса розміром 60*150 мм. Тонкі стіни дозволяють використовувати дерев’яний будиночок в літній період на базі відпочинку для здачі в оренду, тим самим, отримувати з нього прибуток. До того ж, застосування мінімального розміру бруса в будівлі економить бюджет будівництва. Тому, в першу чергу, позиціонуємо будиночок як комерційний об’єкт. По-друге, проект «Ковіра» може стати вашим дачним котеджем, який наповнить комфортом вашу ділянку і радістю ваше дозвілля. Щоб оформити замовлення на будівництво літнього котеджу з сухого бруса 8 на 5 м, звертайтеся в офіс «Домінант» за контактами, вказаними на сайті.
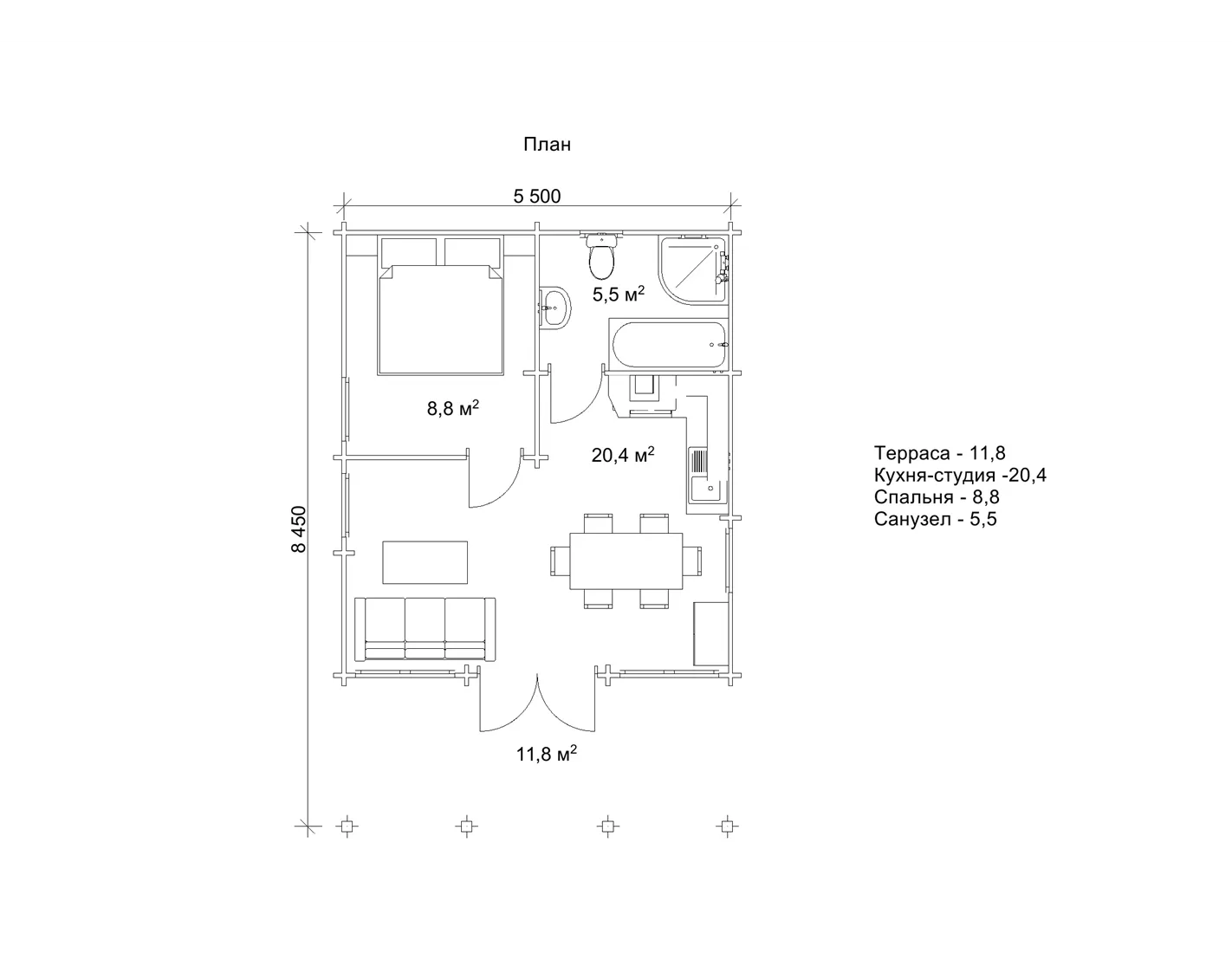
Планування літнього котеджу з сухого бруса «Ковіра» площа 46,5 м2
Планування брусового котеджу «Ковіра» максимально відкрите, починаючи з просторої літньої тераси і закінчуючи великою кількістю вікон від підлоги до стелі, що наповнюють кухню-студію сонячним світлом і теплом. Розмір кухні-студії 20,4 м2, спальня спланована на 8,8 м2, санвузол - 5,5 м2. Всередині будівлі можна поставити кухню, столик і м’який куточок, а на терасі поставити зручні шезлонги і приймати сонячні ванни. Одним з переваг планування котеджу виступає такий санвузол, де можна комфортно розташувати і ванну, і душ. Проект «Ковіра» просто створений для будівництва в мальовничому куточку природи, і в ньому можна не тільки відпочити, а й оздоровитися завдяки насиченістю стін котеджу цілющими сосновими смолами. Компактний і чарівний котедж «Ковіра» принесе набагато більше радості й затишку, ніж великі апартаменти в бетонній багатоповерхівці.
- Кількість поверхів
- 1
- Площа
- 46.5
- Ширина
- 8.4
- Довжина
- 5.5
- Будинки і житлові будови
- Будиночки
Дачі
Котеджі - Кількість кімнат
- Однокімнатні будинки
- Особливості будинків
- Будинки з терасою
- Кількість поверхів споруди
- Одноповерхові будинки
- Будинки з брусу
- Будинки з клеєного брусу
Будинки з профільованого брусу - Комерційні будівлі
- Бази відпочинку
Базова комплектація:
(Що входить в ціну)
- комплект стін;
- комплект крокв;
- комплект балок перекриття;
- утеплювач міжвінцевий;
- антисептик (антисептування всього матеріалу);
- дубові нагеля;
- кріпильні материали (саморізи, усадкові болти, анкера, кріпильні пластини);
- гідроізоляція;
- вогнебіозахист (обробка деревини засобом І групи вогнезахисної ефективності)
157950 грн.
Дах (комплектність):
- Рейка 100*25мм (cосна)
- Контрейка 50*25мм (сосна)
- Металочерепиця МОНТЕРРЕЙ (Польща) 0,45мм
- Коник прямий
- Планка примикання
- Лобова (декоративна) планка
- Вітровая планка
- Яндола
- Капельник (Карнизна планка)
- Ущільнювач універсальный
- Саморізи ОС 4.8х35
- Фарба-спрей
- Гідробар'єр
- Монтаж
192940 грн.
Вікна (комплектність):
- Вікно VEKA 58, колір білий 10
- Імпости вертикальні: 1 x 102103
- Скління: СПО, 24мм, (Rсп=0.36)*
- Тип фурнітури: Activpilot поворотно-відкидна, колір білий
- Підбір спеціальний: Activ микровентиляція; Activ 2-функц. механ.
- Моск.сітка: МС 3
- Підвіконня: ВМ 110мм, колір білий
- Підвіконня: ПВ ПВХ 150, заглушки: 600мм, колір білий
- Монтаж
146300 грн.
Двері (комплектність):
- Полотно
- Коробка
- Лиштва
- Карниз
- Фарбування
- Скло
- Фурнітура
- Врізка фурнітуры
- Монтаж
54684 грн.
Фарбування (комплектність):
- Шліфування торців
- Тришарове покриття ефективним деревозахисним засобом на базі низькомолекулярної алкідної смоли методом розпилення.
Оциліндрований брус
Оциліндрований брус є найбільш оптимальним і поширеним матеріалом для будівництва дерев`яних будинків і бань, бесідок, альтанок, різноманітних садових меблів, дерев`яних конструкцій будь-яких видів. Дерев`яні будинки з оциліндрованого брусу відрізняються красою, всередині такого будинку завжди відчувається особлива затишна атмосфера.
Профільований брус
Найсучаснішим і високотехнологічним будівельним матеріалом в дерев`яному будівництві на сьогоднішній день є профільований брус. Для виробництва профільованого брусу, звичайному дерев`яному брусу на спеціальному деревообробному обладнанні надається певний профіль.
Подвійний брус з утепленням
Головна ідея застосування подвійного бруса полягала в досягненні енергоефективності житла. Над проектуванням енергозберігаючих будинків працюють провідні інженери та архітектори в різних країнах світу, запропонована фінами технологія подвійного бруса дає можливість звести до мінімуму тепловтрати будинку, а також об`єднує переваги будівництва дерев`яного будинку з економічністю споруди.
Клеєний брус
Клеєний брус принципово відрізняється від інших типів колод багатошаровістю. Така структура робить цей дерев’яний матеріал надміцним і витривалим.
Каркасні конструкції
Каркасні конструкції виготовляються на власних виробничих потужностях компанії «Домінант», з використанням сучасних деревообробних станків. Імпортне, високоточне обладнання дозволяє нам високоякісно виконувати свою роботу. Каркаси складаються зі струганих, ретельно висушених балок 150х50 мм (сосна першого сорту). Ці балки застосовуються для зовнішніх каркасів.














