Рисанта
- Площа
- 215,7
- Ширина
- 15,2
- Довжина
- 11,2
- Будинки і житлові будови
- Вілли
Котеджі
Маєтки
Садиби - Кількість кімнат
- П’ятикімнатні будинки
- Особливості будинків
- Будинки з другим світлом
Будинки з каміном
Будинки з мансардою
Будинки з терасою
Будинки зі сходами - Кількість поверхів споруди
- Двоповерхові будинки
- Будинки з брусу
- Будинки з оциліндрованого брусу
(Що входить в ціну)
- комплект стін;
- комплект крокв;
- комплект балок перекриття;
- утеплювач міжвінцевий;
- антисептик (антисептування всього матеріалу);
- дубові нагеля;
- кріпильні материали (саморізи, усадкові болти, анкера, кріпильні пластини);
- гідроізоляція;
- вогнебіозахист (обробка деревини засобом І групи вогнезахисної ефективності)
Будівництво будинку 15,2 на 11,2 м з великими спальнями
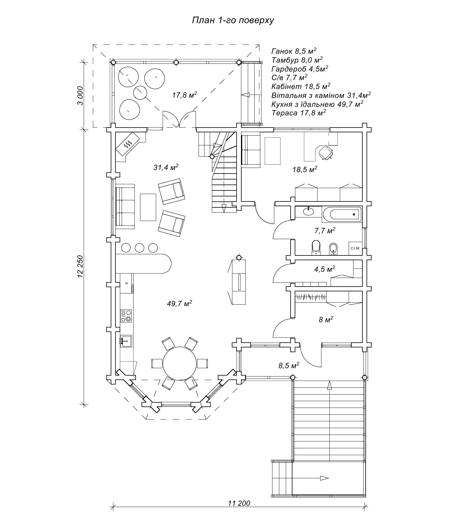
Двоповерховий будинок «Рисанта» з першого погляду вражає великою кількістю скляних поверхонь і ошатним еркером . Саме за рахунок еркеру створюється додатковий простір, що дозволяє великій кількості світла проникати всередину будинку. Презентабельний зовнішній вигляд споруди підсилюється ґрунтовним цокольним поверхом, на якому архітектор «Домінант-Вуд» пропонує розташувати двоповерхову дерев’яну конструкцію проекту «Рисанта», виконану в параметрах забудови 15,2 на 11,2 м. Загальна площа будинку складає 215,7 квадратних метрів.
Перший поверх містить тамбур площею 8,0 квадратних метрів, гардероб на 4,5 м2, ванну кімнату роміром 7,7 м2, кабінет (18,5 м2), вітальню з каміном (31,4 м2) та кухню з їдальнею площею 49,7 квадратних метрів.
Другий поверх містить хол на 9,7 квадратні метри, ванну кімнату площею 7,7 м2, а також три дуже просторі спальні - перша спальня має площу 18,5 квадратних метрів, а друга і третя спальні мають однакову площу – по 30,0 квадратів кожна. Загалом, оциліндрований будинок володіє місткою площею, дуже просторими кімнатами з великою кількістю природного світла завдяки великим вікнам і наявності еркеру – частини приміщення, що виступає з площини фасаду та дозволяє збільшити внутрішній простір житла, а також покращує його інсоляцію.
Будинок 15,2 на 11,2 м з великими спальнями, проект «Рисанта»
Як ми мали змогу переконатися, розглянувши план приміщень «Рисанта», всі кімнати в будинку більше стандартних розмірів. Цей проект просто створений для всіх, хто любить широту простору і воліє отримати вдома оригінальний інтер’єр.
На першому поверсі будинку знаходиться велика вітальня з каміном, що виступає осередком будівлі, створюючи теплу та романтичну атмосферу для родинних зустрічей і вечірок. Кухня з їдальнею площею 49,7 квадратних метрів є ідеальним місцем для готування родинних обідів. Також на першому поверсі є кабінет, де можна зосередитися на роботі, гардероб для зберігання одягу та тамбур для зручного і теплого входу в будинок.
На другому поверсі є три великі спальні та ванна кімната, що забезпечує комфортне проживання кожному мешканцю. Особливо виділяється спальня з площею 30,0 квадратних метрів, яка є достатньою для придбання великого ліжка та проведення комфортного дозвілля. За усіма своїми перевагами будинок з колод з великими вікнами та еркером задовольняє всі потреби родини господарів. Це ідеальне місце для тих, хто любить велику кількість світла, широту простору, хто цінить затишок та можливість оригінально оформити інтер’єр. Будинок «Рисанта» володіє усім необхідним для проживання та насолоди красою природи в найзручніших умовах. Щоб дізнатись подробиці оформлення замовлення на будинок «Рисанта», звертайтеся за контактами нашого сайту.
- Площа
- 215,7
- Ширина
- 15,2
- Довжина
- 11,2
- Будинки і житлові будови
- Вілли
Котеджі
Маєтки
Садиби - Кількість кімнат
- П’ятикімнатні будинки
- Особливості будинків
- Будинки з другим світлом
Будинки з каміном
Будинки з мансардою
Будинки з терасою
Будинки зі сходами - Кількість поверхів споруди
- Двоповерхові будинки
- Будинки з брусу
- Будинки з оциліндрованого брусу














