Тресет
Будинок 10х12 м на три спальні - «Тресет»
- Площа
- 129,6
- Ширина
- 10,8
- Довжина
- 12
- Будинки і житлові будови
- Будиночки
Дачі
Котеджі
Маєтки
Садиби - Кількість кімнат
- Чотирикімнатні будинки
- Особливості будинків
- Будинки з терасою
- Кількість поверхів споруди
- Одноповерхові будинки
- Будинки з брусу
- Будинки з оциліндрованого брусу
(Що входить в ціну)
- комплект стін;
- комплект крокв;
- комплект балок перекриття;
- утеплювач міжвінцевий;
- антисептик (антисептування всього матеріалу);
- дубові нагеля;
- кріпильні материали (саморізи, усадкові болти, анкера, кріпильні пластини);
- гідроізоляція;
- вогнебіозахист (обробка деревини засобом І групи вогнезахисної ефективності)
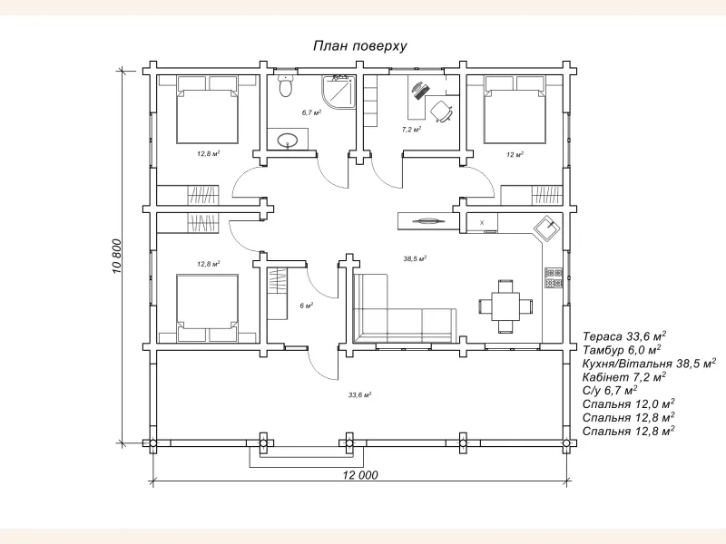
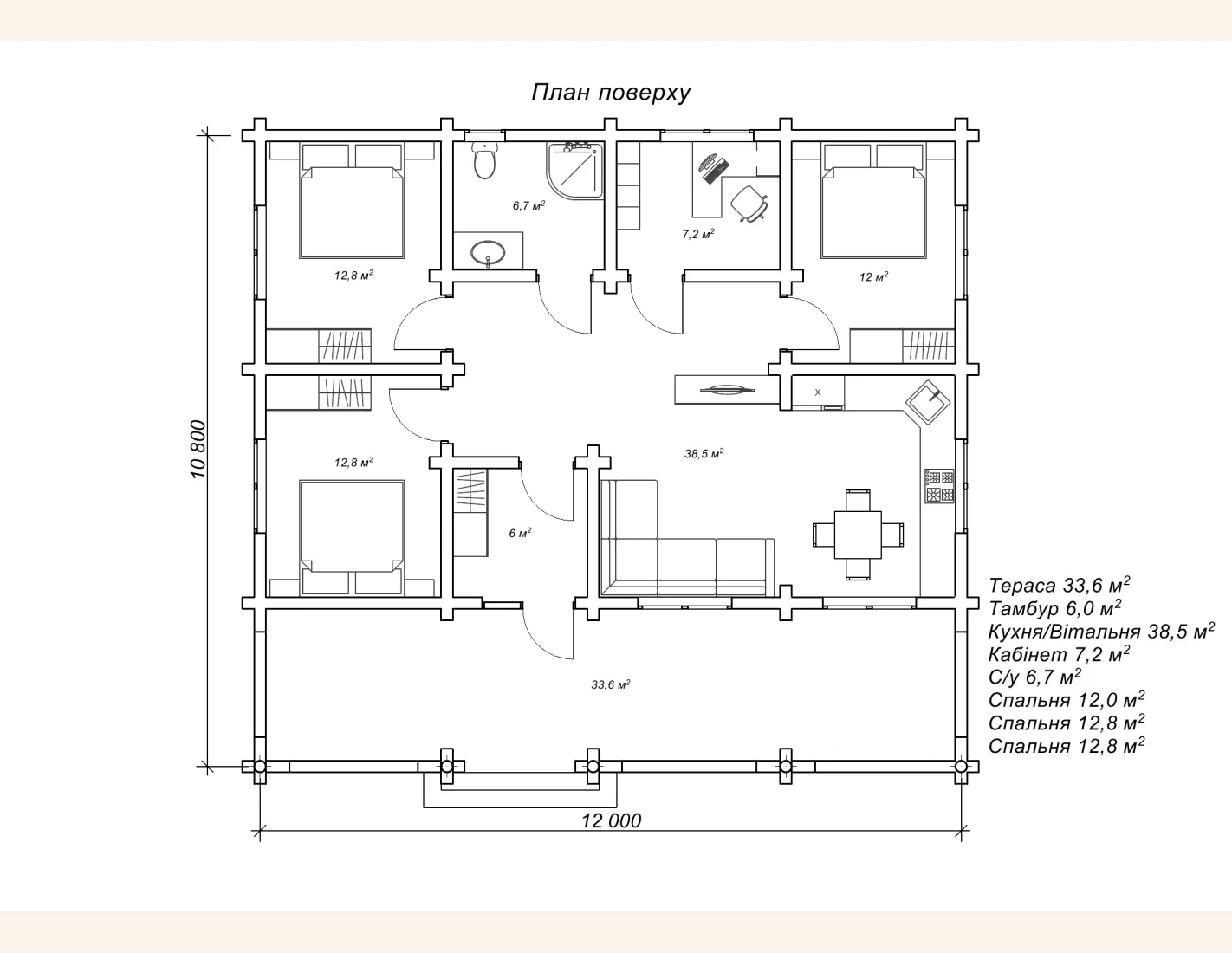
План будинку 10х12 м на три спальні
Проект будинку «Тресет» з оциліндрованих колод пропонує ідеальне рішення для тих, хто прагне забезпечити собі і своїй родині максимальний комфорт у заміському просторі. Цей гарний дерев'яний будинок, розроблений з урахуванням потреб сім'ї 4-5 мешканців. Проект включає три спальні по 12 м2, тамбур, хол, велику вітальню з кухнею більше тридцяти квадратів, ще й окремий, невеличкий кабінет на 8 м2. Тобто план будинку 10х12 м передбачає всі необхідні зони для комфортного проживання з врахуванням сучасних реалій, а також додаткові приміщення. Одноповерхове планування особливо актуальне для тих, хто бажає облаштувати житловий простір на одному рівні без зайвих переміщень по сходах.
Будинок «Тресет» з трьома спальнями, площа 129,6 м2
Варто відзначити, що за вартістю, що пропонується за котедж «Тресет» площею 129,6 м2, можна отримати лише скромну двокімнатну квартиру, тоді як з придбанням приватного будинку 10х12 ви зможете насолоджуватися простором та затишком заміської оселі з трьома спальнями на власній ділянці. Кожна з трьох спалень має окремий вхід в хол, що зручно дозволяє не перетинатися з іншими функціональними зонами. Зауважимо наявність в проекті ще одного окремого місця для відпочинку сім'ї – дуже просторої тераси під навісом біля входу. Це важливий аспект та приємний бонус життя у приватному будинку. Адже є прекрасна можливість проводити якомога більше часу на свіжому повітрі, не полишаючи комфорт оселі. Отже, якщо ви прагнете виїхати з міської квартири, рекомендуємо звернути особливу увагу на проект «Тресет», в якому за доступну вартість пропонуються всі переваги заміського, екологічного житла з натуральних матеріалів в оточенні справжньої природи!
- Площа
- 129,6
- Ширина
- 10,8
- Довжина
- 12
- Будинки і житлові будови
- Будиночки
Дачі
Котеджі
Маєтки
Садиби - Кількість кімнат
- Чотирикімнатні будинки
- Особливості будинків
- Будинки з терасою
- Кількість поверхів споруди
- Одноповерхові будинки
- Будинки з брусу
- Будинки з оциліндрованого брусу
Базова комплектація:
(Що входить в ціну)
- комплект стін;
- комплект крокв;
- комплект балок перекриття;
- утеплювач міжвінцевий;
- антисептик (антисептування всього матеріалу);
- дубові нагеля;
- кріпильні материали (саморізи, усадкові болти, анкера, кріпильні пластини);
- гідроізоляція;
- вогнебіозахист (обробка деревини засобом І групи вогнезахисної ефективності)
425250 грн.
Дах (комплектність):
- Рейка 100*25мм (cосна)
- Контрейка 50*25мм (сосна)
- Металочерепиця МОНТЕРРЕЙ (Польща) 0,45мм
- Коник прямий
- Планка примикання
- Лобова (декоративна) планка
- Вітровая планка
- Яндола
- Капельник (Карнизна планка)
- Ущільнювач універсальный
- Саморізи ОС 4.8х35
- Фарба-спрей
- Гідробар'єр
- Монтаж
245560 грн.
Вікна (комплектність):
- Вікно VEKA 58, колір білий 10
- Імпости вертикальні: 1 x 102103
- Скління: СПО, 24мм, (Rсп=0.36)*
- Тип фурнітури: Activpilot поворотно-відкидна, колір білий
- Підбір спеціальний: Activ микровентиляція; Activ 2-функц. механ.
- Моск.сітка: МС 3
- Підвіконня: ВМ 110мм, колір білий
- Підвіконня: ПВ ПВХ 150, заглушки: 600мм, колір білий
- Монтаж
355300 грн.
Двері (комплектність):
- Полотно
- Коробка
- Лиштва
- Карниз
- Фарбування
- Скло
- Фурнітура
- Врізка фурнітуры
- Монтаж
144956 грн.
Фарбування (комплектність):
- Шліфування торців
- Тришарове покриття ефективним деревозахисним засобом на базі низькомолекулярної алкідної смоли методом розпилення.
Оциліндрований брус
Оциліндрований брус є найбільш оптимальним і поширеним матеріалом для будівництва дерев`яних будинків і бань, бесідок, альтанок, різноманітних садових меблів, дерев`яних конструкцій будь-яких видів. Дерев`яні будинки з оциліндрованого брусу відрізняються красою, всередині такого будинку завжди відчувається особлива затишна атмосфера.
Профільований брус
Найсучаснішим і високотехнологічним будівельним матеріалом в дерев`яному будівництві на сьогоднішній день є профільований брус. Для виробництва профільованого брусу, звичайному дерев`яному брусу на спеціальному деревообробному обладнанні надається певний профіль.
Подвійний брус з утепленням
Головна ідея застосування подвійного бруса полягала в досягненні енергоефективності житла. Над проектуванням енергозберігаючих будинків працюють провідні інженери та архітектори в різних країнах світу, запропонована фінами технологія подвійного бруса дає можливість звести до мінімуму тепловтрати будинку, а також об`єднує переваги будівництва дерев`яного будинку з економічністю споруди.
Клеєний брус
Клеєний брус принципово відрізняється від інших типів колод багатошаровістю. Така структура робить цей дерев’яний матеріал надміцним і витривалим.
Каркасні конструкції
Каркасні конструкції виготовляються на власних виробничих потужностях компанії «Домінант», з використанням сучасних деревообробних станків. Імпортне, високоточне обладнання дозволяє нам високоякісно виконувати свою роботу. Каркаси складаються зі струганих, ретельно висушених балок 150х50 мм (сосна першого сорту). Ці балки застосовуються для зовнішніх каркасів.
























