- Статті
- 1 вподобання
- 12759 покази
Дерев’яне домобудівництво - це робота, яку ми по-справжньому любимо, а тому ось уже другий десяток років будуємо будинки та інші конструкції з бруса. Крім того, ми дбаємо про те, щоб у вас була велика кількість інформації про облаштування, особливості догляду та правила вибору якісних проектів дерев’яних будинків. Сьогодні ми підготували для вас детальну інформацію по облаштуванні мансардного поверху в дерев’яному будинку.
Мансарда - відмінне рішення, для розширення житлової площі в невеликому будинку за рахунок обладнання горищного приміщення під житлові кімнати. Погодьтеся, на горищі з роками накопичується нікому не потрібний склад для зберігання старих речей. Але сучасний спосіб життя диктує свої правила, люди не прив’язуються до речей, які завжди в достатку і відкритому доступі. Навпаки, всі позбавляються від сміття і мотлоху, в моді відкритий простір, наповнений світлом і повітрям. Головне правильно облаштувати приміщення мансарди і спланувати її дизайн відповідно до функціонального призначення цього приміщення.
Розрізняють декілька видів мансарди залежно від тих чи інших характеристик. І зараз ми вам про них розповімо.
1. Види мансарди залежно від форми даху
Мансарда під односхилим дахом. Популярна зараз форма односхилого даху, як в проекті теплого будинку з подвійного бруса «Фанней», робить будинок сучасним і стильним. Відповідно мансарда під нею простора і обмежена тільки одним кутом нахилу.
Мансарда під двосхилим дахом. Найбільш поширений вид мансард дерев’яного будинку. Прикладом може послужити проект зрубу 6х8 м «Алегро». Недоліком в них є обмежений простір через двох скатів даху, що можуть бути розташовані під великим кутом нахилу.
Мансарда під ламаним двосхилим дахом. Такий дах має від 2-х до 4-х зламів. Її форма дозволяє мінімізувати скат покрівлі та площа мансарди використовується максимально, дивимося проект дерев’яного котеджу «Анна».
Мансарда з шатровим дахом, як в проекті «Байрон». Даний дах має 4 ската від центру до стін.
Мансарда з вальмовой дахом. Має 4 ската, з боків характеризуються витягнутою формою, як в проекті «Марта».
Мансарда з виносної консоллю. Досить складна в оформленні, але дозволяє встановити вертикальні вікна, як в проекті таунхауса «Стейдан».
Мансарда з багаторівневою, багатощипцевих дахом. Такий вид мансард конструктивно найскладніший, як в проекті «Тілейф».
2. Види мансард по висоті стін
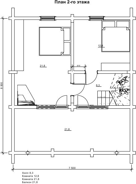
Напівмансарда, висота стін до 0,8 м. Мансарда, висота стін до 1,5 м (якщо висота стін до 2,5 м - це вже повноцінний поверх), докладне порівняння мансарди і повноцінного другого поверху ви прочитаєте в одній з наших публікацій. А зараз пропонуємо порівняти полумансарду в проекті «Альвін» і мансарду в проекті «Ізарна».
3. Види мансард по виду матеріалів виготовлення
Дерев’яні
Цегляні
Виконані з легких сталевих тонкостінних конструкцій (ЛСТК)
Найпопулярніші мансарди - це з дерев’яного бруса або ЛСТК, так як прості в роботі і мають невелику вагу. Це дуже важливо, особливо якщо мансарду добудовують на вже готовий будинок, наприклад, як в проектах «Аметист» і «Лозена».
В першу чергу, для побудови дерев’яної мансарди потрібно правильно вибрати матеріал. Так як «Домінант» спеціалізується саме на дерев’яному будівництві, ми рекомендуємо оциліндровану колоду, сухий профільований брус або подвійний брус з утепленням. Правильно підібрати матеріал вам допоможе наш розділ на сайті «Технології виробництва». Ми подбаємо про те, щоб для добудови мансарди на вашому будинку, у вас був найякісніший і надійний брус з деревини сосни, оброблений сертифікованими антисептиками і антипіренами.
Отже, деревину підготували, перейдемо до оформлення мансард. В першу чергу потрібно визначити які функції виконуватиме мансарда. Буде це бібліотека, ігрова, кабінет, можливо, дитяча або спальня. Залежно від цього вибираємо стиль і планування.
Для комфорту та безпеки мансардного приміщення, слід подбати про грамотну тепло- і гідроізоляцію, а також вентиляцію. Це дуже важливо, адже скупчення вологи усередині приміщення неодмінно призведе до утворення конденсату і, як наслідок, грибків і плісняви. А постійні тепловтрати не комфортні і не вигідні, як мінімум фінансово. Грамотна теплоізоляція зберігає взимку тепло, а влітку прохолоду, і додатково знизить звукопровідність.
Теплоізоляція мансарди складається з наступних компонентів:
- Пароізоляційний шар (захищає приміщення від парів і вологи зсередини).
- Шар утеплювача (перешкоджає виходу тепла назовні).
- Гідроізоляційний шар (захищає від попадання вологи зовні приміщення).
- Повітряний прошарок (теплоізоляція і вентиляція).
Зробивши таку ізоляцію, можете бути впевнені у відмінному мікрокліматі і безпеці будинку з мансардою. На наступному етапі потрібно подбати про підведення необхідних комунікацій (цими питаннями обов’язково повинні займатися профільні фахівці).
Далі слідує вибір і установка вікон. Адже від цього залежить кількість природного світла, а герметичність убезпечить вас від попадання вологи в приміщення. У дерев’яній мансарді є певна специфіка установки вікон і дверей, які монтуються в обсаду для безпечних усадочних процесів, характерних дерев’яним зрубам.
На наступному етапі потрібно подбати про оздоблення стін. Для мансардних приміщень вибирають світлі відтінки. Вони візуально збільшую простір. Якщо мансарда з колод - досить просто покрити стіни безбарвним воском. Природно, ви заздалегідь для себе вибираєте в якому стилі буде оформлена ваша мансарда. Це може бути оригінальна бібліотека, на схилах стін можна влаштувати цікаві підвісні полки для книг. Можна обладнати зимовий сад або наповнену світлом і повітрям спальню. До душі вашим дітям доведеться дитяча на мансардному поверсі. Вигини стін дадуть волю фантазії дітей для його оформлення. Хоч би яким був ваш вибір, впевнені вам повинен сподобатися результат. Адже мансарда з можливістю установки оригінальних вікон в покрівлі, які «дивляться» прямо в небо - це вже оригінально і незвично. А ще мансарду можна дуже красиво прикрасити ліхтариками до новорічних свят.
Дерев’яна мансарда забезпечить в будинку природний, максимально наближений до природи мікроклімат і стане вашим улюбленим куточком відпочинку і усамітнення. А якщо ви не знаєте як правильно побудувати мансарду, фахівці компанії «Домінант» з радістю допоможуть вам у плануванні та облаштуванні вашого будинку з мансардою.





































