Анна
- Кількість поверхів
- 2
- Площа
- 131.7
- Ширина
- 8.8
- Довжина
- 7
- Будинки і житлові будови
- Котеджі
Маєтки - Кількість кімнат
- Трикімнатні будинки
- Особливості будинків
- Будинки з верандою
Будинки з мансардою
Будинки з терасою
Будинки зі сходами - Кількість поверхів споруди
- Двоповерхові будинки
- Будинки з брусу
- Будинки з оциліндрованого брусу
(Що входить в ціну)
- комплект стін;
- комплект крокв;
- комплект балок перекриття;
- утеплювач міжвінцевий;
- антисептик (антисептування всього матеріалу);
- дубові нагеля;
- кріпильні материали (саморізи, усадкові болти, анкера, кріпильні пластини);
- гідроізоляція;
- вогнебіозахист (обробка деревини засобом І групи вогнезахисної ефективності)
Котедж Анна dominant-wood.com.ua/uk/proekty/238-anna - це оригінальний проект двоповерхового дерев’яного будинку, який може служити для повсякденного життя або як дача. Цікавий дизайн котеджу зовні плавно проектується і на створювану їм атмосферу.
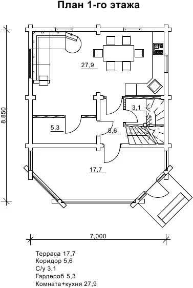
Оригінальна форма будинку елегантно поєднується з будь-яким ландшафтом. Стиль пропонованого вам проекту зовні нагадує аристократичний особняк. При цьому, цілком поєднує в собі всі сучасні рішення і функції. У будинку знаходиться вітальня, об’єднана з кухнею, санвузол, гардероб і дві спальні кімнати. Незвичайна тераса перед входом, на якій можна чудово відпочити в будь-який час року, є родзинкою даного будинку. Це закрита тераса, на якій можна проводити час в своє задоволення незалежно від погодних умов. Досить простора по площі і незвичайної форми тераса, дає вам можливість так само індивідуально її облаштувати. Помістивши на ній м’які меблі, ви створите не просто затишок, але і організуєте улюблене місце для посиденьок всієї вашої сім’ї і близьких.
Так само, доречними тут будуть і кімнатні рослини, з яких можна створити гарний у зимовий сад і цілорічний зелений куточок для ще більш комфортного проведення часу. Якщо ви хочете почути ще більше ідей для дизайну тераси, ви можете прочитати це в статті «Тераса: ідеї оформлення» dominant-wood.com.ua/uk/blog/statti/terasa-idei-oformlennya. Такі дерев’яні котеджі як проект Анна користуються великою популярністю в Україні. Проживаючи в такому будиночку, ви можете більше часу проводити на свіжому повітрі і відпочивати з близькими від рутини буденних днів.
- Кількість поверхів
- 2
- Площа
- 131.7
- Ширина
- 8.8
- Довжина
- 7
- Будинки і житлові будови
- Котеджі
Маєтки - Кількість кімнат
- Трикімнатні будинки
- Особливості будинків
- Будинки з верандою
Будинки з мансардою
Будинки з терасою
Будинки зі сходами - Кількість поверхів споруди
- Двоповерхові будинки
- Будинки з брусу
- Будинки з оциліндрованого брусу
Базова комплектація:
(Що входить в ціну)
- комплект стін;
- комплект крокв;
- комплект балок перекриття;
- утеплювач міжвінцевий;
- антисептик (антисептування всього матеріалу);
- дубові нагеля;
- кріпильні материали (саморізи, усадкові болти, анкера, кріпильні пластини);
- гідроізоляція;
- вогнебіозахист (обробка деревини засобом І групи вогнезахисної ефективності)
252720 грн.
Дах (комплектність):
- Рейка 100*25мм (cосна)
- Контрейка 50*25мм (сосна)
- Металочерепиця МОНТЕРРЕЙ (Польща) 0,45мм
- Коник прямий
- Планка примикання
- Лобова (декоративна) планка
- Вітровая планка
- Яндола
- Капельник (Карнизна планка)
- Ущільнювач універсальный
- Саморізи ОС 4.8х35
- Фарба-спрей
- Гідробар'єр
- Монтаж
175400 грн.
Вікна (комплектність):
- Вікно VEKA 58, колір білий 10
- Імпости вертикальні: 1 x 102103
- Скління: СПО, 24мм, (Rсп=0.36)*
- Тип фурнітури: Activpilot поворотно-відкидна, колір білий
- Підбір спеціальний: Activ микровентиляція; Activ 2-функц. механ.
- Моск.сітка: МС 3
- Підвіконня: ВМ 110мм, колір білий
- Підвіконня: ПВ ПВХ 150, заглушки: 600мм, колір білий
- Монтаж
0 грн.
Двері (комплектність):
- Полотно
- Коробка
- Лиштва
- Карниз
- Фарбування
- Скло
- Фурнітура
- Врізка фурнітуры
- Монтаж
118048 грн.
Фарбування (комплектність):
- Шліфування торців
- Тришарове покриття ефективним деревозахисним засобом на базі низькомолекулярної алкідної смоли методом розпилення.
Оциліндрований брус
Оциліндрований брус є найбільш оптимальним і поширеним матеріалом для будівництва дерев`яних будинків і бань, бесідок, альтанок, різноманітних садових меблів, дерев`яних конструкцій будь-яких видів. Дерев`яні будинки з оциліндрованого брусу відрізняються красою, всередині такого будинку завжди відчувається особлива затишна атмосфера.
Профільований брус
Найсучаснішим і високотехнологічним будівельним матеріалом в дерев`яному будівництві на сьогоднішній день є профільований брус. Для виробництва профільованого брусу, звичайному дерев`яному брусу на спеціальному деревообробному обладнанні надається певний профіль.
Подвійний брус з утепленням
Головна ідея застосування подвійного бруса полягала в досягненні енергоефективності житла. Над проектуванням енергозберігаючих будинків працюють провідні інженери та архітектори в різних країнах світу, запропонована фінами технологія подвійного бруса дає можливість звести до мінімуму тепловтрати будинку, а також об`єднує переваги будівництва дерев`яного будинку з економічністю споруди.
Клеєний брус
Клеєний брус принципово відрізняється від інших типів колод багатошаровістю. Така структура робить цей дерев’яний матеріал надміцним і витривалим.
Каркасні конструкції
Каркасні конструкції виготовляються на власних виробничих потужностях компанії «Домінант», з використанням сучасних деревообробних станків. Імпортне, високоточне обладнання дозволяє нам високоякісно виконувати свою роботу. Каркаси складаються зі струганих, ретельно висушених балок 150х50 мм (сосна першого сорту). Ці балки застосовуються для зовнішніх каркасів.












