Тілейф
Будинок з подвійного брусу з утепленням - «Тілейф»
- Кількість поверхів
- 2
- Площа
- 266.3
- Ширина
- 17.8
- Довжина
- 14.3
- Будинки і житлові будови
- Маєтки
- Кількість кімнат
- Трикімнатні будинки
- Особливості будинків
- Будинки з басейном
Будинки з другим світлом
Будинки з мансардою
Будинки з терасою
Будинки зі сходами
Будинки з ґанком - Кількість поверхів споруди
- Двоповерхові будинки
- Будинки з брусу
- Будинки з подвійного брусу з утепленням
(Що входить в ціну)
- комплект стін;
- комплект крокв;
- комплект балок перекриття;
- утеплювач міжвінцевий;
- антисептик (антисептування всього матеріалу);
- дубові нагеля;
- кріпильні материали (саморізи, усадкові болти, анкера, кріпильні пластини);
- гідроізоляція;
- вогнебіозахист (обробка деревини засобом І групи вогнезахисної ефективності)
Будівництво будинку з подвійного брусу з утеплювачем
Проект будинку «Тілейф» відрізняється великою кількістю особливостей і переваг, починаючи від зовнішньої краси і закінчуючи цікавим і нестандартним плануванням приміщень. Головна відмінність проекту «Тілейф» - це його виконання за технологією подвійного брусу з утеплювачем. На зовнішніх фасадах будинку видно два ряди бруса, між якими вже всередині стіни укладається утеплювач. Загальна товщина такої стіни складає 300 мм, що по теплопровідності еквівалентно цільній дерев’яній стіні товщиною 517 мм. Цей надійний, дуже теплий і гарний будинок сподобається найвимогливішому господареві. Великі вікна другого світла, затишні тераси, подвійні ряди брусів, які виступають на фасадах ефектно прикрашають будову. Побачивши таку красу, обов’язково захочеться зайти всередину і пройтися по просторим, світлим кімнатам.
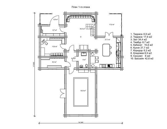
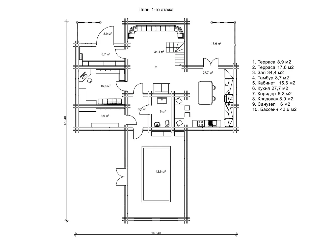
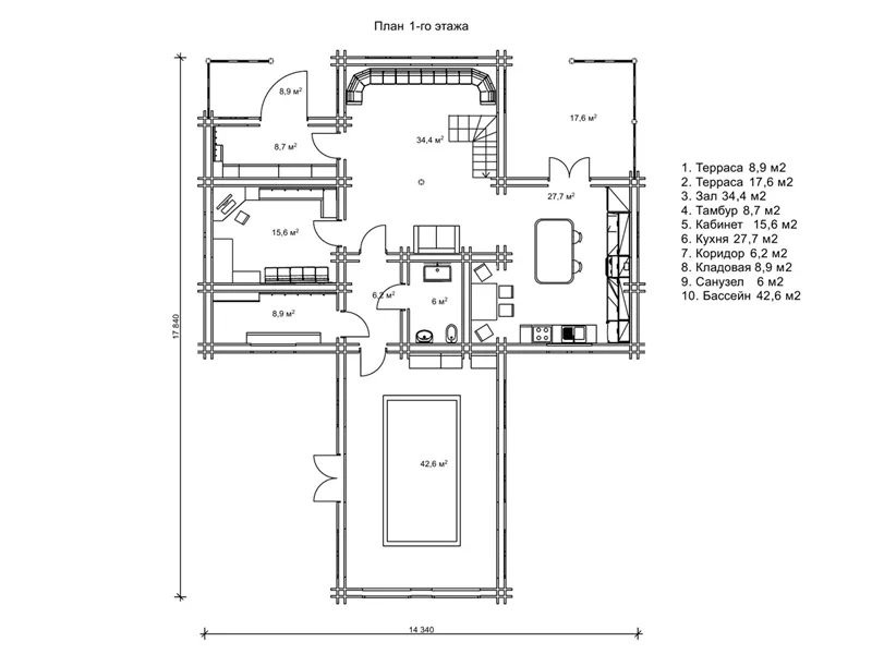
Планування особняка з подвійного бруса «Тілейф»
Параметри забудови по проекту «Тілейф» досить великі 17,8х14,3 м, а загальна площа особняка складає 266,3 м². Для його будівництва знадобиться велика земельна ділянка розміром до 15 соток. Більш детально з тим як підбирається площа дерев’яного будинку і оптимальний розмір приміщень, можна ознайомитися на сайті. Дерев’яний будинок «Тілейф» спроектований в два поверхи. Основною «родзинкою» першого поверху виступає просторий басейн з розмірами 4х6 м. Загальна площа приміщення з басейном становить 42,6 м². Тут відмінно виглядатимуть зручні меблі, столик для чаювань і шезлонги, де можна розслабитися після плавання. Обов’язково варто звернути увагу і на планування інших приміщень першого поверху цього будинку, який вміщує великий зал площею 34,4 м², простору кухню на 27,7 м², окремий робочий кабінет, а також тамбур, комору і санвузол. Також на першому поверсі спроектовані дві літні тераси з обох сторін будівлі. Перша тераса біля головного входу являє собою затишний ганок, а друга тераса з входом на кухню відкриває безліч можливостей для відпочинку та застіль в компанії близьких людей на відкритому повітрі. Піднімаючись на другий поверх особняка, потрапляємо в коридорчик звідки відкривається розкішний вид з площадки другого світла, де також є виходи в дві спальні, санвузол і окрему ванну кімнату. Внутрішнє наповнення особняка «Тілейф» особливо гармонійно поєднується із зовнішнім ефектним виглядом будівлі. Такий будинок прослужить багатьом поколінням великого сімейства і стане справжньою гордістю своїх господарів.
Особняк з другим світлом і басейном
Ми пропонуємо будинки, будівництво яких виконуємо за трьома технологіями: з оциліндрованої колоди, сухий профільований брус і подвійний брус з утеплювачем. Кожен з проектів може бути виконаний по будь-якій з перерахованих технологій. Якщо ви розглядаєте гідний варіант житла, хочете оздоровлюватися кожен день у власному будинку, плаваючи в басейні, при цьому отримувати естетичну насолоду від гарної обстановки, варто звернути увагу на проект «Тілейф» - виключно комфортний і теплий дерев’яний будинок, виконаний з подвійного брусу.
- Кількість поверхів
- 2
- Площа
- 266.3
- Ширина
- 17.8
- Довжина
- 14.3
- Будинки і житлові будови
- Маєтки
- Кількість кімнат
- Трикімнатні будинки
- Особливості будинків
- Будинки з басейном
Будинки з другим світлом
Будинки з мансардою
Будинки з терасою
Будинки зі сходами
Будинки з ґанком - Кількість поверхів споруди
- Двоповерхові будинки
- Будинки з брусу
- Будинки з подвійного брусу з утепленням
Базова комплектація:
(Що входить в ціну)
- комплект стін;
- комплект крокв;
- комплект балок перекриття;
- утеплювач міжвінцевий;
- антисептик (антисептування всього матеріалу);
- дубові нагеля;
- кріпильні материали (саморізи, усадкові болти, анкера, кріпильні пластини);
- гідроізоляція;
- вогнебіозахист (обробка деревини засобом І групи вогнезахисної ефективності)
763020 грн.
Дах (комплектність):
- Рейка 100*25мм (cосна)
- Контрейка 50*25мм (сосна)
- Металочерепиця МОНТЕРРЕЙ (Польща) 0,45мм
- Коник прямий
- Планка примикання
- Лобова (декоративна) планка
- Вітровая планка
- Яндола
- Капельник (Карнизна планка)
- Ущільнювач універсальный
- Саморізи ОС 4.8х35
- Фарба-спрей
- Гідробар'єр
- Монтаж
1245340 грн.
Вікна (комплектність):
- Вікно VEKA 58, колір білий 10
- Імпости вертикальні: 1 x 102103
- Скління: СПО, 24мм, (Rсп=0.36)*
- Тип фурнітури: Activpilot поворотно-відкидна, колір білий
- Підбір спеціальний: Activ микровентиляція; Activ 2-функц. механ.
- Моск.сітка: МС 3
- Підвіконня: ВМ 110мм, колір білий
- Підвіконня: ПВ ПВХ 150, заглушки: 600мм, колір білий
- Монтаж
0 грн.
Двері (комплектність):
- Полотно
- Коробка
- Лиштва
- Карниз
- Фарбування
- Скло
- Фурнітура
- Врізка фурнітуры
- Монтаж
558124 грн.
Фарбування (комплектність):
- Шліфування торців
- Тришарове покриття ефективним деревозахисним засобом на базі низькомолекулярної алкідної смоли методом розпилення.
Параметри забудови
- Кількість поверхів: 2
- Площа: 266.3
Розмір забудови
- Ширина: 17.8
- Довжина: 14.3
Перший поверх
| тераса (м²) | 8,9 |
| тераса (м²) | 17,6 |
| зал (м²) | 34,4 |
| тамбур (м²) | 8,7 |
| кабінет (м²) | 15,6 |
| кухня (м²) | 27,7 |
| коридор (м²) | 6,2 |
| кладова (м²) | 8,9 |
| санвузол (м²) | 6 |
| басейн (м²) | 42,6 |
Другий поверх
| спальня (м²) | 21,3 |
| коридор (м²) | 13,8 |
| друге світло (м²) | 20,6 |
| спальня (м²) | 21,3 |
| санвузол (м²) | 4,9 |
| душова (м²) | 7,8 |
Оциліндрований брус
Оциліндрований брус є найбільш оптимальним і поширеним матеріалом для будівництва дерев`яних будинків і бань, бесідок, альтанок, різноманітних садових меблів, дерев`яних конструкцій будь-яких видів. Дерев`яні будинки з оциліндрованого брусу відрізняються красою, всередині такого будинку завжди відчувається особлива затишна атмосфера.
Профільований брус
Найсучаснішим і високотехнологічним будівельним матеріалом в дерев`яному будівництві на сьогоднішній день є профільований брус. Для виробництва профільованого брусу, звичайному дерев`яному брусу на спеціальному деревообробному обладнанні надається певний профіль.
Подвійний брус з утепленням
Головна ідея застосування подвійного бруса полягала в досягненні енергоефективності житла. Над проектуванням енергозберігаючих будинків працюють провідні інженери та архітектори в різних країнах світу, запропонована фінами технологія подвійного бруса дає можливість звести до мінімуму тепловтрати будинку, а також об`єднує переваги будівництва дерев`яного будинку з економічністю споруди.
Клеєний брус
Клеєний брус принципово відрізняється від інших типів колод багатошаровістю. Така структура робить цей дерев’яний матеріал надміцним і витривалим.
Каркасні конструкції
Каркасні конструкції виготовляються на власних виробничих потужностях компанії «Домінант», з використанням сучасних деревообробних станків. Імпортне, високоточне обладнання дозволяє нам високоякісно виконувати свою роботу. Каркаси складаються зі струганих, ретельно висушених балок 150х50 мм (сосна першого сорту). Ці балки застосовуються для зовнішніх каркасів.













