- Новини
- 0 вподобання
- 3485 покази
Кілька років тому ми збудували дуже гарний будинок і за бажанням замовників пофарбували його в білий колір. Це був одноповерховий проект «Ізабелла» , будували ми його з оциліндрованих колод. Не тільки зовнішній вигляд котеджу привертав особливу увагу, його внутрішнє планування також було вдало продумане, і будиночок отримав особливу популярність серед клієнтів. Тому сьогодні ми раді представити оновлену версію проекту - «Ізабелла2» із сухого, профільованого брусу.
Презентація нового проекту будинку із сухого брусу «Ізабелла2»
Одноповерховий котедж з великими вікнами на добротних стінах з гладко відшліфованого брусу виглядає дуже презентабельно і відразу привертає увагу завдяки величезній терасі під навісом. Оригінальний ламаний дах, вікна від підлоги до стелі, велика тераса – всі елементи архітектури цього будиночка вишиковуються в гармонійний ансамбль, що радує око унікальною естетикою та натуральною красою дерев'яного масиву.
Розкішна тераса – візитна картка проекту «Ізабелла2», яка багато в чому визначає його функціональне призначення. Ми позиціонуємо цей котедж як сезонний, дачний або гостьовий будинок, який ідеально будувати десь у мальовничому куточку природи. Ця розкішна вілла, що повністю побудована з екологічних матеріалів, по суті, сама є частиною природи. Тут можна скільки завгодно милуватися красою пейзажів через величезні вікна, або сидячи в тіні навісу на просторій терасі. І тут можна скільки завгодно залишатися на літню відпустку або жити постійно, до чого спонукає вдале планування.
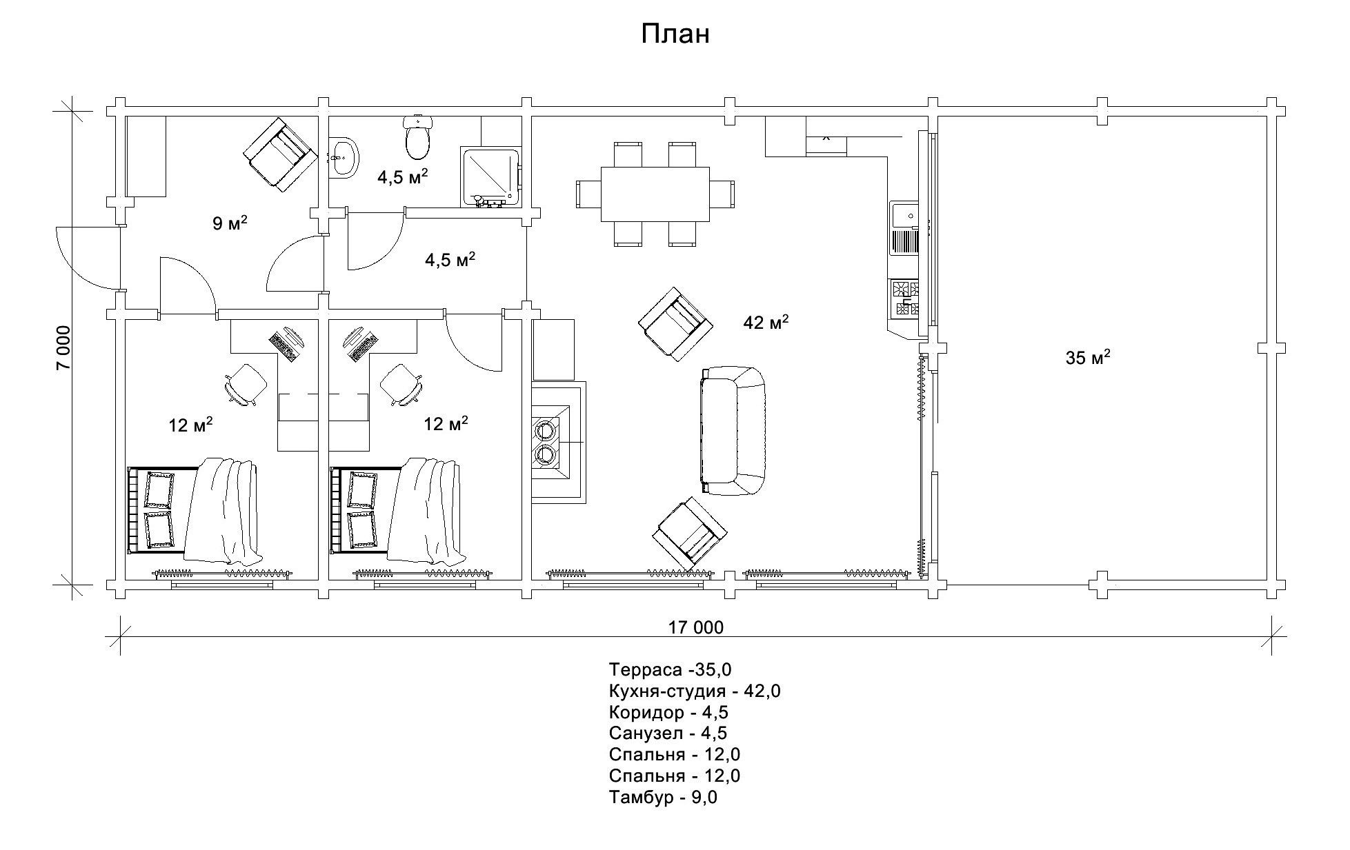
Обов'язково відзначимо нестандартні габарити дерев'яної вілли «Ізабелла2», які становлять 7 на 17 м. Такий прямокутний розмір зручний для витягнутої, вузької ділянки. Площа будівлі, включаючи терасу, становить 119 м2. У котеджі сплановано дві житлові кімнати по 12 м2, велика кухня-студія з каміном, тераса, санвузол та тамбур. Наявність теплового тамбуру дозволяє розглядати проект «Ізабелла2» також як всесезонне житло.
Таке планувальне рішення допоможе не впустити холодне повітря та вуличний бруд усередину приміщень. До того ж всі приміщення розташовані на першому поверсі, тому важливо добре зберігати тепло всередині будиночка. Проект одноповерхової вілли зручний для тих, хто бажає влаштувати життєвий простір на одному рівні без постійних пересувань сходами, що крадуть корисну площу.
Ще одне можливе функціональне застосування проекту «Ізабелла2» – комерційне. Відпочинок на такій розкішній віллі з натурального дерева подарує винятковий комфорт та насолоду від максимально природної обстановки всередині будиночка. Господарі вілли зможуть швидко окупити всі витрати на її будівництво та отримувати від будівлі постійний зиск. Усі устремління та запити сучасної людини щодо комфорту враховані у новому проекті «Ізабелла2» із сухого профільованого бруса. Давайте розглянемо, у чому ж відмінності реалізації одного і того ж проекту у різних видах матеріалу – оциліндрований та профільований брус.
Застосування різного стінового матеріалу на прикладі одного і того ж проекту дерев'яного будинку
Кожен із наших проектів ми можемо побудувати, використовуючи три технології виробництва та будівництва . Це оциліндрована колода, сухий профільований брус та подвійний брус з арболітом усередині стін.
Всі види та розміри дерев'яного бруса ми виготовляємо на нашому власному устаткуванні. Оциліндрований брус виготовляється способом «місячний паз» плюс компенсаційний паз, діаметри колод дорівнюють 160, 180, 200 та 220 мм.
Профільований брус виробляємо способом «паз-гребінь» та два компенсаційні пази. Висота профільованого брусу нашого виробництва завжди стандарт - 150 мм, а переріз варіюється 60, 150 і 200 мм. За рахунок впровадження унікальної технологічної лінії виробництва сухого профільованого брусу шляхом прес-вакуумного висушування, ми забезпечуємо основний критерій якості бруса – стабільність стінового матеріалу.
Цілісний, просушений брус є найпрогресивнішим вибором для будівництва будинку. За рахунок збереження цілісності деревини та відсутності в ній хімічних елементів такий матеріал перевершує клеєний брус за технічними характеристиками.
Ви можете порівняти візуально дві моделі того самого проекту, виконаних у різних видах бруса. Проект «Ізабелла2» із сухого, профільованого брусу виглядає більш строго та лаконічно. Оциліндрований котедж «Ізабелла» привертає увагу природною красою та економічністю. Саме проекти будинків з оциліндрованого брусу повною мірою передають природний затишок і природну красу.
На прикладі одного і того ж проекту дерев'яного будинку ви побачили і практичність сухого профільованого брусу, і природний колорит оциліндрованого брусу. Якщо ви сумніваєтеся в тому, з якого брусу краще будувати будинок, ми допоможемо підібрати вам саме той матеріал, який у результаті допоможе отримати бажану споруду, що повністю відповідає вашим уподобанням!




















