- Новини
- 0 вподобання
- 1557 покази
Архітектура дерев'яних будинків стає все популярнішою серед прихильників натуральних матеріалів та здорового способу життя. Завдяки своїй естетичній привабливості, екологічності та енергоефективності, дерев'яні будинки стали вибором для багатьох людей. Сьогодні ми розглянемо шість новинок проектів дерев'яних будинків від архітектора «ДОМІНАНТ-ВУД», які створені з врахуванням сучасних уявлень про комфортабельні умови та можливості дозвілля у власному будинку. Це не просто економ варіанти з мінімальними наборами зручностей, але й не елітні будови з ексклюзивними умовами. В наших нових проектах втілюється прагнення сучасної людини оточувати себе комфортом та отримувати від цього задоволення.
Перша новинка цього сезону від «ДОМІНАНТ-ВУД» - це садиба 13 на 16,6 м з гаражем та басейном - «Касвелін».
Цей будинок з дерева має два поверхи із загальною площею 272,8 м2. Головними особливостями виконання і планування проекту «Касвелін» є якісно просушений в пресс-вакуумній камері брус, з якого складаються стіни, та наявність басейну на терасі і гаражного приміщення. В середині будинку кухня, вітальня і столова цікаво розташовані в центрі планування, створюючи єдиний простір, розподілений на окремі функціональні зони.
Велика тераса з виходом на басейн відкривається прямо з однієї зі спалень, що знаходиться на першому поверсі. В гараж можна пройти прямо з середини будинку, не виходячи на вулицю, і не обходячи по периметру всю садибу. Перевагами планування мансарди є просторий кабінет і досить велике приміщення гардеробу, що по розмірах відповідає повноцінній житловій кімнаті. Проект «Касвелін» поєднує в собі сучасний дизайн та матеріал будівництва і такі зручності планування, які дозволяють вважати садибу одним з найкращих варіантів для сімейного відпочинку та повсякденного життя.
Друга новинка серед нещодавніх проектів - колодчастий маєток 9,3 на 16,8 м з терасою і гаражем - «Ярвін».
Він дещо схожий на попередній проект, але замість відкритої тераси з басейном володіє закритою терасою-бесідкою під навісом, обладнаною мангалом. Також ці два проекти відрізняються матеріалом стінових комплектів. Маєток «Ярвін» презентується з оциліндрованих колод великого діаметру, що створюють оригінальний вигляд з округлостями на стінах та забезпечують надійність і довговічність будови. У будинку є кухня, вітальня з каміном, дві спальні, дві ванні кімнати, офіс та гараж. Цей будинок ідеально підходить для сімейного проживання в затишному та надійному місці.
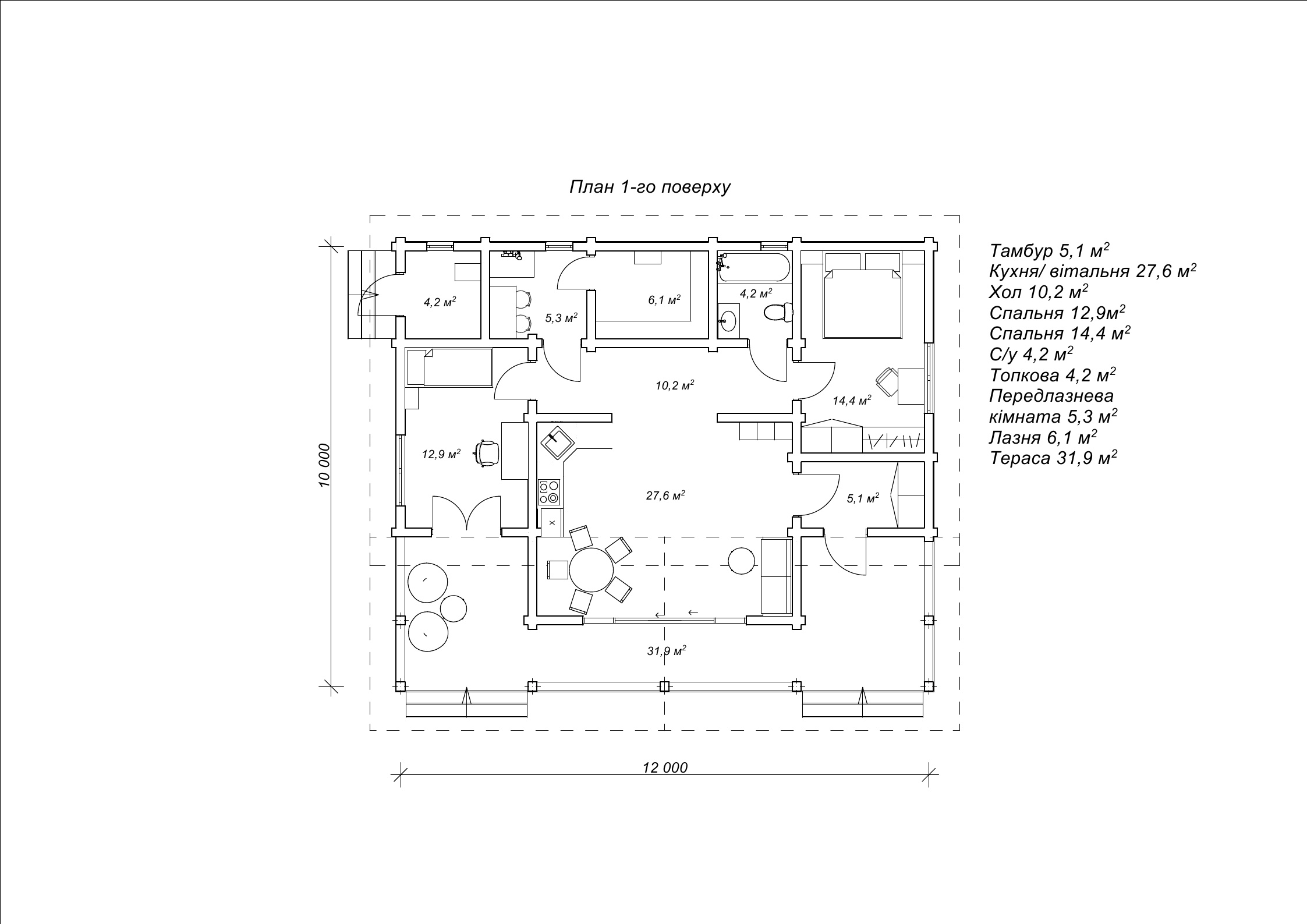
Третя яскрава новинка – проект «Рисанта».
Будинок 15,2 на 11,2 м відрізняється особливою широтою простору, великою кількістю вікон, великими спальнями і загальною площею 215,7 м2. В середині оселі багато студійних приміщень, вдосталь природнього освітлення, яке проникає в кімнати без зайвих перешкод у якості перегородок. Адже їх мінімум, до того ж наявність другого світла та еркера з вікнами від підлоги до стелі ще більше наповнює будівлю природним освітленням. Головна особливість цього будинку - великі житлові кімнати, що забезпечують більш комфортне усамітнення та дозвілля кожному мешканцю. Адже так важливо мати вдосталь особистого простору, особливо якщо в будинку проживає велика родина.
У будинку також сплановано кабінет для плідної праці та терасу для відпочинку на свіжому повітрі. Дерев'яні стіни теплого, приємного соснового кольору та великі вікна додають екстер’єру будинку яскравості та затишку. Крім цього, наш архітектор на прикладі проекту «Рисанта» показує, як можна встановити будинок на рельєфній ділянці та обладнати цокольний поверх.
Презентуємо також четверту, цікаву новинку - трикімнатний будинок з лазнею «Ілмарі». Цей дерев'яний будинок має дуже гарний, класичний вигляд, притаманний оциліндрованим будівлям, два поверхи та загальну площу 156,3 м2. Головна особливість проекту «Ілмарі» - лазня, що забезпечує додатковий комфорт та релаксацію мешканцям маєтку.
Багато хто зараз замислюється про наявність власної сауни і передбачає її прямо у своїй оселі, щоб потім не будувати окрему споруду на ділянці, що виходить набагато дорожче. Крім доволі просторої парилки, обов’язково слід підкреслити наявність у плануванні трьох житлових кімнат, що створює додатковий особистий простір мешканцям.
Плануючи придбати будинок з парилкою, не слід боятися надвисоких затрат енергії та коштів на опалення як будинку, так і для нагрівання лазні. Сосновим колодам достатнього діаметру властивий низький коефіцієнт теплопровідності, відповідно низький рівень витрат на опалення та кондиціонування повітря. В таких будівлях тепло взимку і прохолодно влітку. Природний, сприятливий мікроклімат зберігається в середині соснових стін найкращим чином. Тому «Ілмарі» створений для того, щоб сповнювати життя усіх мешканців радістю і здоров’ям, а не турботами про додаткові витрати на обігрів приміщень та лазні.
П'ята новинка будівельного сезону 2023 від «ДОМІНАНТ-ВУД» – проект «Сайма». Він порівняно менший за розмірами, якщо брати до уваги попередні проектні рішення. До того ж напрочуд оригінальний дизайн тераси робить проект «Сайма» ексклюзивним та відмінним від інших будиночків.
Внутрішнє оснащення котеджу лазнею, літньою терасою і двома житловими кімнатами, здатне подарувати безліч приємних моментів господарям. Адже на терасі під чарівним навісом так добре насолоджуватися свіжим повітрям після лазневих процедур.
Котедж «Сайма» збудований з сухого, профільованого брусу, який забезпечує вишуканий стиль будови, а також максимальну міцність та довговічність дерев’яної конструкції.
Завершує наш огляд новинок котедж «Тайста» 14 на 13,5 м. Цей дерев'яний будинок також складається з профільованого, соснового брусу, має один поверх і горище.
Загальна площа споруди 126,7 м2. Перший поверх містить усе необхідне для комфортного проживання та приємного дозвілля – три спальні, дві ванних кімнати, велику вітальню з каміном, затишну терасу в тіні навісу. Родзинка цього будинку – це, безперечно, горище, яке можна використовуватися як додаткова спальня, ігрова студія, спортивна зала або кабінет. Площа горища 42 м2, і цього простору достатньо, щоб розмістити необхідне обладнання залежно від ваших вподобань. Чи це буде спортивний інвентар, чи це буде художня майстерня.
Котедж «Тайста» має дуже цікаве внутрішнє наповнення і зовнішній стильний дизайн та забезпечить не тільки максимальний комфорт та затишок, але й стане місцем натхненої праці та дозвілля.
Усі ці новинки дерев'яних будинків мають спільні риси, наприклад площу в межах 200-250 м2. Так само усі вони володіють підвищеною комфортабельністю, великою кількістю кімнат та свої особливості, які роблять їх унікальними та привабливими для життя. Кожен з цих будинків збудований з використанням найкращих матеріалів та технологій, що забезпечує максимальну міцність та довговічність. Крім того, кожен з цих будинків має свій унікальний дизайн та функціональність, що дозволяє підібрати ідеальний варіант для будь-яких потреб та бюджету. Тому, якщо ви знаходитесь на етапі підбору власного житла якраз напередодні будівельного сезону, наші пропозиції точно вам сподобаються. Завітайте в каталог будинків «ДОМІНАНТ-ВУД», де вас вже чекає ваша мрія у вигляді чудового, дерев’яного будинку!



















































