Тайста
- Площа
- 126,7
126,7 - Ширина
- 14
14 - Довжина
- 13,5
13,5 - Будинки і житлові будови
- Вілли
Дачі
Котеджі - Кількість кімнат
- Трикімнатні будинки
- Особливості будинків
- Будинки з каміном
Будинки з котельнею - Кількість поверхів споруди
- Двоповерхові будинки
- Будинки з брусу
- Будинки з клеєного брусу
Будинки з профільованого брусу
(Що входить в ціну)
- комплект стін;
- комплект крокв;
- комплект балок перекриття;
- утеплювач міжвінцевий;
- антисептик (антисептування всього матеріалу);
- дубові нагеля;
- кріпильні материали (саморізи, усадкові болти, анкера, кріпильні пластини);
- гідроізоляція;
- вогнебіозахист (обробка деревини засобом І групи вогнезахисної ефективності)
Будівництво котеджу 14 на 13,5 м з горищем
Котедж «Тайста» приваблює своїм стильним виглядом і сучасним дизайном. Будинок виготовлений з використанням якісного матеріалу - сухого, профільованого брусу 150х150 мм, що забезпечує довговічність та надійність стінового комплекту. Окремою перевагою будинку «Тайста» і його окрасою є простора тераса під покрівлею, де можна проводити час з друзями та родиною. Тераса має достатньо місця для зручного розміщення вуличних меблів і дозвілля з родиною. Котедж «Тайста» має площу 182,3 м2, параметри забудови 14 на 13,5 м і відрізняється доволі нестандартним плануванням, що складається з одного поверху та горища.
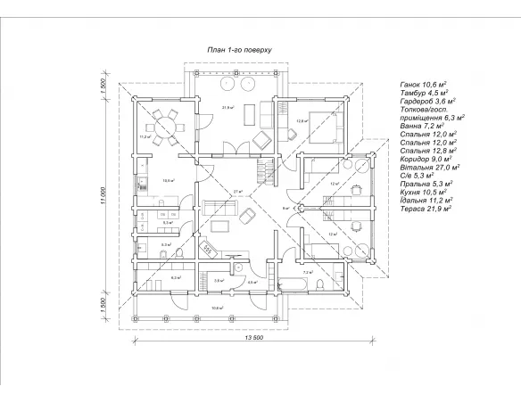
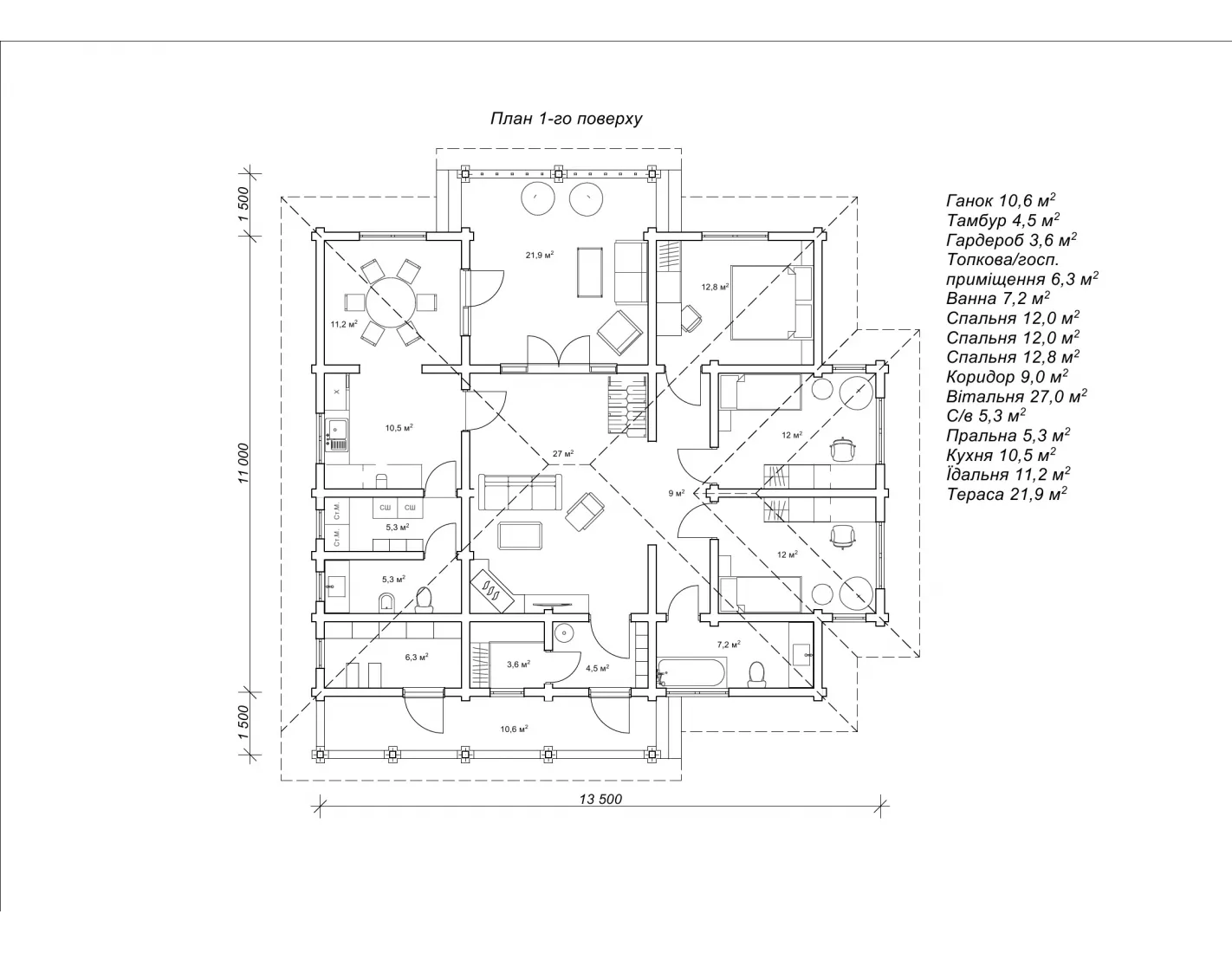
Котедж 14 на 13,5 м з горищем «Тайста», площа 126,7 м²
Всі приміщення в котеджі з сухого брусу розташовані оптимально, з урахуванням потреб мешканців. Вітальня та їдальня знаходяться поруч, що дозволяє зручно проводити час разом з родиною та гостями. Кухня обладнана всіма необхідними пристроями та зручно розташована поруч з їдальнею. У будинку є три спальні, що дарує усім мешканцям вдосталь особистого простору і забезпечує комфортний відпочинок. Кожна спальня має достатньо місця для розташування меблів та особистих речей. Досить оригінальним рішенням було додати житлове приміщення на горищі котеджу «Тайста». Горище має розмір 42 м2, і його можна використовувати як ігрову кімнату, майстерню або додаткову спальню. Тут можна розташувати більярд та насолоджуватися веселим дозвіллям з родиною. За бажанням, можна зробити додатковий вихід на горище з вулиці першого поверху, як, наприклад, в проекті «Майлана» або «Жоржина». Узагалі, будинок «Тайста» є ідеальним варіантом для тих, хто хоче мати просторий та затишний котедж зі всіма необхідними зручностями для комфортного проживання та яскравого дозвілля.
- Площа
- 126,7
126,7 - Ширина
- 14
14 - Довжина
- 13,5
13,5 - Будинки і житлові будови
- Вілли
Дачі
Котеджі - Кількість кімнат
- Трикімнатні будинки
- Особливості будинків
- Будинки з каміном
Будинки з котельнею - Кількість поверхів споруди
- Двоповерхові будинки
- Будинки з брусу
- Будинки з клеєного брусу
Будинки з профільованого брусу
















