- Новини
- 0 вподобання
- 1703 покази
Комерційні проекти павільйонів, кафе або ресторану, оригінально виконані з дерева, будуть цікаві для кожного, хто планує інвестувати в бізнес. Як відомо, дерев’яні зруби швидко збираються, вимагають мінімум оздоблення та швидко окупаються, починаючи приносити стабільний дохід. Тому будівництво зробленого з колод павільйону або банкетного залу вигідно доповнить будь-який комплекс відпочинку і розширить спектр послуг, що в ньому надаються. Приклад будівництва їдальні для бази відпочинку ми показуємо у цій новині.
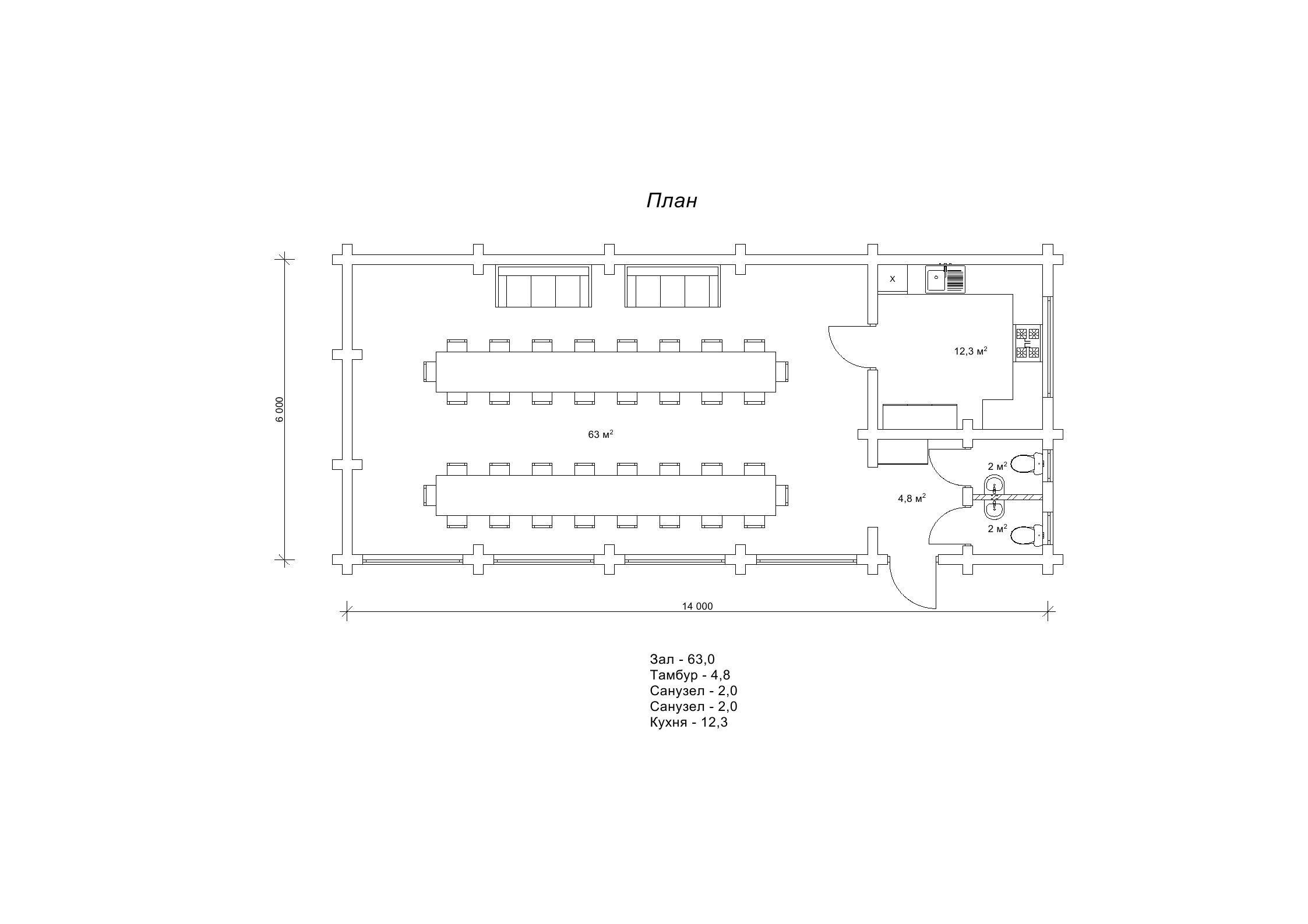
Проект їдальні 6х14 м «Адаліна»
Спочатку проект «Адаліна» був розроблений архітектором «Домінант» для клієнта, який вже раніше замовляв будівлі для бази відпочинку, розташованої в мальовничій, лісовій місцевості Біляївського району Одеської області. Дерев’яні будиночки максимально органічно вписуються в лісовий пейзаж, не створюючи дисгармонію в навколишньому ландшафті.
Класичний дизайн зрубів лише підкреслює натуральну красу дерева, розкриваючи повною мірою всі переваги близькості до природи. Проект «Адаліна» є прямокутною будівлею з соснових, оциліндрованих колод діаметром 200 мм під двосхилим дахом. Великі вікна ушляхетнюють дизайн приміщення, завдяки вікнам будівля виглядає вишуканіше і повітряніше. А всередині за рахунок великої площі скління можна відчувати ефект присутності на природі та насолоджуватися їжею, не перестаючи милуватися мальовничим лісом.
Параметри павільйону «Адаліна» становлять 6х14 м, площа споруди – 84 м2. У павільйоні спланований банкетний зал розміром 63 м2 для гостей бази відпочинку та кухня площею 12,3 м2. Праворуч від входу сплановано кілька санвузлів площею 2 м2. Зручно, що, заходячи до їдальні, одразу можна пройти помити руки. Ви бачите на кресленнях планування проекту столи, які розташовані так, щоб за ними було 36 місць для гостей. Можна зробити перестановку в залі і поставити маленькі, круглі столи, за якими точно поміститься більше 40 гостей. За бажанням можна спланувати в банкетному залі майданчик для музики та танців. Як для організації святкового застілля, так і для щоденного приготування їжі проект «Адаліна» містить все необхідне. Цю їдальню можна також цілком розглядати як автономне кафе або ресторан. Колоритний, зроблений з колод будиночок з великими вікнами створений для максимального комфорту гостей і їх веселого дозвілля!
Вигоди від будівництва дерев’яного павільйону
Будівництво комерційних об’єктів займають істотну частину нашої діяльності, тому що дерев’яні зруби ресторанів та готелів найбільше приваблюють гостей завдяки своїй природній красі, теплу та затишку. Ми постійно реалізуємо комерційні проекти в різних куточках нашої та інших країн і намагаємося розповісти вам про кожну споруду. Наприклад, про те, як ми будували «Готовий проект бази відпочинку на озері Балатон, Угорщина» або «Як ми будуємо в Німеччині: зроблений з колод комплекс відпочинку». Дерев’яний ресторан, утеплений арболітом, збудований у с. Станишівка Житомирського району входить до ресторанно-готельного комплексу, де ми вже встановили утеплений готель на 20 номерів, та успішно функціонує, радуючи гостей чудовою кухнею та чудовим відпочинком, а господаря постійним високим прибутком.
У каталозі готових проектів під комерцію на сайті «Домінант» відображаються всі переваги клієнтів, які бажають якнайвигідніше задіяти такі споруди у своїх бізнес цілях. Висока прибутковість дерев’яних комерційних будівель також сприяє низці наступних факторів:
- швидкість будівництва дерев’яного зрубу є набагато швидшою, ніж аналогічна споруда з іншого матеріалу;
- легка вага дерев’яної будівлі дозволяє використовувати під неї фундамент із геошурупів, що ще більше скорочує час на будівництво та витрати на заливання бетонної основи;
- стіни дерев’яного зрубу не потрібно закривати, зашивати або облицьовувати. Натуральна краса деревини підкреслюється спеціальними восками чи фарбами на водній основі із захисними складами;
- комерційну будову можна відразу експлуатувати після завершення будівництва, що прискорює окупність і збільшує вигоду для власника бізнесу.
Немає нічого вигіднішого та розумнішого, ніж доповнити та розширити ресторанний або готельний комплекс дерев’яною будовою з натурального соснового матеріалу за найкращою ціною виробника дерев’яних зрубів «Домінант». Особлива атмосфера комфорту всередині дерев’яних будиночків викликає бажання постійно повертатися в таку обстановку, де можна повноцінно розслабитися та відпочити. Якщо у вас є комерційна ідея побудови з дерева, ми професійно втілимо її в життя, що допоможе вам залучити безліч нових гостей та отримати постійне джерело доходу!























