- Новини
- 0 вподобання
- 3761 покази
Незважаючи на відмінність в культурі і менталітеті, всі закордонні клієнти одноголосно сходяться на думці, що будинок з дерева — найкраще підходить для комфортного життя і відпочинку . Перебуваючи в такому будинку, можна відчути затишок і умиротворення природи. Саме тому, все більше зарубіжних клієнтів звертаються в компанію «Домінант» із замовленнями на будівництво, і ми постійно розширюємо географію дерев'яних будівель. Замовники завжди залишаються задоволені кінцевим результатом, а ми з радістю знайомимо вас з новими роботами! Отже, нещодавно ми відкрили для себе Угорщину. Гарна база відпочинку, на березі мальовничого, всесвітньо відомого озера Балатон, тепер буде облаштована котеджами з брусу нашого виробництва.
Проект гостьового котеджу 13х20 м «Марадона»
Затишний готель «Марадона» стане гостинним місцем для найкращого відпочинку на узбережжі Балатону. Один з найбільш великих населених пунктів, розташованих біля озера - це місто Шіофок, де і розташувалися п'ять котеджів, побудованих за проектом «Марадона». Тільки уявіть, наскільки гармонійним буде поєднання синьої водної гладі озера з дерев'яними будиночками під оригінальними, синіми дахами на березі. А доповнить цей ансамбль густа, соковита зелень лісу. Гості бази відпочинку будуть в захваті від такої краси. Крім естетичної насолоди, гостей чекає неймовірний комфорт. «Марадона» - котедж для бази відпочинку з оциліндрованих колод. Загальна площа його становить - 260 м2, а параметри забудови 13 на 20 м.
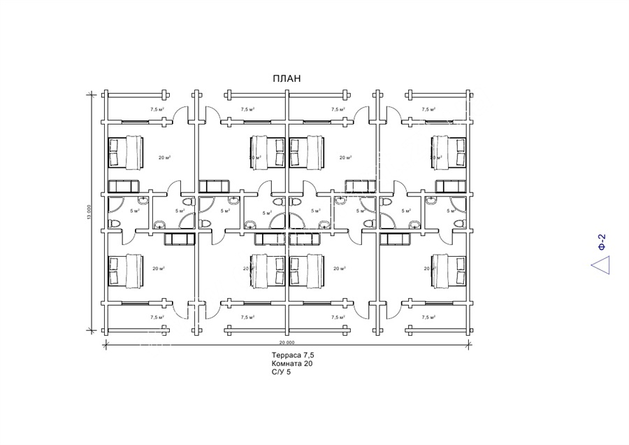
План курортного котеджу з колод «Марадона»
Площа проекту розділена на вісім однакових частин. Тут пропонується зробити вісім номерів для відпочиваючих. Загальна площа кожного номера складає 20 м2, що дає можливість функціонально розподілити приміщення на окремі зони. За допомогою грамотної розстановки меблів можна відокремити спальне місце і виділити невелику вітальню-їдальню. Крім того, в кожному номері є окрема ванна кімната. Її розміри дозволяють встановити тут санвузол, душову кабінку і умивальник. Також для кожного номера під навісом відведена невелика тераса розміром 7,5 м2. Тут можна поставити гарний дерев'яний столик і лавки. Ваші гості зможуть снідати або обідати на свіжому повітрі і насолоджуватися природною красою. Натуральне дерево стін будівлі «Марадона» подарує гостям бази приємний, здоровий мікроклімат всередині номера, де повітря буде завжди свіжим і наповненим фітонцидами. Гарна теплоізоляція соснового бруса гарантує приємну прохолоду влітку і допоможе зберегти тепло взимку. Ваші гості будуть в захваті від такого відпочинку, і неодмінно повернуться сюди ще не раз.
Переваги дерев'яної бази відпочинку
Проект «Марадона» - ідеальний комерційний об'єкт. Не потребує посиленого фундаменту під забудову. Дерев'яний будинок має невелику вагу. Після складання, проект не вимагає дорогого догляду і оздоблення. Натуральне дерево має гарний зовнішній вигляд, так що стіни досить пошліфувати і покрити безбарвним воском всередині, а зовні додати колір для захисту стін від ультрафіолету. Вся наша деревина проходить захисну обробку антисептиком (від поразок цвіллю і грибками) і антипіреном (від миттєвого спалаху). Крім того, замовляючи один проект, ви зможете розселити в ньому одночасно вісім різних груп туристів, що дуже вигідно.
Наш замовник з Угорщини високо оцінив всі переваги проекту «Марадона», тому базу відпочинку біля озера прикрашатимуть п'ять будиночків. Бригада працівників компанії «Домінант» займалася будівництвом одного котеджу, і при цьому контролювала будівництво інших чотирьох котеджів місцевими працівниками.
Зовсім скоро наш замовник і гості його бази відпочинку зможе насолодитися неймовірною практичністю, розкішшю і красою готових проектів. Адже в розпал літнього сезону головний курорт Угорщини перетворюється в площадку для грандіозної молодіжної вечірки фестивалю Balaton Saund. Щоліта тут проходять виступи ді-джеїв з різних країн, від відомих виконавців до нових імен. Тепер про дерев'яні будиночки «Домінант» знатиме ще більше людей з різних куточків світу!
Як замовити будівництво котеджу з бруса в компанії «Домінант»?
Для того, щоб замовити будівництво дерев'яного котеджу в компанії «Домінант», потрібно вибрати відповідний проект з нашого каталогу на сайті за посиланням «Проекти». За багато років нашої діяльності в каталозі вже зібрано близько 800 різних готових проектів будинків з бруса. Ви точно можете підібрати собі будиночок до душі! Крім того, ви завжди можете вибрати будь-який вподобаний вам готовий проект, або спроектувати його разом з нами.
Хочемо нагадати, що замовляючи будівництво з дерева у нас, ви отримуєте абсолютно екологічні, високоякісні і довговічні будови. Компанія «Домінант» має всі необхідні документи і сертифікати якості. Ми стежимо за кожним етапом виробництва та будівництва. Починаючи від обробки деревини і закінчуючи складанням проекту, кожен виробничий процес виконується з високою точністю і професіоналізмом.
Компанія «Домінант» стирає кордони в своїй роботі. Ми з радістю приймаємо замовлення з різних куточків планети і завжди надаємо нашим клієнтам всі умови для максимально комфортної співпраці. Спеціально для наших зарубіжних замовників ми недавно підготували і опублікували інформацію: «Як ми будуємо будинки за кордоном: оформлення замовлення і процес побудови» Ми зможемо втілити ваші мрії в реальність, незважаючи на кордони і відстані!

















