Марадона
- Кількість поверхів
- 1
- Площа
- 260
- Ширина
- 13
- Довжина
- 20
- Комерційні будівлі
- Бази відпочинку
Готелі
(Що входить в ціну)
- комплект стін;
- комплект крокв;
- комплект балок перекриття;
- утеплювач міжвінцевий;
- антисептик (антисептування всього матеріалу);
- дубові нагеля;
- кріпильні материали (саморізи, усадкові болти, анкера, кріпильні пластини);
- гідроізоляція;
- вогнебіозахист (обробка деревини засобом І групи вогнезахисної ефективності)
Що може бути краще відпочинку в дерев’яному будиночку з бруса? Ті, кому пощастило відпочивати в таких готелях або проживати в будинку з дерева, добре знають всі переваги життя в натуральних дерев’яних стінах. Дерево дихає, насичує приміщення киснем, забезпечує найсприятливіший клімат для самопочуття. Тому після відпочинку в будинку з бруса людина відчуває підйом настрою, приплив сил і бадьорості. Ось чому курортний котедж Марадона з оциліндрованих колод сосни так користується попитом для споруди в готельних комплексах і базах відпочинку.
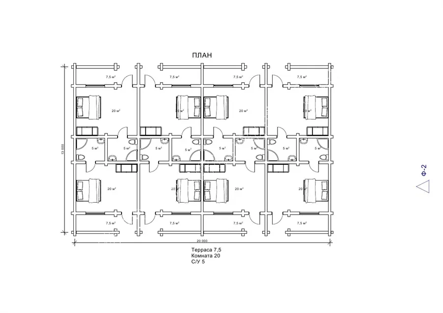
Готовий проект бази відпочинку 13х20 м під ключ Марадона розрахований на вісім номерів з санвузлами і окремим входом. Перебуваючи в такому котеджі, відпочиваючі повністю наближені до природи, а це означає повноцінний відпочинок і оздоровлення. Крім здорового відпочинку для туристів, база відпочинку з бруса буде вигідним капіталовкладенням для замовника. Проект Марадона не потребує закладки складного, заглибленого фундаменту, так як дерев’яні споруди характеризуються легкою вагою. Також будинок з бруса не потребує дорогої обробки або капітального ремонту. У такому будинку вентиляція відбувається природним шляхом, від того, що дерево дихає, а тепло тримається краще, ніж в інших спорудах завдяки низькому коефіцієнту теплопровідності. Готель з бруса є набагато привабливішим для туристів, ніж готелі з синтетичних матеріалів, дерев’яний готель швидко окупається і приносить своїм власникам постійний дохід.
Затишний готель Марадона стане гостинним місцем для найкращого відпочинку на березі моря або в іншій курортній зоні і порадує всіх любителів сімейного відпочинку або гарного дозвілля у великій компанії друзів.
- Кількість поверхів
- 1
- Площа
- 260
- Ширина
- 13
- Довжина
- 20
- Комерційні будівлі
- Бази відпочинку
Готелі
Базова комплектація:
(Що входить в ціну)
- комплект стін;
- комплект крокв;
- комплект балок перекриття;
- утеплювач міжвінцевий;
- антисептик (антисептування всього матеріалу);
- дубові нагеля;
- кріпильні материали (саморізи, усадкові болти, анкера, кріпильні пластини);
- гідроізоляція;
- вогнебіозахист (обробка деревини засобом І групи вогнезахисної ефективності)
1253880 грн.
Дах (комплектність):
- Рейка 100*25мм (cосна)
- Контрейка 50*25мм (сосна)
- Металочерепиця МОНТЕРРЕЙ (Польща) 0,45мм
- Коник прямий
- Планка примикання
- Лобова (декоративна) планка
- Вітровая планка
- Яндола
- Капельник (Карнизна планка)
- Ущільнювач універсальный
- Саморізи ОС 4.8х35
- Фарба-спрей
- Гідробар'єр
- Монтаж
280640 грн.
Вікна (комплектність):
- Вікно VEKA 58, колір білий 10
- Імпости вертикальні: 1 x 102103
- Скління: СПО, 24мм, (Rсп=0.36)*
- Тип фурнітури: Activpilot поворотно-відкидна, колір білий
- Підбір спеціальний: Activ микровентиляція; Activ 2-функц. механ.
- Моск.сітка: МС 3
- Підвіконня: ВМ 110мм, колір білий
- Підвіконня: ПВ ПВХ 150, заглушки: 600мм, колір білий
- Монтаж
627000 грн.
Двері (комплектність):
- Полотно
- Коробка
- Лиштва
- Карниз
- Фарбування
- Скло
- Фурнітура
- Врізка фурнітуры
- Монтаж
194432 грн.
Фарбування (комплектність):
- Шліфування торців
- Тришарове покриття ефективним деревозахисним засобом на базі низькомолекулярної алкідної смоли методом розпилення.
Оциліндрований брус
Оциліндрований брус є найбільш оптимальним і поширеним матеріалом для будівництва дерев`яних будинків і бань, бесідок, альтанок, різноманітних садових меблів, дерев`яних конструкцій будь-яких видів. Дерев`яні будинки з оциліндрованого брусу відрізняються красою, всередині такого будинку завжди відчувається особлива затишна атмосфера.
Профільований брус
Найсучаснішим і високотехнологічним будівельним матеріалом в дерев`яному будівництві на сьогоднішній день є профільований брус. Для виробництва профільованого брусу, звичайному дерев`яному брусу на спеціальному деревообробному обладнанні надається певний профіль.
Подвійний брус з утепленням
Головна ідея застосування подвійного бруса полягала в досягненні енергоефективності житла. Над проектуванням енергозберігаючих будинків працюють провідні інженери та архітектори в різних країнах світу, запропонована фінами технологія подвійного бруса дає можливість звести до мінімуму тепловтрати будинку, а також об`єднує переваги будівництва дерев`яного будинку з економічністю споруди.
Клеєний брус
Клеєний брус принципово відрізняється від інших типів колод багатошаровістю. Така структура робить цей дерев’яний матеріал надміцним і витривалим.
Каркасні конструкції
Каркасні конструкції виготовляються на власних виробничих потужностях компанії «Домінант», з використанням сучасних деревообробних станків. Імпортне, високоточне обладнання дозволяє нам високоякісно виконувати свою роботу. Каркаси складаються зі струганих, ретельно висушених балок 150х50 мм (сосна першого сорту). Ці балки застосовуються для зовнішніх каркасів.










