- Новини
- 0 вподобання
- 1845 покази
Нова робота «Домінант» з будівництва дерев'яного ресторану з паралельного бруса, мабуть, є зразком блискучого комерційного проекту! За оригінальністю дизайну і вибором найкращого матеріалу для споруди цей проект просто не знає рівних. Звичайно ж ми хочемо розповісти подробиці його реалізації, щоб продемонструвати вам переваги нашої роботи. Відразу відзначимо, що ресторан знаходиться в с. Станишівка Житомирського району і входить в ресторанно-готельний комплекс, де ми вже встановили утеплений готель на 20 номерів.
Особливості проекту ресторану з подвійного брусу з утепленням
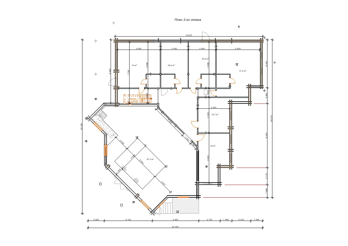
Проект ресторану з утепленими стінами містить три поверхи і 860 м2 загальної площі. Параметри забудови: 22,35 м на 22,24 м. Спорудження відрізняється абсолютно незвичайним дизайном, адже два поверхи ресторану знаходиться в мансарді масштабного даху, який своїми плавними обрисами доповнює сувору геометрію шліфованого брусу. Таке розкішне і складне поєднання округлого даху з прямокутними формами самого корпусу формує приголомшливий зовнішній вигляд ресторану. Головне завдання кожного комерційного об'єкта - це з першого погляду вабити гостей. Погодьтеся, що наш самобутній ресторан повністю справляється з цим завданням, колорит будови вражає і відразу налаштовує до відвідування закладу.
А всередині вас вразить простір банкетних залів на кожному поверсі. Така кількість простору забезпечить гарні святкування для різних компаній, які будуть розташовані окремо і не завадять один одному. Крім залів для гостей, планування передбачає наявність господарського блоку, санвузлів і кухні. Такий масштабний ресторан повинен якісно функціонувати, і щоб обслуговування тут було на висоті, персоналу повинно бути зручно готувати страви і підносити їх гостям. Тому господар, звичайно, подбав про всі зручності і для персоналу, і для гостей.
Ще однією особливістю ресторану з паралельного брусу назвемо те, що він буде повністю обслуговувати гостей дерев'яного готеля, побудованого поруч. У самому готелі не передбачено кухні або адміністративних приміщень, і тому планування ресторану містить весь цей функціонал.
Крім виготовлення та встановлення утепленого дерев'яного зрубу, за проектом ресторану, наша бригада з оздоблення виконала його фарбування. Додаткові послуги по якісній обробці зрубів ми вважаємо однією з великих переваг нашої роботи. Адже замовляючи у нас дерев'яну конструкцію, ви можете розраховувати, що наші майстри проведуть фінішні роботи, які збільшують довговічність соснового зрубу і полегшать його експлуатацію.
Переваги дерев'яного ресторану з утепленого брусу
Головна перевага реалізованого проекту полягає в технології виконання. Як вже ми відзначали при описі особливостей проекту ресторана, конструкції стін виконуються з подвійного, утепленого арболітом, бруса. Це вибір мудрого господаря ресторанного бізнесу, адже два ряди сухих соснових брусів і арболіт, залитий в стіни, забезпечать захист від холоду і спеки будівлі який можна порівняти з цільною колодою 517 мм в діаметрі! Унікальність і перевага подвійного бруса з арболітом полягає в досягненні енергоефективності будівлі і, відповідно, істотної економії на енергоносіях.
Господар будь-якої будівлі, будь то житло або комерційний об'єкт, повинен розуміти, що початкова турбота про будівництво, зокрема вибір дорогого і якісного матеріалу, полегшує подальшу експлуатацію і витрати на обслуговування. У випадку з реалізованим проектом ресторану, добротний матеріал стін і утеплення будівлі заощадить на витратах з опалення і тим самим прискорить його окупність.
Перевага ресторану, на яку взагалі не можна не звернути увагу - це ефектний зовнішній вигляд. Наші майстри подбали про якісну обробку дерев'яних стін, а господар отримав колоритний ресторан, який не знатиме відбою від клієнтів.
Функціональність планування, розташованого на трьох рівнях ресторану дозволить з комфортом приймати велику кількість гостей. І це перевага, яка теж піднімає прибутковість комерційного об'єкта.
Як можна додати оригінальності комплексу відпочинку пропонуємо ознайомитися в одній з наших публікацій. А після прочитання сьогоднішньої новини, ви точно будете знати, як можна побудувати вигідний комерційний об'єкт з розкішним дизайном з паралельного брусу з утепленням!























