Зателефонуйте мені
Філософ №1
Філософ №2
Філософ №3
Філософ №4
Філософ №5
Філософ №6
Філософ №7
Філософ №1
Філософ №2
Філософ №3
Філософ №4
Філософ №5
Філософ №6
Філософ №7
Філософ №1
Філософ №1 Філософ №2 Філософ №3 Філософ №4 Філософ №5 Філософ №6 Філософ №7

Філософ

1 494 320,00 ₴
Будинок з дерева з утеплювачем всередині стін - «Філософ»
Розмір брусу
  • Оциліндрований 160
  • Оциліндрований 180
  • Оциліндрований 200
  • Оциліндрований 220
  • Профільований 60
  • Профільований 150
  • Профільований 200
  • Подвійний 300
  • Клеєний 120
  • Клеєний 180
Кількість поверхів
2
Площа
144
Ширина
8
Довжина
9
Будинки і житлові будови
Котеджі
Маєтки
Садиби
Кількість кімнат
Чотирикімнатні будинки
Особливості будинків
Будинки з балконом
Будинки з мансардою
Будинки з терасою
Будинки зі сходами
Кількість поверхів споруди
Двоповерхові будинки
Будинки з брусу
Будинки з подвійного брусу з утепленням
 

(Що входить в ціну)

Що входить в базову комплектацію

  • комплект стін;
  • комплект крокв;
  • комплект балок перекриття;
  • утеплювач міжвінцевий;
  • антисептик (антисептування всього матеріалу);
  • дубові нагеля;
  • кріпильні материали (саморізи, усадкові болти, анкера, кріпильні пластини);
  • гідроізоляція;
  • вогнебіозахист (обробка деревини засобом І групи вогнезахисної ефективності)

Проект будинку «Філософ» з утеплювачем всередині стін

У будинку, створеному за енергозберігаючою технологією за проектом «Філософ», втілюються всі переваги, які може отримати людина в своєму прагненні до затишку, тепла, близькості до природи і відмови від синтетичних матеріалів в повсякденному житті. Два ряди бруса з натурального дерева по фасадах будівлі показують подвійну надійність стін, балкон над терасою і масивний дах викликають відчуття затишку. Суворо прямолінійна архітектура будинку з паралельного брусу свідчить про економічність споруди. Лаконічний екстер’єр, що виявляє справжню красу дерев’яного зрубу, припаде до смаку справжньому естету. А зручність розміщення внутрішніх кімнат варта особливої уваги.

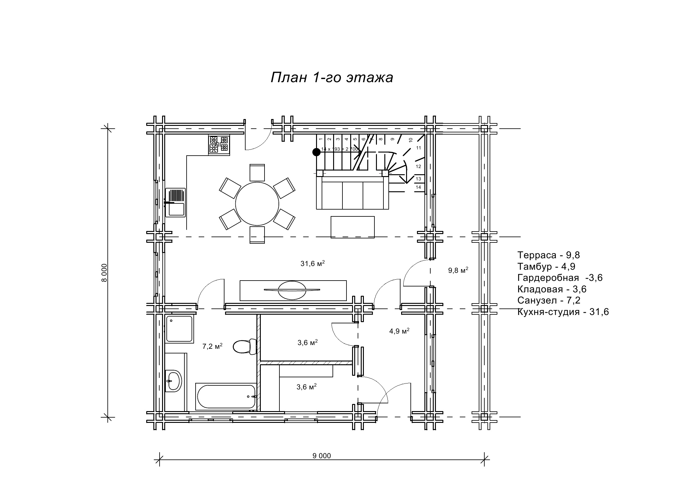
Планування будинку з утеплювачем, площа 144 м2

Проект «Філософ» спроектований в параметрах 6 на 9 м і на двох поверхах. Загальна площа будівлі становить 144 м2 і включає багато корисного простору. На першому поверсі є невелика тераса розміром 9,8 м2, з бокового входу спланований тепловий тамбур, звідки можна потрапити в комору і гардероб. А далі йде велика кімната зі сходами на другий поверх, що поєднує функції кухні, вітальні та їдальні. Площа санвузла становить 7,2 м2 і в ньому можна поставити як душ, так і ванну, розмістити велике дзеркало і всі необхідні зручності. На другому поверсі є дві спальні, кабінет і комора. Таке зручне планування будинку підходить для комфортного проживання сім’ї з одним або двома дітьми, для гостинних господарів, які люблять запрошувати гостей в атмосферу тепла і затишку.

Будівництво будинку з утепленими стінами, проект «Філософ»

Добротний, теплий будинок з утепленого брусу, побудований за проектом «Філософ», подарує своїм домочадцям свіжість хвойного лісу, тепло в зимові морози і прохолоду в літню спеку. Раціональне планування приміщень і наявність трьох житлових кімнат робить проект «Філософ» одним з кращих рішень при виборі заміського житла. Кожен з мешканців зможе насолодитися індивідуальним простором особистої кімнати або зібратися всією сім’єю в затишній вітальні. Якщо ви замовите будівництво будинку з утепленими стінами по проекту «Філософ», звернувшись в офіс «Домінант», наші будівельники зроблять виключно якісний, надійний і довговічний будинок!

Кількість поверхів
2
Площа
144
Ширина
8
Довжина
9
Будинки і житлові будови
Котеджі
Маєтки
Садиби
Кількість кімнат
Чотирикімнатні будинки
Особливості будинків
Будинки з балконом
Будинки з мансардою
Будинки з терасою
Будинки зі сходами
Кількість поверхів споруди
Двоповерхові будинки
Будинки з брусу
Будинки з подвійного брусу з утепленням

Базова комплектація:
(Що входить в ціну)

Що входить в базову комплектацію

  • комплект стін;
  • комплект крокв;
  • комплект балок перекриття;
  • утеплювач міжвінцевий;
  • антисептик (антисептування всього матеріалу);
  • дубові нагеля;
  • кріпильні материали (саморізи, усадкові болти, анкера, кріпильні пластини);
  • гідроізоляція;
  • вогнебіозахист (обробка деревини засобом І групи вогнезахисної ефективності)

279450 грн.

Дах (комплектність):

  • Рейка 100*25мм (cосна)
  • Контрейка 50*25мм (сосна)
  • Металочерепиця МОНТЕРРЕЙ (Польща) 0,45мм
  • Коник прямий
  • Планка примикання
  • Лобова (декоративна) планка
  • Вітровая планка
  • Яндола
  • Капельник (Карнизна планка)
  • Ущільнювач універсальный
  • Саморізи ОС 4.8х35
  • Фарба-спрей
  • Гідробар'єр
  • Монтаж

280640 грн.

Вікна (комплектність):

  • Вікно VEKA 58, колір білий 10
  • Імпости вертикальні: 1 x 102103
  • Скління: СПО, 24мм, (Rсп=0.36)*
  • Тип фурнітури: Activpilot поворотно-відкидна, колір білий
  • Підбір спеціальний: Activ микровентиляція; Activ 2-функц. механ.
  • Моск.сітка: МС 3
  • Підвіконня: ВМ 110мм, колір білий
  • Підвіконня: ПВ ПВХ 150, заглушки: 600мм, колір білий
  • Монтаж

229900 грн.

Двері (комплектність):

  • Полотно
  • Коробка
  • Лиштва
  • Карниз
  • Фарбування
  • Скло
  • Фурнітура
  • Врізка фурнітуры
  • Монтаж

156240 грн.

Фарбування (комплектність):

  • Шліфування торців
  • Тришарове покриття ефективним деревозахисним засобом на базі низькомолекулярної алкідної смоли методом розпилення.

Параметри забудови

  • Кількість поверхів: 2
  • Площа: 144

Розмір забудови

  • Ширина: 8
  • Довжина: 9

Перший поверх

тераса (м²)9,8
тамбур (м²)4,9
гардеробна (м²)3,6
кладовка (м²)3,6
санвузол (м²)7,2
кухня-студія (м²)31,6

Другий поверх

балкон (м²)9,8
коридор (м²)10,5
кладовка (м²)4,4
спальня (м²)8,6
спальня (м²)12,1
спальня (м²)17,6

Оциліндрований брус

Оциліндрований брус є найбільш оптимальним і поширеним матеріалом для будівництва дерев`яних будинків і бань, бесідок, альтанок, різноманітних садових меблів, дерев`яних конструкцій будь-яких видів. Дерев`яні будинки з оциліндрованого брусу відрізняються красою, всередині такого будинку завжди відчувається особлива затишна атмосфера.

Читати далі...

Профільований брус

Найсучаснішим і високотехнологічним будівельним матеріалом в дерев`яному будівництві на сьогоднішній день є профільований брус. Для виробництва профільованого брусу, звичайному дерев`яному брусу на спеціальному деревообробному обладнанні надається певний профіль.

Читати далі...

Подвійний брус з утепленням

Головна ідея застосування подвійного бруса полягала в досягненні енергоефективності житла. Над проектуванням енергозберігаючих будинків працюють провідні інженери та архітектори в різних країнах світу, запропонована фінами технологія подвійного бруса дає можливість звести до мінімуму тепловтрати будинку, а також об`єднує переваги будівництва дерев`яного будинку з економічністю споруди.

Читати далі...

Клеєний брус

Клеєний брус принципово відрізняється від інших типів колод багатошаровістю. Така структура робить цей дерев’яний матеріал надміцним і витривалим.

Читати далі...

Каркасні конструкції

Каркасні конструкції виготовляються на власних виробничих потужностях компанії «Домінант», з використанням сучасних деревообробних станків. Імпортне, високоточне обладнання дозволяє нам високоякісно виконувати свою роботу. Каркаси складаються зі струганих, ретельно висушених балок 150х50 мм (сосна першого сорту). Ці балки застосовуються для зовнішніх каркасів.

Читати далі...

Немає відгуків

Переглянуті товари

16 інших товарів в цій категорії:

Товар додано для порівняння.