Монако
- Кількість поверхів
- 2
- Площа
- 119.68
- Ширина
- 8.8
- Довжина
- 6.8
- Садові та господарські споруди
- Бані
Бані з оциліндрованого брусу
(Що входить в ціну)
- комплект стін;
- комплект крокв;
- комплект балок перекриття;
- утеплювач міжвінцевий;
- антисептик (антисептування всього матеріалу);
- дубові нагеля;
- кріпильні материали (саморізи, усадкові болти, анкера, кріпильні пластини);
- гідроізоляція;
- вогнебіозахист (обробка деревини засобом І групи вогнезахисної ефективності)
Двоповерхова розкішна лазня з брусу з другим світлом - це ексклюзивний проект, призначення якого полягає не тільки виключно в банних процедурах. Баня Монако є місцем цікавого дозвілля і повноцінного відпочинку. Класична архітектура дерев’яного зрубу з мансардою дозволяє розглядати цей добротний будинок, як декоративний елемент ландшафтного дизайну. Побудувати на заміській ділянці такий своєрідний центр здоров’я, як дерев’яна лазня Монако, і зробити з неї справжній розважальний комплекс буде дуже цікавою ідеєю. Дана лазня може служити як для особистого використання, так і для бізнесу. Одним із значних напрямків нашої діяльності є будівництво комерційних об’єктів, дивіться готові проекти на сайті: dominant-wood.com.ua/uk/proekty.
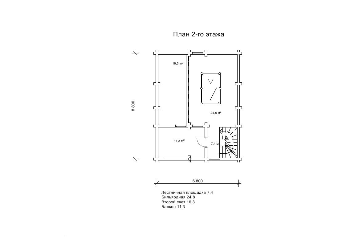
Дерев’яна лазня Монако характеризується досить компактними розмірами споруди: 6,8 на 8,8 м. Усередині спорудження організовано раціонально і зручно для гостей лазні. Проект вийшов дуже містким, він включає в себе вітальню з другим світлом, душову, простору парилку площею 12,3 м², санвузол і більярдну з балконом на другому мансардному поверсі. Поєднання таких характеристик як невеликі розміри споруди, комфортне внутрішнє наповнення, зовнішня естетичність, наявність літньої тераси для відпочинку на свіжому повітрі робить проект дерев’яної лазні з оциліндрованих колод затребуваним і в якості приватного, і в якості комерційного об’єкту. Замовляйте баню з оциліндрованих колод Монако в компанії «Домінант» і ми з радістю реалізуємо цей чудовий проект для вас. Про переваги будівництва лазні з оциліндрованого брусу читайте на сайті: dominant-wood.com.ua/ru/42-bani-iz-ocilindrovannogo-brusa.
Дерев’яна лазня Монако стане улюбленим місцем відпочинку для багатьох гостей, вона буде стильно виглядати і на приватній дачній ділянці, і в якості ефектного доповнення для комплексу відпочинку.
- Кількість поверхів
- 2
- Площа
- 119.68
- Ширина
- 8.8
- Довжина
- 6.8
- Садові та господарські споруди
- Бані
Бані з оциліндрованого брусу
Базова комплектація:
(Що входить в ціну)
- комплект стін;
- комплект крокв;
- комплект балок перекриття;
- утеплювач міжвінцевий;
- антисептик (антисептування всього матеріалу);
- дубові нагеля;
- кріпильні материали (саморізи, усадкові болти, анкера, кріпильні пластини);
- гідроізоляція;
- вогнебіозахист (обробка деревини засобом І групи вогнезахисної ефективності)
245430 грн.
Дах (комплектність):
- Рейка 100*25мм (cосна)
- Контрейка 50*25мм (сосна)
- Металочерепиця МОНТЕРРЕЙ (Польща) 0,45мм
- Коник прямий
- Планка примикання
- Лобова (декоративна) планка
- Вітровая планка
- Яндола
- Капельник (Карнизна планка)
- Ущільнювач універсальный
- Саморізи ОС 4.8х35
- Фарба-спрей
- Гідробар'єр
- Монтаж
192940 грн.
Вікна (комплектність):
- Вікно VEKA 58, колір білий 10
- Імпости вертикальні: 1 x 102103
- Скління: СПО, 24мм, (Rсп=0.36)*
- Тип фурнітури: Activpilot поворотно-відкидна, колір білий
- Підбір спеціальний: Activ микровентиляція; Activ 2-функц. механ.
- Моск.сітка: МС 3
- Підвіконня: ВМ 110мм, колір білий
- Підвіконня: ПВ ПВХ 150, заглушки: 600мм, колір білий
- Монтаж
0 грн.
Двері (комплектність):
- Полотно
- Коробка
- Лиштва
- Карниз
- Фарбування
- Скло
- Фурнітура
- Врізка фурнітуры
- Монтаж
221340 грн.
Фарбування (комплектність):
- Шліфування торців
- Тришарове покриття ефективним деревозахисним засобом на базі низькомолекулярної алкідної смоли методом розпилення.
Оциліндрований брус
Оциліндрований брус є найбільш оптимальним і поширеним матеріалом для будівництва дерев`яних будинків і бань, бесідок, альтанок, різноманітних садових меблів, дерев`яних конструкцій будь-яких видів. Дерев`яні будинки з оциліндрованого брусу відрізняються красою, всередині такого будинку завжди відчувається особлива затишна атмосфера.
Профільований брус
Найсучаснішим і високотехнологічним будівельним матеріалом в дерев`яному будівництві на сьогоднішній день є профільований брус. Для виробництва профільованого брусу, звичайному дерев`яному брусу на спеціальному деревообробному обладнанні надається певний профіль.
Подвійний брус з утепленням
Головна ідея застосування подвійного бруса полягала в досягненні енергоефективності житла. Над проектуванням енергозберігаючих будинків працюють провідні інженери та архітектори в різних країнах світу, запропонована фінами технологія подвійного бруса дає можливість звести до мінімуму тепловтрати будинку, а також об`єднує переваги будівництва дерев`яного будинку з економічністю споруди.
Клеєний брус
Клеєний брус принципово відрізняється від інших типів колод багатошаровістю. Така структура робить цей дерев’яний матеріал надміцним і витривалим.
Каркасні конструкції
Каркасні конструкції виготовляються на власних виробничих потужностях компанії «Домінант», з використанням сучасних деревообробних станків. Імпортне, високоточне обладнання дозволяє нам високоякісно виконувати свою роботу. Каркаси складаються зі струганих, ретельно висушених балок 150х50 мм (сосна першого сорту). Ці балки застосовуються для зовнішніх каркасів.













