Дара
- Кількість поверхів
- 1
- Площа
- 60.4
- Ширина
- 8.3
- Довжина
- 8.5
- Садові та господарські споруди
- Бані
Бані з профільованого брусу
(Що входить в ціну)
- комплект стін;
- комплект крокв;
- комплект балок перекриття;
- утеплювач міжвінцевий;
- антисептик (антисептування всього матеріалу);
- дубові нагеля;
- кріпильні материали (саморізи, усадкові болти, анкера, кріпильні пластини);
- гідроізоляція;
- вогнебіозахист (обробка деревини засобом І групи вогнезахисної ефективності)
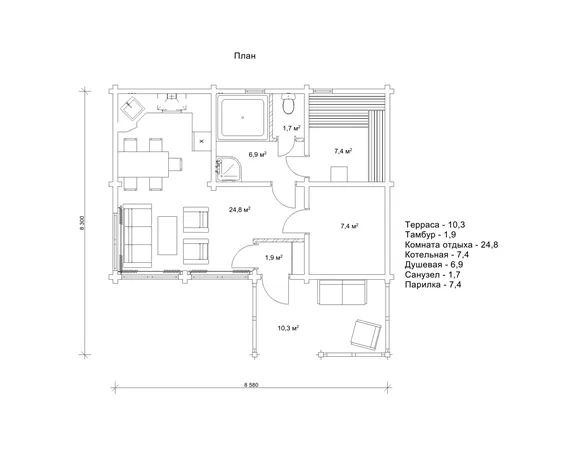
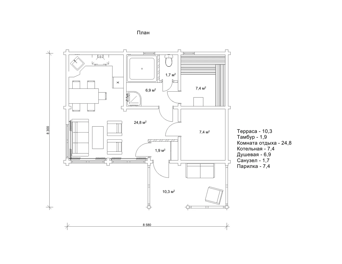
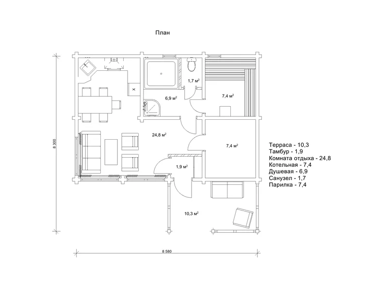
Будівництво лазні з бруса з парилкою 7,4 м2
Сучасні замовники все більше віддають перевагу спорудам саме з сухого бруса. Таким проектам властива зовнішня витонченість та лаконічність. Стіни монолітні та презентабельні за рахунок гладко відшліфованих соснових колод і не вимагають ніякої більше обробки, крім фарбування. Прикладом такої стильної та сучасної споруди із просушеного в прес-вакуумній сушці соснового бруса виступає проект лазні «Дара». Зовні така лазня виглядає як вишукане бунгало з терасою та великими вікнами. Ефектний дизайн будівлі абсолютно не схожий на класичні зруби колодчастих лазень. Будівництво лазні з бруса «Дара» з парилкою 7,4 м2 стане вибором справжнього поціновувача банних процедур у максимально комфортній та естетично привабливій обстановці.
Лазня з бруса «Дара» з парилкою 7,4 м2, загальна площа 60,4 м²
Будівництво лазні «Дара» включно з терасою займає територію 8,3 м на 8,5 м. Загальна площа проекту 60,4 м2 буде зручною для будівництва на будь-якій присадибній ділянці. Усередині лазні з сухого бруса спланована парилка, душова, санвузол, котельна та простора кімната відпочинку розміром 24,8 м2, що складає студійний простір разом з кухнею. Розмір парилки 7,4 м2 передбачає одночасний комфорт для 8-10 чоловік, особливо якщо лавки в лазні розташувати кілька ярусів. Мініатюрний тамбур, розмір якого становить майже 2 м2, є гарним тепловим буфером між банними приміщеннями та майданчиком навісу 10,3 м2. Терасу під навісом можна обладнати зручними вуличними меблями та виходити сюди на відпочинок між лазневими процедурами. Проект «Дара» має у своєму розпорядженні всі необхідні зручності, щоб відмінно попаритися з компанією і після цього відпочити на затишній терасі під навісом. Лазня з бруса «Дара» оптимально доповнить як приватну, так і комерційну споруду.
- Кількість поверхів
- 1
- Площа
- 60.4
- Ширина
- 8.3
- Довжина
- 8.5
- Садові та господарські споруди
- Бані
Бані з профільованого брусу
Базова комплектація:
(Що входить в ціну)
- комплект стін;
- комплект крокв;
- комплект балок перекриття;
- утеплювач міжвінцевий;
- антисептик (антисептування всього матеріалу);
- дубові нагеля;
- кріпильні материали (саморізи, усадкові болти, анкера, кріпильні пластини);
- гідроізоляція;
- вогнебіозахист (обробка деревини засобом І групи вогнезахисної ефективності)
221130 грн.
Дах (комплектність):
- Рейка 100*25мм (cосна)
- Контрейка 50*25мм (сосна)
- Металочерепиця МОНТЕРРЕЙ (Польща) 0,45мм
- Коник прямий
- Планка примикання
- Лобова (декоративна) планка
- Вітровая планка
- Яндола
- Капельник (Карнизна планка)
- Ущільнювач універсальный
- Саморізи ОС 4.8х35
- Фарба-спрей
- Гідробар'єр
- Монтаж
192940 грн.
Вікна (комплектність):
- Вікно VEKA 58, колір білий 10
- Імпости вертикальні: 1 x 102103
- Скління: СПО, 24мм, (Rсп=0.36)*
- Тип фурнітури: Activpilot поворотно-відкидна, колір білий
- Підбір спеціальний: Activ микровентиляція; Activ 2-функц. механ.
- Моск.сітка: МС 3
- Підвіконня: ВМ 110мм, колір білий
- Підвіконня: ПВ ПВХ 150, заглушки: 600мм, колір білий
- Монтаж
41800 грн.
Двері (комплектність):
- Полотно
- Коробка
- Лиштва
- Карниз
- Фарбування
- Скло
- Фурнітура
- Врізка фурнітуры
- Монтаж
98084 грн.
Фарбування (комплектність):
- Шліфування торців
- Тришарове покриття ефективним деревозахисним засобом на базі низькомолекулярної алкідної смоли методом розпилення.
Оциліндрований брус
Оциліндрований брус є найбільш оптимальним і поширеним матеріалом для будівництва дерев`яних будинків і бань, бесідок, альтанок, різноманітних садових меблів, дерев`яних конструкцій будь-яких видів. Дерев`яні будинки з оциліндрованого брусу відрізняються красою, всередині такого будинку завжди відчувається особлива затишна атмосфера.
Профільований брус
Найсучаснішим і високотехнологічним будівельним матеріалом в дерев`яному будівництві на сьогоднішній день є профільований брус. Для виробництва профільованого брусу, звичайному дерев`яному брусу на спеціальному деревообробному обладнанні надається певний профіль.
Подвійний брус з утепленням
Головна ідея застосування подвійного бруса полягала в досягненні енергоефективності житла. Над проектуванням енергозберігаючих будинків працюють провідні інженери та архітектори в різних країнах світу, запропонована фінами технологія подвійного бруса дає можливість звести до мінімуму тепловтрати будинку, а також об`єднує переваги будівництва дерев`яного будинку з економічністю споруди.
Клеєний брус
Клеєний брус принципово відрізняється від інших типів колод багатошаровістю. Така структура робить цей дерев’яний матеріал надміцним і витривалим.
Каркасні конструкції
Каркасні конструкції виготовляються на власних виробничих потужностях компанії «Домінант», з використанням сучасних деревообробних станків. Імпортне, високоточне обладнання дозволяє нам високоякісно виконувати свою роботу. Каркаси складаються зі струганих, ретельно висушених балок 150х50 мм (сосна першого сорту). Ці балки застосовуються для зовнішніх каркасів.
















