Зателефонуйте мені
Евальд №1
Евальд №2
Евальд №3
Евальд №4
Евальд №5
Евальд №6
Евальд №7
Евальд №8
Евальд №9
Евальд №10
Евальд №11
Евальд №12
Евальд №1
Евальд №2
Евальд №3
Евальд №4
Евальд №5
Евальд №6
Евальд №7
Евальд №8
Евальд №9
Евальд №10
Евальд №11
Евальд №12
Евальд №1
Евальд №1 Евальд №2 Евальд №3 Евальд №4 Евальд №5 Евальд №6 Евальд №7 Евальд №8 Евальд №9 Евальд №10 Евальд №11 Евальд №12

Евальд

424 152,00 ₴
Комерційна лазня-зруб із кімнатою відпочинку - «Евальд»
Розмір брусу
  • Оциліндрований 160
  • Оциліндрований 180
  • Оциліндрований 200
  • Оциліндрований 220
  • Профільований 60
  • Профільований 150
  • Профільований 200
  • Подвійний 300
  • Клеєний 120
  • Клеєний 180
Кількість поверхів
1
Площа
38.7
Ширина
6.3
Довжина
7.5
Садові та господарські споруди
Бані
Бані з оциліндрованого брусу
 

(Що входить в ціну)

Що входить в базову комплектацію

  • комплект стін;
  • комплект крокв;
  • комплект балок перекриття;
  • утеплювач міжвінцевий;
  • антисептик (антисептування всього матеріалу);
  • дубові нагеля;
  • кріпильні материали (саморізи, усадкові болти, анкера, кріпильні пластини);
  • гідроізоляція;
  • вогнебіозахист (обробка деревини засобом І групи вогнезахисної ефективності)

Будівництво зрубу комерційної лазні

Проект комерційної лазні «Евальд» має абсолютно всі переваги дерев’яного зрубу, які роблять лазні з дерева такими затребуваними у тих, хто звик і полюбляє добре попаритися. Це такі переваги, як привабливий дизайн з цікавою формою даху, натуральний матеріал будівлі, велика парильня та зручна кімната відпочинку, в якій можна спілкуватися з друзями у перервах між лазневими процедурами. Великі вікна наповнюють кімнату відпочинку великою кількістю світла та створюють у гостей відчуття присутності на природі. А щоб відпочинок у лазні був ще приємнішим, рекомендуємо доповнити її однією з дерев’яних альтанок з нашого каталогу.

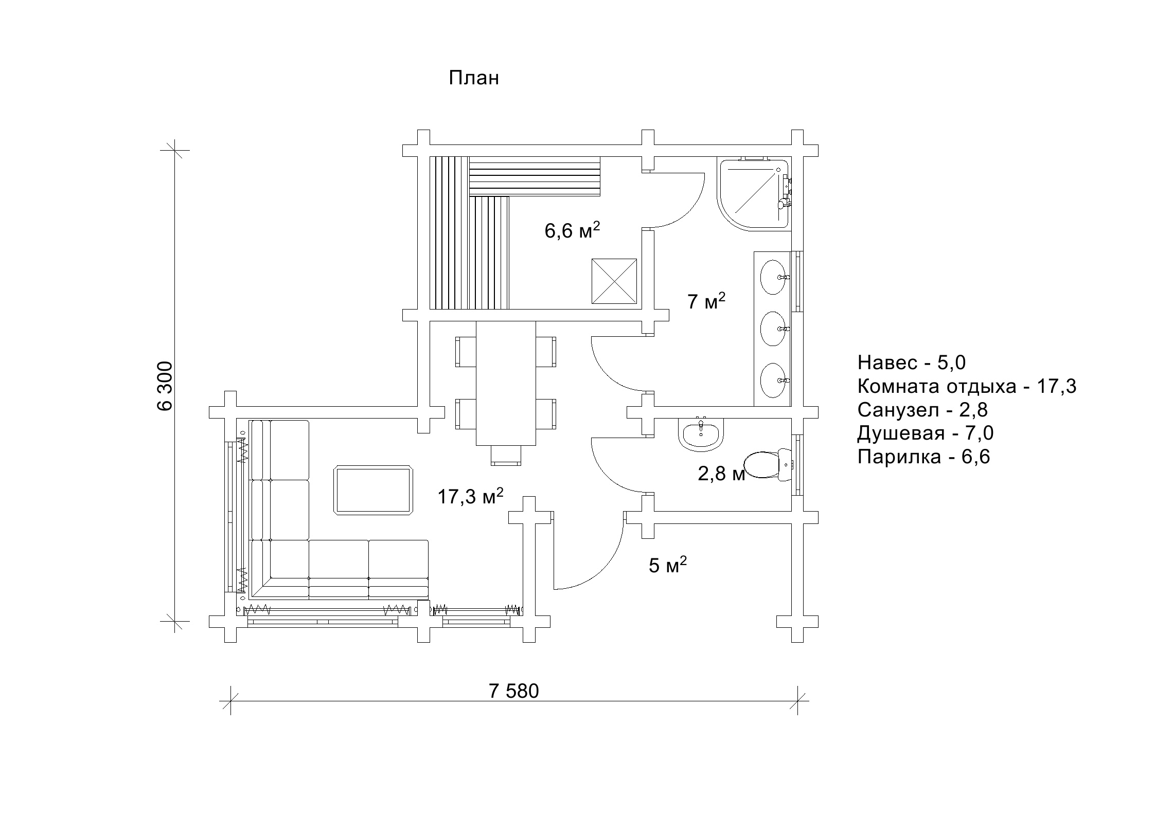
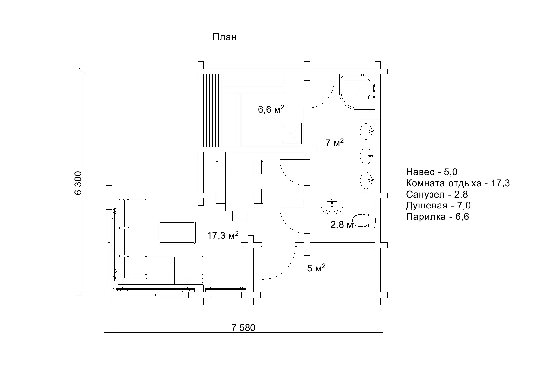
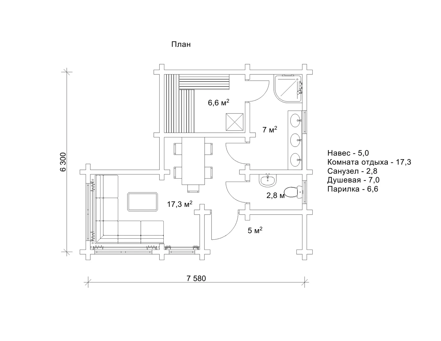
Комерційна лазня-зруб із кімнатою відпочинку «Евальд» площа 38,7 м²

Габарити будівлі за проектом «Евальд» становлять 6,3 на 7,5 м, його компактна площа 38,7 м2 відрізняється максимально функціональним внутрішнім наповненням. Наявність великої парилки розміром 6,6 м2, санвузол з душем та кількома умивальниками, а також комфортна кімната відпочинку на 17,3 м2 дозволяє розглядати цей проект як лазню саме для комерційного використання. Це місце, яке дозволить провести час за лазневими процедурами в максимально сприятливих для здоров’я умовах дерев’яного зрубу. А відпочинок у вітальні прикрашатимуть панорамні вікна, які роблять її схожою на мальовничу, засклену веранду. Компактність споруди, економічність її будівництва та переваги планування – суттєві аргументи на користь інвестування у комерційний зруб лазні «Евальд».

Кількість поверхів
1
Площа
38.7
Ширина
6.3
Довжина
7.5
Садові та господарські споруди
Бані
Бані з оциліндрованого брусу

Базова комплектація:
(Що входить в ціну)

Що входить в базову комплектацію

  • комплект стін;
  • комплект крокв;
  • комплект балок перекриття;
  • утеплювач міжвінцевий;
  • антисептик (антисептування всього матеріалу);
  • дубові нагеля;
  • кріпильні материали (саморізи, усадкові болти, анкера, кріпильні пластини);
  • гідроізоляція;
  • вогнебіозахист (обробка деревини засобом І групи вогнезахисної ефективності)

157950 грн.

Дах (комплектність):

  • Рейка 100*25мм (cосна)
  • Контрейка 50*25мм (сосна)
  • Металочерепиця МОНТЕРРЕЙ (Польща) 0,45мм
  • Коник прямий
  • Планка примикання
  • Лобова (декоративна) планка
  • Вітровая планка
  • Яндола
  • Капельник (Карнизна планка)
  • Ущільнювач універсальный
  • Саморізи ОС 4.8х35
  • Фарба-спрей
  • Гідробар'єр
  • Монтаж

192940 грн.

Вікна (комплектність):

  • Вікно VEKA 58, колір білий 10
  • Імпости вертикальні: 1 x 102103
  • Скління: СПО, 24мм, (Rсп=0.36)*
  • Тип фурнітури: Activpilot поворотно-відкидна, колір білий
  • Підбір спеціальний: Activ микровентиляція; Activ 2-функц. механ.
  • Моск.сітка: МС 3
  • Підвіконня: ВМ 110мм, колір білий
  • Підвіконня: ПВ ПВХ 150, заглушки: 600мм, колір білий
  • Монтаж

41800 грн.

Двері (комплектність):

  • Полотно
  • Коробка
  • Лиштва
  • Карниз
  • Фарбування
  • Скло
  • Фурнітура
  • Врізка фурнітуры
  • Монтаж

95480 грн.

Фарбування (комплектність):

  • Шліфування торців
  • Тришарове покриття ефективним деревозахисним засобом на базі низькомолекулярної алкідної смоли методом розпилення.

Параметри забудови

  • Кількість поверхів: 1
  • Площа: 38.7

Розмір забудови

  • Ширина: 6.3
  • Довжина: 7.5

Перший поверх

навіс (м²)5,0
кімната відпочинку (м²)17,3
санузол (м²)2,8
парилка (м²)6,6
душовая (м²)7,0

Оциліндрований брус

Оциліндрований брус є найбільш оптимальним і поширеним матеріалом для будівництва дерев`яних будинків і бань, бесідок, альтанок, різноманітних садових меблів, дерев`яних конструкцій будь-яких видів. Дерев`яні будинки з оциліндрованого брусу відрізняються красою, всередині такого будинку завжди відчувається особлива затишна атмосфера.

Читати далі...

Профільований брус

Найсучаснішим і високотехнологічним будівельним матеріалом в дерев`яному будівництві на сьогоднішній день є профільований брус. Для виробництва профільованого брусу, звичайному дерев`яному брусу на спеціальному деревообробному обладнанні надається певний профіль.

Читати далі...

Подвійний брус з утепленням

Головна ідея застосування подвійного бруса полягала в досягненні енергоефективності житла. Над проектуванням енергозберігаючих будинків працюють провідні інженери та архітектори в різних країнах світу, запропонована фінами технологія подвійного бруса дає можливість звести до мінімуму тепловтрати будинку, а також об`єднує переваги будівництва дерев`яного будинку з економічністю споруди.

Читати далі...

Клеєний брус

Клеєний брус принципово відрізняється від інших типів колод багатошаровістю. Така структура робить цей дерев’яний матеріал надміцним і витривалим.

Читати далі...

Каркасні конструкції

Каркасні конструкції виготовляються на власних виробничих потужностях компанії «Домінант», з використанням сучасних деревообробних станків. Імпортне, високоточне обладнання дозволяє нам високоякісно виконувати свою роботу. Каркаси складаються зі струганих, ретельно висушених балок 150х50 мм (сосна першого сорту). Ці балки застосовуються для зовнішніх каркасів.

Читати далі...

Немає відгуків

Переглянуті товари

16 інших товарів в цій категорії:

Товар додано для порівняння.