Бодог
- Кількість поверхів
- 1
- Площа
- 37.3
- Ширина
- 6.5
- Довжина
- 7
- Садові та господарські споруди
- Бані
Бані з оциліндрованого брусу
(Що входить в ціну)
- комплект стін;
- комплект крокв;
- комплект балок перекриття;
- утеплювач міжвінцевий;
- антисептик (антисептування всього матеріалу);
- дубові нагеля;
- кріпильні материали (саморізи, усадкові болти, анкера, кріпильні пластини);
- гідроізоляція;
- вогнебіозахист (обробка деревини засобом І групи вогнезахисної ефективності)
Будівництво лазні зі зрубу з парною 6,3 м2
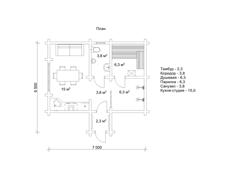
Проект «Бодог» позиціонується, в першу чергу, як комерційна лазня. Це компактна споруда 6,5 на 7 м площею 37,3 м2 з парною розміром 6,3 м2, просторою душовою, санвузлом і кухнею-студією, яка послужить у якості кімнати відпочинку після банних процедур. Архітектор «Домінант» передбачив в цій дерев’яній лазні абсолютно все необхідне, щоб створити максимально комфортні умови для відпочинку і оздоровлення. Зовнішній дизайн зрубу «Бодог» дуже простий. Біля входу гостей чекає привітний ґанок під козирком. Лише одне велике вікно виступає родзинкою екстер’єру лазні. Це обумовлює її економічність і привабливість для тих, хто хоче інвестувати в банний бізнес.
Лазня зі зрубу з парною 6,3 м2 «Бодог»
У лазні «Бодог» розмір парилки становить 6,3 м2, це означає, що в ній буде просторо і комфортно паритися компанії з декількох людей. Атмосфера всередині соснового зрубу завжди максимально наближена до природи, що тільки сприяє гарному банного відпочинку і розслабленню. Маленька лазня з оциліндрованих колод в повній мірі дозволить відчути приємний жар і деревний аромат від самих стін і банних віників. Купити лазню зі зрубу варто для того, щоб оздоровитися і підняти настрій. А якщо ви плануєте замовити будівництво лазні зі зрубу з парною 6,3 м2 «Бодог» з метою комерції, то проект порадує вас регулярними фінансовими надходженнями і постійним доходом. У такого чудового закладу завжди буде безліч бажаючих провести дозвілля та оздоровитися. Якщо ви прямо зараз звернетеся за вказаними на сайті контактами, зруб дерев’яної баньки «Бодог» незабаром прикрасить вашу ділянку!
- Кількість поверхів
- 1
- Площа
- 37.3
- Ширина
- 6.5
- Довжина
- 7
- Садові та господарські споруди
- Бані
Бані з оциліндрованого брусу
Базова комплектація:
(Що входить в ціну)
- комплект стін;
- комплект крокв;
- комплект балок перекриття;
- утеплювач міжвінцевий;
- антисептик (антисептування всього матеріалу);
- дубові нагеля;
- кріпильні материали (саморізи, усадкові болти, анкера, кріпильні пластини);
- гідроізоляція;
- вогнебіозахист (обробка деревини засобом І групи вогнезахисної ефективності)
160380 грн.
Дах (комплектність):
- Рейка 100*25мм (cосна)
- Контрейка 50*25мм (сосна)
- Металочерепиця МОНТЕРРЕЙ (Польща) 0,45мм
- Коник прямий
- Планка примикання
- Лобова (декоративна) планка
- Вітровая планка
- Яндола
- Капельник (Карнизна планка)
- Ущільнювач універсальный
- Саморізи ОС 4.8х35
- Фарба-спрей
- Гідробар'єр
- Монтаж
87700 грн.
Вікна (комплектність):
- Вікно VEKA 58, колір білий 10
- Імпости вертикальні: 1 x 102103
- Скління: СПО, 24мм, (Rсп=0.36)*
- Тип фурнітури: Activpilot поворотно-відкидна, колір білий
- Підбір спеціальний: Activ микровентиляція; Activ 2-функц. механ.
- Моск.сітка: МС 3
- Підвіконня: ВМ 110мм, колір білий
- Підвіконня: ПВ ПВХ 150, заглушки: 600мм, колір білий
- Монтаж
41800 грн.
Двері (комплектність):
- Полотно
- Коробка
- Лиштва
- Карниз
- Фарбування
- Скло
- Фурнітура
- Врізка фурнітуры
- Монтаж
94612 грн.
Фарбування (комплектність):
- Шліфування торців
- Тришарове покриття ефективним деревозахисним засобом на базі низькомолекулярної алкідної смоли методом розпилення.
Оциліндрований брус
Оциліндрований брус є найбільш оптимальним і поширеним матеріалом для будівництва дерев`яних будинків і бань, бесідок, альтанок, різноманітних садових меблів, дерев`яних конструкцій будь-яких видів. Дерев`яні будинки з оциліндрованого брусу відрізняються красою, всередині такого будинку завжди відчувається особлива затишна атмосфера.
Профільований брус
Найсучаснішим і високотехнологічним будівельним матеріалом в дерев`яному будівництві на сьогоднішній день є профільований брус. Для виробництва профільованого брусу, звичайному дерев`яному брусу на спеціальному деревообробному обладнанні надається певний профіль.
Подвійний брус з утепленням
Головна ідея застосування подвійного бруса полягала в досягненні енергоефективності житла. Над проектуванням енергозберігаючих будинків працюють провідні інженери та архітектори в різних країнах світу, запропонована фінами технологія подвійного бруса дає можливість звести до мінімуму тепловтрати будинку, а також об`єднує переваги будівництва дерев`яного будинку з економічністю споруди.
Клеєний брус
Клеєний брус принципово відрізняється від інших типів колод багатошаровістю. Така структура робить цей дерев’яний матеріал надміцним і витривалим.
Каркасні конструкції
Каркасні конструкції виготовляються на власних виробничих потужностях компанії «Домінант», з використанням сучасних деревообробних станків. Імпортне, високоточне обладнання дозволяє нам високоякісно виконувати свою роботу. Каркаси складаються зі струганих, ретельно висушених балок 150х50 мм (сосна першого сорту). Ці балки застосовуються для зовнішніх каркасів.













