Альдіс
- Кількість поверхів
- 1
- Площа
- 47.7
- Ширина
- 6.2
- Довжина
- 7.7
- Садові та господарські споруди
- Бані
Бані з оциліндрованого брусу
(Що входить в ціну)
- комплект стін;
- комплект крокв;
- комплект балок перекриття;
- утеплювач міжвінцевий;
- антисептик (антисептування всього матеріалу);
- дубові нагеля;
- кріпильні материали (саморізи, усадкові болти, анкера, кріпильні пластини);
- гідроізоляція;
- вогнебіозахист (обробка деревини засобом І групи вогнезахисної ефективності)
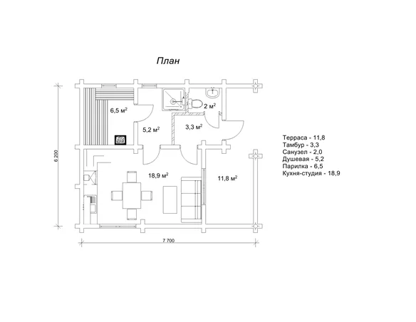
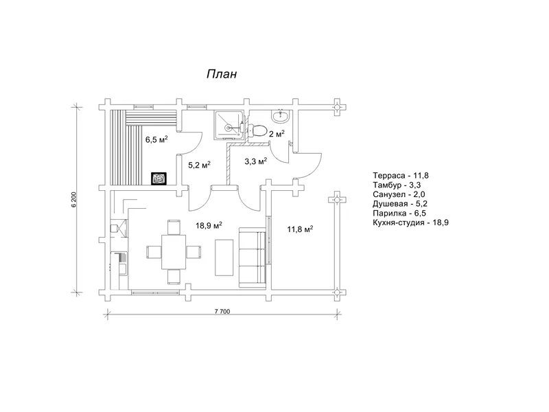
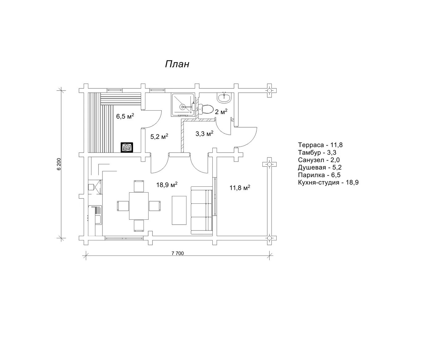
План лазні 6 на 7 м за ціною виробника
Класичний екстер’єр дерев’яного зрубу лазні «Альдіс» виглядає самобутньо й затишно. На будь-якій заміській ділянці ця будова гармонійно доповнить інші споруди. Тому з першого погляду ця споруда привертає увагу, а план внутрішніх приміщень лазні підходить більшості замовників за рахунок своєї функціональності. Баня «Альдіс» створена за планом зі зручними параметрами забудови 6 на 7 м. Тому цей проект затребуваний у наших клієнтів, як затишна, компактна лазня з просторими приміщеннями і лаконічним плануванням. Дерев’яна лазня площею близько п’ятдесяти квадратів успішно послужить як для особистого використання, так і в якості комерційного об’єкта. Замовити будівництво лазні «Альдіс» за ціною виробника - означає за доступну вартість отримати можливість гарненько попаритися і оздоровитися в будь-який зручний час.
Лазня «Альдіс» за ціною виробника площа 47,7 м²
Всередині будівлі сплановані приміщення невеликого тамбура, кімнати відпочинку розміром 18,9 м2, санвузол, ну і, звичайно ж, парилка і душова. Парилка передбачає зручне розташування полиць і достатньо місця для компанії з 6-8 чоловік. Простора літня тераса заслуговує на окрему увагу, тому що це улюблене місце дозвілля прихильників банного відпочинку після парних процедур. Дерев’яний комплект по проекту лазні «Альдіс» виробляється на власному обладнанні «Домінант» і встановлюється нашими будівельниками на фундамент замовника. Вигідна ціна без посередників на дерев’яну конструкцію з установкою порадує всіх, хто зробить замовлення на будівництво лазні.
- Кількість поверхів
- 1
- Площа
- 47.7
- Ширина
- 6.2
- Довжина
- 7.7
- Садові та господарські споруди
- Бані
Бані з оциліндрованого брусу
Базова комплектація:
(Що входить в ціну)
- комплект стін;
- комплект крокв;
- комплект балок перекриття;
- утеплювач міжвінцевий;
- антисептик (антисептування всього матеріалу);
- дубові нагеля;
- кріпильні материали (саморізи, усадкові болти, анкера, кріпильні пластини);
- гідроізоляція;
- вогнебіозахист (обробка деревини засобом І групи вогнезахисної ефективності)
182250 грн.
Дах (комплектність):
- Рейка 100*25мм (cосна)
- Контрейка 50*25мм (сосна)
- Металочерепиця МОНТЕРРЕЙ (Польща) 0,45мм
- Коник прямий
- Планка примикання
- Лобова (декоративна) планка
- Вітровая планка
- Яндола
- Капельник (Карнизна планка)
- Ущільнювач універсальный
- Саморізи ОС 4.8х35
- Фарба-спрей
- Гідробар'єр
- Монтаж
87700 грн.
Вікна (комплектність):
- Вікно VEKA 58, колір білий 10
- Імпости вертикальні: 1 x 102103
- Скління: СПО, 24мм, (Rсп=0.36)*
- Тип фурнітури: Activpilot поворотно-відкидна, колір білий
- Підбір спеціальний: Activ микровентиляція; Activ 2-функц. механ.
- Моск.сітка: МС 3
- Підвіконня: ВМ 110мм, колір білий
- Підвіконня: ПВ ПВХ 150, заглушки: 600мм, колір білий
- Монтаж
41800 грн.
Двері (комплектність):
- Полотно
- Коробка
- Лиштва
- Карниз
- Фарбування
- Скло
- Фурнітура
- Врізка фурнітуры
- Монтаж
98084 грн.
Фарбування (комплектність):
- Шліфування торців
- Тришарове покриття ефективним деревозахисним засобом на базі низькомолекулярної алкідної смоли методом розпилення.
Оциліндрований брус
Оциліндрований брус є найбільш оптимальним і поширеним матеріалом для будівництва дерев`яних будинків і бань, бесідок, альтанок, різноманітних садових меблів, дерев`яних конструкцій будь-яких видів. Дерев`яні будинки з оциліндрованого брусу відрізняються красою, всередині такого будинку завжди відчувається особлива затишна атмосфера.
Профільований брус
Найсучаснішим і високотехнологічним будівельним матеріалом в дерев`яному будівництві на сьогоднішній день є профільований брус. Для виробництва профільованого брусу, звичайному дерев`яному брусу на спеціальному деревообробному обладнанні надається певний профіль.
Подвійний брус з утепленням
Головна ідея застосування подвійного бруса полягала в досягненні енергоефективності житла. Над проектуванням енергозберігаючих будинків працюють провідні інженери та архітектори в різних країнах світу, запропонована фінами технологія подвійного бруса дає можливість звести до мінімуму тепловтрати будинку, а також об`єднує переваги будівництва дерев`яного будинку з економічністю споруди.
Клеєний брус
Клеєний брус принципово відрізняється від інших типів колод багатошаровістю. Така структура робить цей дерев’яний матеріал надміцним і витривалим.
Каркасні конструкції
Каркасні конструкції виготовляються на власних виробничих потужностях компанії «Домінант», з використанням сучасних деревообробних станків. Імпортне, високоточне обладнання дозволяє нам високоякісно виконувати свою роботу. Каркаси складаються зі струганих, ретельно висушених балок 150х50 мм (сосна першого сорту). Ці балки застосовуються для зовнішніх каркасів.















