Єфросинія
- Кількість поверхів
- 2
- Площа
- 738
- Ширина
- 28.2
- Довжина
- 23.3
- Комерційні будівлі
- Бази відпочинку
Готелі
(Що входить в ціну)
- комплект стін;
- комплект крокв;
- комплект балок перекриття;
- утеплювач міжвінцевий;
- антисептик (антисептування всього матеріалу);
- дубові нагеля;
- кріпильні материали (саморізи, усадкові болти, анкера, кріпильні пластини);
- гідроізоляція;
- вогнебіозахист (обробка деревини засобом І групи вогнезахисної ефективності)
Готель Єфросинія є одним з найбільш затребуваних комерційних проектів компанії «Домінант» dominant-wood.com.ua/. Даний комплекс дуже органічно виглядає у виконанні з оциліндрованих колод і прекрасно впишеться в будь-який ландшафт. Його зовнішній вигляд дуже мальовничий. Кожна з зон підкреслена баштовими виступами вікон. Балкони з усіх боків будинку знаходяться в загальному просторі для відпочинку. Ними можуть скористатися мешканці в будь-який момент, щоб вдихнути свіжого повітря і насолодитися видами навколишньої природи. Самі балкони виконані у витонченій манері і прекрасно доповнюють екстер’єр своєю простою елегантністю.
Внутрішнє планування дуже зручне для всіх бажаючих відпочити в екологічному готелі Єфросинія dominant-wood.com.ua/uk/proekty/726-yefrosiniya. На кожному поверсі є великий зал, де можна розмістити дві зони. Наприклад, на першому поверсі буде ресторан, а на другому майданчик для розваг: більярд, настільний футбол або концертний зал. Наявні технічні приміщення, що в майбутньому можуть бути організовані як кухні та інші необхідні зони. Крім того, що дерев’яний готель це дуже екологічний проект, він ще дуже заощадить вам ваші ресурси.
Сучасне житлове будівництво, за рахунок свого матеріалу і наявності в таких будинках енергозберігаючих установок, зберігає тепло в приміщення набагато краще і економить вам гроші на їх оплату. Більш детально з цього питання наведені аргументи в нашій статті «Будівництво дерев’яних будинків - енергетика майбутнього» dominant-wood.com.ua/uk/blog/news/bud-vnictvo-derevyanix-budink-v-energetika-majbutnogo.
Екологічний готель Єфросинія стане справжньою окрасою вашого бізнесу і принесе вам хороший дохід.
- Кількість поверхів
- 2
- Площа
- 738
- Ширина
- 28.2
- Довжина
- 23.3
- Комерційні будівлі
- Бази відпочинку
Готелі
Базова комплектація:
(Що входить в ціну)
- комплект стін;
- комплект крокв;
- комплект балок перекриття;
- утеплювач міжвінцевий;
- антисептик (антисептування всього матеріалу);
- дубові нагеля;
- кріпильні материали (саморізи, усадкові болти, анкера, кріпильні пластини);
- гідроізоляція;
- вогнебіозахист (обробка деревини засобом І групи вогнезахисної ефективності)
1385100 грн.
Дах (комплектність):
- Рейка 100*25мм (cосна)
- Контрейка 50*25мм (сосна)
- Металочерепиця МОНТЕРРЕЙ (Польща) 0,45мм
- Коник прямий
- Планка примикання
- Лобова (декоративна) планка
- Вітровая планка
- Яндола
- Капельник (Карнизна планка)
- Ущільнювач універсальный
- Саморізи ОС 4.8х35
- Фарба-спрей
- Гідробар'єр
- Монтаж
1297960 грн.
Вікна (комплектність):
- Вікно VEKA 58, колір білий 10
- Імпости вертикальні: 1 x 102103
- Скління: СПО, 24мм, (Rсп=0.36)*
- Тип фурнітури: Activpilot поворотно-відкидна, колір білий
- Підбір спеціальний: Activ микровентиляція; Activ 2-функц. механ.
- Моск.сітка: МС 3
- Підвіконня: ВМ 110мм, колір білий
- Підвіконня: ПВ ПВХ 150, заглушки: 600мм, колір білий
- Монтаж
0 грн.
Двері (комплектність):
- Полотно
- Коробка
- Лиштва
- Карниз
- Фарбування
- Скло
- Фурнітура
- Врізка фурнітуры
- Монтаж
473060 грн.
Фарбування (комплектність):
- Шліфування торців
- Тришарове покриття ефективним деревозахисним засобом на базі низькомолекулярної алкідної смоли методом розпилення.
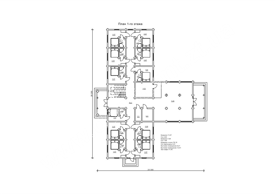
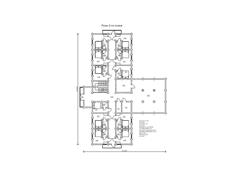
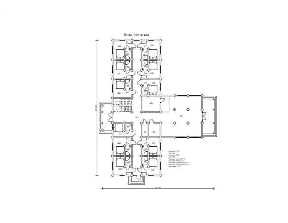
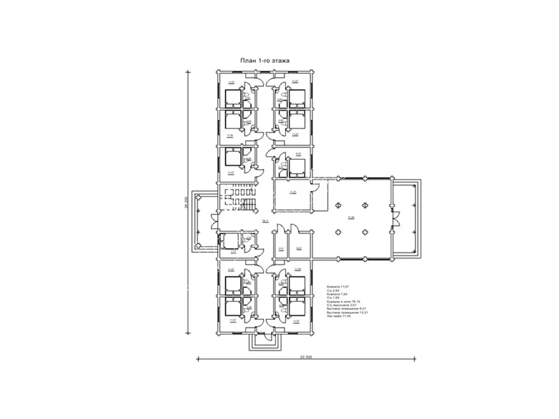
Параметри забудови
- Кількість поверхів: 2
- Площа: 738
Розмір забудови
- Ширина: 28.2
- Довжина: 23.3
Перший поверх
| зал (м²) | 71,4 |
| комора (м²) | 6,2 |
| кімната (м²) | 11 |
| кімната (м²) | 7,9 |
| кімната (м²) | 12,5 |
| коридор (м²) | 78,1 |
| с/в (м²) | 2,6 |
| с/в (м²) | 1,6 |
| с/в (м²) | 3,5 |
Другий поверх
| зал (м²) | 71,4 |
| комора (м²) | 6,2 |
| кімната (м²) | 11 |
| кімната (м²) | 7,9 |
| кімната (м²) | 9,2 |
| кімната (м²) | 12,5 |
| коридор (м²) | 88,4 |
| с/в (м²) | 2,6 |
| с/в (м²) | 1,7 |
| с/в (м²) | 3,5 |
| с/в (м²) | 2,4 |
Оциліндрований брус
Оциліндрований брус є найбільш оптимальним і поширеним матеріалом для будівництва дерев`яних будинків і бань, бесідок, альтанок, різноманітних садових меблів, дерев`яних конструкцій будь-яких видів. Дерев`яні будинки з оциліндрованого брусу відрізняються красою, всередині такого будинку завжди відчувається особлива затишна атмосфера.
Профільований брус
Найсучаснішим і високотехнологічним будівельним матеріалом в дерев`яному будівництві на сьогоднішній день є профільований брус. Для виробництва профільованого брусу, звичайному дерев`яному брусу на спеціальному деревообробному обладнанні надається певний профіль.
Подвійний брус з утепленням
Головна ідея застосування подвійного бруса полягала в досягненні енергоефективності житла. Над проектуванням енергозберігаючих будинків працюють провідні інженери та архітектори в різних країнах світу, запропонована фінами технологія подвійного бруса дає можливість звести до мінімуму тепловтрати будинку, а також об`єднує переваги будівництва дерев`яного будинку з економічністю споруди.
Клеєний брус
Клеєний брус принципово відрізняється від інших типів колод багатошаровістю. Така структура робить цей дерев’яний матеріал надміцним і витривалим.
Каркасні конструкції
Каркасні конструкції виготовляються на власних виробничих потужностях компанії «Домінант», з використанням сучасних деревообробних станків. Імпортне, високоточне обладнання дозволяє нам високоякісно виконувати свою роботу. Каркаси складаються зі струганих, ретельно висушених балок 150х50 мм (сосна першого сорту). Ці балки застосовуються для зовнішніх каркасів.












