Маделіф
Котедж на один поверх 12,7 на 8,6 м - «Маделіф»
- Кількість поверхів
- 1
- Площа
- 109.2
- Ширина
- 12.7
- Довжина
- 8.6
- Будинки і житлові будови
- Котеджі
- Кількість кімнат
- Чотирикімнатні будинки
- Особливості будинків
- Будинки з терасою
- Кількість поверхів споруди
- Одноповерхові будинки
- Будинки з брусу
- Будинки з клеєного брусу
Будинки з профільованого брусу
(Що входить в ціну)
- комплект стін;
- комплект крокв;
- комплект балок перекриття;
- утеплювач міжвінцевий;
- антисептик (антисептування всього матеріалу);
- дубові нагеля;
- кріпильні материали (саморізи, усадкові болти, анкера, кріпильні пластини);
- гідроізоляція;
- вогнебіозахист (обробка деревини засобом І групи вогнезахисної ефективності)
Проект котеджу на один поверх з терасою
Поглянувши на одноповерховий котедж «Маделіф» відразу з’являється відчуття надійного домашнього вогнища. Лаконічна архітектура і зовнішня презентабельність в повній мірі сприяє такому першому враженню. З сухого профільованого брусу виходять гарні, добротні будинки з монолітними стінами. Вам, напевно, цікаво буде дізнатися в нашій публікації dominant-wood.com.ua/uk/blog/statti/c-l-snij-suxij-prof-lovanij-brus-vakuumno-sushki всі переваги сухого цільного профільованого брусу, який ми висушуємо до 16% вологості у вакуумній сушці, а потім будуємо з нього тепле, надійне і екологічно чисте житло. Елегантний дерев’яний котедж в класичному стилі «Маделіф» зовні виглядає мініатюрним, а насправді він дуже місткий. Давайте заглянемо всередину і переконаємося, що цей будиночок може стати втіленням заповітної мрії тих, хто втомився від сірості бетону і мріє про життя ближче до природи.
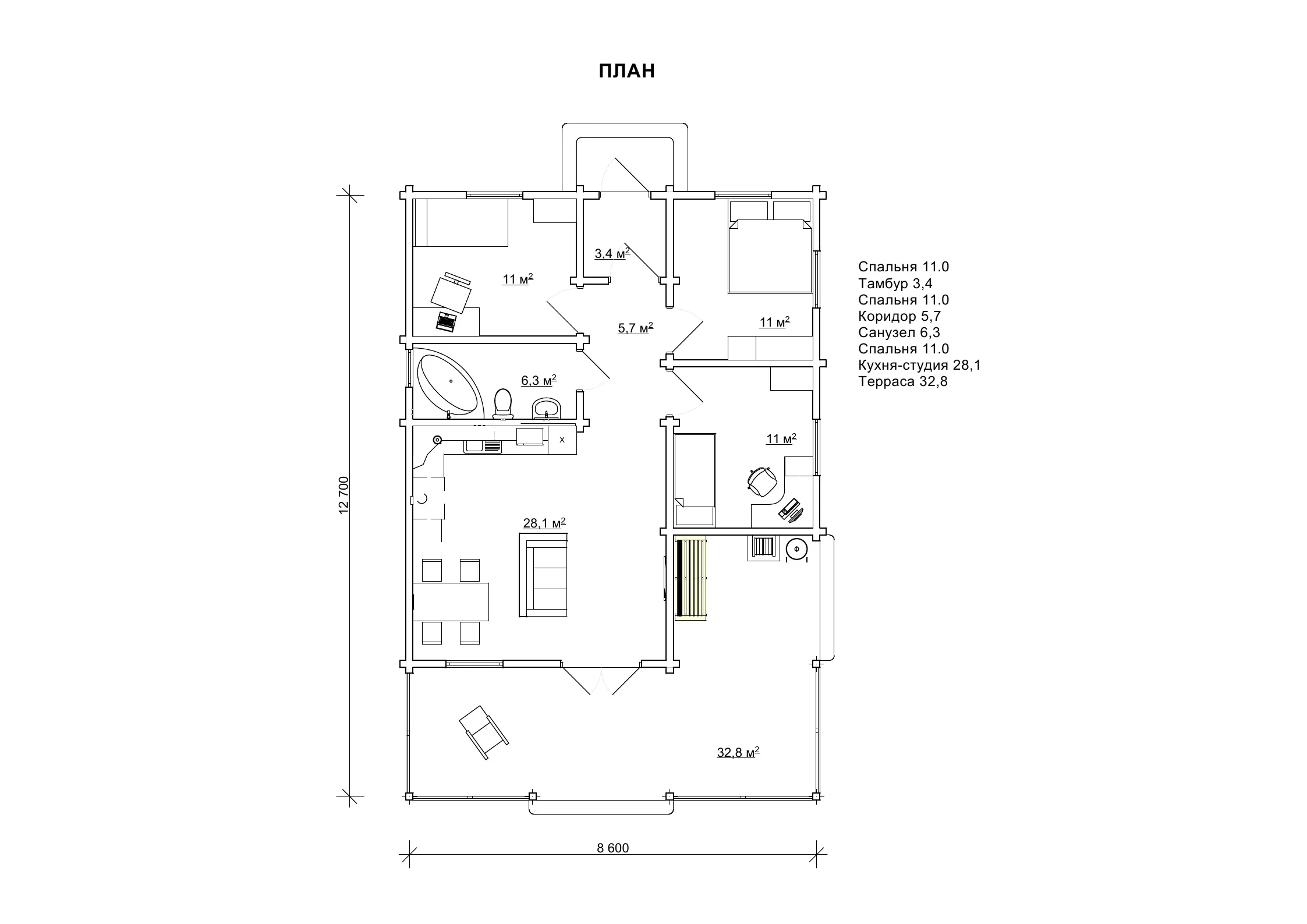
Планування будинку з трьома спальнями
Загальна площа котеджу становить 109,2 м² разом з літньою терасою, що красиво обрамляє котедж. 76,4 м² - це площа внутрішніх приміщень. Проект «Маделіф» характеризується досить великими параметрами забудови 12,7 на 8,6 м, які вміщають тамбур, коридор, санвузол, кухню-студію. Особливу увагу слід звернути на те, що планування будинку передбачає наявність трьох спалень, що робить котедж комфортним для сім’ї з дітьми. У такий будиночок зручно запросити рідних і друзів щоб весело провести час на просторій, літній терасі, площа якої становить 32,8 м².
Будівництво будинку з сухого профільованого брусу за готовим проектом «Маделіф»
Якщо вам сподобався готовий проект будинку з сухого профільованого брусу розміром 150х150 мм «Маделіф», ви можете замовити його будівництво, звернувшись в компанію «Домінант» за нашими контактними даними, які можна подивитися в розділі «Контакти». У кожну споруду ми вкладаємо свою душу і безліч зусиль, недарма кожен наш проект особливий, має свою назву і характер. Ми обов’язково побудуємо вам чудовий будинок з бруса, в якому ви завжди будете насолоджуватися винятковим комфортом.
- Кількість поверхів
- 1
- Площа
- 109.2
- Ширина
- 12.7
- Довжина
- 8.6
- Будинки і житлові будови
- Котеджі
- Кількість кімнат
- Чотирикімнатні будинки
- Особливості будинків
- Будинки з терасою
- Кількість поверхів споруди
- Одноповерхові будинки
- Будинки з брусу
- Будинки з клеєного брусу
Будинки з профільованого брусу
Базова комплектація:
(Що входить в ціну)
- комплект стін;
- комплект крокв;
- комплект балок перекриття;
- утеплювач міжвінцевий;
- антисептик (антисептування всього матеріалу);
- дубові нагеля;
- кріпильні материали (саморізи, усадкові болти, анкера, кріпильні пластини);
- гідроізоляція;
- вогнебіозахист (обробка деревини засобом І групи вогнезахисної ефективності)
347490 грн.
Дах (комплектність):
- Рейка 100*25мм (cосна)
- Контрейка 50*25мм (сосна)
- Металочерепиця МОНТЕРРЕЙ (Польща) 0,45мм
- Коник прямий
- Планка примикання
- Лобова (декоративна) планка
- Вітровая планка
- Яндола
- Капельник (Карнизна планка)
- Ущільнювач універсальный
- Саморізи ОС 4.8х35
- Фарба-спрей
- Гідробар'єр
- Монтаж
157860 грн.
Вікна (комплектність):
- Вікно VEKA 58, колір білий 10
- Імпости вертикальні: 1 x 102103
- Скління: СПО, 24мм, (Rсп=0.36)*
- Тип фурнітури: Activpilot поворотно-відкидна, колір білий
- Підбір спеціальний: Activ микровентиляція; Activ 2-функц. механ.
- Моск.сітка: МС 3
- Підвіконня: ВМ 110мм, колір білий
- Підвіконня: ПВ ПВХ 150, заглушки: 600мм, колір білий
- Монтаж
355300 грн.
Двері (комплектність):
- Полотно
- Коробка
- Лиштва
- Карниз
- Фарбування
- Скло
- Фурнітура
- Врізка фурнітуры
- Монтаж
93744 грн.
Фарбування (комплектність):
- Шліфування торців
- Тришарове покриття ефективним деревозахисним засобом на базі низькомолекулярної алкідної смоли методом розпилення.
Оциліндрований брус
Оциліндрований брус є найбільш оптимальним і поширеним матеріалом для будівництва дерев`яних будинків і бань, бесідок, альтанок, різноманітних садових меблів, дерев`яних конструкцій будь-яких видів. Дерев`яні будинки з оциліндрованого брусу відрізняються красою, всередині такого будинку завжди відчувається особлива затишна атмосфера.
Профільований брус
Найсучаснішим і високотехнологічним будівельним матеріалом в дерев`яному будівництві на сьогоднішній день є профільований брус. Для виробництва профільованого брусу, звичайному дерев`яному брусу на спеціальному деревообробному обладнанні надається певний профіль.
Подвійний брус з утепленням
Головна ідея застосування подвійного бруса полягала в досягненні енергоефективності житла. Над проектуванням енергозберігаючих будинків працюють провідні інженери та архітектори в різних країнах світу, запропонована фінами технологія подвійного бруса дає можливість звести до мінімуму тепловтрати будинку, а також об`єднує переваги будівництва дерев`яного будинку з економічністю споруди.
Клеєний брус
Клеєний брус принципово відрізняється від інших типів колод багатошаровістю. Така структура робить цей дерев’яний матеріал надміцним і витривалим.
Каркасні конструкції
Каркасні конструкції виготовляються на власних виробничих потужностях компанії «Домінант», з використанням сучасних деревообробних станків. Імпортне, високоточне обладнання дозволяє нам високоякісно виконувати свою роботу. Каркаси складаються зі струганих, ретельно висушених балок 150х50 мм (сосна першого сорту). Ці балки застосовуються для зовнішніх каркасів.






















