Пегас
Садовий будиночок з терасою, студія 5,5 на 7м - «Пегас»
- Кількість поверхів
- 1
- Площа
- 38.5
- Ширина
- 7
- Довжина
- 5.5
- Будинки і житлові будови
- Будиночки
Дачі
Студії - Кількість кімнат
- Однокімнатні будинки
- Особливості будинків
- Будинки з терасою
- Кількість поверхів споруди
- Одноповерхові будинки
(Що входить в ціну)
- комплект стін;
- комплект крокв;
- комплект балок перекриття;
- утеплювач міжвінцевий;
- антисептик (антисептування всього матеріалу);
- дубові нагеля;
- кріпильні материали (саморізи, усадкові болти, анкера, кріпильні пластини);
- гідроізоляція;
- вогнебіозахист (обробка деревини засобом І групи вогнезахисної ефективності)
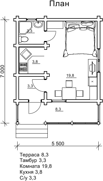
Проект маленького економічного будинку з бруса, який включає всі необхідні приміщення для повноцінного відпочинку і життя. Котедж Пегас включає терасу, тамбур, кімнату, кухню, санвузол. Така дачка допоможе усамітнитися і відпочити від міської метушні, приємно провести час у колі сім’ї та друзів на свіжому повітрі. Затишна тераса дозволяє вам, як приймати гостей, так і просто наодинці із зовнішнім світом і загадковою природою зануритися з головою в свої думки.
Даний літній будиночок впишеться в абсолютно будь-яку обстановку, будь-то дачну ділянку, лісовий масив або берег річки. На перший погляд проста і затишна будова цілком задовольняє всі потреби відпочинку на свіжому повітрі, просте планування дозволяє вам не просто облаштувати місце для відпочинку на вихідні, а й втілити мрії і створити свій світ гармонії, спокою і реллакса, і це те, чого так не вистачає в звичайні будні. Ви можете приїжджати сюди як на вихідні, так і провести все літо безтурботно і зі смаком. Даний літній будиночок так само створений з екологічних матеріалів і максимально захищений від впливу вологи і води, також всі матеріали оброблені антисептичними препаратами для досягнення максимальної якості.
Унікальність даної пропозиції полягає в тому, що на сайті «Домінант» dominant-wood.com.ua/uk/. Ви можете підібрати планування, що догоджатиме виключно вашим задумам, і ми з великим задоволенням допоможемо вам втілити це в життя. Ми пропонуємо вам відчути себе дизайнером, архітектором і справжнім творцем, а всі незручності і рутину за вас якісно, швидко і кваліфіковано зробить компанія «Домінант» dominant-wood.com.ua/uk/.
- Кількість поверхів
- 1
- Площа
- 38.5
- Ширина
- 7
- Довжина
- 5.5
- Будинки і житлові будови
- Будиночки
Дачі
Студії - Кількість кімнат
- Однокімнатні будинки
- Особливості будинків
- Будинки з терасою
- Кількість поверхів споруди
- Одноповерхові будинки
Базова комплектація:
(Що входить в ціну)
- комплект стін;
- комплект крокв;
- комплект балок перекриття;
- утеплювач міжвінцевий;
- антисептик (антисептування всього матеріалу);
- дубові нагеля;
- кріпильні материали (саморізи, усадкові болти, анкера, кріпильні пластини);
- гідроізоляція;
- вогнебіозахист (обробка деревини засобом І групи вогнезахисної ефективності)
148230 грн.
Дах (комплектність):
- Рейка 100*25мм (cосна)
- Контрейка 50*25мм (сосна)
- Металочерепиця МОНТЕРРЕЙ (Польща) 0,45мм
- Коник прямий
- Планка примикання
- Лобова (декоративна) планка
- Вітровая планка
- Яндола
- Капельник (Карнизна планка)
- Ущільнювач універсальный
- Саморізи ОС 4.8х35
- Фарба-спрей
- Гідробар'єр
- Монтаж
70160 грн.
Вікна (комплектність):
- Вікно VEKA 58, колір білий 10
- Імпости вертикальні: 1 x 102103
- Скління: СПО, 24мм, (Rсп=0.36)*
- Тип фурнітури: Activpilot поворотно-відкидна, колір білий
- Підбір спеціальний: Activ микровентиляція; Activ 2-функц. механ.
- Моск.сітка: МС 3
- Підвіконня: ВМ 110мм, колір білий
- Підвіконня: ПВ ПВХ 150, заглушки: 600мм, колір білий
- Монтаж
0 грн.
Двері (комплектність):
- Полотно
- Коробка
- Лиштва
- Карниз
- Фарбування
- Скло
- Фурнітура
- Врізка фурнітуры
- Монтаж
118048 грн.
Фарбування (комплектність):
- Шліфування торців
- Тришарове покриття ефективним деревозахисним засобом на базі низькомолекулярної алкідної смоли методом розпилення.
Оциліндрований брус
Оциліндрований брус є найбільш оптимальним і поширеним матеріалом для будівництва дерев`яних будинків і бань, бесідок, альтанок, різноманітних садових меблів, дерев`яних конструкцій будь-яких видів. Дерев`яні будинки з оциліндрованого брусу відрізняються красою, всередині такого будинку завжди відчувається особлива затишна атмосфера.
Профільований брус
Найсучаснішим і високотехнологічним будівельним матеріалом в дерев`яному будівництві на сьогоднішній день є профільований брус. Для виробництва профільованого брусу, звичайному дерев`яному брусу на спеціальному деревообробному обладнанні надається певний профіль.
Подвійний брус з утепленням
Головна ідея застосування подвійного бруса полягала в досягненні енергоефективності житла. Над проектуванням енергозберігаючих будинків працюють провідні інженери та архітектори в різних країнах світу, запропонована фінами технологія подвійного бруса дає можливість звести до мінімуму тепловтрати будинку, а також об`єднує переваги будівництва дерев`яного будинку з економічністю споруди.
Клеєний брус
Клеєний брус принципово відрізняється від інших типів колод багатошаровістю. Така структура робить цей дерев’яний матеріал надміцним і витривалим.
Каркасні конструкції
Каркасні конструкції виготовляються на власних виробничих потужностях компанії «Домінант», з використанням сучасних деревообробних станків. Імпортне, високоточне обладнання дозволяє нам високоякісно виконувати свою роботу. Каркаси складаються зі струганих, ретельно висушених балок 150х50 мм (сосна першого сорту). Ці балки застосовуються для зовнішніх каркасів.





























