Зателефонуйте мені
Лібен №1
Лібен №2
Лібен №3
Лібен №4
Лібен №5
Лібен №6
Лібен №1
Лібен №2
Лібен №3
Лібен №4
Лібен №5
Лібен №6
Лібен №1
Лібен №1 Лібен №2 Лібен №3 Лібен №4 Лібен №5 Лібен №6

Лібен

987 777,00 ₴
Енергозберігаючий будинок з дерева, дві спальні - «Лібен»
Розмір брусу
  • Оциліндрований 160
  • Оциліндрований 180
  • Оциліндрований 200
  • Оциліндрований 220
  • Профільований 60
  • Профільований 150
  • Профільований 200
  • Подвійний 300
  • Клеєний 120
  • Клеєний 180
Кількість поверхів
1
Площа
59.2
Ширина
8
Довжина
7.4
Будинки і житлові будови
Дачі
Котеджі
Кількість кімнат
Двокімнатні будинки
Особливості будинків
Будинки з ґанком
Кількість поверхів споруди
Одноповерхові будинки
Будинки з брусу
Будинки з подвійного брусу з утепленням
 

(Що входить в ціну)

Що входить в базову комплектацію

  • комплект стін;
  • комплект крокв;
  • комплект балок перекриття;
  • утеплювач міжвінцевий;
  • антисептик (антисептування всього матеріалу);
  • дубові нагеля;
  • кріпильні материали (саморізи, усадкові болти, анкера, кріпильні пластини);
  • гідроізоляція;
  • вогнебіозахист (обробка деревини засобом І групи вогнезахисної ефективності)

Проект енергозберігаючого будинку «Лібен»

Проект «Лібен» виконується за енергозберігаючою технологією подвійного бруса з утеплювачем всередині стін. Товщина стіни споруди в такому виконанні становить 300 мм, що за рахунок наявності утеплювача всередині стін еквівалентна напівметровій стіні з соснового бруса. Соснова деревина характеризується низьким коефіцієнтом теплопровідності, її можна прирівняти до утеплювачів цілеспрямованого дії. Тому проект будинку з подвійного бруса з утепленням «Лібен» можна віднести до енергоефективних будівель, що дозволяє значно економити на опаленні. Крім подвійних брусових стін, будиночок відрізняється невеликою площею скління, що також сприяє збереженню тепла. Всі внутрішні перегородки між кімнатами теж утеплені. Можна зробити висновок, що котедж «Лібен» - дуже теплий і надійний будинок, в якому поєднуються абсолютно всі переваги дерев’яних будівель.

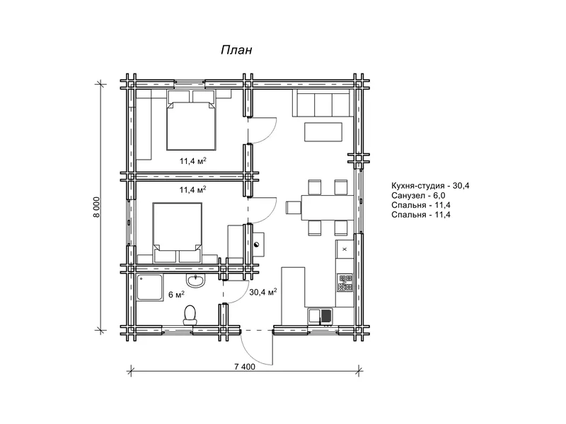
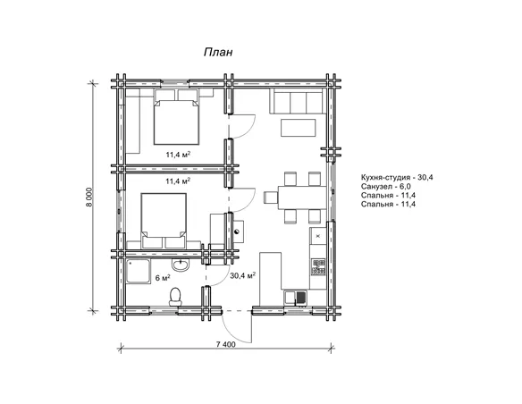
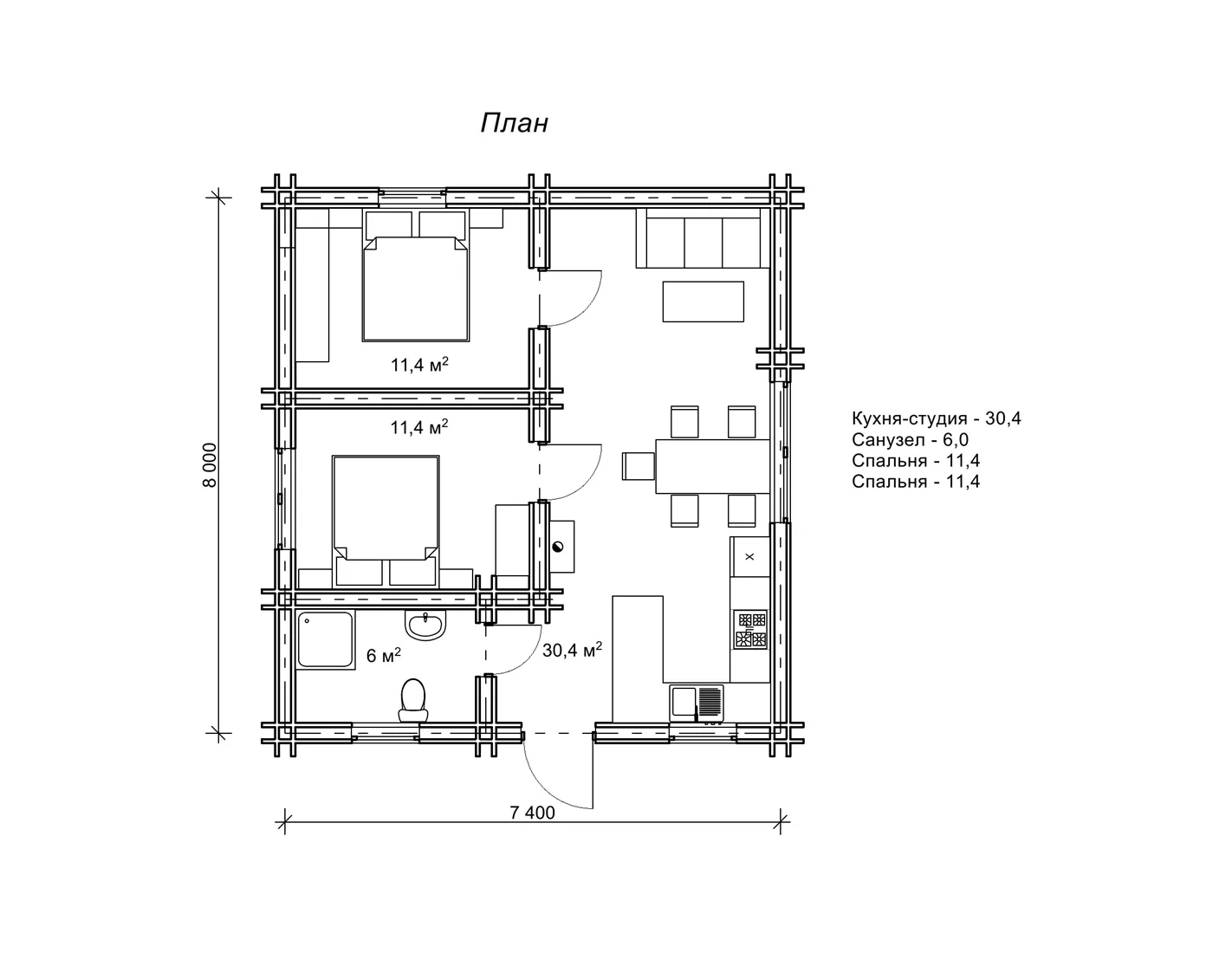
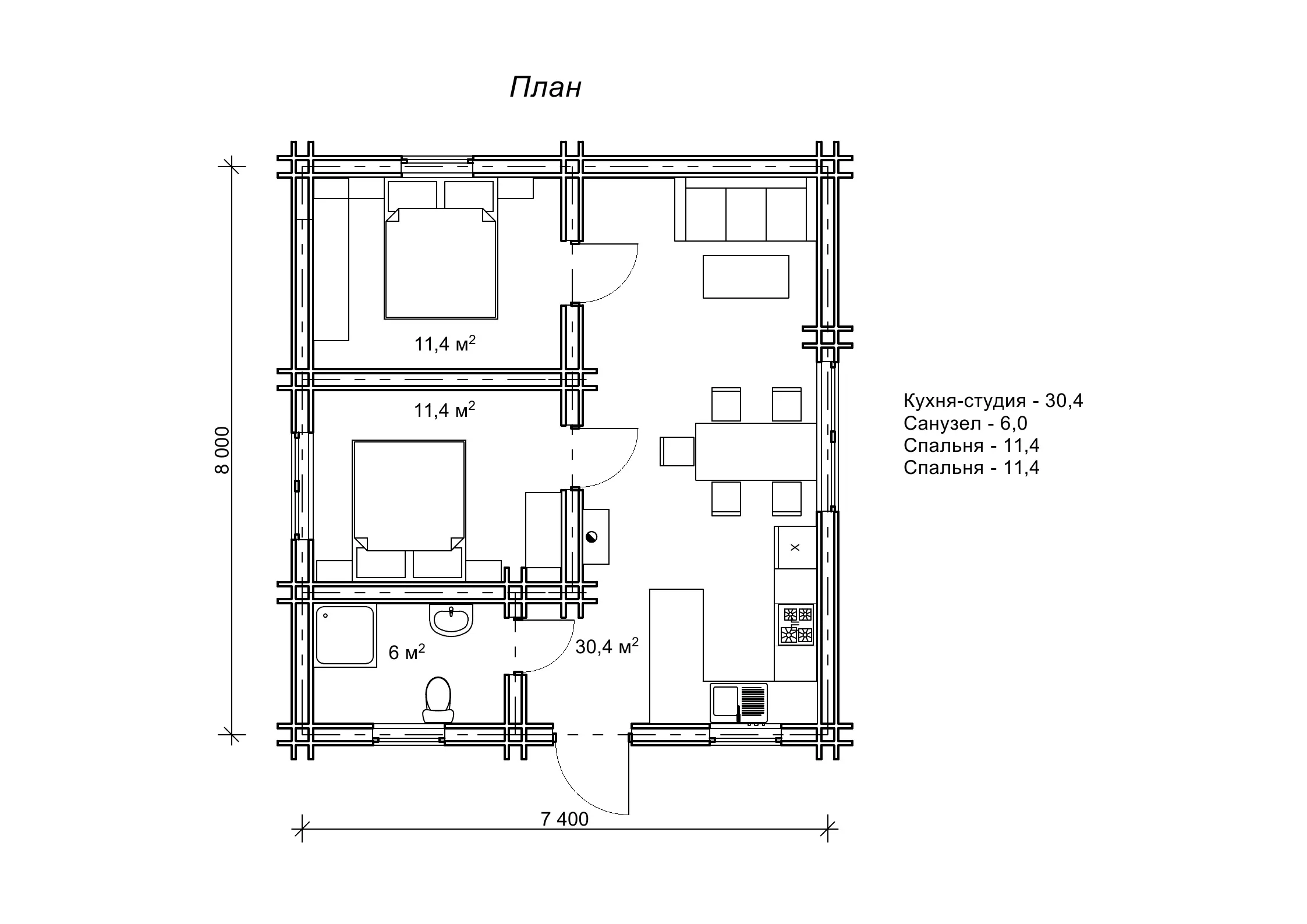
Планування будинку з дерева з двома спальнями

Параметри споруди проекту «Лібен» складають 8 на 7,4 м, його площа - 59,2 м2. Це досить компактні розміри, що дозволяють побудувати будинок на невеликій ділянці. Внутрішнє планування відрізняється такою ж простотою і зручністю, як зовнішня архітектура будиночка «Лібен». Тут ми бачимо кухню-студію, в якій відведено місце для їдальні та є м’який куточок для відпочинку. У будиночку сплановано дві спальні і санвузол. Родині з дитиною буде дуже зручно і тепло проживати в котеджі з бруса з утепленням, або можна провести тут незабутню відпустку, як на новорічні свята, так і в літній період. Двокімнатний котедж з бруса зручний для побудови за рахунок компактних розмірів, а також досить економічний за рахунок простої форми. Вартість споруди ми розмістили на цій же сторінці разом з детальним переліком, що ми включаємо в ціну, як виробники комплекту дерев’яного будинку.

Замовлення будівництва енергозберігаючого проекту «Лібен» під замовлення

В умовах дорожнечі енергоносіїв будівництво будинку з подвійного бруса за проектом «Лібен» допоможе скоротити витрати на опалення. Тому вибір даного проекту окупиться сторицею господареві і подарує затишне гніздечко на довгі роки. Одноповерховий будинок з бруса, побудований за проектом «Лібен», може стати теплим дачним котеджем або цілорічним житлом для всієї родини, як ви вирішите для себе. А ми раді презентувати вам один з найкращих проектів будинків «Лібен» і готові обговорити деталі будівництва котеджу за номерами телефонів: +38 063 499-91-00; +38 097 012-38-52 (Viber; WhatsApp).

Кількість поверхів
1
Площа
59.2
Ширина
8
Довжина
7.4
Будинки і житлові будови
Дачі
Котеджі
Кількість кімнат
Двокімнатні будинки
Особливості будинків
Будинки з ґанком
Кількість поверхів споруди
Одноповерхові будинки
Будинки з брусу
Будинки з подвійного брусу з утепленням

Базова комплектація:
(Що входить в ціну)

Що входить в базову комплектацію

  • комплект стін;
  • комплект крокв;
  • комплект балок перекриття;
  • утеплювач міжвінцевий;
  • антисептик (антисептування всього матеріалу);
  • дубові нагеля;
  • кріпильні материали (саморізи, усадкові болти, анкера, кріпильні пластини);
  • гідроізоляція;
  • вогнебіозахист (обробка деревини засобом І групи вогнезахисної ефективності)

228420 грн.

Дах (комплектність):

  • Рейка 100*25мм (cосна)
  • Контрейка 50*25мм (сосна)
  • Металочерепиця МОНТЕРРЕЙ (Польща) 0,45мм
  • Коник прямий
  • Планка примикання
  • Лобова (декоративна) планка
  • Вітровая планка
  • Яндола
  • Капельник (Карнизна планка)
  • Ущільнювач універсальный
  • Саморізи ОС 4.8х35
  • Фарба-спрей
  • Гідробар'єр
  • Монтаж

140320 грн.

Вікна (комплектність):

  • Вікно VEKA 58, колір білий 10
  • Імпости вертикальні: 1 x 102103
  • Скління: СПО, 24мм, (Rсп=0.36)*
  • Тип фурнітури: Activpilot поворотно-відкидна, колір білий
  • Підбір спеціальний: Activ микровентиляція; Activ 2-функц. механ.
  • Моск.сітка: МС 3
  • Підвіконня: ВМ 110мм, колір білий
  • Підвіконня: ПВ ПВХ 150, заглушки: 600мм, колір білий
  • Монтаж

41800 грн.

Двері (комплектність):

  • Полотно
  • Коробка
  • Лиштва
  • Карниз
  • Фарбування
  • Скло
  • Фурнітура
  • Врізка фурнітуры
  • Монтаж

95480 грн.

Фарбування (комплектність):

  • Шліфування торців
  • Тришарове покриття ефективним деревозахисним засобом на базі низькомолекулярної алкідної смоли методом розпилення.

Параметри забудови

  • Кількість поверхів: 1
  • Площа: 59.2

Розмір забудови

  • Ширина: 8
  • Довжина: 7.4

Перший поверх

кухня-студія (м²)30,4
санвузол (м²)6,0
спальня (м²)11,4
спальня (м²)11,4

Оциліндрований брус

Оциліндрований брус є найбільш оптимальним і поширеним матеріалом для будівництва дерев`яних будинків і бань, бесідок, альтанок, різноманітних садових меблів, дерев`яних конструкцій будь-яких видів. Дерев`яні будинки з оциліндрованого брусу відрізняються красою, всередині такого будинку завжди відчувається особлива затишна атмосфера.

Читати далі...

Профільований брус

Найсучаснішим і високотехнологічним будівельним матеріалом в дерев`яному будівництві на сьогоднішній день є профільований брус. Для виробництва профільованого брусу, звичайному дерев`яному брусу на спеціальному деревообробному обладнанні надається певний профіль.

Читати далі...

Подвійний брус з утепленням

Головна ідея застосування подвійного бруса полягала в досягненні енергоефективності житла. Над проектуванням енергозберігаючих будинків працюють провідні інженери та архітектори в різних країнах світу, запропонована фінами технологія подвійного бруса дає можливість звести до мінімуму тепловтрати будинку, а також об`єднує переваги будівництва дерев`яного будинку з економічністю споруди.

Читати далі...

Клеєний брус

Клеєний брус принципово відрізняється від інших типів колод багатошаровістю. Така структура робить цей дерев’яний матеріал надміцним і витривалим.

Читати далі...

Каркасні конструкції

Каркасні конструкції виготовляються на власних виробничих потужностях компанії «Домінант», з використанням сучасних деревообробних станків. Імпортне, високоточне обладнання дозволяє нам високоякісно виконувати свою роботу. Каркаси складаються зі струганих, ретельно висушених балок 150х50 мм (сосна першого сорту). Ці балки застосовуються для зовнішніх каркасів.

Читати далі...

Немає відгуків

Переглянуті товари

16 інших товарів в цій категорії:

Товар додано для порівняння.