Зателефонуйте мені
Гранль3 №1
Гранль3 №2
Гранль3 №3
Гранль3 №4
Гранль3 №5
Гранль3 №6
Гранль3 №1
Гранль3 №2
Гранль3 №3
Гранль3 №4
Гранль3 №5
Гранль3 №6
Гранль3 №1
Гранль3 №1 Гранль3 №2 Гранль3 №3 Гранль3 №4 Гранль3 №5 Гранль3 №6

Гранль3

2 001 315,00 ₴
Будинок із сухого бруса 13,7 на 13 м з трьома спальнями - «Гранль3»
Розмір брусу
  • Оциліндрований 160
  • Оциліндрований 180
  • Оциліндрований 200
  • Оциліндрований 220
  • Профільований 60
  • Профільований 150
  • Профільований 200
  • Подвійний 300
  • Клеєний 120
  • Клеєний 180
Кількість поверхів
1
Площа
128.5
Ширина
13.7
Довжина
13
Будинки і житлові будови
Котеджі
Кількість кімнат
Чотирикімнатні будинки
Особливості будинків
Будинки з котельнею
Будинки з терасою
Кількість поверхів споруди
Одноповерхові будинки
Будинки з брусу
Будинки з клеєного брусу
Будинки з профільованого брусу
 

(Що входить в ціну)

Що входить в базову комплектацію

  • комплект стін;
  • комплект крокв;
  • комплект балок перекриття;
  • утеплювач міжвінцевий;
  • антисептик (антисептування всього матеріалу);
  • дубові нагеля;
  • кріпильні материали (саморізи, усадкові болти, анкера, кріпильні пластини);
  • гідроізоляція;
  • вогнебіозахист (обробка деревини засобом І групи вогнезахисної ефективності)

Будівництво будинку «Гранль3» з брусу на 128,5 м2

Одноповерховий дерев’яний будинок з терасою, трьома спальнями і котельнею «Гранль» виявився настільки популярним серед наших замовників, що на його основі ми створили кілька варіантів. І тепер пропонуємо проект «Гранль3», виконаний з сухого профільованого бруса. Кожен з наших проектів можна побудувати по одній з трьох технологій: оциліндрована колода, сухий профільованих брус і подвійний брус з утепленням. Як правило, оцилиндрована колода надає споруді зовні привабливий вигляд за рахунок своїх округлостей. Але проект «Гранль3» - це якраз той випадок, коли будинок з сухого профільованого бруса теж виглядає не менш ефектно і сподобається навіть найбільш вибагливому замовнику.

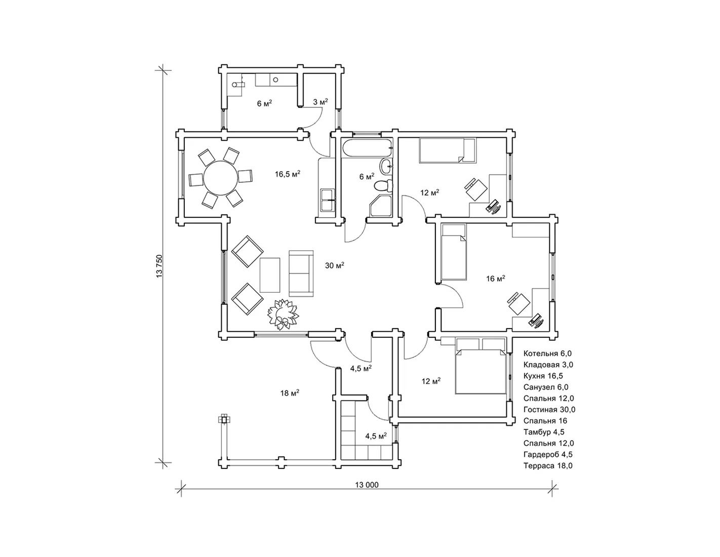
Плани кімнат в будинку з сухого брусу «Гранль3»

Планування приміщень проекту «Гранль3» практично аналогічно початковому проекту «Гранль». Набір кімнат включає три спальні, зал, кухню, тамбур, гардероб, санвузол і приміщення котельні, яку в новому проекті зробили з іншого боку будівлі. Біля топкової передбачена також і невелика комора, що, безсумнівно, оцінить господиня будинку. Адже такі невеликі, але функціональні приміщення організують дуже зручний побут, тому не тільки дозвілля буде комфортним в будинку «Гранль3», а й домашня робота буде організована максимально ефективно. Можна сказати, що проект «Гранль3» вміщує всі переваги попередніх рішень «Гранль» і «Гранль2», а також виконується з сухого профільованого бруса, який вважається найкращим матеріалом в експлуатації дерев’яного будинку. Більш докладно про особливості експлуатації будинку з сухого профільованого бруса можна прочитати в статті: «Догляд за дерев’яним будинком»

Споруда з сухого профільованого брусу за готовим проектом «Гранль3»

Якщо вас зацікавила будівля будинку «Гранль3» з сухого профільованого бруса, то вам корисно буде ознайомитися з інформацією з нашої статті: «Що потрібно знати, замовляючи будівництво будинку: 10 важливих етапів зведення будинку з брусу» Виникають питання щодо замовлення споруди? Тоді найдокладніші відповіді ви знайдете в публікації: «10 найпоширеніших питань про будівництво будинку з брусу» Замовляйте будівництво будинку з сухого профільованого бруса в компанії «Домінант» за готовим проектом «Гранль3», і ми побудуємо для вас надійне житло, де ви повною мірою зможете відчути всі переваги екологічно чистого, теплого і комфортного домашнього осередку.

Кількість поверхів
1
Площа
128.5
Ширина
13.7
Довжина
13
Будинки і житлові будови
Котеджі
Кількість кімнат
Чотирикімнатні будинки
Особливості будинків
Будинки з котельнею
Будинки з терасою
Кількість поверхів споруди
Одноповерхові будинки
Будинки з брусу
Будинки з клеєного брусу
Будинки з профільованого брусу

Базова комплектація:
(Що входить в ціну)

Що входить в базову комплектацію

  • комплект стін;
  • комплект крокв;
  • комплект балок перекриття;
  • утеплювач міжвінцевий;
  • антисептик (антисептування всього матеріалу);
  • дубові нагеля;
  • кріпильні материали (саморізи, усадкові болти, анкера, кріпильні пластини);
  • гідроізоляція;
  • вогнебіозахист (обробка деревини засобом І групи вогнезахисної ефективності)

432540 грн.

Дах (комплектність):

  • Рейка 100*25мм (cосна)
  • Контрейка 50*25мм (сосна)
  • Металочерепиця МОНТЕРРЕЙ (Польща) 0,45мм
  • Коник прямий
  • Планка примикання
  • Лобова (декоративна) планка
  • Вітровая планка
  • Яндола
  • Капельник (Карнизна планка)
  • Ущільнювач універсальный
  • Саморізи ОС 4.8х35
  • Фарба-спрей
  • Гідробар'єр
  • Монтаж

385880 грн.

Вікна (комплектність):

  • Вікно VEKA 58, колір білий 10
  • Імпости вертикальні: 1 x 102103
  • Скління: СПО, 24мм, (Rсп=0.36)*
  • Тип фурнітури: Activpilot поворотно-відкидна, колір білий
  • Підбір спеціальний: Activ микровентиляція; Activ 2-функц. механ.
  • Моск.сітка: МС 3
  • Підвіконня: ВМ 110мм, колір білий
  • Підвіконня: ПВ ПВХ 150, заглушки: 600мм, колір білий
  • Монтаж

0 грн.

Двері (комплектність):

  • Полотно
  • Коробка
  • Лиштва
  • Карниз
  • Фарбування
  • Скло
  • Фурнітура
  • Врізка фурнітуры
  • Монтаж

217000 грн.

Фарбування (комплектність):

  • Шліфування торців
  • Тришарове покриття ефективним деревозахисним засобом на базі низькомолекулярної алкідної смоли методом розпилення.

Параметри забудови

  • Кількість поверхів: 1
  • Площа: 128.5

Розмір забудови

  • Ширина: 13.7
  • Довжина: 13

Перший поверх

котельня (м²)6,0
комора (м²)3,0
кухня (м²)16,5
санвузол (м²)6,0
спальня (м²)12,0
вітальня (м²)30,0
спальня (м²)16
тамбур (м²)4,5
спальня (м²)12,0
гардероб (м²)4,5
тераса (м²)18,0

Оциліндрований брус

Оциліндрований брус є найбільш оптимальним і поширеним матеріалом для будівництва дерев`яних будинків і бань, бесідок, альтанок, різноманітних садових меблів, дерев`яних конструкцій будь-яких видів. Дерев`яні будинки з оциліндрованого брусу відрізняються красою, всередині такого будинку завжди відчувається особлива затишна атмосфера.

Читати далі...

Профільований брус

Найсучаснішим і високотехнологічним будівельним матеріалом в дерев`яному будівництві на сьогоднішній день є профільований брус. Для виробництва профільованого брусу, звичайному дерев`яному брусу на спеціальному деревообробному обладнанні надається певний профіль.

Читати далі...

Подвійний брус з утепленням

Головна ідея застосування подвійного бруса полягала в досягненні енергоефективності житла. Над проектуванням енергозберігаючих будинків працюють провідні інженери та архітектори в різних країнах світу, запропонована фінами технологія подвійного бруса дає можливість звести до мінімуму тепловтрати будинку, а також об`єднує переваги будівництва дерев`яного будинку з економічністю споруди.

Читати далі...

Клеєний брус

Клеєний брус принципово відрізняється від інших типів колод багатошаровістю. Така структура робить цей дерев’яний матеріал надміцним і витривалим.

Читати далі...

Каркасні конструкції

Каркасні конструкції виготовляються на власних виробничих потужностях компанії «Домінант», з використанням сучасних деревообробних станків. Імпортне, високоточне обладнання дозволяє нам високоякісно виконувати свою роботу. Каркаси складаються зі струганих, ретельно висушених балок 150х50 мм (сосна першого сорту). Ці балки застосовуються для зовнішніх каркасів.

Читати далі...

Немає відгуків

Переглянуті товари

16 інших товарів в цій категорії:

Товар додано для порівняння.