Гранль2
- Кількість поверхів
- 1
- Площа
- 142.4
- Ширина
- 11.8
- Довжина
- 12.8
- Будинки і житлові будови
- Котеджі
- Кількість кімнат
- Чотирикімнатні будинки
- Особливості будинків
- Будинки з котельнею
Будинки з терасою - Кількість поверхів споруди
- Одноповерхові будинки
- Будинки з брусу
- Будинки з оциліндрованого брусу
(Що входить в ціну)
- комплект стін;
- комплект крокв;
- комплект балок перекриття;
- утеплювач міжвінцевий;
- антисептик (антисептування всього матеріалу);
- дубові нагеля;
- кріпильні материали (саморізи, усадкові болти, анкера, кріпильні пластини);
- гідроізоляція;
- вогнебіозахист (обробка деревини засобом І групи вогнезахисної ефективності)
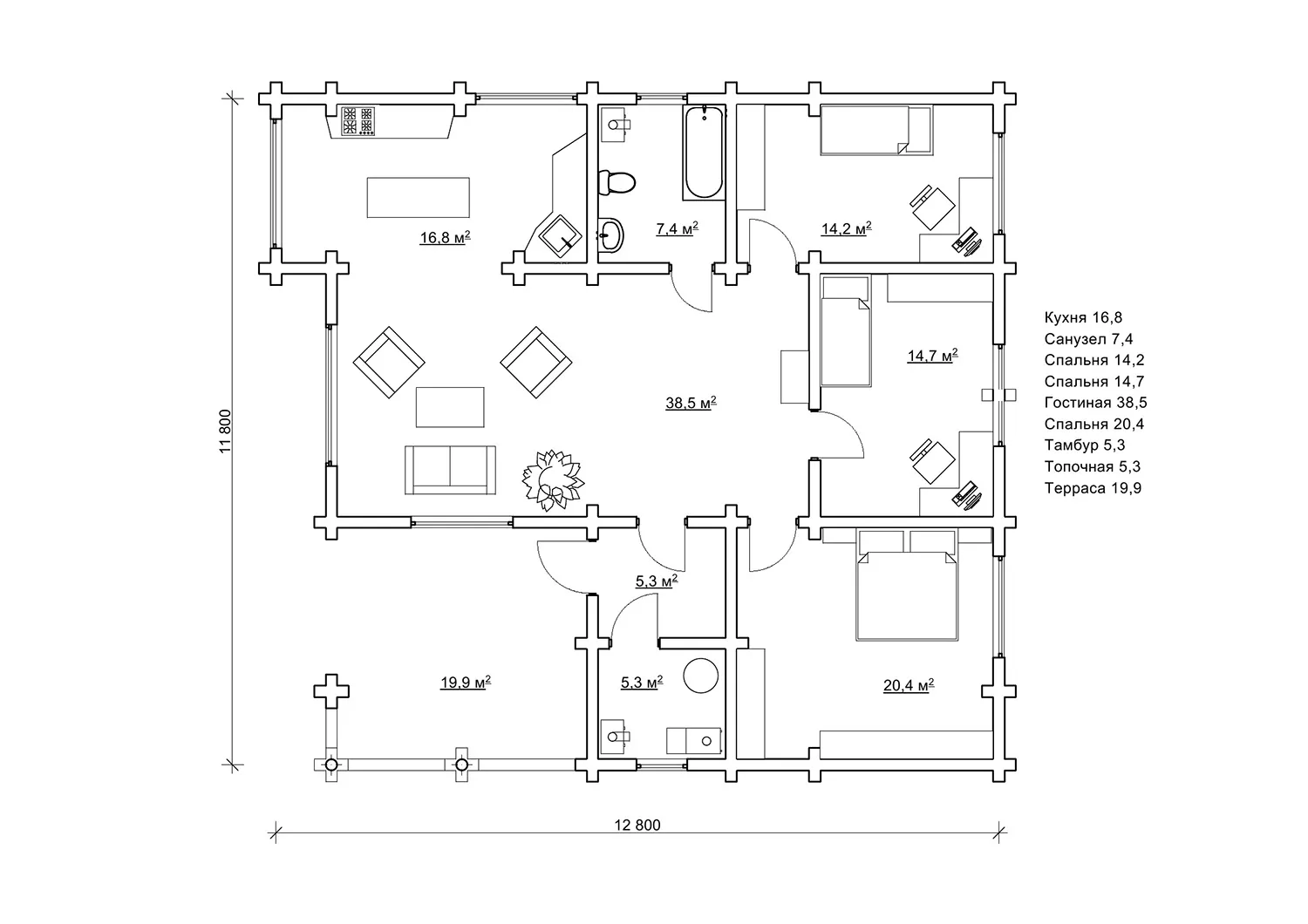
Будівництво одноповерхового будинку 11,8х12,8 м з 3 спальнями
Проект будинку в один поверх з трьома спальнями «Гранль2» є яскравим прикладом того, як взяли готовий проект «Гранль» з сайту dominant-wood.com.ua і адаптували під індивідуальні вподобання замовника. Кожен проект, який сподобався вам на нашому сайті, ми можемо змінити за вашим побажанням так, щоб він ідеально відповідав вашому баченню комфортного житла. Адже вам доведеться день у день засинати, прокидатися і проводити більшу частину дозвілля у власному будинку. По суті «Гранль2» - це той же «Гранль», але придивившись, помічаєш цікаві відмінності, наприклад, загальне спрощення архітектурних форм. Форму панорамного вікна зробили прямокутною, а стійки коротишів на терасі замінили стовпами.
Планування кімнат в одноповерховому зрубі «Гранль2»
Внутрішнє наповнення дерев’яного будинку «Гранль2» включає три спальні, санвузол, топкову кімнату, тамбур, кухню і просторий зал на 38,5 м2. Якщо порівняти цей проект з попередньою версією «Гранль», то зал збільшився на 8,5 м2, а загальна площа будівлі зросла на 22,9 м2. Також і терасу біля входу зробили ще просторішою, тим самим передбачили більше простору для проведення дозвілля на відкритому повітрі. Адже чого ще можна бажати власникові заміського будинку? Як можна довше перебувати на природі в колі рідних і близьких, насолоджуючись свіжим повітрям і навколишньою красою. Тому можна сказати, що згідно з проектним рішенням «Гранль2», будинок став ще світлішим, просторішим, затишнішим і гостиннішим, так як може вмістити більшу кількість домочадців і гостей.
Вибір проекту дерев’яного будинку і замовлення зрубу «Гранль2»
Ми постійно поповнюємо наш каталог новими проектами, кожен з яких можна змінити і доповнити відповідно до ваших вимог. В каталозі пропонується широкий вибір проектів дерев’яних будинків на будь-який смак і бюджет. Наші архітектори подбають про ваш максимальний комфорт і при проектуванні врахують всі побажання клієнта щодо побудови. Для замовлення зрубу за готовим проектом «Гранль2» зателефонуйте за номерами: +38 097 012-38-52; +38 063 499-91-00 або напишіть онлайн консультанту. А при складанні зрубу «Гранль2», майстри «Домінант» зведуть надійну і якісну будову, про яку власник скаже: «Мій дім - моя фортеця!»
- Кількість поверхів
- 1
- Площа
- 142.4
- Ширина
- 11.8
- Довжина
- 12.8
- Будинки і житлові будови
- Котеджі
- Кількість кімнат
- Чотирикімнатні будинки
- Особливості будинків
- Будинки з котельнею
Будинки з терасою - Кількість поверхів споруди
- Одноповерхові будинки
- Будинки з брусу
- Будинки з оциліндрованого брусу
Базова комплектація:
(Що входить в ціну)
- комплект стін;
- комплект крокв;
- комплект балок перекриття;
- утеплювач міжвінцевий;
- антисептик (антисептування всього матеріалу);
- дубові нагеля;
- кріпильні материали (саморізи, усадкові болти, анкера, кріпильні пластини);
- гідроізоляція;
- вогнебіозахист (обробка деревини засобом І групи вогнезахисної ефективності)
486000 грн.
Дах (комплектність):
- Рейка 100*25мм (cосна)
- Контрейка 50*25мм (сосна)
- Металочерепиця МОНТЕРРЕЙ (Польща) 0,45мм
- Коник прямий
- Планка примикання
- Лобова (декоративна) планка
- Вітровая планка
- Яндола
- Капельник (Карнизна планка)
- Ущільнювач універсальный
- Саморізи ОС 4.8х35
- Фарба-спрей
- Гідробар'єр
- Монтаж
508660 грн.
Вікна (комплектність):
- Вікно VEKA 58, колір білий 10
- Імпости вертикальні: 1 x 102103
- Скління: СПО, 24мм, (Rсп=0.36)*
- Тип фурнітури: Activpilot поворотно-відкидна, колір білий
- Підбір спеціальний: Activ микровентиляція; Activ 2-функц. механ.
- Моск.сітка: МС 3
- Підвіконня: ВМ 110мм, колір білий
- Підвіконня: ПВ ПВХ 150, заглушки: 600мм, колір білий
- Монтаж
0 грн.
Двері (комплектність):
- Полотно
- Коробка
- Лиштва
- Карниз
- Фарбування
- Скло
- Фурнітура
- Врізка фурнітуры
- Монтаж
133672 грн.
Фарбування (комплектність):
- Шліфування торців
- Тришарове покриття ефективним деревозахисним засобом на базі низькомолекулярної алкідної смоли методом розпилення.
Оциліндрований брус
Оциліндрований брус є найбільш оптимальним і поширеним матеріалом для будівництва дерев`яних будинків і бань, бесідок, альтанок, різноманітних садових меблів, дерев`яних конструкцій будь-яких видів. Дерев`яні будинки з оциліндрованого брусу відрізняються красою, всередині такого будинку завжди відчувається особлива затишна атмосфера.
Профільований брус
Найсучаснішим і високотехнологічним будівельним матеріалом в дерев`яному будівництві на сьогоднішній день є профільований брус. Для виробництва профільованого брусу, звичайному дерев`яному брусу на спеціальному деревообробному обладнанні надається певний профіль.
Подвійний брус з утепленням
Головна ідея застосування подвійного бруса полягала в досягненні енергоефективності житла. Над проектуванням енергозберігаючих будинків працюють провідні інженери та архітектори в різних країнах світу, запропонована фінами технологія подвійного бруса дає можливість звести до мінімуму тепловтрати будинку, а також об`єднує переваги будівництва дерев`яного будинку з економічністю споруди.
Клеєний брус
Клеєний брус принципово відрізняється від інших типів колод багатошаровістю. Така структура робить цей дерев’яний матеріал надміцним і витривалим.
Каркасні конструкції
Каркасні конструкції виготовляються на власних виробничих потужностях компанії «Домінант», з використанням сучасних деревообробних станків. Імпортне, високоточне обладнання дозволяє нам високоякісно виконувати свою роботу. Каркаси складаються зі струганих, ретельно висушених балок 150х50 мм (сосна першого сорту). Ці балки застосовуються для зовнішніх каркасів.










