Зателефонуйте мені
Тенлінд №1
Тенлінд №2
Тенлінд №3
Тенлінд №4
Тенлінд №5
Тенлінд №6
Тенлінд №7
Тенлінд №1
Тенлінд №2
Тенлінд №3
Тенлінд №4
Тенлінд №5
Тенлінд №6
Тенлінд №7
Тенлінд №1
Тенлінд №1 Тенлінд №2 Тенлінд №3 Тенлінд №4 Тенлінд №5 Тенлінд №6 Тенлінд №7

Тенлінд

1 313 784,00 ₴
Маєток з оциліндрованого зрубу на 4 спальні - «Тенлінд»
Розмір брусу
  • Оциліндрований 160
  • Оциліндрований 180
  • Оциліндрований 200
  • Оциліндрований 220
  • Профільований 60
  • Профільований 150
  • Профільований 200
  • Подвійний 300
  • Клеєний 120
  • Клеєний 180
Кількість поверхів
2
Площа
150.1
Ширина
9.9
Довжина
10.8
Будинки і житлові будови
Маєтки
Садиби
Особливості будинків
Будинки з каміном
Будинки з мансардою
Будинки з терасою
Будинки зі сходами
Будинки з брусу
Будинки з оциліндрованого брусу
 

(Що входить в ціну)

Що входить в базову комплектацію

  • комплект стін;
  • комплект крокв;
  • комплект балок перекриття;
  • утеплювач міжвінцевий;
  • антисептик (антисептування всього матеріалу);
  • дубові нагеля;
  • кріпильні материали (саморізи, усадкові болти, анкера, кріпильні пластини);
  • гідроізоляція;
  • вогнебіозахист (обробка деревини засобом І групи вогнезахисної ефективності)

Проект зрубу маєтку «Тенлінд» на 4 спальні

Масивний зруб маєтку «Тенлінд» викликає відчуття надійності і впевненості, що за цими стінами господарі будуть відчувати себе як у фортеці. Абсолютно прості форми конструкції без будь-яких ускладнень, квадратні вікна, двосхилий дах, відсутність балконів - все це говорить про те, що будинок створювався з метою отримати максимально добротну споруду за мінімальний бюджет. Все ж маєток зі зрубу «Тенлід» володіє своєю неповторною родзинкою, якою можна назвати затишну терасу під навісом. Саме тераса біля входу в будинок на головному фасаді надає особливого шарму класичній дерев’яній конструкції.

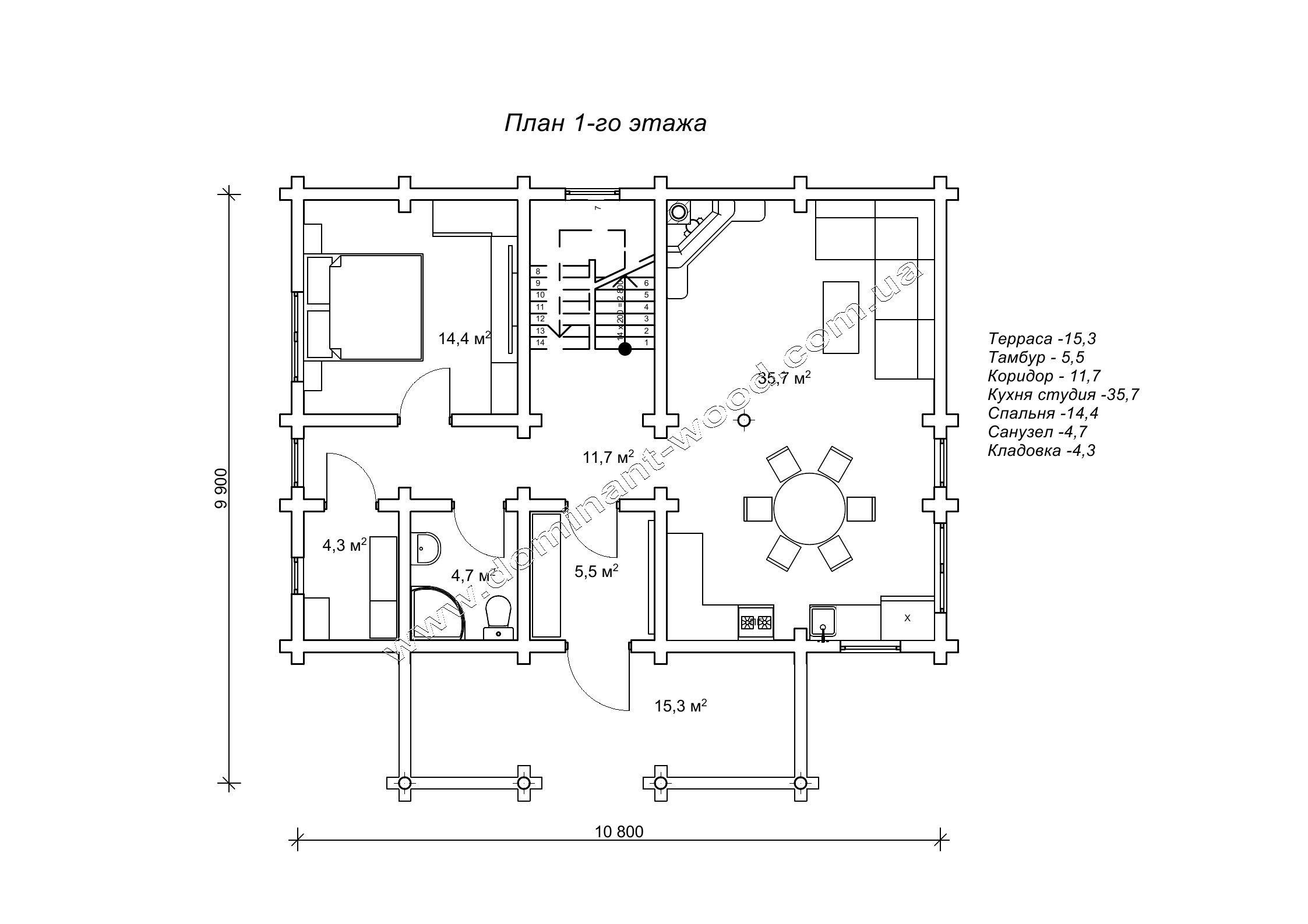
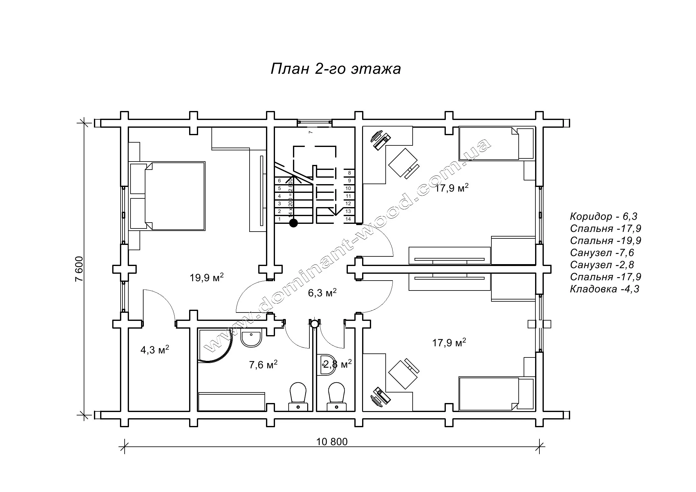
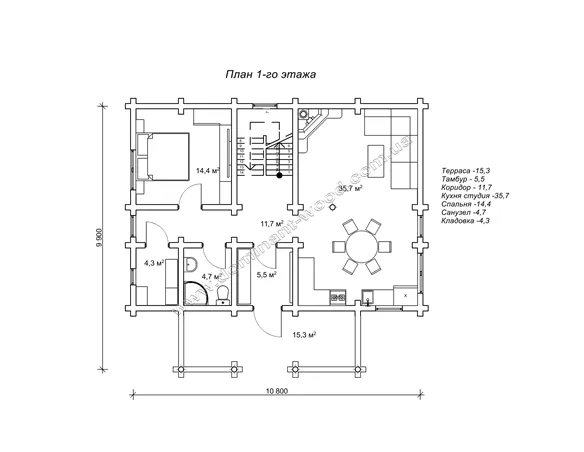
Планування дерев’яного маєтку «Тенлінд», площа 150,1 м2

Маєток із загальною площею 150,1 м2 «Тенлінд» розташований в параметрах забудови 9,9 на 10,8 м і виконується з оциліндрованих колод в два поверхи. На першому поверсі, прямо біля входу знаходиться тераса, яка захована під тінистим навісом. Увійшовши до будинку відразу потрапляємо в тепловій тамбур на 5,5 м2, далі проходимо в коридор. З коридору можна увійти в зал з каміном, який спроектований в єдиному просторі з кухнею і їдальнею. Таке об’єднання приміщень в одній великій кімнаті економить площу і матеріал на перестінки, і з іншого боку візуально додає простору всередині будинку. Також на першому поверсі є спальня, санвузол і комора. З коридору можна по сходах піднятися на другий поверх, де є три спальні, санвузол, окремий від ванної і ще одна комора. Велика кількість спалень дозволяє рекомендувати проект «Тенлінд» для великої родини, яка любить, щоб удома гостювали близькі люди, горів камін, і було тепло і затишно.

Замовлення будівництва дерев’яного будинку «Тенлінд» під ключ

Рішенні про будівництво власного будинку, а тим більше такого великого маєтку, як «Тенлінд» - це одне з найважливіших рішень у житті, від якого залежить майбутнє, комфорт і затишок кількох поколінь родини. Тому будинок повинен бути надійним, теплим, довговічним і відповідати вашим уявленням про щоденний затишок, такий, щоб завжди хотілося повертатися додому. Наш досвід роботи - тисячі реалізованих проектів дерев’яних будинків, безліч побудованих зрубів, в яких живуть щасливі сім’ї. Ми знаємо як побудувати такий будинок, який стане відображенням звичного стилю життя і подарує справжній домашній затишок. Варто тільки набрати «Домінант» за номерами: +38 063 499-91-00; +38 097 012-38-52 (Viber; WhatsApp), і ваша мрія про власний будинок почне здійснюватися!

Кількість поверхів
2
Площа
150.1
Ширина
9.9
Довжина
10.8
Будинки і житлові будови
Маєтки
Садиби
Особливості будинків
Будинки з каміном
Будинки з мансардою
Будинки з терасою
Будинки зі сходами
Будинки з брусу
Будинки з оциліндрованого брусу

Базова комплектація:
(Що входить в ціну)

Що входить в базову комплектацію

  • комплект стін;
  • комплект крокв;
  • комплект балок перекриття;
  • утеплювач міжвінцевий;
  • антисептик (антисептування всього матеріалу);
  • дубові нагеля;
  • кріпильні материали (саморізи, усадкові болти, анкера, кріпильні пластини);
  • гідроізоляція;
  • вогнебіозахист (обробка деревини засобом І групи вогнезахисної ефективності)

383940 грн.

Дах (комплектність):

  • Рейка 100*25мм (cосна)
  • Контрейка 50*25мм (сосна)
  • Металочерепиця МОНТЕРРЕЙ (Польща) 0,45мм
  • Коник прямий
  • Планка примикання
  • Лобова (декоративна) планка
  • Вітровая планка
  • Яндола
  • Капельник (Карнизна планка)
  • Ущільнювач універсальный
  • Саморізи ОС 4.8х35
  • Фарба-спрей
  • Гідробар'єр
  • Монтаж

315720 грн.

Вікна (комплектність):

  • Вікно VEKA 58, колір білий 10
  • Імпости вертикальні: 1 x 102103
  • Скління: СПО, 24мм, (Rсп=0.36)*
  • Тип фурнітури: Activpilot поворотно-відкидна, колір білий
  • Підбір спеціальний: Activ микровентиляція; Activ 2-функц. механ.
  • Моск.сітка: МС 3
  • Підвіконня: ВМ 110мм, колір білий
  • Підвіконня: ПВ ПВХ 150, заглушки: 600мм, колір білий
  • Монтаж

41800 грн.

Двері (комплектність):

  • Полотно
  • Коробка
  • Лиштва
  • Карниз
  • Фарбування
  • Скло
  • Фурнітура
  • Врізка фурнітуры
  • Монтаж

173600 грн.

Фарбування (комплектність):

  • Шліфування торців
  • Тришарове покриття ефективним деревозахисним засобом на базі низькомолекулярної алкідної смоли методом розпилення.

Параметри забудови

  • Кількість поверхів: 2
  • Площа: 150.1

Розмір забудови

  • Ширина: 9.9
  • Довжина: 10.8

Перший поверх

тераса (м²)15,3
тамбур (м²)5,5
коридор (м²)11,7
кухня студія (м²)35,7
спальня (м²)14,4
санвузел (м²)4,7
кладовка (м²)4,3

Другий поверх

коридор (м²)6,3
спальня (м²)17,9
спальня (м²)19,9
санвузел (м²)7,6
санвузел (м²)2,8
спальня (м²)17,9
кладовка (м²)4,3

Оциліндрований брус

Оциліндрований брус є найбільш оптимальним і поширеним матеріалом для будівництва дерев`яних будинків і бань, бесідок, альтанок, різноманітних садових меблів, дерев`яних конструкцій будь-яких видів. Дерев`яні будинки з оциліндрованого брусу відрізняються красою, всередині такого будинку завжди відчувається особлива затишна атмосфера.

Читати далі...

Профільований брус

Найсучаснішим і високотехнологічним будівельним матеріалом в дерев`яному будівництві на сьогоднішній день є профільований брус. Для виробництва профільованого брусу, звичайному дерев`яному брусу на спеціальному деревообробному обладнанні надається певний профіль.

Читати далі...

Подвійний брус з утепленням

Головна ідея застосування подвійного бруса полягала в досягненні енергоефективності житла. Над проектуванням енергозберігаючих будинків працюють провідні інженери та архітектори в різних країнах світу, запропонована фінами технологія подвійного бруса дає можливість звести до мінімуму тепловтрати будинку, а також об`єднує переваги будівництва дерев`яного будинку з економічністю споруди.

Читати далі...

Клеєний брус

Клеєний брус принципово відрізняється від інших типів колод багатошаровістю. Така структура робить цей дерев’яний матеріал надміцним і витривалим.

Читати далі...

Каркасні конструкції

Каркасні конструкції виготовляються на власних виробничих потужностях компанії «Домінант», з використанням сучасних деревообробних станків. Імпортне, високоточне обладнання дозволяє нам високоякісно виконувати свою роботу. Каркаси складаються зі струганих, ретельно висушених балок 150х50 мм (сосна першого сорту). Ці балки застосовуються для зовнішніх каркасів.

Читати далі...

Немає відгуків

Переглянуті товари

16 інших товарів в цій категорії:

Товар додано для порівняння.