Манавіс
- Кількість поверхів
- 2
- Площа
- 102
- Ширина
- 8
- Довжина
- 8
- Будинки і житлові будови
- Дачі
Котеджі - Кількість кімнат
- Двокімнатні будинки
- Особливості будинків
- Будинки з балконом
Будинки з котельнею
Будинки з мансардою
Будинки зі сходами - Кількість поверхів споруди
- Двоповерхові будинки
- Будинки з брусу
- Будинки з оциліндрованого брусу
(Що входить в ціну)
- комплект стін;
- комплект крокв;
- комплект балок перекриття;
- утеплювач міжвінцевий;
- антисептик (антисептування всього матеріалу);
- дубові нагеля;
- кріпильні материали (саморізи, усадкові болти, анкера, кріпильні пластини);
- гідроізоляція;
- вогнебіозахист (обробка деревини засобом І групи вогнезахисної ефективності)
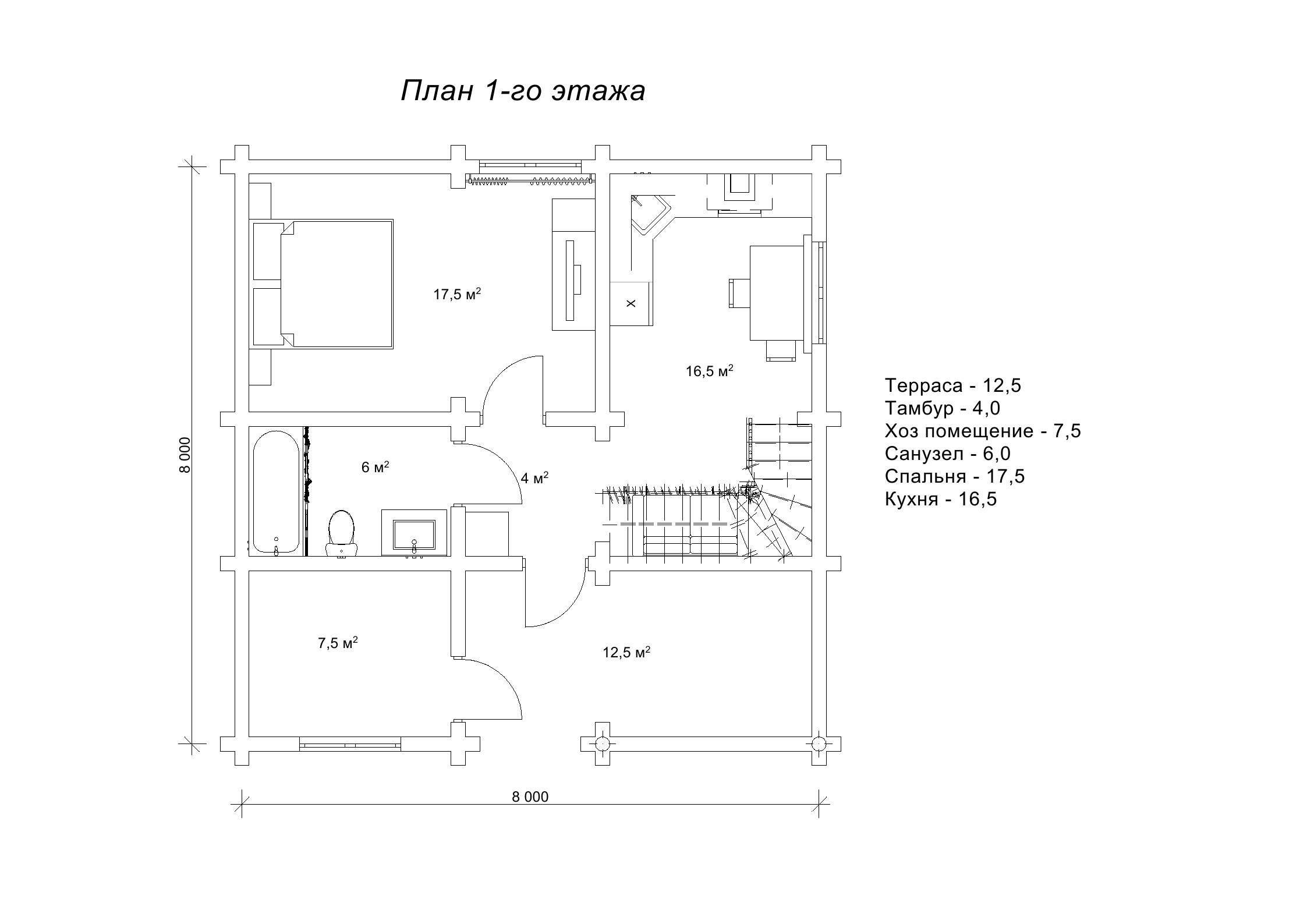
Проект котеджу 8х8 м з мансардою, проект «Манавіс»
Проект «Манавіс» – це компактний, добротний, презентабельний та економічний вибір будинку для життя. Дерев’яний котедж виконується з оциліндрованих колод. Ошатний вигляд соснового зрубу з округлостями зробить будь-який ландшафт мальовничим і виразним. Технологія виробництва та будівництва будинків з оциліндрованого бруса відрізняється не тільки економічністю, а й екологічністю. Саме в колодчстому зрубі створюється оптимальний для здоров’я мікроклімат, максимально наближений до природи. Окрім іншого, проект «Манавіс» відрізняється дуже зручними габаритами забудови 8 на 8 м. Квадратна форма та затребувані серед більшості замовників параметри будівлі забезпечують можливість організувати внутрішній простір котеджу зручно для господарів, оптимально використовуючи кожен квадратний метр житлової площі.
Котедж 8 на 8 м з мансардою "Манавіс" площа 104 м²
Загальна площа мансардного будинку за проектом «Манавіс» складає 104 м2. Дивлячись на план кімнат котеджу, можна відзначити, що всі приміщення всередині будинку є досить просторими. Починаючи з тераси біля входу та закінчуючи величезною спальнею другого поверху площею 35 м2. Тут передбачено наявність двох спалень – по кімнаті на кожному поверсі. Також є господарське приміщення, санвузол та кухня на першому поверсі. Такий набір приміщень зручний як для постійного проживання, так і для сезонного. А великі кімнати припадуть до душі поціновувачу широти простору та великого особистого простору. Справедлива ціна, презентабельний зовнішній вигляд, компактні розміри та продумане планування – суттєві аргументи, щоб замовити будівництво котеджу 8 на 8м «Манавіс», звернувшись до офісу по роботі з клієнтами «Домінант».
- Кількість поверхів
- 2
- Площа
- 102
- Ширина
- 8
- Довжина
- 8
- Будинки і житлові будови
- Дачі
Котеджі - Кількість кімнат
- Двокімнатні будинки
- Особливості будинків
- Будинки з балконом
Будинки з котельнею
Будинки з мансардою
Будинки зі сходами - Кількість поверхів споруди
- Двоповерхові будинки
- Будинки з брусу
- Будинки з оциліндрованого брусу
Базова комплектація:
(Що входить в ціну)
- комплект стін;
- комплект крокв;
- комплект балок перекриття;
- утеплювач міжвінцевий;
- антисептик (антисептування всього матеріалу);
- дубові нагеля;
- кріпильні материали (саморізи, усадкові болти, анкера, кріпильні пластини);
- гідроізоляція;
- вогнебіозахист (обробка деревини засобом І групи вогнезахисної ефективності)
262440 грн.
Дах (комплектність):
- Рейка 100*25мм (cосна)
- Контрейка 50*25мм (сосна)
- Металочерепиця МОНТЕРРЕЙ (Польща) 0,45мм
- Коник прямий
- Планка примикання
- Лобова (декоративна) планка
- Вітровая планка
- Яндола
- Капельник (Карнизна планка)
- Ущільнювач універсальный
- Саморізи ОС 4.8х35
- Фарба-спрей
- Гідробар'єр
- Монтаж
140320 грн.
Вікна (комплектність):
- Вікно VEKA 58, колір білий 10
- Імпости вертикальні: 1 x 102103
- Скління: СПО, 24мм, (Rсп=0.36)*
- Тип фурнітури: Activpilot поворотно-відкидна, колір білий
- Підбір спеціальний: Activ микровентиляція; Activ 2-функц. механ.
- Моск.сітка: МС 3
- Підвіконня: ВМ 110мм, колір білий
- Підвіконня: ПВ ПВХ 150, заглушки: 600мм, колір білий
- Монтаж
146300 грн.
Двері (комплектність):
- Полотно
- Коробка
- Лиштва
- Карниз
- Фарбування
- Скло
- Фурнітура
- Врізка фурнітуры
- Монтаж
164920 грн.
Фарбування (комплектність):
- Шліфування торців
- Тришарове покриття ефективним деревозахисним засобом на базі низькомолекулярної алкідної смоли методом розпилення.
Оциліндрований брус
Оциліндрований брус є найбільш оптимальним і поширеним матеріалом для будівництва дерев`яних будинків і бань, бесідок, альтанок, різноманітних садових меблів, дерев`яних конструкцій будь-яких видів. Дерев`яні будинки з оциліндрованого брусу відрізняються красою, всередині такого будинку завжди відчувається особлива затишна атмосфера.
Профільований брус
Найсучаснішим і високотехнологічним будівельним матеріалом в дерев`яному будівництві на сьогоднішній день є профільований брус. Для виробництва профільованого брусу, звичайному дерев`яному брусу на спеціальному деревообробному обладнанні надається певний профіль.
Подвійний брус з утепленням
Головна ідея застосування подвійного бруса полягала в досягненні енергоефективності житла. Над проектуванням енергозберігаючих будинків працюють провідні інженери та архітектори в різних країнах світу, запропонована фінами технологія подвійного бруса дає можливість звести до мінімуму тепловтрати будинку, а також об`єднує переваги будівництва дерев`яного будинку з економічністю споруди.
Клеєний брус
Клеєний брус принципово відрізняється від інших типів колод багатошаровістю. Така структура робить цей дерев’яний матеріал надміцним і витривалим.
Каркасні конструкції
Каркасні конструкції виготовляються на власних виробничих потужностях компанії «Домінант», з використанням сучасних деревообробних станків. Імпортне, високоточне обладнання дозволяє нам високоякісно виконувати свою роботу. Каркаси складаються зі струганих, ретельно висушених балок 150х50 мм (сосна першого сорту). Ці балки застосовуються для зовнішніх каркасів.




















