Зателефонуйте мені
Сатем №1
Сатем №2
Сатем №3
Сатем №4
Сатем №5
Сатем №6
Сатем №1
Сатем №2
Сатем №3
Сатем №4
Сатем №5
Сатем №6
Сатем №1
Сатем №1 Сатем №2 Сатем №3 Сатем №4 Сатем №5 Сатем №6

Сатем

719 139,00 ₴
Готова лазня з бруса 9,2 на 10,8 м з терасою - «Сатем»
Розмір брусу
  • Оциліндрований 160
  • Оциліндрований 180
  • Оциліндрований 200
  • Оциліндрований 220
  • Профільований 60
  • Профільований 150
  • Профільований 200
  • Подвійний 300
  • Клеєний 120
  • Клеєний 180
Кількість поверхів
1
Площа
99.8
Ширина
9.2
Довжина
10.8
Будинки і житлові будови
Дачі
Кількість кімнат
Двокімнатні будинки
Особливості будинків
Будинки з терасою
Кількість поверхів споруди
Одноповерхові будинки
Будинки з брусу
Будинки з оциліндрованого брусу
Садові та господарські споруди
Бані
Бані з оциліндрованого брусу
 

(Що входить в ціну)

Що входить в базову комплектацію

  • комплект стін;
  • комплект крокв;
  • комплект балок перекриття;
  • утеплювач міжвінцевий;
  • антисептик (антисептування всього матеріалу);
  • дубові нагеля;
  • кріпильні материали (саморізи, усадкові болти, анкера, кріпильні пластини);
  • гідроізоляція;
  • вогнебіозахист (обробка деревини засобом І групи вогнезахисної ефективності)

Проект готової лазні з брусу «Сатем»

Дерев’яна лазня «Сатем» виглядає дуже естетично і презентабельно. На вигляд це добротний дерев’яний котедж з симпатичною терасою. Ця банька з оциліндрованих колод є класичною моделлю, дуже популярною, за рахунок того, що оциліндрований зруб буде красиво виглядати на будь-якій заміській ділянці і гармонійно доповнювати інші споруди. Баня з бруса «Сатем» успішно послужить як для особистого використання, так і в якості комерційного об’єкта. Пропонуємо розташувати дерев’яну лазню «Сатем» в ресторанно-готельному комплексі, і вона обов’язково додасть особливого шарму закладу та підніме його престиж серед завсідників. Така симпатична банька точно буде приваблювати безліч бажаючих гарненько попаритися і оздоровитися.

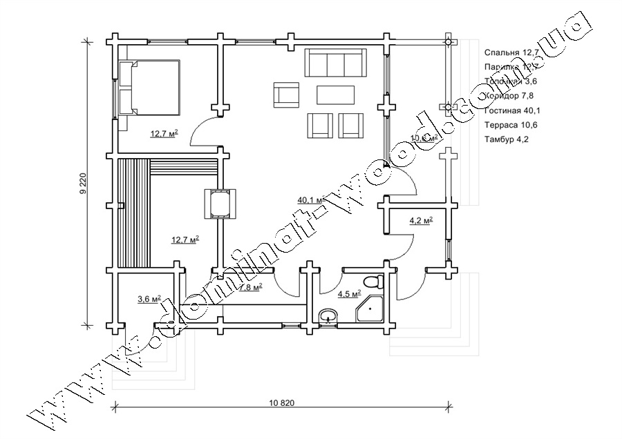
Планування лазні з брусу 9,2 на 10,8 м з терасою

План лазні включає приміщення, розташовані в габаритах 9,2 на 10,8 м. Загальна площа проекту «Сатем» - 99,8 м2. Тут передбачено два ганки, що ведуть в топкову і тамбур, а також тераса на 10,6 м2, де приємно прохолоджуватися після гарячої парильні. Усередині лазні спланований просторий зал площею 40,1 м2, коридор 7,8 м2 і санвузол на 4,5 м2. Парилка містить 12,7 м2. Це дуже містка парна, в якій одночасно може перебувати велика компанія. Тут всім буде зручно, лежаки розташовані таким чином, що ніхто не завадить один одному. Приємним доповненням до безпосередньо банних приміщень виступає спальня площею 12,7 м2. Якщо передбачити кухонну робочу поверхню у вітальні, то проект баньки цілком можна використовувати як повноцінний дачний будиночок, та ще й з сауною.

Готова лазня під замовлення, площа 99,8 м2

Готова лазня під замовлення за проектом «Сатем» порадує швидким виготовленням і будівництвом на ділянці. Варто тільки звернутися в офіс «Домінант» за телефоном: +38 063 499-91-00; +38 097 012-38-52 (Viber; WhatsApp) - і ми з величезним задоволенням візьмемося за виконання зрубу цієї чудової баньки. Про те, як проходить процес оформлення замовлення будівлі лазні, можна ознайомитися в одній нашій дуже корисній статті: «10 найпоширеніших питань про будівництво будинку з бруса» .

Кількість поверхів
1
Площа
99.8
Ширина
9.2
Довжина
10.8
Будинки і житлові будови
Дачі
Кількість кімнат
Двокімнатні будинки
Особливості будинків
Будинки з терасою
Кількість поверхів споруди
Одноповерхові будинки
Будинки з брусу
Будинки з оциліндрованого брусу
Садові та господарські споруди
Бані
Бані з оциліндрованого брусу

Базова комплектація:
(Що входить в ціну)

Що входить в базову комплектацію

  • комплект стін;
  • комплект крокв;
  • комплект балок перекриття;
  • утеплювач міжвінцевий;
  • антисептик (антисептування всього матеріалу);
  • дубові нагеля;
  • кріпильні материали (саморізи, усадкові болти, анкера, кріпильні пластини);
  • гідроізоляція;
  • вогнебіозахист (обробка деревини засобом І групи вогнезахисної ефективності)

328050 грн.

Дах (комплектність):

  • Рейка 100*25мм (cосна)
  • Контрейка 50*25мм (сосна)
  • Металочерепиця МОНТЕРРЕЙ (Польща) 0,45мм
  • Коник прямий
  • Планка примикання
  • Лобова (декоративна) планка
  • Вітровая планка
  • Яндола
  • Капельник (Карнизна планка)
  • Ущільнювач універсальный
  • Саморізи ОС 4.8х35
  • Фарба-спрей
  • Гідробар'єр
  • Монтаж

192940 грн.

Вікна (комплектність):

  • Вікно VEKA 58, колір білий 10
  • Імпости вертикальні: 1 x 102103
  • Скління: СПО, 24мм, (Rсп=0.36)*
  • Тип фурнітури: Activpilot поворотно-відкидна, колір білий
  • Підбір спеціальний: Activ микровентиляція; Activ 2-функц. механ.
  • Моск.сітка: МС 3
  • Підвіконня: ВМ 110мм, колір білий
  • Підвіконня: ПВ ПВХ 150, заглушки: 600мм, колір білий
  • Монтаж

83600 грн.

Двері (комплектність):

  • Полотно
  • Коробка
  • Лиштва
  • Карниз
  • Фарбування
  • Скло
  • Фурнітура
  • Врізка фурнітуры
  • Монтаж

131936 грн.

Фарбування (комплектність):

  • Шліфування торців
  • Тришарове покриття ефективним деревозахисним засобом на базі низькомолекулярної алкідної смоли методом розпилення.

Параметри забудови

  • Кількість поверхів: 1
  • Площа: 99.8

Розмір забудови

  • Ширина: 9.2
  • Довжина: 10.8

Перший поверх

тераса (м²)10.6
спальня (м²)12,7
тамбур (м²)4,2
вітальня (м²)40,1
коридор (м²)7,8
парна (м²)12,7
топочна (м²)3,6

Оциліндрований брус

Оциліндрований брус є найбільш оптимальним і поширеним матеріалом для будівництва дерев`яних будинків і бань, бесідок, альтанок, різноманітних садових меблів, дерев`яних конструкцій будь-яких видів. Дерев`яні будинки з оциліндрованого брусу відрізняються красою, всередині такого будинку завжди відчувається особлива затишна атмосфера.

Читати далі...

Профільований брус

Найсучаснішим і високотехнологічним будівельним матеріалом в дерев`яному будівництві на сьогоднішній день є профільований брус. Для виробництва профільованого брусу, звичайному дерев`яному брусу на спеціальному деревообробному обладнанні надається певний профіль.

Читати далі...

Подвійний брус з утепленням

Головна ідея застосування подвійного бруса полягала в досягненні енергоефективності житла. Над проектуванням енергозберігаючих будинків працюють провідні інженери та архітектори в різних країнах світу, запропонована фінами технологія подвійного бруса дає можливість звести до мінімуму тепловтрати будинку, а також об`єднує переваги будівництва дерев`яного будинку з економічністю споруди.

Читати далі...

Клеєний брус

Клеєний брус принципово відрізняється від інших типів колод багатошаровістю. Така структура робить цей дерев’яний матеріал надміцним і витривалим.

Читати далі...

Каркасні конструкції

Каркасні конструкції виготовляються на власних виробничих потужностях компанії «Домінант», з використанням сучасних деревообробних станків. Імпортне, високоточне обладнання дозволяє нам високоякісно виконувати свою роботу. Каркаси складаються зі струганих, ретельно висушених балок 150х50 мм (сосна першого сорту). Ці балки застосовуються для зовнішніх каркасів.

Читати далі...

Немає відгуків

Переглянуті товари

16 інших товарів в цій категорії:

Товар додано для порівняння.