Пурпурові вітрила
- Кількість поверхів
- 2
- Площа
- 176.5
- Ширина
- 7
- Довжина
- 12.5
- Будинки і житлові будови
- Дачі
Котеджі
Маєтки
Садиби - Кількість кімнат
- Чотирикімнатні будинки
- Особливості будинків
- Будинки з балконом
Будинки з мансардою
Будинки з терасою
Будинки зі сходами - Кількість поверхів споруди
- Двоповерхові будинки
(Що входить в ціну)
- комплект стін;
- комплект крокв;
- комплект балок перекриття;
- утеплювач міжвінцевий;
- антисептик (антисептування всього матеріалу);
- дубові нагеля;
- кріпильні материали (саморізи, усадкові болти, анкера, кріпильні пластини);
- гідроізоляція;
- вогнебіозахист (обробка деревини засобом І групи вогнезахисної ефективності)
Пропонуємо проект котеджу Пурпурові вітрила - це красивий і функціональний заміський будинок, матеріал виконання якого - оциліндрований брус. Оциліндрований брус dominant-wood.com.ua/uk/content/9-otsilindrovana-koloda є найпопулярнішим матеріалом при спорудженні дерев’яних будинків. Даний котедж виглядає масштабно і його внутрішній інтер’єр це тільки підтверджує.
Фасад виглядає ажурним і святковим за рахунок тераси і мансарди. Вони зроблені з дуже акуратним і цікавим бортом. Такий дизайнерський хід, що стосується начебто такої незначній деталі, дуже вплинув на всю зовнішність будинку і зробив її дуже красивою і оригінальною. Розширений ганок і завужені борти мансарди, немов грають з формами фасаду.
Внутрішнє планування включає в себе три спальні, що говорить про велику місткість будинку. Одну зі спалень, ви з легкістю може переробити в гостьову кімнату. Це дозволить вам залишати ваших гостей з ночівлею і продовжувати відчуття свята на довше. Дві дзеркальні спальні на другому поверсі чітко характеризують господарів будинку. Переважно всього для дами буде вибрати спальню з виходом на мансарду так, як жінкам дуже подобається зустрічати ранок, сидячи з чашкою гарячої кави в руках, на відкритому повітрі. Широкі багатокутні вікна другого поверху, і велика кількість вікон на першому, говорять про хорошою освітлюватися будинку природним світлом. При правильній установці будинку, у вас завжди буде достатньо денного світла. Це говорить про те, що компанія «Домінант» dominant-wood.com.ua/ru/ піклується про ваше здоров’я навіть в дрібницях. При будь-яких змінах в плані, ми готові реалізувати їх відповідно до всіх коректив.
- Кількість поверхів
- 2
- Площа
- 176.5
- Ширина
- 7
- Довжина
- 12.5
- Будинки і житлові будови
- Дачі
Котеджі
Маєтки
Садиби - Кількість кімнат
- Чотирикімнатні будинки
- Особливості будинків
- Будинки з балконом
Будинки з мансардою
Будинки з терасою
Будинки зі сходами - Кількість поверхів споруди
- Двоповерхові будинки
Базова комплектація:
(Що входить в ціну)
- комплект стін;
- комплект крокв;
- комплект балок перекриття;
- утеплювач міжвінцевий;
- антисептик (антисептування всього матеріалу);
- дубові нагеля;
- кріпильні материали (саморізи, усадкові болти, анкера, кріпильні пластини);
- гідроізоляція;
- вогнебіозахист (обробка деревини засобом І групи вогнезахисної ефективності)
369360 грн.
Дах (комплектність):
- Рейка 100*25мм (cосна)
- Контрейка 50*25мм (сосна)
- Металочерепиця МОНТЕРРЕЙ (Польща) 0,45мм
- Коник прямий
- Планка примикання
- Лобова (декоративна) планка
- Вітровая планка
- Яндола
- Капельник (Карнизна планка)
- Ущільнювач універсальный
- Саморізи ОС 4.8х35
- Фарба-спрей
- Гідробар'єр
- Монтаж
350800 грн.
Вікна (комплектність):
- Вікно VEKA 58, колір білий 10
- Імпости вертикальні: 1 x 102103
- Скління: СПО, 24мм, (Rсп=0.36)*
- Тип фурнітури: Activpilot поворотно-відкидна, колір білий
- Підбір спеціальний: Activ микровентиляція; Activ 2-функц. механ.
- Моск.сітка: МС 3
- Підвіконня: ВМ 110мм, колір білий
- Підвіконня: ПВ ПВХ 150, заглушки: 600мм, колір білий
- Монтаж
418000 грн.
Двері (комплектність):
- Полотно
- Коробка
- Лиштва
- Карниз
- Фарбування
- Скло
- Фурнітура
- Врізка фурнітуры
- Монтаж
151032 грн.
Фарбування (комплектність):
- Шліфування торців
- Тришарове покриття ефективним деревозахисним засобом на базі низькомолекулярної алкідної смоли методом розпилення.
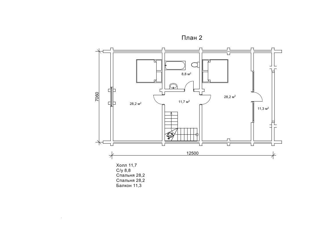
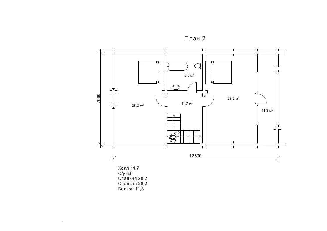
Параметри забудови
- Кількість поверхів: 2
- Площа: 176.5
Розмір забудови
- Ширина: 7
- Довжина: 12.5
Перший поверх
| зал (м²) | 27,8 |
| комора (м²) | 3,1 |
| коридор (м²) | 2,5 |
| кухня (м²) | 12,1 |
| с/в (м²) | 9,2 |
| спальня (м²) | 16,1 |
| тамбур (м²) | 6,1 |
| тераса (м²) | 11,3 |
Другий поверх
| балкон (м²) | 11,3 |
| с/в (м²) | 8,8 |
| спальня (м²) | 28,2 |
| спальня (м²) | 28,2 |
| хол (м²) | 11,7 |
Оциліндрований брус
Оциліндрований брус є найбільш оптимальним і поширеним матеріалом для будівництва дерев`яних будинків і бань, бесідок, альтанок, різноманітних садових меблів, дерев`яних конструкцій будь-яких видів. Дерев`яні будинки з оциліндрованого брусу відрізняються красою, всередині такого будинку завжди відчувається особлива затишна атмосфера.
Профільований брус
Найсучаснішим і високотехнологічним будівельним матеріалом в дерев`яному будівництві на сьогоднішній день є профільований брус. Для виробництва профільованого брусу, звичайному дерев`яному брусу на спеціальному деревообробному обладнанні надається певний профіль.
Подвійний брус з утепленням
Головна ідея застосування подвійного бруса полягала в досягненні енергоефективності житла. Над проектуванням енергозберігаючих будинків працюють провідні інженери та архітектори в різних країнах світу, запропонована фінами технологія подвійного бруса дає можливість звести до мінімуму тепловтрати будинку, а також об`єднує переваги будівництва дерев`яного будинку з економічністю споруди.
Клеєний брус
Клеєний брус принципово відрізняється від інших типів колод багатошаровістю. Така структура робить цей дерев’яний матеріал надміцним і витривалим.
Каркасні конструкції
Каркасні конструкції виготовляються на власних виробничих потужностях компанії «Домінант», з використанням сучасних деревообробних станків. Імпортне, високоточне обладнання дозволяє нам високоякісно виконувати свою роботу. Каркаси складаються зі струганих, ретельно висушених балок 150х50 мм (сосна першого сорту). Ці балки застосовуються для зовнішніх каркасів.












