Маргот
- Кількість поверхів
- 2
- Площа
- 167.9
- Ширина
- 11.3
- Довжина
- 13.1
- Будинки і житлові будови
- Маєтки
Садиби - Особливості будинків
- Будинки з мансардою
Будинки з навісом
Будинки з терасою
Будинки зі сходами - Будинки з брусу
- Будинки з оциліндрованого брусу
(Що входить в ціну)
- комплект стін;
- комплект крокв;
- комплект балок перекриття;
- утеплювач міжвінцевий;
- антисептик (антисептування всього матеріалу);
- дубові нагеля;
- кріпильні материали (саморізи, усадкові болти, анкера, кріпильні пластини);
- гідроізоляція;
- вогнебіозахист (обробка деревини засобом І групи вогнезахисної ефективності)
Проект садиби з мансардою «Маргот», площа 167,9 м2
Дуже цікава дерев’яна будівля за проектом «Маргот» радує погляд справжнього естета плавними лініями декорів, приємними округлостями зрубу, красивими вікнами, що повторюють вигини даху. Незвичайний, асиметричний ганок з правого боку головного фасаду цікаво компенсується навісом для автомобіля з протилежного фасаду будівлі. З першого погляду садиба зі зрубу здається одноповерховим будинком, але уважніше придивившись, ми бачимо мансарду під дахом , і відразу стає дуже цікаво, як же спланований всередині цей будинок приголомшливого, унікального дизайну, який відображає незвичайний внутрішній світ господаря.
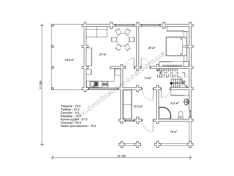
Планування садиби з мансардою 11,3 на 13,1 м
В першу чергу відзначимо, що планування проекту «Маргот» в габаритах 11,3 на 13,1 м передбачає наявність навісу для автомобіля площею 19,2 м2. Заміські будинки з навісом для автомобіля особливо популярні серед тих, хто хоче побудувати максимально зручне і функціональне житло, в якому передбачено місце для всіх необхідних деталей, створюють комфорт жителям заміської садиби. При вході в будинок є тераса площею 15 м2, далі йде теплової тамбур, де є місце для одежної шафи, тут зручно знімати верхній одяг і залишати взуття, після чого проходимо в коридор, звідки є вхід в кухню-студію з вітальні, спальні і санвузол . Також в коридорі передбачено місце для сходів на мансарду, в якій розташоване лише одне приміщення з невеликою перегородкою. Тут можна дуже затишно облаштувати спальню, немов окремий острівець, де є ліжко, кабінет, телевізор, диван - ніби окрема квартира у великому будинку. Таким чином, бачимо, що внутрішнє наповнення проекту «Маргот» є таким самим унікальним і самобутнім, як зовнішній дизайн зрубу
Замовлення будівництва садиби з мансардою «Маргот»
Якщо ви бажаєте для себе щось зовсім незвичайне і унікальне, то в якості заміського житла підходящим вибором буде садиба з мансардою «Маргот». Ця споруда зовсім відрізняється від класичних дерев’яних котеджів своєю нестандартною красою і незвичайним внутрішнім наповненням. Проект садиби з мансардою «Маргот» - це особливий проект, який привнесе особливий стиль і чарівність будь-якій ділянці і виразно підкреслить індивідуальність свого господаря!
- Кількість поверхів
- 2
- Площа
- 167.9
- Ширина
- 11.3
- Довжина
- 13.1
- Будинки і житлові будови
- Маєтки
Садиби - Особливості будинків
- Будинки з мансардою
Будинки з навісом
Будинки з терасою
Будинки зі сходами - Будинки з брусу
- Будинки з оциліндрованого брусу
Базова комплектація:
(Що входить в ціну)
- комплект стін;
- комплект крокв;
- комплект балок перекриття;
- утеплювач міжвінцевий;
- антисептик (антисептування всього матеріалу);
- дубові нагеля;
- кріпильні материали (саморізи, усадкові болти, анкера, кріпильні пластини);
- гідроізоляція;
- вогнебіозахист (обробка деревини засобом І групи вогнезахисної ефективності)
415530 грн.
Дах (комплектність):
- Рейка 100*25мм (cосна)
- Контрейка 50*25мм (сосна)
- Металочерепиця МОНТЕРРЕЙ (Польща) 0,45мм
- Коник прямий
- Планка примикання
- Лобова (декоративна) планка
- Вітровая планка
- Яндола
- Капельник (Карнизна планка)
- Ущільнювач універсальный
- Саморізи ОС 4.8х35
- Фарба-спрей
- Гідробар'єр
- Монтаж
280640 грн.
Вікна (комплектність):
- Вікно VEKA 58, колір білий 10
- Імпости вертикальні: 1 x 102103
- Скління: СПО, 24мм, (Rсп=0.36)*
- Тип фурнітури: Activpilot поворотно-відкидна, колір білий
- Підбір спеціальний: Activ микровентиляція; Activ 2-функц. механ.
- Моск.сітка: МС 3
- Підвіконня: ВМ 110мм, колір білий
- Підвіконня: ПВ ПВХ 150, заглушки: 600мм, колір білий
- Монтаж
62700 грн.
Двері (комплектність):
- Полотно
- Коробка
- Лиштва
- Карниз
- Фарбування
- Скло
- Фурнітура
- Врізка фурнітуры
- Монтаж
182280 грн.
Фарбування (комплектність):
- Шліфування торців
- Тришарове покриття ефективним деревозахисним засобом на базі низькомолекулярної алкідної смоли методом розпилення.
Оциліндрований брус
Оциліндрований брус є найбільш оптимальним і поширеним матеріалом для будівництва дерев`яних будинків і бань, бесідок, альтанок, різноманітних садових меблів, дерев`яних конструкцій будь-яких видів. Дерев`яні будинки з оциліндрованого брусу відрізняються красою, всередині такого будинку завжди відчувається особлива затишна атмосфера.
Профільований брус
Найсучаснішим і високотехнологічним будівельним матеріалом в дерев`яному будівництві на сьогоднішній день є профільований брус. Для виробництва профільованого брусу, звичайному дерев`яному брусу на спеціальному деревообробному обладнанні надається певний профіль.
Подвійний брус з утепленням
Головна ідея застосування подвійного бруса полягала в досягненні енергоефективності житла. Над проектуванням енергозберігаючих будинків працюють провідні інженери та архітектори в різних країнах світу, запропонована фінами технологія подвійного бруса дає можливість звести до мінімуму тепловтрати будинку, а також об`єднує переваги будівництва дерев`яного будинку з економічністю споруди.
Клеєний брус
Клеєний брус принципово відрізняється від інших типів колод багатошаровістю. Така структура робить цей дерев’яний матеріал надміцним і витривалим.
Каркасні конструкції
Каркасні конструкції виготовляються на власних виробничих потужностях компанії «Домінант», з використанням сучасних деревообробних станків. Імпортне, високоточне обладнання дозволяє нам високоякісно виконувати свою роботу. Каркаси складаються зі струганих, ретельно висушених балок 150х50 мм (сосна першого сорту). Ці балки застосовуються для зовнішніх каркасів.












