Лодас
- Кількість поверхів
- 1
- Площа
- 42.8
- Ширина
- 4.5
- Довжина
- 9.5
- Будинки і житлові будови
- Будиночки
Дачі
Котеджі - Кількість кімнат
- Трикімнатні будинки
- Кількість поверхів споруди
- Одноповерхові будинки
- Будинки з брусу
- Будинки з клеєного брусу
Будинки з профільованого брусу - Комерційні будівлі
- Бази відпочинку
Готелі
(Що входить в ціну)
- комплект стін;
- комплект крокв;
- комплект балок перекриття;
- утеплювач міжвінцевий;
- антисептик (антисептування всього матеріалу);
- дубові нагеля;
- кріпильні материали (саморізи, усадкові болти, анкера, кріпильні пластини);
- гідроізоляція;
- вогнебіозахист (обробка деревини засобом І групи вогнезахисної ефективності)
Проект гостьового котеджу «Лодас»
Гостьове бунгало «Лодас» з великими вікнами і скляними дверима з першого погляду налаштовує на відпочинок. Будиночок з брусу немов створений, щоб біля нього насолоджуватися природою і сонечком якомога довше. Проект володіє дуже простим дизайном, без вигадливого декору і складних архітектурних деталей. Споруду характеризують прості форми, класичний двосхилий дах, монолітні стіни з рівних рядів. Але три виходи на терасу з великими скляними дверима і вікнами повністю перетворюють вигляд простого будиночка, додаючи йому неповторності і унікального стилю.
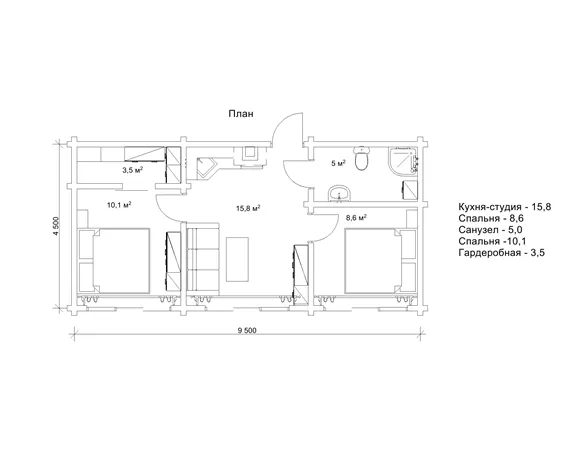
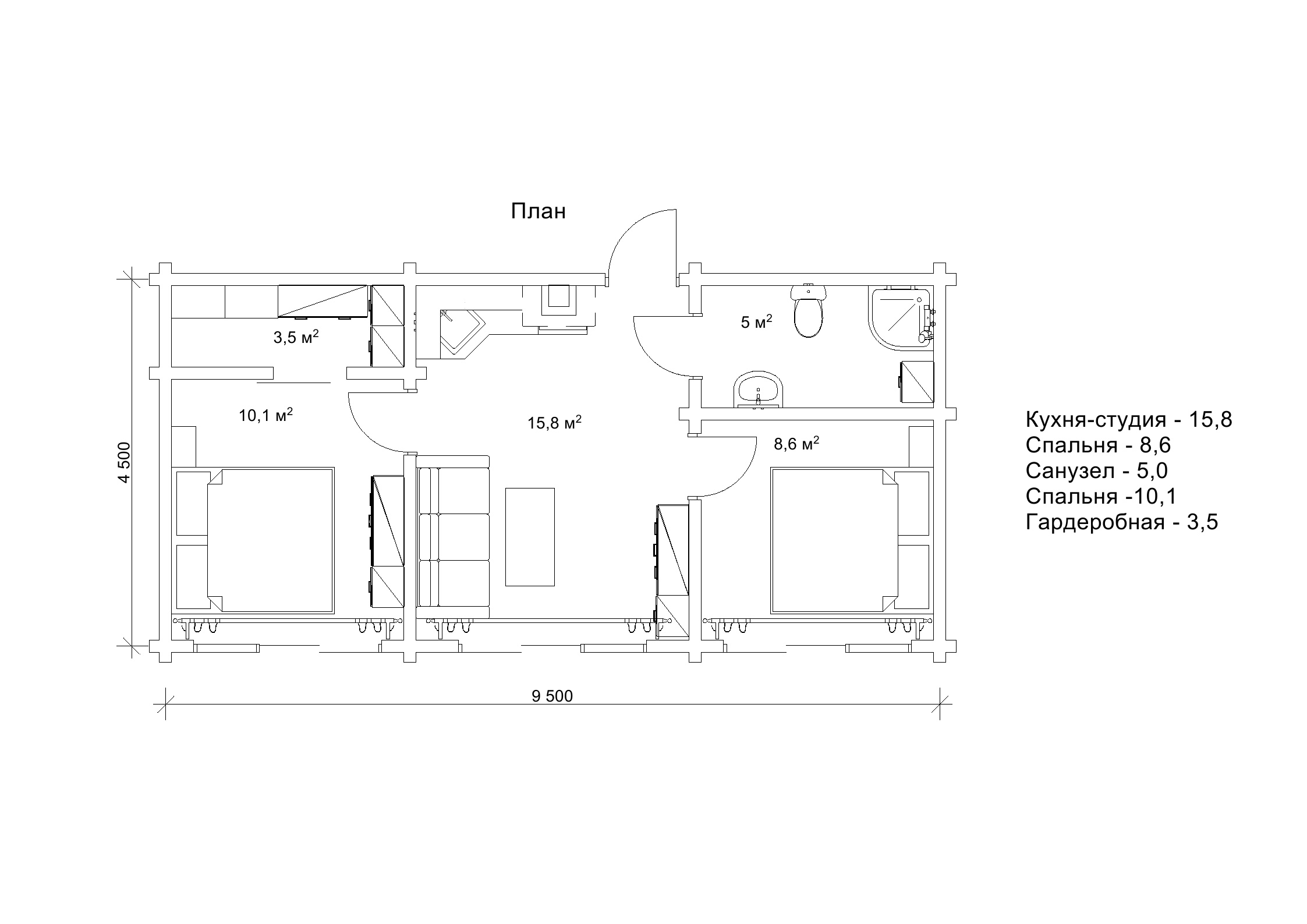
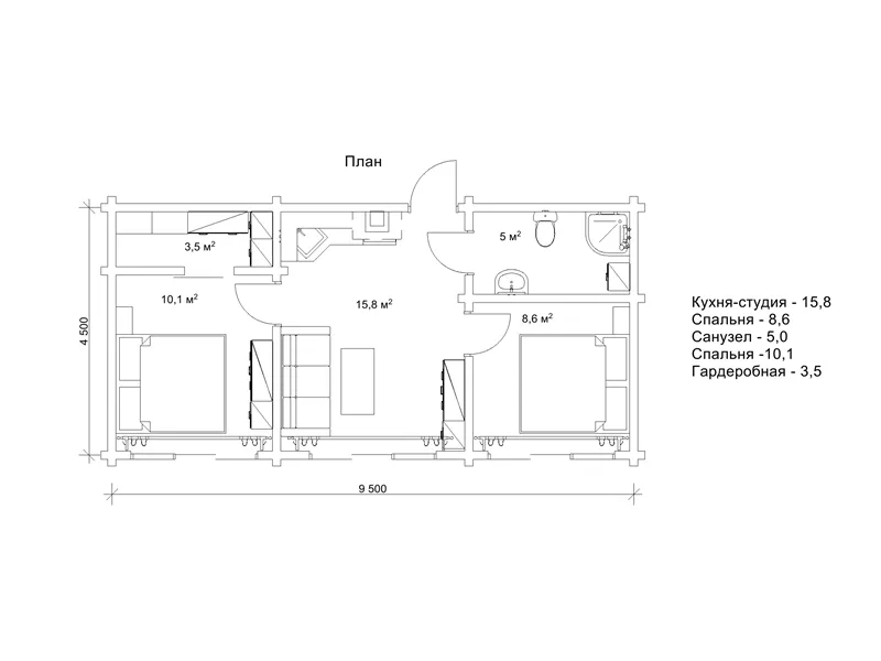
Планування гостьового котеджу з двома спальнями, 42,8м2
У гостьовому котеджі «Лодас» дуже цікаве планування кімнат, завдяки якому будиночок стає дуже функціональним. Площа бунгало - 42,8 м2. У ньому сплановано три кімнати, з них дві спальні і зал. Також планування включає санвузол і гардероб, а також 4 виходи. Головний вихід і окремі виходи з кожної кімнати. Таке планувальне рішення дозволяє будувати проект «Лодас» не тільки на власній дачі, але й у якості комерційного об’єкта. Цей комфортабельний будиночок для гостей на базі відпочинку виправдає всі бажання і гостей, і власника готельного бізнесу. В бунгало можна розмістити компанію друзів або сімейну пару з кількома дітьми, і всім буде комфортно, у всіх буде своя кімната, місце для приготування їжі, а також свій вихід на пляж з кожної кімнати. Тому рекомендуємо звернути особливу увагу на проект «Лодас» всім, хто планує доповнити готельний комплекс стильними та затишними, а головне - екологічними гостьовими котеджами.
Будівництво гостьового котеджу 4,5 на 9,5 м
Проект «Лодас» виконується з цільного, висушеного брусу (дерево сосна). Брусу надається певний з’єднувальний профіль, завдяки якому стіни з такого матеріалу виглядають добротно і монолітно. У будові виключені абсолютно все містки холоду за рахунок ретельного з’єднання брусів шип в паз і укладання межвінцевого утеплювача між колодами. Тому теплий гостьовий котедж «Лодас» може експлуатуватися у будь-який час року. Ще однією істотною перевагою будівництва гостьового котеджу 4,5 на 9,5 м виступає мінімум оздоблювальних робіт і економія бюджету споруди. Адже відшліфований, висушений брус варто лише пофарбувати зовні і всередині. Ніякого додаткового утеплення, обшивки і спеціального декору робити в будиночку «Лодас» не знадобиться. Тому «Лодас» являє собою дуже вигідний вибір для приватного і комерційного використання.
- Кількість поверхів
- 1
- Площа
- 42.8
- Ширина
- 4.5
- Довжина
- 9.5
- Будинки і житлові будови
- Будиночки
Дачі
Котеджі - Кількість кімнат
- Трикімнатні будинки
- Кількість поверхів споруди
- Одноповерхові будинки
- Будинки з брусу
- Будинки з клеєного брусу
Будинки з профільованого брусу - Комерційні будівлі
- Бази відпочинку
Готелі
Базова комплектація:
(Що входить в ціну)
- комплект стін;
- комплект крокв;
- комплект балок перекриття;
- утеплювач міжвінцевий;
- антисептик (антисептування всього матеріалу);
- дубові нагеля;
- кріпильні материали (саморізи, усадкові болти, анкера, кріпильні пластини);
- гідроізоляція;
- вогнебіозахист (обробка деревини засобом І групи вогнезахисної ефективності)
155520 грн.
Дах (комплектність):
- Рейка 100*25мм (cосна)
- Контрейка 50*25мм (сосна)
- Металочерепиця МОНТЕРРЕЙ (Польща) 0,45мм
- Коник прямий
- Планка примикання
- Лобова (декоративна) планка
- Вітровая планка
- Яндола
- Капельник (Карнизна планка)
- Ущільнювач універсальный
- Саморізи ОС 4.8х35
- Фарба-спрей
- Гідробар'єр
- Монтаж
0 грн.
Вікна (комплектність):
- Вікно VEKA 58, колір білий 10
- Імпости вертикальні: 1 x 102103
- Скління: СПО, 24мм, (Rсп=0.36)*
- Тип фурнітури: Activpilot поворотно-відкидна, колір білий
- Підбір спеціальний: Activ микровентиляція; Activ 2-функц. механ.
- Моск.сітка: МС 3
- Підвіконня: ВМ 110мм, колір білий
- Підвіконня: ПВ ПВХ 150, заглушки: 600мм, колір білий
- Монтаж
355300 грн.
Двері (комплектність):
- Полотно
- Коробка
- Лиштва
- Карниз
- Фарбування
- Скло
- Фурнітура
- Врізка фурнітуры
- Монтаж
86800 грн.
Фарбування (комплектність):
- Шліфування торців
- Тришарове покриття ефективним деревозахисним засобом на базі низькомолекулярної алкідної смоли методом розпилення.
Оциліндрований брус
Оциліндрований брус є найбільш оптимальним і поширеним матеріалом для будівництва дерев`яних будинків і бань, бесідок, альтанок, різноманітних садових меблів, дерев`яних конструкцій будь-яких видів. Дерев`яні будинки з оциліндрованого брусу відрізняються красою, всередині такого будинку завжди відчувається особлива затишна атмосфера.
Профільований брус
Найсучаснішим і високотехнологічним будівельним матеріалом в дерев`яному будівництві на сьогоднішній день є профільований брус. Для виробництва профільованого брусу, звичайному дерев`яному брусу на спеціальному деревообробному обладнанні надається певний профіль.
Подвійний брус з утепленням
Головна ідея застосування подвійного бруса полягала в досягненні енергоефективності житла. Над проектуванням енергозберігаючих будинків працюють провідні інженери та архітектори в різних країнах світу, запропонована фінами технологія подвійного бруса дає можливість звести до мінімуму тепловтрати будинку, а також об`єднує переваги будівництва дерев`яного будинку з економічністю споруди.
Клеєний брус
Клеєний брус принципово відрізняється від інших типів колод багатошаровістю. Така структура робить цей дерев’яний матеріал надміцним і витривалим.
Каркасні конструкції
Каркасні конструкції виготовляються на власних виробничих потужностях компанії «Домінант», з використанням сучасних деревообробних станків. Імпортне, високоточне обладнання дозволяє нам високоякісно виконувати свою роботу. Каркаси складаються зі струганих, ретельно висушених балок 150х50 мм (сосна першого сорту). Ці балки застосовуються для зовнішніх каркасів.















