Амелі
Двокімнатний котедж з дерева, площа 35 м2 - «Амелі»
- Кількість поверхів
- 1
- Площа
- 35
- Ширина
- 5
- Довжина
- 7
- Будинки і житлові будови
- Будиночки
Дачі
Котеджі - Кількість кімнат
- Двокімнатні будинки
- Кількість поверхів споруди
- Одноповерхові будинки
- Будинки з брусу
- Будинки з оциліндрованого брусу
- Комерційні будівлі
- Бази відпочинку
Готелі
(Що входить в ціну)
- комплект стін;
- комплект крокв;
- комплект балок перекриття;
- утеплювач міжвінцевий;
- антисептик (антисептування всього матеріалу);
- дубові нагеля;
- кріпильні материали (саморізи, усадкові болти, анкера, кріпильні пластини);
- гідроізоляція;
- вогнебіозахист (обробка деревини засобом І групи вогнезахисної ефективності)
Проект двокімнатного котеджу з дерева «Амелі»
Мініатюрний будиночок «Амелі» під чотирьохскатним дахом виглядає компактно і в той же час добротно. Котедж з дерева виконується за технологією зведення оциліндрованого зрубу. Колодчасті округлості на стінах підкреслюють красу унікального, деревного малюнка. Простота форм котеджу без вигадливих архітектурних елементів економить бюджет будівництва. Внутрішнє наповнення проекту «Амелі» створене з винятковим комфортом. На невеликій площі дерев’яного будиночка простір організовано з максимальною користю.
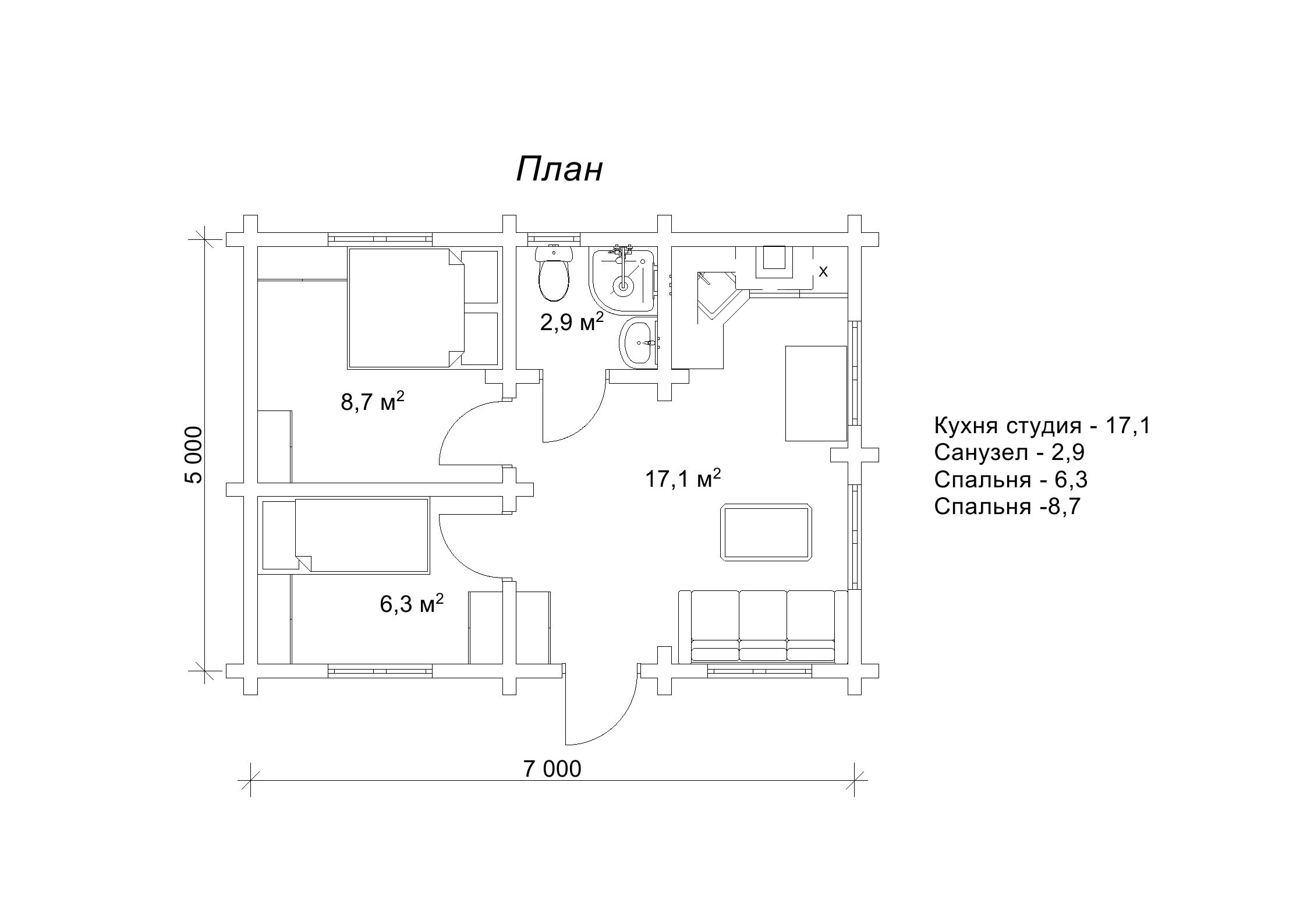
Планування двокімнатного котеджу, площа 35 м2
Параметри одноповерхового котеджу «Амелі» складають 5 на 7 м і площа, відповідно, 35 м2. Проте, на такій мініатюрній площі сплановані приміщення двох спалень, санвузла та кухні студії. Всі стіни котеджу, як зовні, так і внутрішні перегородки, спроектовані з одного розміру колод. Для комфортного цілорічного проживання рекомендується товщина соснових колод 200-220 мм, а для сезонного відпочинку підійдуть стіни з колод 160-180 мм. Будиночок «Амелі» краще використовувати в якості сезонного котеджу або комерційного будиночка під оренду на базі відпочинку.
Будівництво двокімнатного котеджу з дерева, проект «Амелі»
Двокімнатні будиночки з оциліндрованих колод найбільше затребувані для побудови в котеджних містечках і готельних комплексах. Такий будиночок як «Амелі» прекрасно доповнить територію будь-якої бази відпочинку, розширить можливості послуг, що надаються, і принесе багато прибутку. Будівництво двокімнатного котеджу з дерева за проектом «Амелі» вигідно і для приватних, і комерційних цілей. Дерев’яний котедж економічний по бюджету споруди і його експлуатація також не несе багато клопоту і капіталовкладень. Замовляйте будівництво двокімнатного котеджу з дерева за проектом «Амелі» у відділі по роботі з клієнтами «Домінант».
- Кількість поверхів
- 1
- Площа
- 35
- Ширина
- 5
- Довжина
- 7
- Будинки і житлові будови
- Будиночки
Дачі
Котеджі - Кількість кімнат
- Двокімнатні будинки
- Кількість поверхів споруди
- Одноповерхові будинки
- Будинки з брусу
- Будинки з оциліндрованого брусу
- Комерційні будівлі
- Бази відпочинку
Готелі
Базова комплектація:
(Що входить в ціну)
- комплект стін;
- комплект крокв;
- комплект балок перекриття;
- утеплювач міжвінцевий;
- антисептик (антисептування всього матеріалу);
- дубові нагеля;
- кріпильні материали (саморізи, усадкові болти, анкера, кріпильні пластини);
- гідроізоляція;
- вогнебіозахист (обробка деревини засобом І групи вогнезахисної ефективності)
143370 грн.
Дах (комплектність):
- Рейка 100*25мм (cосна)
- Контрейка 50*25мм (сосна)
- Металочерепиця МОНТЕРРЕЙ (Польща) 0,45мм
- Коник прямий
- Планка примикання
- Лобова (декоративна) планка
- Вітровая планка
- Яндола
- Капельник (Карнизна планка)
- Ущільнювач універсальный
- Саморізи ОС 4.8х35
- Фарба-спрей
- Гідробар'єр
- Монтаж
122780 грн.
Вікна (комплектність):
- Вікно VEKA 58, колір білий 10
- Імпости вертикальні: 1 x 102103
- Скління: СПО, 24мм, (Rсп=0.36)*
- Тип фурнітури: Activpilot поворотно-відкидна, колір білий
- Підбір спеціальний: Activ микровентиляція; Activ 2-функц. механ.
- Моск.сітка: МС 3
- Підвіконня: ВМ 110мм, колір білий
- Підвіконня: ПВ ПВХ 150, заглушки: 600мм, колір білий
- Монтаж
146300 грн.
Двері (комплектність):
- Полотно
- Коробка
- Лиштва
- Карниз
- Фарбування
- Скло
- Фурнітура
- Врізка фурнітуры
- Монтаж
78120 грн.
Фарбування (комплектність):
- Шліфування торців
- Тришарове покриття ефективним деревозахисним засобом на базі низькомолекулярної алкідної смоли методом розпилення.
Оциліндрований брус
Оциліндрований брус є найбільш оптимальним і поширеним матеріалом для будівництва дерев`яних будинків і бань, бесідок, альтанок, різноманітних садових меблів, дерев`яних конструкцій будь-яких видів. Дерев`яні будинки з оциліндрованого брусу відрізняються красою, всередині такого будинку завжди відчувається особлива затишна атмосфера.
Профільований брус
Найсучаснішим і високотехнологічним будівельним матеріалом в дерев`яному будівництві на сьогоднішній день є профільований брус. Для виробництва профільованого брусу, звичайному дерев`яному брусу на спеціальному деревообробному обладнанні надається певний профіль.
Подвійний брус з утепленням
Головна ідея застосування подвійного бруса полягала в досягненні енергоефективності житла. Над проектуванням енергозберігаючих будинків працюють провідні інженери та архітектори в різних країнах світу, запропонована фінами технологія подвійного бруса дає можливість звести до мінімуму тепловтрати будинку, а також об`єднує переваги будівництва дерев`яного будинку з економічністю споруди.
Клеєний брус
Клеєний брус принципово відрізняється від інших типів колод багатошаровістю. Така структура робить цей дерев’яний матеріал надміцним і витривалим.
Каркасні конструкції
Каркасні конструкції виготовляються на власних виробничих потужностях компанії «Домінант», з використанням сучасних деревообробних станків. Імпортне, високоточне обладнання дозволяє нам високоякісно виконувати свою роботу. Каркаси складаються зі струганих, ретельно висушених балок 150х50 мм (сосна першого сорту). Ці балки застосовуються для зовнішніх каркасів.





















